Lindab LCR2 Perforated Wall Diffuser

Description
LCR2 is a clean room diffuser that can be equipped with a HEPA filter, for installation on walls. It is typically used in premises where there are stringent requirements concerning the amount of particles and germs in the air. The diffuser can be used both to supply and exhaust air. It is supplied with a front-mounted, partially perforated and easy-to-detach front plate that ensures good air distribution and moderate flow rates throughout the premises. The diffuser excels when used with the very simple and easy filter installation function. The pattern of airflow is illustrated on the following page. Filters are supplied by Camfil Farr with a PU seal.
- Airtight all-welded box in stainless steel
- Simple and easy filter installation
- Mounting brackets are supplied as accessories
- Hinged front plate on diffuser – easy to detach
- Low net weight
- The front plate can be supplied in stainless steel upon request.
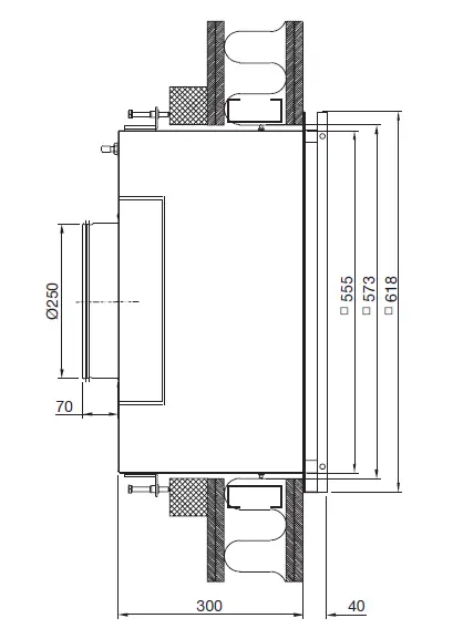
Dimensions

- Weight 16.9 kg.
- The diffuser can also be supplied with circular or rectangular side connections. However, this requires an increased box depth.
Materials and finish
Box:
- Material: Stainl stress l
- Standard finish: Powder-coated
- Standard color: RAL 9010, gloss 30
Frontplate:
- Material: Galvanised steel
- Standard finish: Powder-coated
- Standard color: RAL 9010 or 9003, gloss 30
The diffuser is available in other colors. Please contact Lindab’s sales department for further information.
Technical data
All measurements include the class H-14 filter manufactured by Camfil Farr.
Capacity
Volume flow qv [l/s] and [m3/h], total pressure drop Δpt [Pa] and sound effect level LWA [dB(A)] can be seen in the diagram below.
The frequency-related sound effect level
The sound effect level in the frequency band is defined as Look = LWA + Kok. The values for Kok are specified in the charts beneath the diagram below.

Sound attenuation
The diffuser’s sound attenuation functions from the duct to the room, including end reflection.

Dispersal diagram–viewed from the front

Dispersal diagram–viewed from above

Dispersal diagram–viewed from the side

Parts
Filter clip




















