Job Name/Location: ________________ Tag No.: ________________
Date: ________________
For:
File
Resubmit
Approval
Other ______________
PO No.: ________________
Architect: ______________ GC: _______________
Engr: ________________ Mech: _____________
Rep: ______________________________________
(Company) (Project Manager)


ARNH423K3A4
Hydro Kit High Temperature
42 MBh Indoor Unit
Performance:
| Rated Heated Capacity (Btu/h) | 47000 |
| Entering Water Temperature Range (°F) | 50 – 158 |
| Leaving Water Temperature Range (°F) | 86 – 176 |
Rated capacity is certified under AHRI Standard 1230. Ratings are subject to change without notice. Current certified ratings are available at www.ahridirectory.org.
Electrical:
| Power Supply (V/Hz/Ø)¹ | 208-230/60/1 |
| Power Input (kW) | 2.3 |
| MOP (A) | 25 |
| MCA (A) | 18.2 |
| Rated Amps (A) | 12 |
MOP — Maximum Overcurrent Protection MCA — Minimum Circuit Ampacity
Piping:
| Liquid Line (inches, O.D.) | 3/8 Braze |
| Vapor Line (inches, O.D.) | 5/8 Braze |
| Water Inlet / Outlet (inches, O.D.) | 1, Male Pipe Thread |
Standard Features:
- High temperature water heating
- Domestic water heating2
- Factory mounted inlet/outlet water temperature sensors
- Wi-Fi compatible with optional module
- Factory mounted internal flow switch
- Third-party thermostat interface3,4
- Group control5
- Remote on/off site monitoring capability via the internet6
Water Flow Control Options:
- Water Pump On / Off Interlock
- 208V 3-Way Diverting Valve3,7,8
Included Accessories:
- Hot Water Tank Temp Sensor with 32-foot Communication Cable9,10
- 1 /2″ Male Pipe Thread (MPT) Hot Water Tank Sensor Well9
- Remote Wall Mounted Hydro Kit Controller with 32-foot Communication Cable9,11
- 1″ Female Pipe Thread (FPT) 50 Mesh Inlet Strainer9
Optional Accessories:
Dry Contact - PDRYCB320 / PDRYCB100
Remote Temperature Sensor - ZRTBS019,12
Group Control Cable Kit - PZCWRCG35
Extension Cable - PZCWRC111
LG MultiSITE™ Communications Manager - PBACNBTR0A
AC Smart™ 5 - PACS5A000
ACP 5 - PACP5A000
ACP LonWorks® - PLNWKB100
Wi-Fi Module - PWFMDD200
Unit Data:
| Refrigerant Type (Primary / Secondary) | R410A / R134A |
| Refrigerant Control | EEV |
| Sound Pressure dB(A)13 Heating | 44 |
| Net Weight (lbs.) | 189.6 |
| Shipping Weight (lbs.) | 207.2 |
| Heat Rejected to Equip. Rm. (Btu/h) | Negligible |
| Factory Charge (R134A, lbs.)14 | 5.07 |
Heat Exchanger:
| Heat Exchanger | Refrigerant to Water |
| Heat Exchanger Type | Brazed Plate |
| Rated Water Flow (GPM) | 5.2 |
| Rated Pressure Drop (ft-wg)15 | 1.7 |
| Flow Range (GPM) | 5.2 to 10.6 |
| Water Side Volume (US Gallons) | 0.58 |
| Water Side Design Pressure (psig) | 640 |
Compressor:
| Compressor Type x Quantity | Twin Rotary Inverter x 1 |
Notes:
- Voltage fluctuation tolerance is ±10%.
- Requires the use of an indirect water storage tank.
- Field provided and mounted.
- Field-provided thermostat must be a line voltage (208V) heating only thermostat. Heating setpoint, deadband, and manual restart functions provided by Hydro Kit controller are not available with use of a third-party thermostat. Cannot be used in conjunction with remote temperature sensor.
- Group Control Cable Kit (PZCWRCG3) required and sold separately.
- Monitoring capability available using a MultiSITE Communication Manager, AC Smart 5, or ACP 5 (sold separately), or a BMS system integration gateway (sold separately). Requires a field provided LAN/internet connection or BMS system provided by others.
- Not required on dedicated domestic water heating applications.
- Alternates flow between comfort heating equipment and water heating tank.
- Field mounted.
- Cannot field splice.
- Cannot field splice. To extend cable length, use Extension Cable (PZCWRC1), sold separately.
- Requires the installation of the Hydro Kit controller. Does not apply when used in conjunction with a third-party thermostat.
- Sound pressure levels tested in an anechoic chamber in accordance with ISO Standard 3475.
- Internal second stage refrigerant circuit.
- Water only (no antifreeze).
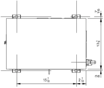
(Unit: Inch)


Notes:
- Unit must be installed in compliance with the installation manual.
- Unit must be grounded in accordance with the local or state regulations and applicable national codes.
- All field-supplied electrical components and materials must comply with the local, state, and national codes.
3D VIEW


- Power Supply Wiring
Routing Hole (01-3/16) - Communications Cable
Routing Hole (01-3/16) - Vapor Piping
- Liquid Piping
- Water Outlet
- Water Inlet
For continual product development, LG reserves the right to change specifications without notice.
© LG Electronics U.S.A., Inc., Englewood Cliffs, NJ. All rights reserved. “LG Life’s Good” is a registered trademark of LG Corp. /www.lghvac.com
162279 
SB_HydroKit HighHeat _ARNH423K3A4_2023_03_10_092044


















