
V7335A “5000A” SERIES
ELECTRIC MODULATING PRESSURE REGULATOR (MODUPLUS®)

APPLICATION
The V7335A ”5000” series electric modulating regulator (Moduplus®), when installed on VK41../VK81.. series gas controls, expands their application versatility and provides
the following extra functions:
- Servo pressure regulation
Outlet pressure is held at a constant value regardless of fluctuations of the input pressure. - Modulating control
Between the minimum and maximum outlet pressure, the gas supply to the appliance is dependent on the electrical signal to modulating the coil. - Mechanical limitation of outlet pressure
The minimum and maximum burner pressures are mechanically adjusted to guarantee good burner performance in case the modulating control should become out of range.
The Moduplus® is designed to work together with the W4115 logic control, T7335A thermistor temperature sensor, and an advanced range of micro computer-based modulating controls.
SPECIFICATIONS
In general, the specifications of the VK41../VK81.. gas controls are valid. See instruction sheet EN1R9162. However, the following information is deviating and replaces therefore the relevant information of that instruction sheet.
Model
Gas controls:
Suffix M: fast opening with the electric modulating regulator.
Suffix N: slow opening with the electric modulating regulator.
Electric modulating regulator:
V7335A low voltage (Moduplus®)
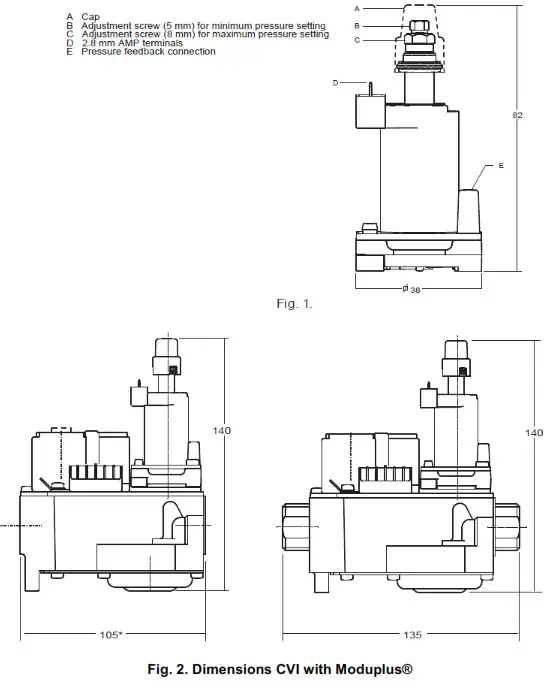
Adjustment points and dimensions
See fig 1 page 3
Regulator outlet pressure range
See table 1 page 1
Electrical rating
See table 2 page 2
Electrical connection
The Moduplus® has a nipple with a 6 mm outer diameter for connection between the regulator and combustion chamber of the appliance.
Pressure feedback connection
The Moduplus® has a nipple with a 6 mm outer diameter for the connection between the regular and combustion chamber of the appliance.
Maximum operating pressure
The Pmax. indication on the housing of the gas control is the maximum pressure at which the gas control functions safely. However, the maximum operating pressure is limited by the pressure range of the Moduplus® concerned. 60 mbar for pressure range 1 … 25mbar / 1 … 37 mbar and 100 mbar for pressure range 2.5 … 50 mbar
Table 1. Outlet pressure range
| Pressure range (mbar) | Setting outlet (bar) | Pressure range |
| Minimum | Maximum | |
| 125 | 112 | (min setting + 5) … 25 |
| 137 | 1 … 25 | (min setting + 5) … 37 |
| 2.5 … 50 | 2.5 … 35 | (min setting + 5) … 50 |
Table 2.Electrical rating
| Coil | Modulation Current dc (mA) | Resistance at 20 °C (W) | |
| Voltage (Vdc) | Color | ||
| 12 | Blue | 55 …310 | 31,5 … 36,5 |
| 15 | White | 45 …250 | 42 … 46 |
| 17 | Grey | 30 …165 | 82 … 88 |
| 28 | Green | 30 …165 | 107,5… 117,5 |
| 28 | Black | 45 …165 | 125… 135 |
WARNING
Do not exceed the maximum current value.
Modulation characteristics
Values are based on increasing current with start at zero. When the current is decreasing from its maximum value the outlet pressure will be higher.
NOTE
The good and reliable performance of the Moduplus® is not only dependent on the Moduplus® itself, but also upon the reliability of the modulating control and sensor used.
ADJUSTMENT, CHECKOUT, AND MAINTENANCE
IMPORTANT
Adjustments should be made by qualified persons only.
If the appliance manufacturer supplies checkout and/or service and maintenance instructions, carefully follow them. If such instructions are not provided, then follow the procedure as outlined below.
Adjustments should be made within the specified pressure ranges.
Allow time for pressure to stabilize before making adjustments.
It is recommended that the Moduplus® is operated a few times to ensure the correct setting.
Remove cap before adjustment.
Take care that after any adjustment cap is mounted.
In applications with pressure, feedback mount the cap.
WARNING
Do not dismount parts of the Moduplus®. Dismounting can cause malfunction of the Moduplus®.
The maximum pressure setting must first be adjusted to ensure that the burner will safely light up, then the minimum pressure setting can be adjusted.
Any adjustment of maximum pressure setting influences minimum pressure setting, thus a min. pressure setting should always be re-adjusted after.
Adjusting the maximum pressure setting (see fig1)
Method 1:
- Disconnect pressure feedback connection (if applicable).
- Connect a suitable pressure gauge to pipeline or to outlet pressure tap of gas control concerned, to measure burner pressure (measuring point must be as near to burner as possible).
- Disconnect electrical connection of Moduplus®.
- Energize operator, set control in operation, and wait until an outlet pressure is recorded on the pressure gauge.
- Push shaft gently downwards by means of a suitable pin through the hole on the top of the Moduplus® to the bottom and hold it on.
- If maximum rate pressure needs the adjustment then use an 8 mm wrench to turn the adjustment screw for maximum pressure setting clockwise to increase or counter-clockwise to decrease pressure, until the desired maximum outlet pressure is obtained.) Release shaft.
- Check minimum pressure setting and readjust if necessary.(according to instructions below)
- Mount cap and reconnect pressure feedback connection (if applicable).
- Close pressure tap screw
Method 2: - Disconnect pressure feedback connection (if applicable).
- Connect a suitable pressure gauge to pipeline or to outlet pressure tap of gas control concerned, to measure burner pressure (measuring point must be as near to burner as possible).
- Make sure that the appliance is in operation and the Moduplus® coil is energized with the maximum current.
- If maximum rate pressure needs the adjustment then use an 8 mm wrench to turn the adjustment screw for maximum pressure setting clockwise to increase or counter-clockwise to decrease pressure, until the desired maximum outlet pressure is obtained.
- Disconnect electrical connection of Moduplus®
- Check minimum pressure setting and readjust if necessary. (according to instructions below)
- Mount cap and reconnect pressure feedback connection (if applicable).
- If the minimum and maximum pressures are set, wire the Moduplus® in the circuit.
- Close pressure tap screw Adjusting minimum pressure setting (see fig 1)
- Disconnect pressure feedback connection (if applicable).
- Connect a suitable pressure gauge to pipeline or to outlet pressure tap of gas control concerned, to measure burner pressure (measuring point must be as near to burner as possible).
- Disconnect electrical connection of Moduplus®.
- Energize operator, set control in operation, and wait until an outlet pressure is recorded on the pressure gauge.
- If minimum rate pressure needs the adjustment then use a 5 mm wrench to turn the adjustment screw for minimum pressure setting clockwise to increase or counter- clockwise to decrease pressure, until the desired minimum outlet pressure is obtained.
- Check if main burner lights are easily and reliable at minimum pressure.
- Mount cap and reconnect pressure feedback connection (if applicable).
- Close pressure tap screw
Adjusting intermediate pressure setting
Some controls are able to provide modulating control as well as a fixed setting.
In case this intermediate pressure setting should be set, it is necessary to follow the supplier’s instructions regarding the adjustment of the concerned control. It deals with the switching from modulating mode to fixed setting mode which is in most cases is a potentiometer.
The fixed setting mode is very often used for central heating, where on/off adjustable pressure to the burner is required.
This intermediate outlet pressure can in general be electrically set as follows:
- Disconnect pressure feedback connection (if applicable).
- Connect a suitable pressure gauge to pipeline or to outlet pressure tap of gas control concerned, to measure burner pressure (measuring point must be as near to burner as possible).
- Energize operator, set control in operation, and wait until an outlet pressure is recorded on the pressure gauge.
- Make sure Moduplus® is wired in the circuit.
- Start system in fixed setting mode.
- Adjust current as low as needed to obtain the lowest pressure by using pressure setting means of control. The mechanical setting of Moduplus® will prevent too low a setting.
- Close pressure tap screw
- Increase the current until the desired pressure is obtained by using pressure setting means of modulating control.
- Mount cap and reconnect pressure feedback connection (if applicable).
Checkout
After any adjustment, set the appliance in operation and observe through a complete cycle to ensure that burner system components function correctly.
Maintenance
It is recommended to check yearly the minimum and the maximum setting and readjust them if necessary.

MODULUS ® TRADELINE
Mounting Moduplus® Tradeline on the gas valve. (see fig 3)
- Verify that all parts are present in Moduplus® tradeline box (1 moduplus®, 1 gasket, 2 screws, 1 cap)
- Shut off gas and power supply, disconnect Moduplus® coil wiring and disconnect pressure feedback connection (if applicable)
- Remove old Moduplus® regulator and discard gasket. Place a new gasket at the bottom side of Moduplus®. Orientation of the gasket must be as indicated in figure 3! Push gasket over the small bosses (A), so that the bosses show fully through the gasket.
- Mount Moduplus® on the gas valves.
The electrical connectors of the Moduplus® coil must face the coil of the gas valve. (see fig. 2)
The 2 mounting screws must be fastened to 3 Nm. - Switch on gas and power supply, energize operator of the gas valve. Check for outer wall leakage around the perimeter of Moduplus®
- Adjust maximum and minimum pressure setting according to chapter ‘Adjustment, Checkout and Maintenance
- Place cap over adjustment screws until it snaps over protruding circular boss and reconnects pressure feedback connection (if applicable)


Resideo Pittway Sàrl
Z.A. La Pièce 4
1180 Rolle
Switzerland
EN1R9175 2004RC-NE



















