
P/N 041756 Rev A
03/2021
Installation Instructions
Please Read Before Installing
Rough-In DIN Panel
LUT-8X8-ENC
120 V~ 50 / 60 Hz
Important Notes
Codes: All wiring must be installed in accordance with all local and national electrical codes.
Environment: This equipment is intended for indoor use only. Use in an ambient of 0 °C to 40 °C (32 °F to 104 °F) with relative humidity less than 90%, non-condensing.
Mounting Location: Modules (not included) may hum slightly and the internal relays will click while in use. Mount in a location where such noise is acceptable.
Mount panel so that line voltage wiring will be at least 6 ft (1.8 m) from audio or electronic equipment and its wiring.
Installation
- Turn power OFF.
WARNING: Shock Hazard. May result in serious injury or death. More than one disconnect may be required to de-energize this device and enclosed modules. Disconnect all power sources before servicing the unit. The primary branch circuit must be protected by an appropriately sized circuit breaker or fuse per local and national electric codes. - Remove the front cover by removing the four cover mounting screws.
Figure 1: Remove the front cover
- Surface-Mount Rough-In Panel. Use mounting holes with bolts sufficient for 14 kg (20 lb) load: M6 (1⁄4 in) bolts recommended (mounting hardware not provided). See Figure 2.
Figure 2: Surface-mount panel (all dimensions: in [mm])
- Install Power Modules.
a. Install one compatible power module onto DIN rail as shown in Figure 4. Place module in the center of the DIN rail.
b. Power Supply installation – Place in center of DIN rail (see Figure 3).
Figure 3: Install power supply; run power wiring
Run power wiring to the power module.
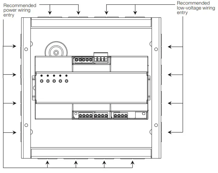
WARNING: Shock Hazard. May result in serious injury or death. More than one disconnect may be required to de-energize this device. Disconnect all power sources before servicing the unit. Refer to the DIN module/power supply installation instructions for wiring details. Recommended locations to run power wiring into the panel are shown in Figure 4. Modules in the panel can be wired using one or more power feeds. If feeding through Lutron power modules using line terminals, as shown in image n the left, the total current must be less than or equal to the maximum current per feed (which can be found in the literature for the application modules). It is recommended that all feed splicing be done outside of this enclosure. Module and enclosure must be properly grounded as per all applicable codes.
Figure 4: Power module /power supply wiring
Figure 5: Power module and power supply compatibility
Table 1: DIN modulesDigital Controllers LQSE-2ECO-D LQSE-2DAL-D Dimming LQSE-4T5-120-D Switching MQSE-4S1-D MQSE-3S1-D MQSE-2S1-D LQSE-4S8-120-D Table 2: Power supplies
Power Supplies MQSPS-DH-1-30 USPS-DH-1-75-H - Install load wiring.
Each DIN power module controls 2 – 4 loads (depending on model number). Refer to the installation instructions packaged with the DIN power modules.
Label each wire clearly as you wire it to the power module.
NOTE: Refer to module installation sheet for maximum ratings.
Exceeding the maximum ratings can damage the module. - Check all wiring before providing power to the panel.
- Test all load wiring. Turn on input power to the module locations.
Check all connected lighting to ensure it is on. If a circuit breaker trips, a wiring error exists and it must be resolved.
Warranty
For warranty information, please see the warranty enclosed with the
product, or visit: www.lutron.com/TechnicalDocumentLibrary/warranty.pdf
Customer Assistance
For questions concerning the installation or operation of this product, call Lutron Customer Assistance. Please provide the exact model number when calling.
The U.S.A. and Canada
1.844.LUTRON1
Mexico 8 am – 8 pm ET
+1.888.235.2910

Lutron Electronics Co., Inc.
7200 Suter Road, Coopersburg, PA 18036-1299 USA
Lutron and Lutron are trademarks of Lutron Electronics Co., Inc., registered in the U.S. and other countries.
NEC is a registered trademark of the National Fire Protection Association, Quincy, Massachusetts.
©2015-2021 Lutron Electronics Co., Inc.
WARNING: Shock Hazard. May result in serious injury or death. More than one disconnect may be required to de-energize this device and enclosed modules. Disconnect all power sources before servicing the unit. The primary branch circuit must be protected by an appropriately sized circuit breaker or fuse per local and national electric codes.


Figure 5: Power module and power supply compatibility


















