stelpro INSSK0622 CEILING FAN HEATER

WARNING
Before installing and operating this product, the user and/or installer must read, understand and follow these instructions and keep them handy for future reference. If these instructions are not followed, the warranty will be considered null and void and the manufacturer deems no further responsibility for this product.
This product must be installed by a qualified person and connected by a certified electrician, according to the electrical and building codes effective in your region.
The following instructions must be adhered to in order to avoid personal injuries or property damages, serious injuries and potentially fatal electric shocks. Protect the heating unit with the appropriate circuit breaker or fuse, in accordance with the nameplate.
Make sure the line voltage (volt) is consistent with that indicated on the unit’s nameplate.
This unit must be grounded.
Switch off the power at the circuit breaker/fuse before installing, repairing and cleaning the unit.
Make sure the unit is appropriate for the intended use (if needed, refer to the product catalog or a representative).
RECOMMENDED HEATING CAPACITY:
1.25 W/cubic foot (0.03 m³).
It corresponds to 10 W/square foot (0.09 m²) based on a standard ceiling height of 8 feet (2.44 m). The recommended capacity is usually sufficient for normal heating needs. Please note that the insulation quality of walls and windows are some of the factors that influence heat losses, which modify the required capacity to heat a room. If needed, refer to a specialist (industrial and commercial buildings) who will be able to calculate these heat losses and optimize the required capacity or consult the “Online heating calculation” section of the Stelpro Design Web site (residential buildings). To heat a large room and to increase your comfort, it is recommended to install several units instead of one. For example, 2 X 1000 W rather than 1 X 2000 W.
Do not install the unit where objects or pieces of furniture could be heat damaged.
If the unit capacity is insufficient for the size of the room, it will be in operation continuously, and may become defective earlier and turn yellow.
Respect distances and positions indicated in the installation section.
If the installer or the user modifies the unit, he will be held responsible for any damage resulting from this modification, and the CSA certification could be void.
This unit must not come into contact with a water source such as, but not limited to, showers, bathtubs, sinks, toilets, etc. and must be protected from splashes. Do not use it if any part has been immersed.
When mounting the unit, make sure that the anchorage used can support the total weight of the unit with the mounting brackets.
When cutting or drilling into a ceiling, do not damage electrical wiring and other hidden utilities.
When starting up the unit for the first time or after a long period, it is normal that it produces some temporary odours and whitish smoke.
Because this unit is hot when in use, it may pose risks even in normal operation. Therefore, be careful and responsible when using it. To avoid burns, do not let bare skin touch hot surfaces. The unit must cool down for few minutes since it will stay warm for some time after shut-down.
This unit must be installed at least 6 inches (15.2 cm) from the walls and between 8’ (244 cm) and 10’ (305 cm) from the floor. However, make sure objects or pieces of furniture do not come into contact with the unit and keep them at least 12 inches (30 cm) from the unit since they are more flammable than walls and floors. Failure to comply with this warning could lead to a fire. Some materials are more heat-sensitive than others, so make sure those near the unit can withstand heat.
Never block unit air vents. This obstruction could lead to overheating, which could result in a fire.
Do not insert or allow foreign objects to enter any air vent as this may cause electric shocks, fires, or damages to the unit.
This unit has hot and arcing or sparking parts inside. It is not designed to be used or stored in wet areas or areas containing flammable liquids, combustible materials or corrosive, abrasive, chemical, explosive and flammable substances such as, but not limited to, gasoline, paint, chlorine, sawdust and cleaning products.
Some areas are dustier than others. Thus, it is the user’s responsibility to evaluate if the unit must be cleaned based on the amount of dirt accumulated on and inside air vents. Accumulated dirt can lead to a component malfunction or discoloration (yellow). It may cause a fire hazard if not installed and maintained in accordance with these instructions.
The thermal protection activation indicates that the unit has been subjected to abnormal operating conditions. If the thermal protection remains activated or activates and deactivates repeatedly, it is recommended that a qualified electrician or a certified repair centre examine the unit in order to make sure it is not damaged. (Refer to the limited warranty)
If the unit is damaged or defective, cut off power supply at circuit breaker and call a certified repair centre. (Refer to the limited warranty)
SPECIFICATIONS
| CEILING FAN HEATER | |
| MODEL | SKI |
| VOLTS | 120, 208, 240, 277, 347 V |
| WATTS | 500 À 2000 W |
| WEIGHT | 11 LB / 5 KG |
| DEPTH | 4 3/8’’ / 111 MM |
| WIDTH | 14 1/16” / 357 MM |
| HEIGHT | 11 1/2” / 292 MM |
TECHNICAL DRAWINGS

INSTALLATION
N.B. Cut off power supply at circuit breaker/fuse before proceeding to the installation.
This unit must be installed at no less than 6” (15.2 cm) from adjacent walls and between 8’ (244 cm) and 10’ (305 cm) from the floor. Moreover, it can be ceiling mounted only, in horizontal position (not on an angle).
An installation template has been placed in this document to help you throughout the installation process. Pin the template onto the ceiling. This user’s guide will let you know when it is time to refer to the template, indicating: Follow cut (A, B or C) on template.
N.B. You must follow the template accurately so that once the surface grille is installed, it will completely cover the opening you have made in the ceiling.
RECESSED INSTALLATION INTO A FINISHED CEILING
THREE INSTALLATION OPTIONS
INSTALLATION OPTION 1
THE LONGER SIDE OF THE UNIT RESTING PERPENDICULAR TO THE CEILING JOISTS.
FOLLOW CUT A ON TEMPLATE
INSTALLATION OPTION 2
THE LONGER SIDE OF THE UNIT RESTING PARALLEL TO THE CEILING JOISTS. (WHEN YOU HAVE ACCESS TO THE ATTIC)

FOLLOW CUT C ON TEMPLATE
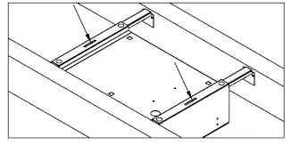
You must unscrew the shoulder and reposition it on the side that will rest on the ceiling joist. Screw the shoulder into the lowest level of holes on the enclosure so that they will be in line.
Measure the distance between the enclosure and the joist on which the brackets will be fixed. Insert the brackets into their respective slots on the enclosure. Adjust the brackets using screws (2 per bracket) until the proper length has been achieved.
INSTALLATION OPTION 3
THE LONGER SIDE OF THE UNIT RESTING PARALLEL TO THE CEILING JOISTS. (WHEN YOU DO NOT HAVE ACCESS TO THE ATTIC)
Screw wooden boards (2’’ X 4’’) between the ceiling joists in order to create a ‘‘box’’ in which you will insert the unit.
The enclosure must rest on the finished ceiling.
FOLLOW CUT A ON TEMPLATE

NEW CONSTRUCTION
If the ceiling is not finished yet, the interchangeable shoulders should be raised by screwing them into the second level of holes on the enclosure. So, once installed, the enclosure will rest flush with the finished ceiling (see the ILLUSTRATION OF THE ADJUSTMENT HOLES).
FOLLOW CUT B ON TEMPLATE (TO CUT THE LASTERBOARD BEFORE ITS INSTALLATION)
FOLLOW CUT C ON TEMPLATE (TO CUT THE PSTERBOARD BEFORE ITS INSTALLATION)
RECESSED INSTALLATION INTO A SUSPENDED CEILING
WITHIN THE CURRENT SUSPENDED CEILING TILE
- Remove a tile where you want to install the unit and cut on an opening within it (see dimensions hereinafter).

- Put the cut tile back on.

- Fix the unit between two wooden boards (2” x 4”) using four (4) screws and the shoulders fixed at each side of the unit (the two boards must be long enough to cross over the T-bar ceiling supports in order to support the weight of the heater).
The enclosure of the unit must rest flush with the finished ceiling so that the clips on the grille extend far enough to properly hold the grille in place. To adjust the level of the enclosure, you must move the interchangeable shoulders either up or down and screw them in the proper adjustment holes. (See the ILLUSTRATION OF THE ADJUSTMENT HOLES) - A) Remove a tile beside the one you have cut in order to have enough room to put the two boards at their respective locations.
B) Pick up the assembly and place it above the cut tile, and across the
T- bar ceiling supports. The enclosure of the heater must be suspended exactly above the opening and in line with the tile.
C) Put the adjacent tile back on.
- Install the grille by putting the clips into their respective slots within the enclosure and pushing it up into place.

* Wooden boards are merely a recommendation, any other material capable of supporting the weight of the heater may be used.
WITHIN THE T-BAR ADAPTER (OPTIONAL)
- Fix the unit directly to the T-bar adapter (optional) by screwing the shoulders into the adapter at both sides with four (4) screws, in such a way that the unit will be entirely recessed.
- Install the grille by putting the clips into their respective slots within the enclosure and pushing it up into place.
- Insert the T-Bar adapter (optional) into its desired position by first removing the existing suspended ceiling tile.

WITH THREADED RODS

ILLUSTRATION OF THE ADJUSTMENT HOLES
Will adjust to all types of suspended ceilings.
SURFACE INSTALLATION (WITH AN OPTIONAL SURFACE ADAPTER)

FINISHED CEILING
- Screw the surface adapter (optional) to the ceiling (4 screws), making sure the joist will support its weight.
- Screw the unit to the surface adapter (optional) (4 screws).
- Install the grille by putting the clips into their respective slots within the enclosure and pushing it up into place.
SUSPENDED CEILING
TO THE SUSPENDED CEILING TILE
- Insert the surface adapter (optional) into the tile and screw it in place (4 screws). Continue to screw through two wooden boards (2’’x 4’’) which should be laying across the supports of the T-Bar ceiling.
- Screw the unit to the surface adapter (optional)(4 screws).
- Install the grille by putting the clips into their respective slots within the enclosure and pushing it up into place.
TO THE T-BAR ADAPTER (OPTIONAL)
- Screw the surface adapter (optional) (4 screws) directly onto the T-Bar adapter(optional).
- Screw the unit to the surface adapter (optional) (4 screws).
- Install the grille by putting the clips into their respective slots within the enclosure and pushing it up into place.
ELECTRICAL CONNECTION
The ground fault protection connection must be made by connecting the green wire coming from the circuit breaker panel to the green screw located inside the junction box of the heater.
N.B. All electrical connections must be made by a qualified electrician, according to the electrical and building codes effective in your region.

OPERATION
This heater must be controlled by a wall thermostat or a 60-minute timer (# FD60MCW70). The voltage must correspond to the technical specifications of the heater (thermostat and timer not included).
MAINTENANCE
N.B. In order for the warranty to be valid, the unit must be cleaned regularly. WARNING: if the unit is equipped with a circuit breaker, the power supply at the main breaker must be turned off before removing the cover of the junction box or to open or close the unit’s circuit breaker.
Cut off power supply at circuit breaker/fuse before cleaning this heater. Use a soft rag for dusting. When cleaning, use only a damp rag and non-abrasive dish soap. Do not use abrasive or chemical cleaners because they may damage the finishing. If the unit is used in a very dusty location, use a vacuum brush to remove dust and other foreign objects from the grilles. Note that cigarette smoke could yellow the discharge grille and that the best way to prevent it is to clean the unit on a regular basis.
Do not use cleaning products identified with these symbols: 
N.B. Note that there is electrical current linked to the unit even if the thermostat is set off. This means that there is a risk of electric shock as long as the unit is energized.
TROUBLESHOOTING
| PROBLEM | DEFECTIVE PART OR PART TO CHECK |
| The unit does not work | • Defective thermostat/timer or wrong thermostat/timer setting • Open circuit breaker or fuse • The thermal protection has been activated • Faulty connections |
| The unit runs continuously | • Defective thermostat/timer or wrong thermostat/timer setting • Heat losses higher than the unit capacity |
| The enclosure is extremely hot | • Defective thermal protection • Blocked air vents • Defective motor |
| The unit cycles under control of the thermal protection (overheat indicator) | • Blocked air vents • Defective motor |
| Overheating | • Defective thermostat/timer or wrong thermostat/timer setting • Defective motor |
| The breaker trips when the heater is turned on | • Faulty connections • Voltage higher than that written on the nameplate |
| Elements are on, but the motor does not work | • Defective motor |
N.B. If you do not solve the problem after checking these points, cut off the power supply at the main electrical panel and contact our customer service (see the “Limited warranty” section to obtain the phone numbers).
REPLACEMENT COMPONENT LIST
| REF. # | PART # | DESCRIPTION | REF. # | PART # | DESCRIPTION | |
| 1 | ELF-SK001 | ELEMENT (KIT) 500 W-120 V / 2000 W-240 V / 1500 W-208 V | 1 | ELF-SK016 | ELEMENT (KIT) 500 W-277 V | |
| 1 | ELF-SK002 | ELEMENT (KIT) 500 W-240 V | 1 | ELF-SK017 | ELEMENT (KIT) 500 W-208 V | |
| 1 | ELF-SK003 | ELEMENT (KIT) 1000 W-240 V / 750 W-208 V | 1 | ELF-SK018 | ELEMENT (KIT) 1000 W-208 V | |
| 1 | ELF-SK004 | ELEMENT (KIT) 1000 W-120 V | 1 | ELF-SK019 | ELEMENT (KIT) 1500 W-277 V | |
| 1 | ELF-SK005 | ELEMENT (KIT) 1000 W-347 V | 1 | ELF-SK020 | ELEMENT (KIT) 1250 W-208 V | |
| 1 | ELF-SK006 | ELEMENT (KIT) 1250 W-240 V | 2 | M-SK00A* | GRILLE | |
| 1 | ELF-SK007 | ELEMENT (KIT) 1500 W-120 V | 3 | MO-008 | MOTOR/BLOWER (240 V) (FOR 2000 W MODELS) | |
| 1 | ELF-SK008 | ELEMENT (KIT) 1500 W-240 V | 3 | MO-009 | MOTOR/BLOWER (120 V) | |
| 1 | ELF-SK009 | ELEMENT (KIT) 2000 W-208 V / 750 W-120 V | 3 | MO-032 | MOTOR/BLOWER (240 V) (FOR 1500 W AND LESS MODELS) | |
| 1 | ELF-SK010 | ELEMENT (KIT) 2000 W-347 V / 1250 W-277 V | 4 | PROT-005 | THERMAL PROTECTION (AUTO.) (L175) | |
| 1 | ELF-SK011 | ELEMENT (KIT) 1000 W-600 V / 1500 W-600 V / 2000 W-600 V | 5 | SKTBA | SUSPENDED CEILING ADAPTATOR | |
| 1 | ELF-SK012 | ELEMENT (KIT) 750 W-240 V / 1000 W-277 V / 1500 W-347 V | 6 | SKSA | SURFACE ADAPTER120, 208 AND 240 V (OPTIONAL) | |
| 1 | ELF-SK013 | ELEMENT (KIT) 1250 W-120 V | 7 | ST-017 | THERMOSTAT SP | |
| 1 | ELF-SK014 | ELEMENT (KIT) 1250 W-347 V / 750 W-277 V | FD60MCW70 | 60-MINUTE TIMER (WHITE) | ||
| 1 | ELF-SK015 | ELEMENT (KIT) 2000 W-277 V | ||||

LIMITED WARRANTY
This limited warranty is offered by Stelpro Design inc. (“Stelpro”) and applies to the following products made by Stelpro: models SKI. Please read this limited warranty carefully. Subject to the terms of this warranty, Stelpro warrants its products and their components against defects in workmanship and/or materials for the following periods from the date of purchase: 5 years. This warranty applies only to the original purchaser; it is non-transferable and cannot be extended.
CLAIM PROCEDURE
If at any time during the warranty period the unit becomes defective, you must cut off the power supply at the main electrical panel and contact 1) your installer or distributor, 2) your service center or 3) Stelpro’s customer service department. In all cases, you must have a copy of the invoice and provide the information written on the product nameplate. Stelpro reserves the right to examine or to ask one of its representatives to examine the product itself or any part of it before honoring the warranty. Stelpro reserves the right to replace the entire unit, refund its purchase price or repair a defective part. Please note that repairs made within the warranty period must be authorized in advance in writing by Stelpro and carried out by persons authorized by Stelpro.
Before returning a product to Stelpro, you must have a Stelpro authorization number (RMA). To obtain it, call the customer service department at: 1-800-363-3414 (electricians and distributors – French), 1-800-343-1022 (electricians and distributors – English), or 1-866-766-6020 (consumers). The authorization number must be clearly written on the parcel or it will be refused.
CONDITIONS, EXCLUSIONS AND DISCLAIMER OF LIABILITY
This warranty is exclusive and in lieu of all other representations and warranties (except of title), expressed or implied, and Stelpro expressly disclaims and excludes any implied warranty of merchantability or implied warranty of fitness for a particular purpose.
Stelpro’s liability with respect to products is limited as provided above. Stelpro shall not be subject to any other obligations or liabilities whatsoever, whether based on contract, tort or other theories of law, with respect to goods or services furnished by it, or any undertakings, acts or omissions relating thereto. Without limiting the generality of the foregoing, Stelpro expressly disclaims any liability for property or personal injury damages, penalties, special or punitive damages, damages for lost profits, loss of use of equipment, cost of capital, cost of substitute products, facilities or services, shutdowns, slowdowns, or for other types of economic loss or for claims of a dealer’s customers or any third party for such damages. Stelpro specifically disclaims all consequential, incidental and contingent damages whatsoever.
This warranty does not cover any damages or failures resulting from: 1) a faulty installation or improper storage; 2) an abusive or abnormal use, lack of maintenance, improper maintenance (other than that prescribed by Stelpro) or a use other than that for which the unit was designed; 3) a natural disaster or an event out of Stelpro’s control, including, but not limited to, hurricanes, tornadoes, earthquakes, terrorist attacks, wars, overvoltage, flooding, water damages, etc. This warranty does not cover any accidental or intentional losses or damages nor does it cover damages caused by negligence of the user or owner of the product. Moreover, it does not cover the cost of disconnection, transport, and installation.
The warranty is limited to the repair or the replacement of the unit or the refund of its purchase price, at the discretion of Stelpro. Any parts replaced or repaired within the warranty period with the written authorization of Stelpro will be warranted for the remainder of the original warranty period. This warranty will be considered null and void and Stelpro will have the right to refuse any claims if products have been altered without the written authorization of Stelpro and if the nameplate numbers have been removed or modified. This warranty does not cover scratches, dents, corrosion or discoloration caused by excessive heat, chemical cleaning products and abrasive agents. It does not cover any damage that occurred during the shipping.
Some states and provinces do not allow the exclusion or limitation of incidental or consequential damages and some of them do not allow limitations on how long an implied warranty lasts, so these exclusions or limitations may not apply to you. This warranty gives you specific legal rights and you may have other rights which vary from state to state or from province to province.



The enclosure of the unit must rest flush with the finished ceiling so that the clips on the grille extend far enough to properly hold the grille in place. To adjust the level of the enclosure, you must move the interchangeable shoulders either up or down and screw them in the proper adjustment holes. (See the ILLUSTRATION OF THE ADJUSTMENT HOLES)





















