SE – 566 80 Habo
Zoft LED
100 Zoft LED

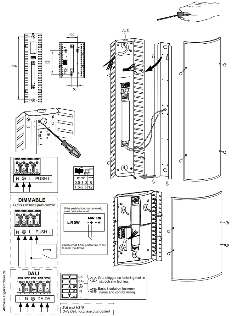
It is appropriate that this information is passed on to the users of the installation.
The light source and control gear shall only be replaced by the manufacturer or its designated person.

SE – 566 80 Habo
Zoft LED

It is appropriate that this information is passed on to the users of the installation.
The light source and control gear shall only be replaced by the manufacturer or its designated person.
Download manual
Here you can download full pdf version of manual, it may contain additional safety instructions, warranty information, FCC rules, etc.