MEMPHIS BGBS26 Stainless Steel Built-in-Grill User Manual
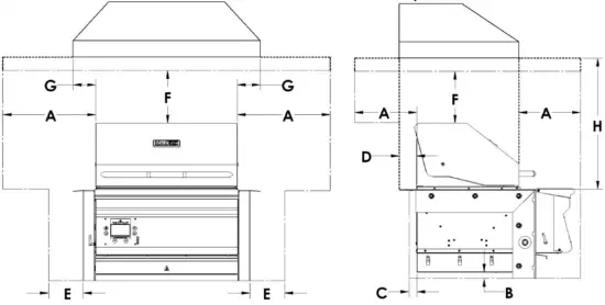
Clearance To Combustible Materials
WARNING: The structure and surrounding objects MUST maintain the specified minimum clearance to combustible materials.
Built-in structures constructed of wood or other combustible materials may require the use of the OPTIONAL Built- In Heat Shield Kit to maintain the required clearance to combustible materials. The grill may be supported by either the three support brackets, or the four leveling feet. Please note that there must be at least 3/8” (1.0cm) clearance between the bottom of the grill and the structure.
Maintain the clearance to combustible materials as specified below.
| DIM. | DIMENSIONS OS (US) | UNIT WITH OPTIONAL HEAT SHIELD KIT (VGBHSK) |
| A | 18″ | 18″ |
| B | 3/8″ | 3/8″ |
| C | 2″ | 2″ |
| D | 3.5″ | 3.5″ |
| E | 18″ | 1/8″ |
| F | 30″ | 30″ |
| G | 3″ | 3″ |
| H | 30-44″ | 30-44″ |
| DIM. | DIMENSION METRIC | UNIT WITH OPTIONAL HEAT SHIELD KIT (VGBHK) |
| A | 45.8 cm | 45.8 cm |
| B | 1.0 cm | 1.0 cm |
| C | 5.1 cm | 5.1 cm |
| D | 8.9 cm | 8.9 cm |
| E | 45.8 cm | 0.5 cm |
| F | 76.2 cm | 76.2 cm |
| 3 | 7.62 cm | 7.62 cm |
| H | 76.2-111.76 cm | 76.2-111.76 cm |
A MAJOR CAUSE OF FIRES IS FAILURE TO MAINTAIN REQUIRED CLEARANCES (AIR SPACES) TO COMBUSTIBLE MATERIALS. IT IS OF UTMOST IMPORTANCE THAT THIS PRODUCT BE INSTALLED ONLY IN ACCORDANCE WITH THESE INSTRUCTIONS
Built-In Grill Island Dimensions
WARNING: See clearance to combustible materials, when designing and constructing a built-in island. Built-In islands must be built to the specifications listed below.
The owner and/or builder are responsible for consulting local, county and state building codes for securing any necessary building permits before construction. NOTE: Construction codes vary from locality to locality.
NOTE: Dimensions are to the finished surfaces. Grill cavity surfaces are to be plumb and level to ensure a proper fit.
| BGBS26 BEALE BUILT-IN | ||
| DIMENSION | TOLERANCE | |
| A | 30 1/4″ | ± 1/8” |
| B | 16 3/4” | ± 1/8” |
| C | 24 1/2” | ± 1/8” |
| D | 3 1/2″ MIN | |
| BGBS26 BEALE BUILT-IN | ||
| DIMENSION | TOLERANCE | |
| A | 76.9 cm | ± .30cm |
| B | 42.6 cm | ± .30cm |
| C | 62.9 cm | ± .30cm |
| D | 8.9 cm MIN | |


HARDWARE COMPONENTS
| DESCRIPTION/PART NO. | QTY: | PICTURE |
| Grate Kit VG4409 | 1 | ![]() |
| Savorizer BG2700 | 1 | ![]() |
| Bracket Bolt DS2311 | 10 | ![]() |
| Antenna VG9025 | 1 | ![]() |
| #10 Screw (SS) DS2186 | 2 | ![]() |
| Concrete Anchor DS2349 | 2 | |
| #10 SS PH SCREW DS2350 | 2 |
| DESCRIPTION/PART NO. | QTY: | PICTURE |
| Left Mounting Bracket BG8002 | 1 | ![]() |
| Right Mounting Bracket BG8003 | 1 | ![]() |
| Rear Mounting Bracket BG8001 | 1 | |
| OPTIONAL | ||
| HEAT SHIELD VGBHSK | 2 | |
| #10 SCREW(BLK) DS2185 | 4 | ![]() |
TIME REQUIRED: 1.5 Hours
TOOLS REQUIRED
- 3/8” Open End Wrench, Socket or Adjustable Wrench
- Phillips Screw Driver or Drill
- Snips or Heavy Duty Scissors
- Cut Resistant Gloves

INSTALLATION RECOMMENDATIONS
OUTDOOR VENT HOOD
Review diagram below for minimum vent hood dimensions. The edge of the hood extends a minimum of 3″ past the side edges of the cook surface and 3 1/2″ from the back. The bottom of the hood is located 30″ – 44″ above the cook surface. The blower CFM rating is a minimum of 1,200 cubic feet per minute. Overall minimum coverage area for hood is 31 1/2″ X 22 1/4″.
DEDICATED ELECTRICAL CIRCUIT WITH GFCI PROTECTED OUTLET
A dedicated GFCI protected electrical circuit is required for all Memphis Wood Fire Grills and controller systems. This circuit should be installed by a Certified Electrician. Although the Memphis Grill only uses about 4 amps of current during startup, any other equipment (refrigerator, pool pump, fountains, ect.) that have high current draw, consistently or intermittently from the same electrical circuit can cause potential issues and/ or interruptions with the performance of the grill. We recommend an on/off switch to be installed in this circuit so that the grill can be easily disconnected from power when not in operation. This will prevent the buildup of interference that could affect the controller’s operation.
INSTALLATION STEP 1: UNPACKING
Grill requires (2) two people for safe assembly Please note that during shipping some movement may have taken place, so a complete visual inspection is required. Be sure to inspect entire grill after removing the protective shipping carton. Report any damage to your local dealer immediately. Shipping damage is not covered under warranty. Some surfaces may be sharp so wear gloves when assembling. Do not plug in the grill until it’s fully assembled, the plastic protective film is removed from all stainless steel surfaces, and you’re ready to cook. See: “startup procedure” for more details.
- Remove the Savorizer (item 2) and included grates (item 1) from inside the grill hood. To remove the Savorizer, cut the 4 zip ties holding it in place. Set aside grates and Savorizer until needed.

- Peel all plastic protective film from the grill. Be diligent about inspection as the protective film will be hard to remove once a grill is installed and first burned.
INSTALLATION STEP 2: WIRING
3) Install the included antenna into its bulk head. The bulk head is located on the left panel of the grill (Looking at the grill from the front).
INSTALLATION STEP 3: BRACKETS
Follow the assembly steps listed below, prior to installation of the unit. The unit is mounted by the support brackets (items 8, 9 & 10). Refer to page 4 for item part numbers, descriptions and quantities.
4) Remove the ash/grease drawers from the unit.
5) Fasten the left and right support brackets (items 8 and 9) to the unit using the ten 1/4”-20 stainless steel hex bolts (item 3) .
6) Fasten the rear support bracket (item 10) to the left and right support brackets (items 8 and 9) with two 10-24 x ½” long stainless steel screws (item 5).
INSTALLATION STEP 4: GRILL MOUNTING
7) Place the unit into the island, and position it to the desired depth. Ensure that the vent holes in the support brackets are unobstructed.
8) Locate the two mounting holes found in the back of the left and right support brackets (items 8 & 9), and mark the hole locations onto the island’s countertop.
9) Carefully slide the unit out of the island, exposing the marked holes on the countertop.
10) Drill two 5/16” holes into the countertop using a drill bit appropriate for the material of the countertop.
11) Insert two concrete anchors (item 8), into the two 5/16” holes.
12) Slide the unit back into position, lining up the mounting holes in the left and right support brackets with the concrete anchors.
13) Fasten the unit into place using the two 1¾” long stainless steel screws (item 9). Do not over-tighten.
INSTALLATION STEP 5: FINAL ASSEMBLY
Refer to page 4 for item part numbers, descriptions and quantities
14) Insert the ash/grease drawer back into the unit.
15) Place Savorizer (item 2) onto the left and right lower brackets found inside the unit.
16) Place the four lower cook grates (item 1) onto the front and rear supports. Place the long cook grate (item 1) onto the left and right upper brackets found inside the unit.
Vent holes on the mounting brackets must remain unobstructed.
Refer to the manual for first time use instructions.
MEMPHIS WI-FI SET UP GUIDE
- A Wi-Fi connection can be set up in minutes on your Memphis Wood Fire Grill. First power the grill on pressing the upper left button
on the controller, and from the home screen press the lower left button “MENU”, then the bottom right button “DOWN ARROW”, and then the upper right button “WIFI”. - The “WIFI” screen on your grill contains everything needed to connect your grill to a WiFi network. First, you will notice that Wi-Fi is OFF, this is enabled by default for users not wishing to use Wi-Fi. To turn Wi-Fi ON, simply press the lower left button “TURN ON WIFI”

- Next, press and release the upper right button “SETUP” and the grill will start broadcasting the Memphis Grill network. Once the status field displays “CONNECTING” the grill is ready to be connected to your network via any Wi-Fi compatible device.
ON YOUR PHONE OR TABLET: (UNDER WIFI SETTINGS)
- Simply go to available Wi-Fi networks on your phone or tablet and select the network “Memphis Grill xx:xx”
NOTE: The xx:xx characters will be your own unique combination of letters and numbers, and will match the last 4 digits shown on the grill controller next to MAC.
- Once selected, the grills network will automatically bring you to the provisioning page where you will connect your grill to your desired Wi-Fi network. Find all connectible networks in the grills range by hitting the button labeled “Search”. Once displayed you can click and release the desired network name and it will auto populate the “SSID” with your selection. Now you can enter your desired networks password. If the network does not require a password, leave the password field blank.
NOTE: 5.0 GHz networks will not show in the list of available networks as the grill cannot connect to them.
The network name and password cannot contain any non alphanumeric characters ie. #, !, ?,
The Wi-Fi signal strength at the grill is indicated in the box to the far right of the network name. This will be a negative number ranging from 0 to -100. 0 being the best and -100 being the worst.
Some devices will not bring up the provisioning page automatically. Once your device is connected to the grills network, go into your phones web browser and visit www.wificonfig.com to manually bring up the provisioning page. - Click “Connect” and the page will automatically close
NOTE: Your device may momentarily display an error message. This indicates that the grill has disconnected from your phone and is attempting to connect to your desired network.
- The Wi-Fi setup is now complete. The status on the controller should now read “WIFI CONNECTED”. The time period from hitting “CONNECT” to “WIFI CONNECTED” can take up to 3 minutes based on connection strength. If the grill does not connect please refer to www.memphisgrills.com/wi-fi-setup for troubleshooting.

- Download our app MEMPHIS GRILLS from the IOS App Store or Google Play Store
- Enter a valid email into the “CUSTOMER ID” field, and create a password that you will use to login to the app. Then click “Create an Account” this will bring up our cloud providers Terms of Service, click “Accept”. You will then receive an email confirmation link at the email used to sign up from Grovestreams who is our cloud provider.
NOTE: The email address you used to confirm your Memphis Grills account will become your Customer ID when logging into the app. This email can take up to 15 minutes to appear in your inbox, and may appear in your junk or spam folders.
- Once the confirmation link is followed from your email, return to the app.
- Once confirmed, login to the app again and you will be able to add your grill. Enter the exact MAC Address and Nickname shown on the grill controller including the colons.
Example: MAC: F8:F0:05:F4:A8:12
NOTE: There are only numerical zeros, fives, and ones in the MAC Address. Nickname is not case sensitive.
- If this is the first time adding the grill and the nickname shows Memphis on the grill it will ask for a new grill nickname. If the nickname on the grill is anything otherthan Memphis put that in as the grill nickname
NOTE: The grill nickname can only contain numbers and letters, NO spaces.
Wiring Diagram
NOTE: ALL TWO WIRE PAIRS FOR A SPECIFIC COMPONENT ARE REVERSABLE
Example: The auger motor wiring can have the either spade connector from its two wire pair attached to either terminal and the motor will function normally.
| Item # | NAME | Wire Identification | DESCRIPTION / INSTRUCTION |
|
1 | Auger Motor Wiring | 1x Black Wire, 1x White Wire Snap Disk Leads Extending from Auger Motor | Attach the white wire shown to one of the leads extending from the auger motor. Attach the black wire to the snap disk as shown. The 2nd lead extending from the auger motor attaches to the opposite side of the snap disk as shown. The snap disk is a thermal switch which will cut power to the auger motor in the event that its critical temperature is reached. |
| 2 | RTD Wiring | 1x Orange Wire, 1x Brown Wire | Attach both spade connectors to the leads extending from the RTD as shown above. |
| 3 | Grounding Wire | Green Wire | The connection point for the ground is located on the auger motor gearbox body as shown. |
| 4 | Ethernet Cable | Black Cable with Ethernet End | Attach the Ethernet cable to the terminal on the Wi-Fi card as shown. Ensure that the wiring does not interfere with the auger motor’s moving components. |
| 5 | Igniter Wiring | 1x Red Wire, 1x White Wire | Attach both spade connectors to the leads extending from the igniter. These leads will extend from next to the fan. |
| 6 | Fan Wiring | 1x Blue Wire w/ 2 spade ends, 1x White Wire w/ 2 spade ends | Attach the connections on this jumper to the two tabs located on the side of the fan housing. |
| 7 | USB Port | N/A | Used to update your grill, see the “Updating Controller Software” section of the main manual for information. |
| 8 | Meat Probe Wiring | 1x Red Wire 1x Black Wire, Wires twisted around each other | This terminal is used to connect the meat probes to the controller |
| 9 | 120/240 Select Jumper | 1x Black Wire | Used when changing the input voltage to the controller, see “120v to 240v Conversion” section of the main manual for information. |
| 10 | AC Load Wire from Filter to Controller | 1x Black Wire | Carries AC voltage from the filter to the control board, load wire. |
11 | AC Neutral Wire from Filter to Controller | 1x White Wire | Carries AC voltage from the filter to the control board, neutral wire. |
| 12 | Filter | N/A | Reduces electrical feedback. Line = Outlet Side, Load = Grill Side. L1 = Load L2= Neutral |
13 | MOV + Fuse Holder | 1x Red Wire 1x White Wire, Pair is joined in the middle with black shrink wrap. Fuse holder is cylindrical and white plastic. | A two wire component which has a ferrite choke to eliminate input electrical disturbances from the grid. Load and Neutral wires. Fuse holder that accepts |
CONTACT YOUR DEALER OR MEMPHIS GRILLS TECHNICAL SERVICE WITH ANY QUESTIONS.
TECHNICAL SERVICE NUMBER: 1-888-883-2260


































