Model Vektor ® -MH, Vektor ® -MD and Vektor® -MS
Laboratory Exhaust System
Installation, Operation and Maintenance Manual
Please read and save these instructions for future reference. Read carefully before attempting to assemble, install, operate or maintain the product described. Protect yourself and others by observing all safety information. Failure to comply with these instructions will result in voiding of the product warranty and may result in personal injury and/or property damage.
Vektor-MH, Vektor-MD, and Vektor-MS

General Safety Information
Only qualified personnel should install this fan system.
Personnel should have a clear understanding of these instructions and should be aware of general safety precautions. Improper installation can result in electric shock, possible injury due to coming in contact with moving parts, as well as other potential hazards. Other considerations may be required if high winds or seismic activity are present. If more information is needed, contact a licensed professional engineer before moving forward.
- Follow all local electrical and safety codes, as well as the National Electrical Code (NEC), the National Fire Protection Agency (NFPA), where applicable. Follow the Canadian Electrical Code (CEC) in Canada.
- The rotation of the wheel is critical. It must be free to rotate without striking or rubbing any stationary objects.
- Motor must be securely and adequately grounded.
- Do not spin fan wheel faster than maximum cataloged fan rpm. Adjustments to fan speed signifi cantly effects motor load. If the fan RPM is changed, the motor current should be checked to make sure it is not exceeding the motor nameplate amps.
- Do not allow the power cable to kink or come in contact with oil, grease, hot surfaces or chemicals. Replace cord immediately if damaged.
- Verify that the power source is compatible with the equipment.
- Never open access doors to a duct while the fan is running.
DANGER
Always disconnect power before working on or near a fan. Lock and tag the disconnect switch or breaker to prevent accidental power up.
CAUTION
When servicing the fan, motor may be hot enough to cause pain or injury. Allow motor to cool before servicing.
CAUTION
Precaution should be taken in explosive atmospheres.
Receiving
Vektor-MH, Vektor-MD and Vektor-MS fans are thoroughly inspected, test run at the factory, and shipped on a skid or packaged to minimize damage during shipment. Warranty period begins at the time of shipment. The transportation carrier has the responsibility of delivering all items in their original condition as received from the manufacturer. The individual receiving the equipment is responsible for inspecting the unit for obvious or hidden damage and recording any damage on the bill of lading before acceptance of the equipment. All claims (if necessary) shall be filed with the final carrier.
Unpacking
Verify that all required parts and the correct quantity of each item have been received, including accessory kit containing gasketing, etc. If any items are missing, report shortages to your local representative to arrange for obtaining missing parts. Sometimes it is not possible that all items for the unit be shipped together due to availability of transportation and truck space. Confirmation of shipment(s) must be limited to only items on the bill of lading.
Handling
The Vektor-MH, Vektor-MD and Vektor-MS laboratory exhaust system is shipped in subassembly sections for easy rigging and installation. Depending on the fan size, the sections can include: Blower Assembly, Stack Extension, Discharge Nozzle, and Bypass Air Plenum. The Vektor-MH, Vektor-MD and Vektor-MS are designed to be self-supporting and standing (without the use of guy wires) when assembled per the instructions provided within this manual. If additional components are supplied, contact factory or reference submittal if additional supports or guy wires are required. All subassembly sections have lifting points as shown.
Storage
Fans are protected against damage during shipment. If the unit cannot be installed and operated immediately, precautions need to be taken to prevent deterioration of the unit during storage. The user assumes responsibility of the fan and accessories while in storage. The manufacturer will not be responsible for damage during storage. These suggestions are provided solely as a convenience to the user.
INDOOR – The ideal environment for the storage of fans and accessories is indoors, above grade, in a low humidity atmosphere which is sealed to prevent the entry of blowing dust, rain, or snow. Temperatures should be evenly maintained between 30° and 110°F. (-1°C and 43°C). Wide temperature swings may cause condensation and “sweating” of metal parts. All accessories must be stored indoors in a clean, dry atmosphere.
Remove any accumulations of dirt, water, ice or snow and wipe dry before moving to indoor storage. To avoid “sweating” of metal parts allow cold parts to reach room temperature. To dry parts and packages use a portable electric heater to get rid of any moisture build up. Leave coverings loose to permit air circulation and to allow for periodic inspection.
The unit should be stored at least 3½ in. (89 mm) off the floor on wooden blocks covered with moisture proof paper or polyethylene sheathing. Aisles between parts and along all walls should be provided to permit air circulation and space for inspection.
OUTDOOR – Fans designed for outdoor applications may be stored outdoors, if absolutely necessary. Roads or aisles for portable cranes and hauling equipment are needed. The fan should be placed on a level surface to prevent water from leaking into the fan.
The fan should be elevated on an adequate number of wooden blocks so that it is above water and snow levels and has enough blocking to prevent it from settling into soft ground. Locate parts far enough apart to permit air circulation, sunlight, and space for periodic inspection. To minimize water accumulation, place all fan parts on blocking supports so that rain water will run off.
Do not cover parts with plastic fi lm or tarps as these cause condensation of moisture from the air passing through heating and cooling cycles. Fan wheels should be blocked to prevent spinning caused by strong winds.
Inspection and Maintenance during Storage
While in storage, inspect fans once per month. Keep a record of inspection and maintenance performed. Failure to inspect and maintain during storage may void the warranty.
If moisture or dirt accumulations are found on parts, the source should be located and eliminated. At each inspection, rotate the wheel by hand ten to fifteen revolutions to distribute lubricant on motor and fan bearings. Bearings should be lubricated at three month intervals. The quantity of grease should be per the lubrication label.
If paint deterioration begins, the affected areas should be touched-up and repainted. Fans with special coatings may require special techniques for touch-up or repair.
Machined parts coated with rust preventive coating should be restored to good condition promptly if signs of rust occur. Immediately remove the original rust preventive coating with petroleum solvent and clean with lint-free cloths. Polish any remaining rust from surface with crocus cloth or fi ne emery paper and oil. Do not destroy the continuity of the surfaces. Wipe clean thoroughly with Tectyl ® 506 (Ashland Inc.) or the equivalent. For hard to reach internal surfaces or for occasional use, consider using Tectyl ® 511M Rust Preventive or WD-40® or the equivalent.
REMOVING FROM STORAGE
As fans are removed from storage to be installed in their final location, they should be protected and maintained in a similar fashion, until the fan equipment goes into operation.
Prior to assembly and installation of the fan and system components, inspect the fan assembly to make sure it is in working order.
- Check all fasteners, set screws on the fan, wheel, bearings, drive, motor base and accessories for tightness.
- Rotate the fan wheel(s) by hand and assure no parts are rubbing. Access to the wheel is obtained through a bolted panel located on the side of the fan housing.
- Ensure proper wheel settings for radial gap and alignment (see page 16).
General Information
To ensure a successful installation, the instructions in this manual should be read and adhered to. Failure to comply with proper installation procedures may void the warranty.
Unit and System Identifi cation Tags
Each fan has a permanently affixed manufacturer’s engraved aluminum nameplate containing the model number and individual serial number.
The tag shown is an example of an identification nameplate on the fan. The information provides general details about the fan, as well as containing specific information unique to the unit. When contacting your local manufacturer’s epresentative with future needs or questions, please have the information on this label available. Tags are mounted in an area which is clearly visible, usually on the side of the fan housing.

Fan systems may arrive in component pieces due to shipping restrictions. Individual components of a system have matching identification tags which should be used to identify and assemble the complete system. Assembling systems with different identifi cation tags can cause reductions in the fan(s) performance. Prior to fully assembling and installing the Vektor-MH, Vektor-MD or Vektor-MS fans, inspect bypass air plenums and the fan assembly to make sure they are in working order.
Pre-Installation Information
Before installation, it is important to be certain the mounting surface will bear the operating weight of the unit and have adequate structural stiffness to inhibit structural resonance in the roof and supporting structure. The supporting structural elements should be designed such that the fi rst natural frequency is a minimum of 120% of the maximum operating speed of the fan and accounts for the inertia from the rotating fan rotor mass. Weak or undersized structural soundness may impact fan performance. For proper unit operation, it is also important that it be operated in a completely level position.
For further details on safety practices involving industrial and commercial fans, please refer to AMCA Publication 410.
Electrical Disconnects
All fan motors should have disconnects located in close visual proximity to turn off electrical service. Service disconnects shall be locked-out when maintenance is being performed.
Moving Parts
All moving parts must have guards to protect personnel. Refer to local codes for requirements as to the number, type and design. Fully secure fan wheel before performing any maintenance. The fan wheel may start “free wheeling” even if all electrical power has been disconnected. Before the initial start-up or any restart, check the following items to make sure that they are installed and secure.
- Do not spin fan wheel faster than the maximum cataloged fan rpm.
- Adjustments to fan speed significantly affects motor load. If the fan RPM is changed, the motor current should be checked to make sure it is not exceeding the motor nameplate amps.
Guards (Motor Cover, Weatherhoods, Actuator Cover)
Do not operate fans without proper protective devices in place. Failure to do so may result in serious bodily injury and property damage. Check local codes to ensure compliance for all protective devices.
Plenum Access Doors
Before opening access doors, ensure the fan wheel has stopped moving and that the wheel has been secured from being able to rotate. Do not operate fan without access door in its fully closed position.
Air Pressure and Suction
In addition to the usual hazards associated with rotating machinery, fans also create a dangerous suction at the inlet. Special caution needs to be used when moving around a fan, whether it is in operation or not. Before start-up, make sure the inlet area is clear of personnel and loose objects.
System Components
Vektor-MH Assembly View – Belt Drive
Belt and direct drive units share similar system components and assembly configuration.

NOTE
Actual component pieces may vary from these images. Refer to your project submittal drawing.

NOTE
Chamber caps installed by the factory should remain in place for proper fan performance and operation.
Specifics on Vektor-M series fans regarding chamber cap(s):
| Vektor-MH | Always one cap on the blower housing. | |
| Vektor-MD | No silencer or stack extension | No chamber cap. |
| Stack extension | One chamber cap on blower housing and one on nozzle. | |
| Silencer without center bullet | One chamber cap on blower housing and one on nozzle. | |
| Silencer withcenter bullet | No chamber cap. | |
| Vektor-MS | Always one cap on the blower housing. | |

Vektor-MD Assembly View – Direct Drive
Belt and direct drive units share similar system components and assembly configuration.

Vektor-MS Assembly View – Direct Drive
Belt and direct drive units share similar system components and assembly configuration.

Roof Curb and Mounting Details
Refer to VKCURB Curb Assembly Instructions #475588 for additional details. Instructions are shipped with the roof curb or can be found online at greenheck.com under the library section.

When mounting the fan assembly to structures other than the VKCURB or VKERS-CURB, it is critical that a structural engineer be consulted to validate the structure’s capability to bear the operating weight and provide adequate structural stiffness to avoid structural resonance. The supporting structural elements should be designed such that the fi rst natural frequency is a minimum of 120% of the maximum operating speed of the fan and accounts for the inertia from the rotating fan rotor mass. Weak or undersized structural support may impact fan performance or facility occupant comfort and system longevity. The structure must support the entire perimeter and any cross member of the bypass air plenum or fan.
NOTE
Steel, concrete or wood roof support is per structural engineer and in accordance with load requirements and applicable building codes.
The figures below illustrate three common methods used to install Vektor systems. Methods used to attach a Vektor unit are dependent on local codes, roof construction design and roof construction materials. Consult an architect or structural engineer for proper means of attachment.

Bypass Air Plenum – Rigging, Lifting and Installation
Prior to lifting any components, verify the weights on the project submittal drawings for each component or contact factory. Do not lift weights beyond the capacities of the on-site lifting equipment. Proper handling of the equipment is critical to avoid damage to the unit.
Prior to setting the bypass air plenum (BAP), secure 1/4-inch thick by 3/4-inch wide EPDM gasket (provided) around the perimeter of the roof curb top edge, if mounting on a roof curb.
Bypass Air Plenum – Rigging and Lifting
Each section will have four (4) lifting points. All lifting points must be used when lifting. Spreader bars of sufficient length need to be used to prevent damage to BAP walls and components mounted to the BAP.

- Always use all lifting points provided by manufacturer. Failure to do so may result in dropping the BAP and voiding the warranty. Lifting points are located around the perimeter of each section.
- A spreader bar must be used when lifting each section to distribute theweight evenly and to prevent the unit from being overtorqued. Avoid unnecessary jarring or rough handling.
- Care must be taken to keep the unit in the upright position during rigging.
- Care must be taken to not damage the watertight seams in the unit casing.
- Avoid damage to the curb and curb gasketing when rigging onto a curb.
- Only use trained professional riggers when moving equipment.

Two fan bypass air plenum shown. Plenums may be single sections or up to six in length
NOTE
Components that are shipped separately should be lifted separately due to weight and dimensions.
Bypass Air Plenum Installation
Bypass air plenums (BAP) are delivered fully assembled unless shipping restrictions require multiple sections. If delivered in sections, all materials required to join plenum sections together are provided.
Bypass air plenums are modular in construction and can be disassembled to provide allowances for lower on-site lifting capacities. Plenum sections are joined using stainless steel fasteners. These are removed to separate sections for lifting purposes. Save hardware as these will be required to join the BAP sections together again.
If moving separate sections onto a roof curb or support structure, each section should be joined to its mating section after moving into position and before lifting any additional section(s) into position. Steps for joining multiple BAP sections together:
- Lift and place first BAP section making sure that mounting holes are positioned with curb mounting holes or to structure BAP will be secured.
- Attached provided gasket to plenum section using the pattern shown in the image.
- Ensure bolts are removed from both mating sections to being joined together. Plenum will ship with hardware in one section’s bolt holes or were removed to disassemble BAP to reduce lifting load.
- Lift and place next section into position using similar lifting procedure.
- Align holes between two mating sections.
- Use fasteners (provided) to join the two sections together, this will involve utilizing the nutserts in each section on the inside perimeter. The fasteners are tightened until the sections are pulled together and the gasket material is compressed.
- Caulk joint (provided) on the top and two sides between sections for enhanced water protection.
- Repeat steps 1 – 7 until all plenum sections are lifted and joined together.
Any side panels removed to gain access to the interior of the plenum should be reattached.

Securing the Bypass Air Plenum
After bypass air plenum (BAP) has been lifted into position, plenum should be secured to roof curb, structural steel or concrete pad. Bottom of the BAP has a removable skirt section with pre-punched holes. These holes will align with holes and nutserts in the roof curb if the roof curb was provided by same manufacturer. If the roof curb is from another supplier use the holes in the skirt as a template.
Allow gasketing to compress before securing. When securing BAP to curb install using moly-coated 316 stainless steel screws (provided) in all holes.
If BAP is not being mounted on a roof curb, it can be secured to either structural steel or concrete pad. Full perimeter and cross support under the BAP is required. Method used to secure the BAP to either structural support(s) or concrete pad is determined by site or structural engineer. If BAP is welded to support structure, repair the area where coating was burnt off. See coatings repair section of this manual for details involving touch-up of damaged surfaces. Mounting the BAP to roof curbs from manufacturers other than Greenheck Fan Corporation or not following proper mounting instructions may impact fan performance and void warranty.
Fans – Rigging, Lifting and Installation
CAUTION
Fans should never be lifted by the shaft, motor, motor cover or accessories.
Prior to setting fan(s) on plenum, place 1/4-inch thick x 3/4-inch wide EPDM gasket around the perimeter of top edge of BAP where fans mount, adhesive side down (gasket provided).
Fans – Rigging and Lifting
Fans are to be rigged and moved by the lifting points provided or by the skid when a forklift is used. Location of lifting points varies by model and size. Handle in such a manner as to keep from scratching or chipping the coating. Damaged fi nish may reduce ability of fan to resist corrosion. See coating repair section of this manual for details involving touch-up of damaged surfaces. Scratches and chipped paint are not covered by warranty.
Vektor-MD fans size 40 and larger and all MH and MS fans are shipped with the nozzle separate from the main housing. For these sizes the nozzle should be lifted separate from the fan. For MD models with the nozzle attached the main fan housing can be lifted using the lifting points on the nozzle.
- Use standard lifting and rigging practices.
- ALL lifting points on each component must be utilized at the same time.
- Fan to be kept level during lifting and installation.
Vektor MD – sizes 36 and smaller

Vektor MD – sizes 40 and greater
Vektor MH and MS – all sizes

Fan Housing Installation
Lower Vektor fan housing into place. Allow gasket to become compressed before securing to plenum.
Install moly-coated 316 stainless steel screws (provided) in all holes in plenum cap.
Nozzle and Wind band Lifting and Installation for Vektor-MD

Vektor MD – sizes 36 and smaller, nozzle is attached to the fan housing
Using the wind band lifting points, lift and place over the nozzle attached to the fan housing discharge. The wind band has support brackets welded around the interior perimeter. Align the wind band support bracket bolt holes with the bolt holes in the nozzle. Using the provided moly-coated 316 stainless steel bolts and nuts, securely attach these pieces together.
Vektor MD – sizes 40 and greater, wind band and nozzle ship as individual pieces
Using the nozzle lifting points, lift and place over the fan discharge. Secure nozzle using moly-coated stainless steel hardware (provided). Align support bracket holes with bolt holes in the nozzle. Attach wind band using the provided moly-coated 316 stainless steel bolts through the support brackets welded to the inside of the wind band.
Silencer and Stack Extension Lifting and Installation for Vektor-MH / Vektor-MD

Systems supplied with inline discharge silencers always have the nozzle section ship separate. The silencer is installed between the fan housing and nozzle.
Lift the silencer with provided lifting points. When systems are supplied with silencers, guy wires or independent supports are recommended (by others). Refer to project specific submittal drawings for details.
Nozzle Lifting and Installation for Vektor-MH
Using the nozzle lifting points, place nozzle over blower discharge, aligning support bracket holes with bolt holes in blower housing. Attach nozzle to blower discharge using moly-coated 316 stainless steel bolts and nuts provided through the flange.

Nozzle Lifting and Installation for Vektor-MS
Using the nozzle lifting points, place nozzle over blower discharge, aligning support bracket holes with bolt holes in blower housing. Attach nozzle to blower discharge using moly-coated 316 stainless steel bolts and nuts provided through the flange.
Weather hood Installation
Shipping constraints may require weather hoods to be delivered separate from the BAP. The weather hood bolt hole pattern matches the side panel bolt pattern. Use supplied hardware to secure the weather hood to the BAP over the bypass air damper.

Duct Connections to the Bypass Air Plenum (BAP)
Connecting primary inlet exhaust air ducts is allowed through the roof curb or through one or more of the side access panels. To reduce the potential for system effects in the plenum, the duct connection should be sized to have no more than a maximum air velocity of 1500 fpm when entering. Higher velocities may impact fan performance and void warranty. When attaching ductwork to the plenum, care should be taken to ensura tight fit and proper seal to prevent leakage from the contaminated airstream.
Side Inlet Duct Connections
Ductwork that has a different size than the removable access panel(s) can either have a transition to the plenum’s opening size or the access panel can be field modified by cutting an opening to the size of the ductwork.
Bottom Inlet Duct Connections
Bottom inlet duct connects should be made by attaching the duct to the inside panel edge of the plenum. Ducting to multiple fan plenums may either be split below the roof level and connected to duct drops from the inside the plenum or having the ducting notched for fitting around roof curb and plenum cross support members.

Plenum bottom section view for single fan system. Repeated for multiple fan plenums.
Duct connections are to be sealed from air leakage and water penetration.
Plenum Drainage Piping / Trap Detail (By Others)

There is a location for a pipe connection on each tubular fan housing and bypass air plenum. Each drain may need to be connected to a drainage system to ensure proper disposal of any water or condensate that may occur.
- Drain connections are 0.5 inch FNPT and 1.0 inch MNPT
- Installed piping to have a downward angle to allow for drainage
- Fill traps to recommended level before start-up
Note: A conservative method of trap design is to set N = total static pressure.
Positive Pressure Trap on Tubular Fan Housing

Negative Pressure Trap on Bypass Air Plenum

Check local codes for proper disposal of drain water which has been in contact with the exhaust air.
Bypass Air Plenum (BAP) and Isolation Damper Access and Actuator Mounting
Bypass Air Plenum
Depending on the configuration and intended operation of the system supplied, the plenum section may not have a weather hood and bypass damper. If the unit is intended to run at all times, in rare cases the fan may not include an isolation damper. Typically, systems that include a fan which is on standby will have one less weather hood and BAP damper assembly than plenum sections. Refer to submittal drawings for additional information.
Isolation Damper Access and Actuator Mounting
For all Vektor-M series units with a bypass air plenum and isolation damper, access to the isolation damper, actuator(s) (optional from factory) and voltage transformer (optional from factory) can be achieved through the removal of the front panel of the isolation damper cover. The cover is located on the side of the top plenum section. The entire isolation damper assembly can be slid out through the opening.
All Vektor-M systems are available with HCD isolation dampers to be utilized for low to high pressures.
Vektor-M, sizes 15 – 33, offer an additional option, the VCD dampers for lower pressure systems. To remove the VCD damper, the actuator must first be removed from the front plate. The HCD damper can be pulled out without removing the actuator.

Bypass Damper Access and Actuator Mounting
For Vektor fans with bypass air, access to the bypass air damper and actuator (optional from factory) is gained through the removal of the weatherhood or bypass damper actuator access door on the side of the weatherhood.
NOTE
If the units were not supplied with optional actuators, the dampers will have an extended jackshaft for field mounting a customer supplied actuator.
Field Coating Touch-Up for Scratched Areas
Standard coating and color is LabCoat™ RAL 7023 Concrete Grey.
Failure to perform touch-ups may result in rust or corrosion and accelerate the fade in color and is not covered under warranty.
TOUCH-UP PAINT REPAIR KIT CONTENTS
- One Zinc Clad Aerosol Can
- One pint (recoat epoxy primer grey) with one pint (recoat epoxy primer catalyst)
- One quart H.S. Polyurethane
- One Scotch-Brite scratch pad
- Two 1-1/2 inch wide paint brushes
- Four pint-sized empty cans for mixing
- One quart-sized empty can for mixing
- Zinc repair instructions
- MSDS sheets
NOTE
While the manufacturer provides heavy-duty, quality products for marine environments, routine paint touch-ups may be required in coastal regions where salt or marine air could damage the coating. The severe environment will accelerate the damage from any scratches or chips and it is recommended that those be repaired immediately.
To order a coating repair kit, please reference part number HAZ2597 PNT FIELD REPAIR KIT, RAL7023 CONCRETE GREY. Please contact factory with your fan’s serial number for colors other than our standard.
Electrical Connections
Before electrical connections are made, the supply voltage, phase and ampere capacity must be checked for compatibility with the fan motor. In addition, the supply wiring must be properly fused and conform to local and national electrical codes. If the unit is supplied with a safety disconnect switch, ensure proper wiring to the fan motor. Be sure the disconnect is switched to the “OFF” position before connecting supply wires. If no disconnect is supplied, ensure the supply wire is not live before connection. Supply wires are then connected to the optional safety disconnect switch (if supplied) or motor.
Vektor-MH and Vektor-MD Motor Disconnect and Isolation Damper Wiring Diagram
Disconnect is mounted to fan housing. Transformers are mounted to bypass air plenum with damper actuator motors. For systems that ship unassembled because of physical size, this connection at disconnect from transformers must be field-installed. Wires with conduit and fittings are provided pre-connected to transformers.
Vektor-MH and Vektor-MD Applications with Variable Frequency Drives (VFD)
For systems with single-point, three-phase wiring per blower, the isolation damper actuator will be powered via a step-down transformer, which is wired to the fan disconnect, as shown in the appropriate diagram.
If fan fl ow (motor speed) is to be controlled using a variable frequency drive with this wiring, the reduced voltage and frequency supplied to the fan will cause control problems with the isolation damper actuator.
When a project’s Vektor control sequence requires the use of a VFD, it is suggested that the control contractor supply the isolation damper actuator voltage — independent of the power supplied to the Vektor fan motor.
NOTE
For Vektor-MS fans, refer to the Vektor VGN controls Installation, Operation and Maintenance Manual #481885 for electrical wiring and connection information. Instructions are shipped with the Vektor-MS system or can be found online at greenheck.com under the library section.
Improper wiring may damage electrical components and void the warranty.
Single Phase Layout

Three Phase Layout

Three Phase with Variable Frequency Drives Layout

Three Phase Motor Starter with Integral Damper Control Layout

Start-Up
WARNING
Disconnect and secure to the OFF position all electrical power to the fan prior to inspection or servicing. Failure to comply with this safety precaution could result in serious injury or death.
Visual Inspection of Equipment
The equipment type and arrangement should be verified as ordered at once when it arrives at the jobsite. When a discrepancy is found, the local sales representative must be notified immediately so that corrective action may be investigated, also verify electrical conformance to specifications. Unauthorized alterations and unauthorized backcharges will not be recognized by the manufacturer.
After the unit has been assembled, installed and all utilities have been hooked up, the unit is now ready for operation.
Check
Before starting the unit, check the following:
- Confirm that building supply voltage matches the voltage for which the unit is wired.
- Check all piping and wiring penetrations made by contractors for water tightness. All penetrations must be made watertight to prevent water damage to the unit and building.
- Rotate the fan wheel manually to be sure that it is free to operate. Remove any dirt or debris that may have accumulated during installation.
- Check the fan bearing setscrews for tightness.
- Check alignment of sheaves and V-belts (see maintenance section).
- Inspect all fasteners to ensure that none have loosened during shipment.
- Check flex coupling for proper alignment and connect between motor shaft and fan shaft (direct drive).
- Check all guarding to ensure that it is securely attached and not interfering with rotating parts.
- Check operation of isolation and bypass dampers (if supplied) for freedom of movement.
- Check all electrical connections for proper attachment.
- Check housing and ductwork, if accessible, for obstructions and foreign material that may damage the fan wheel.
- Fill drainage piping trap.
Additional steps for initial start-up
- Check for proper wheel rotation by momentarily energizing the fan. Access to view the wheel can be gained through the blower housing access panel located on the side of the fan’s tubular housing.
One of the most frequently encountered problems are motors that are wired to rotate the wheel in the wrong direction. This is especially true with 3-phase installations where the motor will run in either direction, depending on how it has been wired. To reverse rotation of a 3-phase motor, interchange any two of the three electrical leads. Single phase motors can be reversed by changing internal connections as described on the motor label or wiring diagram.
- Fans with multi-speed motors should be checked on low speed during initial start-up.
- Check for unusual noise, vibration or overheating of bearings. Refer to the “Troubleshooting” section of this manual if a problem develops.
- Grease may be forced out of the bearing seals during initial start-up. This is a normal self-purging feature for the type of bearing used on this product.
Vibration
On start-up and during operation, the unit should operate smoothly with minimal vibration. It is possible that a higher degree of vibration may be experienced. Excessive vibration if left unchecked, can cause a multitude of problems, including structural and/or component failure.
The most common sources of vibration are listed. Many of these conditions can be discovered by careful observation. Refer to the troubleshooting section of this manual for corrective actions. If observation cannot locate the source of vibration, a qualified technician using vibration analysis equipment should be consulted. If the problem is wheel unbalance, in-place balancing can be done through the access panel located on the side of each fan’s tubular housing. Any correction weights added to the wheel should be welded to either the wheel back or to the wheel back and wheel cone.
- Wheel Unbalance
- Drive Pulley Misalignment
- Foundation Stiffness
- Poor Inlet/Outlet Conditions
- Incorrect Belt Tension
- Bearing Misalignment
- Mechanical Looseness
- Drive Component Unbalance
- Faulty Belts
Routine Maintenance and Operation
CAUTION
When performing any service to the fan, disconnect the electrical supply and secure fan impeller.
Once the unit has been put into operation, a routine maintenance schedule should be set up to accomplish the following:
- Lubrication of bearings and motor.
- Bypass air dampers should be checked for freedom of operation and wear.
- Wheel, housing, bolts and set screws on the entire fan should be checked for tightness.
- Any dirt accumulation on the wheel or in the housing should be removed to prevent unbalance and possible damage.
- Inspect fan impeller and housing looking for fatigue, corrosion, or wear.
- Examine unit for areas needing paint touch-up.
Fan Operation
Each fan should be run every thirty (30) days as this causes all electrical and mechanical components to get up to temperature, displacing any formed condensation, redistributes load on bearings, and redistributes grease in the bearings (motor and shaft bearings).
CAUTION
When operating conditions of the fan are to be changed (speed, pressure, temperature, etc.), consult manufacturer or your local representative to determine if the unit can operate safely at the new condition.
V-Belt Drive
V-belt drives must be checked on a regular basis for wear, tension, alignment and dirt accumulation. Premature or frequent belt failures can be caused by improper belt tension (either too loose or too tight) or misaligned sheaves. Abnormally high belt tension or drive misalignment will cause excessive bearing loads and may result in failure of the fan and/or motor bearings. Conversely, loose belts will cause squealing on start-up, excessive belt fl utter, slippage and overheated sheaves. Either excessively loose or tight belts may cause fan vibration.
When replacing V-belts on multiple groove drives all belts should be changed to provide uniform drive loading. Use a set of matched belts whenever possible.
Do not pry belts on or off the sheave. Loosen belt tension until belts can be removed by simply lifting the belts off the sheaves. After replacing belts, ensure that slack in each belt is on the same side of the drive. Belt dressing should never be used.
Do not install new belts on worn sheaves. If the sheaves have grooves worn in them, they must be replaced before new belts are installed.
The proper tension for operating a V-belt drive is the lowest tension at which the belts will not slip at peak load conditions. Belts are adjusted by swinging out the motor pivot plate. For initial tensioning, the proper belt deflection halfway between sheave centers is 1/64 inch for each inch of belt span. For example, if the belt span is 64 inches, the belt deflection should be 1 inch using moderate thumb pressure at midpoint of the drive.
Check belt tension two times during the first 24 hours of operation and periodically thereafter.
Motors
Motor maintenance is generally limited to cleaning and lubrication. Cleaning should be limited to exterior surfaces only. Removing dust and grease buildup on the motor housing assists proper motor cooling. Never wash-down motor with high pressure spray. Greasing of motors is only intended when fittings are provided. Motors supplied with grease fittings should be greased in accordance with the manufacturer’s recommendations. When motor temperature does not exceed 104ºF (40ºC), the grease should be replaced after 2000 hours of running time.
NOTE
Motors for direct drive arrangement 4 models have 12 month lubrication intervals.
Fans have extended grease lines to lubricate the motor without removal of any guarding.
Bearings (Arrangement 9)
The bearings for Vektor fans are carefully selected to match the operating conditions of the specific class, arrangement, and fan size. The instructions provided in this manual and those provided by the bearing manufacturer will minimize any bearing problems. Bearings are the most critical moving part of the fan, therefore, special care is required when mounting them on the unit and maintaining them. Refer to the following chart and the manufacturer’s instructions for grease types and intervals for various operating conditions. Never mix greases made with different bases. This will cause a breakdown of the grease and possible failure of the bearing. Failure to follow recommendations may result in premature bearing failure and is not covered under warranty.
| Recommended Bearing Lubrication Schedule Relubrication Schedule in Months* Synthetic Grease | ||||||||
| Fan RPM | Bearing Bore (inches) | |||||||
| 1/2 – 1 | 1 Ye – 11/2 | 1% – 11/4 | 1 ‘ %6 – 23/6 | 27/16 – 3 | 33/16 – 31/2 | 315/,6 – 41/2 | 415/m – 51/2 | |
| To 250 | 12 | 12 | 12 | 12 | 12 | 12 | 12 | 12 |
| 500 | 12 | 12 | 12 | 12 | 12 | 12 | 12 | 12 |
| 750 | 12 | 12 | 12 | 12 | 12 | 12 | 10 | 7 |
| 1000 | 12 | 12 | 12 | 12 | 12 | 9 | 6 | 4 |
| 1250 | 12 | 12 | 12 | 12 | 9 | 6 | 4 | 2 |
| 1500 | 12 | 12 | 12 | 10 | 7 | 4 | 2 | |
| 2000 | 12 | 10 | 8 | 6 | 3 | 1.5 | .5 | |
| 2500 | 12 | 7 | 5 | 4 | 1 | .5 | ||
| 3000 | 12 | 5 | 3 | 2 | .5 | |||
| 3500 | 12 | 3 | 2 | .75 | ||||
| 4000 | 12 | 2 | .5 | |||||
| 5000 | 12 | 1 | ||||||
| Number of shots** | 4 | 8 | 8 | 10 | 16 | 25 | 41 | 57 |
* Lubrication interval is based on 12 hour day operation and maximum 160°F housing temperature. For 24 hour per day operation, the interval should be cut in half.
** Lubricant should be added with the shaft rotating and until clean grease is seen purging from the bearing. The lubrication interval may be modified based on the condition
of the purged grease. If bearing is not visible to observe purged grease, lubricate with number of shots indicated for bore size.
- For conditions including high temperatures, moisture, dirt or excessive vibration, consult the factory for a specific lubrication interval for your application.
- Lubricant should be a high quality lithium complex synthetic grease conforming to NLGI Grade 2. Factory recommends synthetic Mobilith SHC100.
- The use of non-synthetic lubricants will decrease lubrication intervals by approximately three times.
- Storage periods of three months or longer require monthly rotation of the shaft and purging grease prior to storage and start-up.
Vektor-MS Nozzle Bearings
The bearings for the Vektor-MS nozzle assembly are permanently lubricated and do not require additional grease.
V-Belt Drive Installation
Belt Drive
- Remove the protective coating from the end of the fan shaft using mineral spirits or another similar solvent. Check to ensure that the shaft is free of nicks and burrs.
- Slide sheaves on shafts – do not drive sheaves on as this may result in bearing damage and void the warranty.
- Align fan and motor sheaves with a straightedge or string and tighten.
- Place belts over sheaves. Do not pry or force belts, as this could result in damage to the cords in the belts.
- Adjust the tension until the belts appear snug. Run the unit for a few minutes and allow the belts to “set” properly.
- With the fan off and disconnect locked out, adjust the belt tension by moving the motor pivot plate. When in operation, the tight side of the belts should be in a straight line from sheave to sheave with a slight bow on the slack side.

Radial Gap and Alignment
Efficient fan performance can be maintained by having the correct radial gap and alignment. These items should be checked before start-up when the unit has been disassembled.

Radial Gap: Adjust inlet cone position such that the radial gap between the wheel cone and inlet cone is evenly distributed around the wheel.
Alignment: If necessary, adjust wheel position by loosening the wheel hub from the fan shaft so that a straight edge held tight to the wheel cone just touches the inlet cone.
Jib Crane Assembly (Optional Accessory)
NOTE
Complete assembly instructions for the jib crane are documented in Assembly Instruction #472081, Jib Crane for Vektor. Instructions are shipped with the jib crane or can be found online at greenheck.com under the library section.
The jib crane is mounted to sockets provided on the plenum housing. When assembling the jib crane, use the socket closest to the fan which is to be serviced (multiple sockets are on plenums consisting of three or more fans). Jib crane is designed to lift windband and motor only. Any other use may result in serious injury. Jib crane must not be used to lift the fan from the plenum.

Bearing Replacement
The intent of this fan design with its large side access openings is to allow a field service technician to replace bearings with the fan remaining in place in its intended application. All work can be conducted by accessing the bearings through the blower housing side access openings. This procedure assumes power source has been locked out prior to removing guards and covers, belts and pulleys have been loosened and removed properly and extended lubrication lines have been disconnected at the bearing. In some cases it may be necessary to remove the motor and mounting plate.
Belt Drive
This procedure assumes proper safety measures have been taken and the driven sheaves and belts have already been removed. Shaft black coating can be removed with a solvent similar to brake cleaner. Read through these directions completely prior to starting this procedure.
- Scribe line at the top of both the top and bottom bearings. These marks are used to locate the proper mounting position for the new bearings
- Loosen and remove top bearing from fan shaft. Use spanner wrench or blunt punch to loosen
EQUIPMENT REQUIRED
• Four shaft collars
• Emery cloth
• Caulk
• Replacement bearings
• Spanner wrench and sockets bearing. Follow bearing manufacturer’s instructions on removal. An emery cloth may be required to clean and remove burrs off shaft. Finish removing top bearing. - Install two shaft collars flush with the top support plate to hold and support the shaft when removing bottom bearing.
- Loosen bottom bearing. Caulk seal may need to be broken around perimeter of flange housing and bottom support plate. Use emery cloth to clean shaft and remove any burrs.

- Install second set of shaft collars flush with top of bottom support plate.
- Remove shaft collars on top support plate and finish removing bottom bearing.
- Install new bottom bearing in reverse of this procedure. Remember to re-install top set of shaft collars prior to removing lower shaft collars.
- Align the top of the bearing with the scribed mark indicating the correct mounting location. Secure lower bearing to bottom support plate. Do not secure the bearing to the fan shaft.
- Turn the wheel approximately 20 – 30 rotations to allow the shaft to properly set in the bottom bearing.
- Finish installing bearing on fan shaft according to bearing manufacturer’s installation procedure. Rotate the wheel again for 20 rotations. If resistance is felt the bearing did not set properly. Reset the shaft in the bearing.
- Remove top set of shaft collars and install top bearing according to bearing manufacturer’s instructions making sure the top of the bearing lines up with scribed mark indicating the correct mounting location.
- Connect extended lube lines to new bearings. Zerk fittings from old bearings may need to be installed in replacement bearings
- Reinstall drive sheave and belts. Check for alignment.
- Caulk around bottom bearing flange for an improved water tight seal.
Vektor-MS Nozzle Parts and Assembly

| Item | Quantity | Description |
| 1 | 2 | Transition weld |
| 2 | 2 | Transition side cover |
| 3 | 2 | Wind wrap round |
| 4 | 2 | Wind wrap flat |
| 5 | 2 | Frame bottom bar |
| 6 | 2 | Frame top bar |
| 7 | 2 | Frame weld |
| 8 | 2 | Blade weld |
| 9 | 2 or 4* | Actuator mount |
| 10 | 4 | Lifting point |
| 11 | 2 or 4* | Actuator cover |
| 12 | 2 | Blade seal, right |
| 13 | 6 | Blade seal, left |
| 14 | 4 | Flex backing |
| 15 | 2 | Vektor backing |
| 16 | 2 or 4* | Actuator |
| 17 | 1 | Electrical box |
| 18 | 4 | Bearing |
| 19 | 4 | Blade seal |
| 20 | 2 | Flex seal |
* Quantity 2 for sizes 15 thru 24
Quantity 4 for sizes 27 thru 40
Troubleshooting
| Problem | Cause | Corrective Action |
| Excessive Noise | Wheel Rubbing Inlet | Adjust wheel and/or inlet cone. Tighten wheel hub or bearing collars on shaft. |
| V-Belt Drive | Tighten sheaves on motor and fan shaft. Adjust belt tension. Align sheaves properly (see procedure). Replace worn belts or sheaves. | |
| Bearings | Replace defective bearing(s). Lubricate bearings. Tighten collars and fasteners. | |
| Wheel Unbalance | Clean all dirt off wheel. Check wheel balance. | |
| Low CFM | Fan | Check wheel for correct rotation. Check blade position of BAP damper, increase fan speed.* |
| Duct System | Higher pressure than design. Filters need replacement. | |
| High CFM | Fan | Decrease fan speed. |
| Duct System | Increase BAP damper blade open position. Resize ductwork. Access door, filters, dampers not installed. | |
| Static Pressure Wrong | Duct system has more or less restriction than anticipated | Remove obstructions in system. Use correction factor to adjust for temperature/altitude. Adjust set point used to control BAP damper modulation. Resize ductwork. Clean filters/coils. Change fan speed.’ |
| High Motor Amp Draw | Fan | Check rotation of wheel. Reduce fan speed. |
| Duct System | Resize ductwork. Check proper operation of isolation and bypass dampers. Check filters and access doors. | |
| Fan Doesn’t Operate | Electrical Supply | Check fuses/circuit breakers. Check for switches turned off or disconnected. Check for correct supply voltage. |
| Drive | Check for broken belts. Tighten loose pulleys. | |
| Motor | Assure motor is correct horsepower and not tripping overload protector. | |
| Overheated Bearing | Lubrication | Check for excessive or insufficient grease in the bearing. |
| Mechanical | Replace damaged bearing. Relieve excessive belt tension. Align bearings. Check for bent shaft. | |
| Excessive Vibration | Belts | Adjust tightness of belts. Replacement belts should be a matched set. |
| System Unbalance | Check alignment of shaft, motor and pulleys. Check wheel balance, rebalance if necessary. | |
| Weak Roof or Support Structure | Consult Structural Engineer to develop a plan to reinforce building structure. | |
| System Effect or High Duct Velocities | Check inlet conditions and duct sizing to ensure duct velocities are below 1500 fpm and transitions are smooth and straight with 2-3 wheel diameters of length prior to entrance to the fan system. |
* Always check motor amps and compare to nameplate rating. Excessive fan speed may overload the motor and result in motor failure. Do not exceed the maximum cataloged rpm of the fan.
Maintenance Log
Date ___________________Time _____________ AM/PM
Notes: ___________________________________________
_________________________________________________
_________________________________________________
_________________________________________________
_________________________________________________
Date ___________________Time _____________ AM/PM
Notes: ___________________________________________
_________________________________________________
_________________________________________________
_________________________________________________
_________________________________________________
Our Commitment
As a result of our commitment to continuous improvement, Greenheck reserves the right to change specifications without notice.
Product warranties can be found online at Greenheck.com, either on the specific product page or in the literature section of the website at Greenheck.com/Resources/Library/Literature.
Greenheck’s Vektor-MH and MD and Vektor-HS, MS and CS catalogs provides additional information describing the equipment, fan performance, available accessories, and specification data.
AMCA Publication 410-96, Safety Practices for Users and Installers of Industrial and Commercial Fans, provides additional safety information. This publication can be obtained from AMCA International, Inc. at www.amca.org.
Document 1016005
Vektor-M Series Fastener Kit
Fan to Bypass Air Plenum (BAP)
Laboratory Exhaust System
Assembly Instructions
READ THROUGH THESE INSTRUCTIONS PRIOR TO STARTING ASSEMBLY.
Document Instructions
Use Document #1016005 with fastener kits 879422, 879423 and 879424. These kits are to be used with the Vektor-M series. The fasteners contained within the kit are to be used to attach the fan to the bypass air plenum (BAP). Use the images located within this document to locate the position of the fasteners on the unit.


Assembly Instructions
- See Greenheck Document #464652 (Installation, Operation and Maintenance Manual: Vektor-MD, Vektor-MH and Vektor-MS) for full installation instructions.
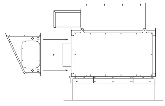
- See image below to locate bolt holes. Install moly-coated 316 stainless steel screws (provided) in all holes in plenum cap.
Tools Required
• Cordless drill (electric or pneumatic)
• 1/2 inch nut setter
| FASTENER KIT 879422 – VEKTOR-M SIZE 15-22 | ||
| Part Description | Part # | Quantity |
| CS,HH,.313-18X1,SS,316,MOLY,W/EPDM WSHR | 416511 | 16 |
| Assembly Instructions | 1016005 | 1 |
| FASTENER KIT 879423 – VEKTOR-M SIZE 24-40 | ||
| Part Description | Part # | Quantity |
| CS,HH,.313-18X1,SS,316,MOLY,W/EPDM WSHR | 416511 | 24 |
| Assembly Instructions | 1016005 | 1 |
| FASTENER KIT 879424 – VEKTOR-M SIZE 44-54 | ||
| Part Description | Part # | Quantity |
| CS,HH,.313-18X1,SS,316,MOLY,W/EPDM WSHR | 416511 | 32 |
| Assembly Instructions | 1016005 | 1 |
Document Instructions
Use Document #1016006 with fastener kits 879425 and 879426. These kits are to be used with the Vektor-MD model. The fasteners contained within the kit are to be used to attach the windband to the Vektor-MD nozzle. Use the images located within this document to locate the position of the fasteners on the unit.
Note:
Vektor-MD – Sizes 36 and smaller, nozzle is attached to the fan housing.
Vektor-MD – Sizes 40 and greater, windband and nozzle ships as individual pieces.
Assembly Instructions
- See Greenheck Document #464652 (Installation, Operation and Maintenance Manual: Vektor-MD, Vektor-MH and Vektor-MS) for full installation instructions.
- See image to the right to locate bolt holes. Attach windband using the provided moly-coated 316 stainless steel bolts through the bolt holes.
Tools Required
- Cordless drill (electric or pneumatic)
- 9/16 inch nut setter
- 9/16 inch wrench

| FASTENER KIT 879425 – VEKTOR-MD SIZE 15-20 | ||
| Part Description | Part # | Quantity |
| CS,HH,.375-16X1.5,SS,316,MOLY | 415781 | 8 |
| NUT,HEX,.375-16,SS,316 | 415799 | 8 |
| WSHR,FLAT,.313X.05X.406X.875,SS,316 | 415800 | 16 |
| WSHR,LOCK,SPLIT,.375,SS,316 | 415810 | 8 |
| Assembly Instructions | 1016006 | 1 |
| FASTENER KIT 879426 – VEKTOR-MD SIZE 22-54 | ||
| Part Description | Part # | Quantity |
| CS,HH,.375-16X1.5,SS,316,MOLY | 415781 | 12 |
| NUT,HEX,.375-16,SS,316 | 415799 | 12 |
| WSHR,FLAT,.313X.05X.406X.875,SS,316 | 415800 | 24 |
| WSHR,LOCK,SPLIT,.375,SS,316 | 415810 | 12 |
| Assembly Instructions | 1016006 | 1 |

Document Instructions
Use Document #1016007 with fastener kits 879427 and 879428. These kits are to be used with the Vektor-M series. The fasteners contained within the kit are to be used to attach the nozzle to the fan body, the nozzle to a stack extension, a stack extension to another stack extension, or a stack extension to the fan body. Use the images located within this document to locate the position of the fasteners on the unit.
NOTE: See Document #1016006 for the attachment of the Vektor-MD windband to the nozzle.
Assembly Instructions
- See Greenheck Document #464652 (Installation, Operation and Maintenance Manual: Vektor-MD, Vektor-MH and Vektor-MS) for full installation instructions.
- Supplied gasketing material is placed between all mating sections.
- The fastener kit includes fasteners for one flange. If the fan includes stack extensions, multiple fastener kits will be supplied for each flange.
- See image to the right to locate bolt holes. Install moly-coated 316 stainless steel screws (provided) in all holes in plenum cap.
Tools Required
- Cordless drill (electric or pneumatic)
- 9/16 inch nut setter
- 9/16 inch wrench
| FASTENER KIT 879427 – VEKTOR-M SIZE 15-27 | ||
| Part Description | Part # | Quantity |
| CS,HH,.375-16X1.5,SS,316,MOLY | 415781 | 8 |
| NUT,HEX,.375-16,SS,316 | 415799 | 8 |
| WSHR,LOCK,SPLIT,.375,SS,316 | 415810 | 8 |
| WSHR,FLAT,.0625X.375X1.25,NEOP | 370046 | 16 |
| WSHR,FLAT,.375X.079X.406X1.5,SS,18-8 | 416516 | 16 |
| Assembly Instructions | 1016007 | 1 |
| FASTENER KIT 879428 – VEKTOR-M SIZE 30-54 | ||
| Part Description | Part # | Quantity |
| CS,HH,.375-16X1.5,SS,316,MOLY | 415781 | 16 |
| NUT,HEX,.375-16,SS,316 | 415799 | 16 |
| WSHR,LOCK,SPLIT,.375,SS,316 | 415810 | 16 |
| WSHR,FLAT,.0625X.375X1.25,NEOP | 370046 | 32 |
| WSHR,FLAT,.375X.079X.406X1.5,SS,18-8 | 416516 | 32 |
| Assembly Instructions | 1016007 | 1 |

Document Instructions
Use Document #1016008 with fastener kit 879429. This kit is to be used with the Vektor-MD model. The fasteners contained within the kit are to be used to attach the Vektor-MD dilution style nozzle to the fan body. Use the images located within this document to locate the position of the fasteners on the unit.
Assembly Instructions
- See Greenheck Document #464652 (Installation, Operation and Maintenance Manual: Vektor-MD, VektorMH and Vektor-MS) for full installation instructions.
- See image to the right to locate bolt holes and corresponding fasteners. Secure nozzle using moly-coated stainless steel hardware (provided).
Tools Required
- Cordless drill (electric or pneumatic)
- 9/16 inch nut setter
- 9/16 inch wrench
- 1/2 inch nut setter

| FASTENER KIT 879429 – VEKTOR-MD SIZE 36-54 | ||
| Part Description | Part # | Quantity |
| CS,HH,.375-16X1.5,SS,316,MOLY | 415781 | 16 |
| NUT,HEX,.375-16,SS,316 | 415799 | 16 |
| WSHR,LOCK,SPLIT,.375,SS,316 | 415810 | 16 |
| WSHR,FLAT,.0625X.375X1.25,NEOP | 370046 | 32 |
| WSHR,FLAT,.375X.079X.406X1.5,SS,18-8 | 416516 | 32 |
| CS,HH,.313-18X1,SS,316,MOLY,W/EPDM WSHR | 416511 | 12 |
| Assembly Instructions | 1016008 | 1 |
Document Instructions
Use Document #1016009 with fastener kits 879430 and 879431. These kits are to be used with the Vektor-MD model. The fasteners contained within the kit are to be used to attach the silencer to the Vektor-MD dilution style nozzle, a silencer to the blower housing, or a silencer to a stack extension. Systems supplied with inline discharge silencers always have the nozzle section ship separate. The silencer is installed between the fan housing and nozzle. Use the images located within this document to locate the position of the fasteners on the unit.
Assembly Instructions
- See Greenheck Document #464652 (Installation, Operation and Maintenance Manual: Vektor-MD, Vektor-MH and Vektor-MS) for full installation instructions.
- The fastener kit includes fasteners for one flange. If the fan includes stack extensions, multiple fastener kits will be supplied for each flange.
- See image below to locate bolt holes. Install moly-coated 316 stainless steel screws (provided).
Tools Required
- Cordless drill (electric or pneumatic)
- 1/2 inch nut setter

| FASTENER KIT 879430 – VEKTOR-M SIZE 15-27 | ||
| Part Description | Part # | Quantity |
| CS,HH,.313-18X1,SS,316,MOLY,W/EPDM WSHR | 416511 | 8 |
| Assembly Instructions | 1016009 | 1 |
| FASTENER KIT 879431 – VEKTOR-M SIZE 30-54 | ||
| Part Description | Part # | Quantity |
| CS,HH,.313-18X1,SS,316,MOLY,W/EPDM WSHR | 416511 | 16 |
| Assembly Instructions | 1016009 | 1 |
Document Instructions
Use Document #1016010 with fastener kit 879432. This kit is to be used with the Vektor-M series. The fasteners contained within the kit are to be used to attach the fan assembly to the roof curb. Use the images located within this document to locate the position of the fasteners on the unit.
Assembly Instructions
- See Greenheck Document #464652 (Installation, Operation and Maintenance Manual: Vektor-MD, Vektor-MH and Vektor-MS) for full bypass air plenum (BAP) installation instructions.
- See image below to locate bolt holes. Install moly-coated 316 stainless steel screws (provided) in all holes in plenum cap.
- The number of fasteners per side may change with fan size and configuration (2×1 system, 3×1 system, etc.)
Tools Required
- Cordless drill (electric or pneumatic)
- 1/2 inch nut setter

| FASTENER KIT 879432 – VEKTOR-M CURB | ||
| Part Description | Part # | Quantity |
| CS,HH,.313-18X2,SS,316,MOLY | 416980 | 20 |
| Assembly Instructions | 1016010 | 1 |
Maintenance Log
Date ___________________Time _____________ AM/PM
Notes: ___________________________________________
_________________________________________________
_________________________________________________
_________________________________________________
_________________________________________________
Our Commitment
As a result of our commitment to continuous improvement, Greenheck reserves the right to change specifications without notice.
Product warranties can be found online at Greenheck.com, either on the specific product page or in the literature section of the website at Greenheck.com/Resources/Library/Literature.
AMCA Publication 410-96, Safety Practices for Users and Installers of Industrial and Commercial Fans, provides additional safety information. This publication can be obtained from AMCA International, Inc. at www.amca.org.
Phone: 715.359.6171 • Fax: 715.355.2399 • Parts: 800.355.5354 • E-mail: [email protected] • Website: www.greenheck.com
Vektor-MH, Vektor MD and Vektor-MS
Copyright 2022 © Greenheck Fan Corporation
One of the most frequently encountered problems are motors that are wired to rotate the wheel in the wrong direction. This is especially true with 3-phase installations where the motor will run in either direction, depending on how it has been wired. To reverse rotation of a 3-phase motor, interchange any two of the three electrical leads. Single phase motors can be reversed by changing internal connections as described on the motor label or wiring diagram.

















