JUNO WF4 ALO19 SWW5 4 Inch Round LED Recessed Downlight

Product Information
The Ultra-Thin Wafer LED Round Module is a ceiling-mounted fixture that provides switchable white light. It is available in two models: WF4 ALO19 SWW5 and WF6 ALO20 SWW5. The fixture offers selectable lumens and switchable color temperature options, including 27K, 30K, 35K, 40K, and 50K. It is designed to replace halogen lamps, with the WF4 model replacing a 65W lamp, the WF6 model replacing a 75W lamp, and the WF8 model replacing a 100W lamp. The fixture comes with a kit and extension cables of varying lengths (6ft, 10ft, and 20ft). For more details, visit www.acuitybrands.com. The product is protected by U.S. Patent No. 10,681,784.
Product Usage Instructions
- Before installing the fixture, read the instructions carefully and save them for future reference.
- Ensure that the date of installation is recorded on the provided space.
- Follow the step-by-step guide for installation:
- Place the remote driver box through the cut-out hole, following local electric code requirements for attachment and placement.
- Open the cover of the remote driver box and remove one of the knockouts on the side plate.
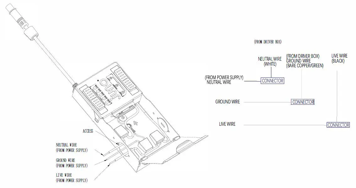
- Locate the power supply leads from the remote driver box and connect them to the power source using the provided wago connectors. Connect the black wire to live wire, white wire to neutral wire, and green wire to ground as shown. Secure the connections using the wago connector and close the cover of the box.
- If mounting is optional, use round head screws to attach the fixture to the side wall using the provided keyhole fittings.
- Pull up the spring clip on the fixture and insert it through the ceiling hole. Place the module in the hole, ensuring that the spring clips hold it securely.
- Turn the power back on. If the module does not illuminate within 5 seconds, turn off the power, carefully remove the module, double-check all wiring, and replace it.
- Connect the remote driver box to the light fixture and tighten the nut connector by hand. Ensure that the arrow on the male and female parts of the connector between the driver and fixture cable match.
- Use the switch on the driver box to select the desired lumen output (High-Medium-Low) and light color (27K-30K-35K-40K-50K).
- Important Safety Instructions:
- Follow safety instructions regarding wire connectors, lamp type, burning position, mounting locations/methods, replacement, and recycling to avoid risks of injury and fire.
- Avoid exposing the product to heat or drying as it may cause damage.
- Do not use any other driver except Lithonia Lighting Driver included with the fixture.
- Do not connect multiple modules to one driver.
- Do not open the module and side plate of the remote driver box as there are no serviceable parts inside.
- If the fixture fails to operate properly, refer to the troubleshooting guide and check the wiring, grounding, and line voltage.
This Fixture is Ceiling Mounted
Round 4”, 6”, and 8” fixture consist of integral LEDs with switchable CCT feature. Select from either 27K-30K-35K-40K-50K option (light color need to be selected before installing fixture). Isolated external driver factory installed inside remote driver box. LED module comes as complete unit consisting of 2 parts: The LED module and remote driver box (with CCT switchable button). One remote driver box for each fixture is required. Pot light housing NOT required even for insulated ceilings and can be direct fi t in ceiling hole. LED fixture and remote driver box are TYPE IC rated.
- 4” replaces halogen 65W Lamp
- 6” replaces halogen 75W Lamp
- 8” replaces halogen 100W Lamp
LED IMPORTANT SAFETY INSTRUCTIONS
READ AND FOLLOW ALL SAFETY INSTRUCTIONS! SAVE THESE INSTRUCTIONS AND DELIVER TO OWNER AFTER INSTALLATION
- To reduce the risk of death, personal injury or property damage from fire, electric shock, falling parts, cuts/abrasions, and other hazards please read all warnings and instructions included with and on the fixture box and all fixture labels.
- Before installing, servicing, or performing routine maintenance upon this equipment, follow these general precautions.
- Installation and service of luminaires should be performed by a qualified licensed electrician.
- Maintenance of the luminaires should be performed by person(s) familiar with the luminaires’ construction and operation and any hazards involved. Regular fixture maintenance programs are recommended.
- It will occasionally be necessary to clean the outside of the refractor/lens. Frequency of cleaning will depend on ambient dirt level and minimum light output which is acceptable to user. Refractor/lens should be washed in a solution of warm water and any mild, non-abrasive household detergent, rinsed with clean water and wiped dry. Should optical assembly become dirty on the inside, wipe refractor/lens and clean in above manner, replacing damaged gaskets as necessary.
- DO NOT INSTALL DAMAGED PRODUCT! This luminaire has been properly packed so that no parts should have been damaged during transit. Inspect to confirm. Any part damaged or broken during or after assembly should be replaced.
- Recycle: For information on how to recycle LED electronic products, please visit www.epa.gov.
- These instructions do not purport to cover all details or variations in equipment nor to provide every possible contingency to meet in connection with installation, operation, or maintenance. Should further information be desired or should particular problems arise which are not covered sufficiently for the purchaser’s or owner’s purposes, this matter should be referred to Acuity Brands Lighting, Inc.
WARNING RISK OF ELECTRIC SHOCK
- Disconnect or turn off power before installation or servicing.
- Verify that supply voltage is correct by comparing it with the luminaire label information.
- Make all electrical and grounded connections in accordance with the National Electrical Code (NEC) and any applicable local code requirements.
- All wiring connections should be capped with UL approved recognized wire connectors.
CAUTION RISK OF INJURY
- Wear gloves and safety glasses at all times when removing luminaire from carton, installing, servicing or performing maintenance.
- Avoid direct eye exposure to the light source while it is on.
WARNING RISK OF BURN
- Allow lamp/fixture to cool before handling. Do not touch enclosure or light source.
- Do not exceed maximum wattage marked on luminaire label.
- Follow all manufacturer’s warnings, recommendations and restrictions for: driver type, burning position, mounting locations/methods, replacement and recycling.
CAUTION RISK OF FIRE
- Keep combustible and other materials that can burn, away from lamp/lens.
- Do not operate in close proximity to persons, combustible materials or substances affected by heat or drying.
CAUTION: RISK OF PRODUCT DAMAGE
- Never connect components under load.
- Do not mount or support these fixtures in a manner that can cut the outer jacket or damage wire insulation.
- Never connect an LED product to an unapproved dimmer pack. Contact ABL directly for any dimmers not specifically recommended for the product.
- Unless individual product specifications deem otherwise: Allow for some volume of airspace around fixture. Avoid covering LED fixtures with insulation, foam, or other material that will prevent convection or conduction cooling.
- Unless individual product specifications deem otherwise: Maximum ambient temperature is 90°C. Do not operate fixture at temperatures higher than this.
- Unless individual product specifications deem otherwise: Never mount in places where fixture will be exposed to rain, high humidity, extreme temperature changes or restricted ventilation.
- LED products are Polarity Sensitive. Ensure proper Polarity before installation.
- Electrostatic Discharge (ESD): ESD can damage LED fixtures. Personal grounding equipment must be worn during all installation or servicing of the unit.
- Do not touch individual electrical components as this can cause ESD, shorten lamp life, or alter performance.
- There are no user serviceable parts inside the unit. Do not rewire, reconfigure, or modify the unit or attempt any repairs yourself. Additionally, field replacement of the LED assembly or lamps is not allowed by UL standards at this time. In the unlikely event your unit may require service, stop using the unit immediately and contact an ABL representative.
All luminaires that contain electronic devices that generate frequencies above 9kHz from any component within the luminaire comply with one of the following Part 15 of the FCC Rules. Operation is subject to the following two conditions:
- This device may not cause harmful interference
- This device must accept any interference received, including interference that may cause undesired operation.
- This device complies with Part 18 of the FCC Rules but may cause interference with cordless and cell phones, radios, televisions, and other electronic devices. To correct the problem move the device away from the luminaire or plug into a different outlet. This product may cause interference to radio equipment and should not be installed near maritime safety communications equipment or other critical navigation or communications equipment operating between 0.45-30MHz.
- Failure to follow any of these instructions could void product warranties. For a complete listing of product Terms and Conditions, please visit www.acuitybrands.com.
OUR BRANDS
- Indoor/Outdoor: Lithonia Lighting, Carandini, Holophane, RELOC
- Indoor Lighting: Gotham, Mark Architectural Lighting, Peerless, Renaissance Lighting, Winona Lighting
- Outdoor Lighting: American Electric Lighting, Antique Street Lamps, Hydrel, Tersen Controls:
- DARK TO LIGHT, Lighting Control & Design, ROAM, Sensor Switch, Synergy
STEP-BY-STEP GUIDE
Note: Before beginning the installation, make sure all power is off, shutting power off in breaker box to areas where downlights are to be installed is recommended.
Required Tools (not included): Safety glasses and gloves.
- Double check and measure the ceiling hole. Make sure it is the correct size for outside rim of the luminaire to cover the hole while still allowing the back of luminaire to sink in to the ceiling and springs to hold firmly.
- Remove existing retrofit can if present or move it out of the way since it will not be needed for installation.
- If new hole is to be cut, use provided hole template. Place template over the desired location. Trace the outer ring with a pen or pencil (not included). Cut the opening with a saw (not included). (Figure 1)

- Open the cover of the remote driver box. Push and remove one of the knockouts on the side plate.
- Locate power supply leads from remote driver box and connect to power source using wago connectors (provided).
- Connect black wire to live wire, white wire to neutral wire, and green wire with ground (as shown) and secure using wago connector. Close the cover of the box. (Figure 2)

- Connect the remote driver box to the light fixture and tighten the nut connector by hand. Arrow on the male and female parts of the connector between the driver and fi xture cable should match. (Figure 3)

- Use switch on the driver box (Lumen/CCT option need to be selected before fixture installation) to select appropriate lumen output (High-Medium-Low option) and light color (27K-30K-35K-40K-50K option).(Figure 4))

- Place remote driver box thru the cut-out hole.
- MUST follow local electric MUST follow local electric code code for rigid attachment and placement of the remote driver box. (Figure 5)

- Optional Mounting Kits: Instruction sheet for new construction plate and joist bar kit can be found at www.acuitybrands.com
- MUST follow local electric MUST follow local electric code code for rigid attachment and placement of the remote driver box. (Figure 5)
- Pull the spring clip on the fixture up and through the ceiling hole and place module in the hole making sure the spring clips are holding securely. (Figure 6)

- Turn the power back on. If the module doesn’t illuminate within 5 seconds, turn power off, carefully remove the module and double check all wiring and replace. (Figure 7)
WARNING
- DO NOT PLACE YOUR HAND UNDERNEATH SPRING CLIP DURING REMOVAL PROCESS. SNAPPING OF THE CLIPS CAN CAUSE INJU- RIES TO THE HAND. (Figure 8)

- DO NOT USE ANY OTHER DRIVER EXCEPT LITHONIA LIGHTING DRIVER THAT IS INCLUDED WITH THE FIXTURE.
- DO NOT CONNECT MULTIPLE MODULES TO ONE DRIVER.
- DO NOT OPEN THE MODULE AND SIDE PLATE OF THE REMOTE DRIVER BOX – NO SERVICEABLE PARTS INSIDE.
Troubleshooting Guide
If this fixture fails to operate properly, use the guide below to diagnose and correct the problem.
- Verify that fixture is wired properly.
- Verify that fixture is grounded correctly.
- Verify that the line voltage at the fixture is correct.
Acuity Brands Lighting, Inc. assumes no responsibility for claims arising out of improper or careless installation or handling of its products. ABL LED General Warnings, Form No. 503.203 © 2010 Acuity Brands Lighting, Inc. All rights reserved. 12/01/10
- If further assistance is required, contact:
- Technical Support at: (800) 705-SERV (7378)
- This LED module does not require service or new bulbs to change.
Optional items: New Construction Plate, Joist Bar Kit, and Extension Cable (6ft, 10ft, and 20ft) see www.acuitybrands.com for more details Protect yourself. Before installing, read these instructions carefully and save them for future reference.
Date Installed:________________
© 2023 Acuity Brands Lighting, Inc. One Lithonia Way, Conyers, GA 30012 www.acuitybrands.com/juno-recessed

























