Kold-Draft® HD200 Series Ice Dispenser Installation & Operation Manual

Kold-Draft International, LLC
1525 East Lake Road
Erie, PA 16511-1088 U.S.A.
Phone: (800) 840-9577
Fax: (800) 548-9392
www.kold-draft.com
This manual is updated periodically. Visit http://www.kold-draft.com/resources/literature.php for the latest version.
General Information
Safety Warnings and Information
Special attention should be given to potential hazard labeling on the equipment and the signal words and symbols that are used throughout this manual. They may also be used to alert against unsafe practices.

NOTE: Indicates installation, operation, or maintenance information which is important, but not related to personal injury or property damage.
NOTE:
- Check for freight damage before proceeding with the equipment installation. Be sure to inspect the equipment carefully for any damage that may not have been evident on the outside of the carton. Contact the freight carrier immediately to report any damage and file a claim. Have carrier note the damage on the bill of lading. Call Kold-Draft with your claim number to arrange replacement or repair.
- Read the entire manual before installing, operating or servicing the machine.
- Follow these installation instructions exactly.
- All machines have been tested and adjusted for correct performance at the factory.
- Knowledge of proper installation and service procedures is essential for the safe operation and maintenance of KOLD-DRAFT equipment. Refer all installation and service work to qualified technicians.
- This equipment must be installed in compliance with the applicable federal, state/province, and/or local plumbing, electrical, and health/sanitation codes and requirements.
- Always disconnect the power supply before servicing the equipment or when the equipment will not be used for a period of time.
- Never operate equipment that has been damaged or does not have all the protective covers in place.
- Never operate equipment that has been altered from the original KOLD-DRAFT specifications.

Model Number Key

Date Code Key

NOTE: The serial number plate is located behind the front cover, on the upper support. A complete model number and date code are essential for the accurate identification of the ice dispenser and proper selection of replacement parts.
Installation Information
![]()
WARNING:
- Instruct all personnel in the proper use of the equipment.
- Clean up any liquid spills immediately.
- Always install equipment on a stable and level surface.
- All models are intended for indoor use only. Do not install the equipment in unprotected outdoor areas.
- Do not install the equipment in wet areas.
- Do not locate the equipment near any heat source, in direct sunlight or high ambient areas. Placing equipment in these locations will result in increased ice meltage.
Unpacking
Unpacking a KOLD-DRAFT ice dispenser can be done by prying off the boards that are holding the cardboard box to the shipping pallet. The box can then be lifted vertically to expose the machine.
Remove all packaging materials from the ice dispenser and protective film from the stainless steel surfaces.
Carton Contents
- Kold-Draft HD200 Series Ice Machine
- Warranty card attached to the front of the machine (must be fully completed and returned to the factory within 15 days of installation to register this product and to initiate warranty coverage.) NOTE: Failure to return this registration form will void your warranty.
- Leg kit.
- Installation & Operation Manual. Leave these with the owner/user.
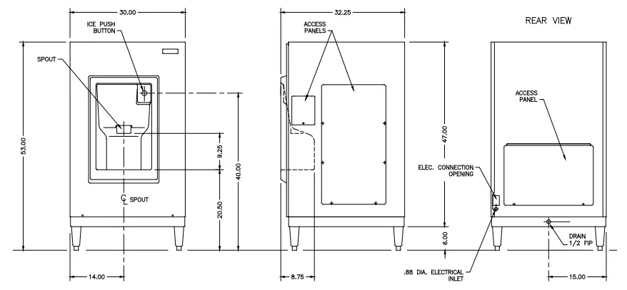
Installation Requirements
The ice dispenser must be installed indoors and the location should be free of airborne contaminates including any corrosive elements.
Note:
Consult ice machine instructions for proper installation requirements, before determining the location of the ice dispenser.
Installation site ambient temperatures below 90°F (32°C) are recommended for proper operation. Higher than this maximum specification will result in increased melting of ice in the dispenser.
- The location must not be near anything that can contaminate the dispenser or the ice inside.
- The location must not be near heat generating equipment.
- The ice dispenser should be mounted on the legs provided and leveled by screwing the leg adjusters in or out as required. If the legs are not used, shim the bottom of the dispenser as required to make it level. Seal any gaps at the floor with approved sealant or use cove molding for larger gaps.
- The installation location must be capable of supporting the weight of the ice machine and dispenser, with a full bin of ice.

Plumbing
- The drain hose or pipe must not be reduced in size from the equipment to the drain. The building drain must be able to accommodate all the drain water from ice making and storage.
- Individual drains from ice machines, dispensers and bins must never be directly connected to a common manifold, drain or standpipe unless a minimum 1.5” (38mm) air gap is provided at each connection. This is to prevent backflow of drain water into the ice maker, dispenser or ice bin.
NOTE: Installation must always provide adequate backflow prevention and comply with applicable federal, state and local codes.
Drain lines will be installed with a minimum drop of 1/4” per ft. (2.1cm per meter) run. Drain lines may be insulated to prevent condensation.
Electrical

- All KOLD-DRAFT models are intended to be installed with a permanent connection to the field electrical supply. See rating plate on the back of the machine for power supply requirements.
- The dispenser must be connected to a separate protected circuit with no other loads.
- Fused disconnects, installed adjacent to the dispenser, are recommended and may be required by local codes. These components must be supplied by the installer.
- Electrical service must fall within the voltage tolerances listed below:

Maximum Overload Protection must be no greater than specified. The minimum circuit ampacity specified does not indicate a typical running current value. Use the minimum ampacity value for sizing branch circuit conductors up to 26 feet (8 meters) in length. For a conductor length over this length, increase the wire gauge as required by code.
Dispenser Construction and Operation
The HD200 series dispenser consists of an ice storage bin with an outlet spout, a motorized stirring bar to keep the ice from bridging in the bin and to move ice to the outlet spout when dispensing and an operating ice stop in the spout opening to deflect ice past the spout during agitation cycles and allow ice out when dispensing. Working in conjunction with the ice stop, an ice outlet cover seals the opening of the ice spout when the unit is not dispensing.
A sink with a space to locate an ice bucket is provided on the front of the dispenser. The sink platform has openings to allow any missed or overflow ice to pass through to a catch pan, which is located at the bottom of the dispenser. The pan also catches the melt water from the ice bin and directs it to the drain.
Note: The dispenser must be operational when the ice machine is in place and begins to make ice. Allowing the dispenser bin to fill with ice, without the dispenser being operational, may cause damage to the dispenser. The dispenser must also be operational whenever there is ice in the bin, even if the ice machine is not operating. If the dispenser must be disconnected from the power source for more than a short time, the bin should be emptied first.
In normal operation, when power is initially provided to the dispenser, the stirring bar will turn for a few seconds. This is the initial agitation cycle and it will repeat periodically to keep the ice moving and fluid in the bin, when ice is not being dispensed. A timer determines the length of the agitation cycle, as well as the time between cycles. This will continue as long as the dispenser is energized.
Pushing the ice button will cause the stirring bar to turn and the ice stop to open. Ice will then be directed to the sink area.
Note: Dispensing should never occur without an ice bucket or other suitable vessel in position to catch the ice.
Adjustments
There are only two adjustments available on the dispenser. One is for the limit switches that determine the movement range of the ice stop and the other is chain tension. Both of these are adjusted at the factory and should not normally require attention, unless parts are replaced or damaged.
Wiring Diagram

Maintenance and Service Information
Ice Dispenser Cleaning Procedure
It is recommended to perform this cleaning procedure a minimum of twice per year
Note: The frequency of the need for cleaning is determined by the supply water characteristics. The dispenser should be cleaned no less than once every 6 months and it may require more frequent cleaning. The requirement for sanitizing frequency may be described in local health code regulations. Remove all ice from the dispenser before starting the cleaning process. Always clean the ice machine first, following the ice machine cleaning instructions.
- Empty the dispenser and disconnect the power to the dispenser and ice machine.
- Remove the ice machine skin panels, drain pan, chute and deflectors, if present.
- Wash the interior of the bin with a solution of 2 tablespoons of baking soda per quart of clean water (140°F / 60°C max.). The bin is accessed through the front of the ice machine. Use a long handled brush to reach the bottom of the bin and to clean the stirring bar.
- Wash the interior of the sink with the baking soda solution and wipe dry with a clean cloth.
- Remove the front cover of the dispenser to access the spout and drain pan. The spout should be removed for thorough cleaning in the baking soda solution. Rinse with clean water. Wash the interior of the drain pan with the baking soda solution and wipe dry with a clean cloth
- Sanitize all ice contact surfaces, including the ice spout and spout closure with a solution of 1 teaspoon of 5-1/4% sodium hypochlorite (household bleach) per quart of clean water (minimum 100 PPM free chlorine). A spray bottle will facilitate this process. Pour the unused sanitizing solution down the dispenser bin drain.
- Replace the ice spout, dispenser front panel and ice machine skin panels before reconnecting the power supply. Exterior surfaces may be cleaned by using standard methods suitable for stainless steel.
Storage and Winterization
Remove all ice from the dispenser, disconnect the electric power supply and clean and sanitize the dispenser.
Removal from Service
When the ice dispenser is determined to be no longer useable, please be sure that it is rendered safe for storage or disposal. All applicable recycling measures should be exercised to avoid injury or harm to the environment.
Neither the manufacturer nor seller is responsible for any harm or damage to people, animals, property or the environment caused by improper installation or disposal.
Problems and Solutions

DISPENSER PARTS LIST




















