


Glory with Alkaline
User Manual
Note: The color and specification of the product may vary from that shown on the user manual
WHY CHOOSE AQUAGUARD®?
Only Aquaguard®
- Has the trust of over 15 million mothers^
- Is owned by over 1.62 lakh doctors
- Has to service within 5 km. range of wherever you are
- Has over 21 different technologies to address 21 different water conditions across the country
- Is certified by over 130 leading national and international laboratories
- Is sold in over 35 countries worldwide
INSTALLING YOUR AQUAGUARD® GLORY
Make sure that your Aquaguard® Glory is installed by a trained Eureka Forbes Service Technician only.
- Input water must be tested for Total Dissolved Solids (TDS) and Total Hardness.
- Install your Aquaguard® Glory in a dry ventilated place.
– Keep it away from direct sunlight, heating devices or areas below freezing temperatures.
– You can keep it on the kitchen counter or wall-mount it.
– The purifier should be placed in an area that is free of ants, insects, and other pests. - Ensure that the input tap water temperature is in the range of 10º-40ºC.
– Avoid installation to a hot water tap as it can damage the filters. - Ensure that the input water pressure for Aquaguard® Glory RO+UV+MTDS+
ALKALINE is between 0.3 kg/cm2– 3.0 kg/cm2
. If the input water pressure is more than specified, installation of a PRV (Pressure Reducing Valve)** is mandatory. If the input water pressure is less than specified, installation of a booster pump** is recommended. - Flush the filter thoroughly and independently for 3-5 minutes to remove fine particles present in the filter. This should be done before the installation of the unit.
- After installing, run the purifier for 5-10 minutes and drain this water.
** Available at extra cost
INSTALLING YOUR AQUAGUARD® GLORY
Input Water Quality Usage Limitations:
- If the input water iron content is more than 0.3 mg/liter, the use of an iron remover** is recommended as a pre-treatment.
- If the input water turbidity is more than 5 NTU or comprises colloidal particles, the use of a special filter** is required as a pre-filter.
- If the input water TDS is more than 1000 ppm (mg/L) or input water hardness is more than 300 ppm (mg/L), the use of a Membrane life enhancer** is recommended.
- Do not install the water purifier if the TDS is more than that prescribed in the
MTDS REGULATOR OPERATING PROCEDURE: (Only Applicable for RO+UV+MTDS+ALKALINE Models)
TDS modulator is located inside the product. As per the factory setting, it comes in fully closed mode. TDS level of output water can be increased by slowly loosening the spindle of the TDS modulator (anti-clockwise). Normally a slight quarter turn is enough to increase the TDS of the output water. Rotating the spindle in the clockwise direction closes the TDS modulator and reduces the level of TDS blending. Please note that the TDS blending and its adjustment is dependent upon the level of TDS of input water and on the TDS reduction capacity of the RO membrane. TDS adjustment should be done by the authorized Eureka Forbes ** Available at extra cost
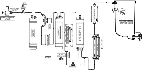
HERE’S HOW YOUR AQUAGUARD® GLORY RO+UV+MTDS+ALKALINE WORKS
AQUAGUARD GLORY RO + UV + MTDS + ALKALINE ( WATER FLOW DIAGRAM )

NOTE: THIS IS A SCHEMATIC ILLUSTRATION OF THE PRODUCT TO GIVE A VISUAL SCHEME OF THE WORKING OF UNITS. THIS IS NOT AN ACTUAL ENGINEERING DRAWING OF THE PRODUCT.
A membrane life enhancer is recommended to be installed if the TDS is above 1000 ppm or hardness above 300 ppm
PURIFICATION PROCESS IN YOUR AQUAGUARD® GLORY RO+UV+MTDS+ALKALINE
| stage | Treatment | Material | Benefits |
| 1 | i-Filter | Multi-layered Polypropylene Roving Wound Cartridge | Removes fine suspended particles such as dust, dirt, mud, and sand from water. |
| 2. | Chemi-Block (with built-in Particle Trap Filter) | Dust-Free Bacteriostatic Activated Carbon Block | Reduces excess chlorine, bad odor, color, and organic impurities. It also removes very fine turbidity-causing particles. |
| 3. | Membrane Life Enhancer” | Special Anti-scalant Media | Prevents the scaling of dissolved salts on the surface of the membrane, thereby, enhancing the membrane life and performance. |
| 4. | Reverse Osmosis Membrane | Thin Film Composite (TFC) Reverse Osmosis Membrane | Reduces TDS, hardness, pesticides, and heavy metals like arsenic, lead, and mercury. Eliminates micro-organisms like bacteria, viruses, protozoa, and cysts. |
| 5. | UV e-boiling | Germicidal UV Lamp | UV disinfects the water by eliminating waterborne disease-causing bacteria, viruses & protozoa, thereby, making it safe to drink. |
| 6. | Alkaline Cartridge | Alkaline Media Combined With Activated Carbon | An alkaline cartridge instantly increases the pH and makes the water alkaline. This cartridge also contains activated carbon which makes water safer, healthier, and tastier by removing contaminants like VOCs. |
| 7. | TDS Regulator | Mechanical System | Adjusts the TDS of purified water to provide healthy water always. |
***Not a part of the product, a Membrane life enhancer is recommended If the input water TDS is more than 1,000 ppm (mg/L) or input water hardness is more than 300 ppm (mg/L). Available at extra cost.
LED INDICATION CHART FOR
| Parameters | LED Indications | Remarks | |
| Power | All LEDs | Red, Green, and Blue will glow one after the other for I sec. Blue LED will be solid if power is available. | |
| Purification Process | Power | Blue LED will be solid. | |
| Service | Red LED will be OFF. | ||
| Tank Full | Green LED will blink at a 0.5 secs rate for 6 secs. | ||
| Tank Filling Mode | Power | Blue LED will be solid. | |
| Service | Red LED will be OFF. | ||
| Tank Full | Green LED will blink at 0.5 secs Rate Continuously. | ||
| Storage (Tank Full) | Power | Blue LED will be soli. | |
| Service | Red LED will be OFF. | ||
| Tank Full | Green LED will be solid. | ||
| UV Lamp Fault | Power | Blue LED will be solid. | |
| Service | Red LED will be solid. | ||
| Tank Full | Green LED will be OFF. | ||
| SV/Pump Fault | Power | Blue LED will be solid. | |
| Service | Red LED will blink at a 0.5 secs rate. | ||
| Tank Full | Green LED will be OFF. | ||
| LPS | Power | Blue LED will blink at 0.25 secs rate. | |
| Service | Red LED will be OFF. | ||
| Tank Full | Green LED will be OFF. | ||
TECHNICAL SPECIFICATIONS*
| # | Technical Parameters | Specifications | |
| 1. | Model | AquaguardE Glory RO+UV+MTDS+ALKALINE | |
| PRODUCT SPECIFICATIONS | |||
| 1. | Dimension (W x D x H) | 320 mm x 275 mm x 476 mm | |
| 2. | Net Weight | 7 KG (Approx.) | |
| 3. | Purification Technology | RO+UV+MTDS+ALKALINE | |
| 4. | Tank Capacity | 6 Litres (Approx.) | |
| 5. | Purification Stages | i-FilterTm. Chemi-Block. UV boiling”‘. Alkaline Cartridge | |
| ELECTRICAL SPECIFICATIONS | |||
| 1. | Power Rating | 40 Watts (Max.) | |
| 2. | Power Supply | Input 230VAC, 50Hz. Output 24V, (On-Board AC-DC) | |
| 3. | UV Lamp | 4 Watts | |
| 4. | UV Lamp LIFE | 5,000 Burning Hours (As Per UV Lamp Manufacturer Spec.) | |
| 5. | Operating Voltage Range | 150 to 250 VAC, 50 HZ | |
| 6. | Solenoid Valve | 24 V DC | |
| RECOMMENDED INPUT WATER PARAMETERS | |||
| 1. | Input Water Pressure Range” | 0.3 to 3 kg/cm2 | |
| 2. | Input Iron (Max.) | 0.3 mg/L | |
| 3. | Input Chlorine Content (Max.) | 0.2 mg/L | |
| 4. | Input Water Turbidity (Max.) | 5 NTU | |
| 5. | Total Dissolved Solids• (TDS) (Max.) | up to 2,000 mg/L” | |
| 6. | Input Water Temperature Range | 10°C to 40°C | |
*Technical specifications are subject to change without prior notice. + As input water is applied to the overall product. Note: The performance data presented in the table is applicable under standard laboratory conditions #. Actual performance may vary depending on the `input water quality, water pressure, turbidity, and condition of filters. Input water quality/pressure/TDS are important determinants of recovery rate and rejection. **If the input water pressure is more than 3.0 kg/cm 2, installation of a PRV (Pressure Reducing Valve) is mandatory. If the input water pressure is less than 0.3 kg/cm 2, installation of a booster pump is recommended. If the input water pressure is less than 0.3 kg/cm 2, installation of a booster pump is recommended. ++ If the input water TDS is more than 1,000 ppm (mg/L) or input water hardness is more than 300 ppm (mg/L), the use of a Membrane life enhancer is recommended. These accessories are available at an extra cost.
Warranty void if not installed as per recommendations.
# Standard Test Conditions:
Feed Water Quality: TDS Max: 1,000 mg/L with NaCl, Pressure: 1 kg/cm 2 , Turbidity: 1 NTU (Max.), Temperature: 25°C, Chlorine: Below 0.2 mg/L, Iron: Below 0.3 mg/L Life: 6,000 Litres. ## Standard test conditions of Alkaline Cartridge Input water: pH : 7.0 (+/- 0.2); TDS : 40 (+/- 10 mg/l); Flow rate: 250 ml/min; Temperature: 25ºC. Under standard test conditions ## , the output water pH range is 7.5 – 8.5 (+/- 0.2).
Note: Performance of alkaline cartridge is applicable under standard test conditions of Alkaline cartridge ##. Actual performance may vary depending on the input water quality, life of alkaline cartridge & RO membrane element. Under certain input water quality conditions, the pH of output water from the alkaline cartridge can exceed 8.5 pH.”
For Aquaguard® Glory RO+UV+MTDS+ALKALINE
| Consumable Cartridges | Average Service Life |
| i-Filtern” | 6000″ Litres |
| Chemi-Block | 6000″ Litres |
| Alkaline Cartridge | 6000″ Litres |
| UV Lamp (4W) (RO+UV+MTDS) | 5000 Burning Hours” |
| RO Membrane | 6000″ Litres |
Note: Please refer to Standard Test Conditions# and Standard Test Condition for Alkaline Cartridge ## for filter life.
**As per manufacturer’s spec.
A QUICK CHECKLIST
| Problems | Checkpoints | Solutions |
| Water tastes bad | 1. Is the tank clean? 2. Have you kept the purified water in the tank for too long? 3. Is it time to change the filter? | 1. Clean the storage tank. |
| 2. Dispose of the water and clean the tank. 3. Call an authorized Eureka Forbes service technician. | ||
| Less water has been purified | 1. Is the tap water valve closed? 2. Is the tap water pressure too low? 3. Filters may be clogged or damaged? | 1. Open the tap water valve. 2. If so, the amount of purified water will be reduced. 3. Call an authorized Eureka Forbes service technician. |
| Water doesn’t flow into the storage tank | 1. Is there water available in the overhead tank? 2. Is the main water supply tap closed? 3. Not sure what is wrong? | 1. Ensure the overhead tank is filled with water. 2. Ensure the tap is open. 3. Call an authorized Eureka Forbes service technician. |
| Water is leaking | 1. Is water coming out of the top of the purifier? | 1. Close the tap water valve, unplug the power cord and call an authorized Eureka Forbes service technician. |
CLEANING AND DISINFECTION OF WATER STORAGE TANK
Note: Storage Tank of this product must be periodically cleaned (at least once every 30 days) with a disinfectant. Disinfection Tablet* may be purchased from the Company Authorised Service Centre. Please follow the disinfection process strictly as per the instructions provided in this User Manual.
- Drain the tank completely.
- Switch OFF the water purifier from the main power supply.
- Open the top cover, and wipe the inside of the tank with a dry, clean soft cloth.
- Keep the top cover in place.
- Switch the power supply ON.
- Let the storage tank get filled & then drop one disinfection tablet* into the tank.
Caution: Keep the Disinfection Tablet* out of the reach of children.
Do not eat/consume the tablet. - Keep the top cover in place & leave the unit for 30 mins.
- After 30 mins. open the tap & discard this and the first filling water completely.
- Now your unit is ready to use. In case you notice any medicinal taste/smell, discard the tank
of water fully & let it refill again. - Please ensure that this disinfection process is carried out by the authorized installation person/service technician during the first installation and in every subsequent mandatory servicing of your product.
*Available with Eureka Forbes Service Technician.
TIPS FOR SAFETY AND MAINTENANCE OF YOUR AQUAGUARD®
- Read attentively and understand the purifier and its functions, before use.
- Installation and service have to be conducted by an authorized person from Eureka Forbes Limited only.
- In case of any damage or incorrect functioning, immediately contact an authorized service center of Eureka Forbes Limited.
- Water from wastewater tubes is not suitable for drinking. You can use that water for gardening or to clean floors (For applicable models only).
- The water storage tank must be periodically (at least once in every 30 days) cleaned using a disinfectant (For applicable models only).
- Drain the water if it hasn’t been used for over 48 hours.
- Ensure that the flow restrictor is checked and replaced (if required), by the authorized service technician during the mandatory service or in-service call (For applicable models only).
- Ensure that the replacement of the consumable cartridges is done by a trained Eureka Forbes technician.
- Ensure that the filter cartridges and spares used during service/replacement are genuine and from Eureka Forbes Limited only.
WARRANTY TERMS & CONDITIONS
- The Products are warranted against manufacturing defects for a period of twelve (12) months from the date of original purchase.
- The Customer will notify the Company in writing promptly of any defects noticed and give the Company or its authorized agent adequate opportunity to inspect test and remedy them for which the Customer will deposit the goods at its own expense if so, required by the Company with the Company’s Office/Service Centre along with the original invoice in the city where they are sold.
- The Inspection and Test Report of the company’s office/service center will be final and binding under the warranty for determining defects, repairs alterations required or carried out or certifying work of the goods thereafter.
- Aquaguard® may require initial setting, post-installation, depending on varying water conditions and power supply. In case of any service requirements, post-installation, please contact the company’s service center.
- The company or its authorized agent will be entitled to retain any defective part replaced under the warranty.
- Notwithstanding anything to the contrary contained or implied by this warranty:
a) The company’s liability under this warranty shall be limited to the first sale of the goods by the company to the customer and will not apply or extend to any secondary sale of goods by the customer.
b) The company’s liability under this warranty shall be limited only to defects in the goods which occur under the conditions of the normal operation of the goods and their proper and prescribed use. The warranty does not cover or extend to defects that are determined by the company or it’s authorized agents as occurring or resulting from or attributable to negligence, abuse, misuse, faulty care, operation or maintenance or repairs, alterations to the goods or any part thereof by others or the use of the goods on electrical supply for which they are not designed, or damage caused by lightning or other electrical disturbances or interruptions, dismantling or re-installation at a different location.
c) The company’s liability under this warranty shall remain valid only if the goods are duly installed by the company or its authorized agency at the location specified in the invoice and such installation is undertaken by the company or its authorized agent or franchisee.
d) Consumable items mentioned in the consumables table are subject to normal wear and tear and are not covered by this warranty. Please refer to model-specific components are given in the user manual under the table “consumable cartridges”.
e) Reverse Osmosis Membrane warranty is for a period of 1 year (or) 6,000 liters (whichever is earlier) from the date of installation, on the condition that the input water is as per the standard test conditions for RO variants (provided in the section “Technical specifications table”), mentioned in the user manual. If the RO membrane gets clogged within the warranty period, it will be cleaned/repaired/replaced free of charge as deemed fit by the company authorized service person/center after inspection. (At applicable for RO models only.)
f) The customer will have no claim against the company, its employees, and its authorized agents or franchisees under or pursuant to this warranty in respect of death or injury to the customer or any other person or loss or damage to any property caused by or due to equipment failure, breakdown or accident, fire or operation or utilization of the goods otherwise than in accordance with the user manual or by due to any other cause or circum stances beyond the control of the company.
g) The company’s liability, under this warranty, shall in no event and under no circumstances exceed the price paid by the customer to the company for the goods stated in the invoice.
General
For the purpose of this warranty, the following expressions shall have the following meanings respectively:
- The ‘Goods’ shall mean the goods described in the Order Form.
- The ‘Customer’ shall mean the original purchaser of goods from the company.
- The ‘Company’ shall mean EUREKA FORBES LIMITED.
- Aquaguard® means and includes Aquaguard ®, Aquaguard ® Select and Sure from Aquaguard.®
- ‘General Terms & Conditions shall mean the terms and conditions agreed upon by the customer and the company printed on the Order Form.
- ‘Invoice’ shall mean the invoice issued by the company to the customer describing the goods and indicating, inter alia, the total purchase price thereof and the name of the customer.
- ‘User Manual shall mean the instructions for installation, use, and maintenance provided through QR code along with Product supplied by the company.
- EFL reserves the right, in its absolute discretion, to change, alter or discontinue and alter the terms and conditions from time to time without any prior notice.
- Any disputes are subject to Mumbai Jurisdiction only.
Post-warranty
- The customer may be offered a yearly Service Contract at the prevailing company rates and terms.
- In case the customer does not wish to enter the Service Contract, he has the option of calling the company’s service center to have his Aquaguard® services on an actual basis, i.e., by paying the labor cost and spares needed to attend to that service/complaint call at the prevailing company rates. Such service will be rendered by the company in towns/places where the company has its service centers.
- If during such servicing it is necessary for the company to replace or repair defective components or parts, the customer shall be required to pay for the same as per the company’s prevailing price list.
- Eureka Forbes Limited reserves the right to offer an annual maintenance contract/ensure availability of spares only up to 7 years from the date of invoice.
*Conditions apply.
Environment Protection:
“Protection” has always been our motto and guiding principle. We care for the environment. We urge you to recycle the packaging material or take it to the nearest recycling facility rather than disposing of it with the rest of your waste. Your product has been designed to work for many years, however, should you wish to upgrade or replace your old
product, remember to help protect the environment by disposing of it at your local e-waste disposal center. Should you have any queries, the nearest authorized service center of Eureka Forbes will be able to guide you. Allow us to become your environment partner; together we can make the world a cleaner place.
Aquaguard’s old logo and new logo are both original Aquaguard products from the house of Eureka Forbes Limited.
![]()
18602661177 I
SMS ‘<REQ>’ to 80822 99333
Now buy online on www.eurekaforbes.com
www.facebook.com/EurekaForbes
www.twitter.com/EurekaForbes.
Email: deepa.customercareaeurekaforbes.com
Eureka Forbes Limited: B1/B2, 701, 7th Floor, Marathon Innova Marathon NextGen, Off Ganpatrao Kadam Marg, Lower Pare!, Mumbai – 400 013, India. Tel: +91 22 4882 1700, 6260 1888 • Fax: +91 22 4882 1701


















