Astor Alkaline Water Purifier

User Manual
Note: The color and specifications may be very from that shown on the user manual
WHY CHOOSE AQUAGUARD® ?
Only Aquaguard®
- Has the trust of over 15 million mothers^
- Is owned by over 1.62 lakh doctors
- Has service within 5 kms. range of wherever you are
- Has over 21 different technologies to address 21 different water conditions across the country
- Is certified by over 130 leading national and international laboratories
- Is sold in over 35 countries worldwide
As per Superbrands & Reader’s Digest.
INSTALLING YOUR AQUAGUARD® ASTOR
Make sure that your Aquaguard® Astor is installed by a trained Eureka Forbes Service Technician only.
- Input water must be tested for Total Dissolved Solids (TDS) and Total Hardness.
- Install your Aquaguard® Astor in a dry ventilated place.
– Keep it away from direct sunlight, heating devices or areas below freezing temperatures.
– You can keep it on the kitchen counter or wall-mount it.
– The purifier should be placed in an area which is free of ants, insects and other pests. - Ensure that the input tap water temperature is in the range of 10º-40ºC.
– Avoid installation to a hot water tap as it can damage the filters. - Ensure that the input water pressure for Aquaguard® Astor RO+UV+MTDS+ ALKALINE is between 0.3 kg/cm2 – 3.0 kg/cm2.
If the input water pressure is more than specified, installation of a PRV
(Pressure Reducing Valve)** is mandatory. If the input water pressure is less than specified, installation of a booster pump** is recommended. - Flush filter thoroughly and independently for 3-5 minutes to remove fine particles present in the filter. This should be done before installation of the unit.
- After installing, run the purifier for 5-10 minutes and drain this water.
INSTALLING YOUR AQUAGUARD® ASTOR
Input Water Quality Usage Limitations:
- If the input water iron content is more than 0.3 mg/litre, use of an iron remover** is recommended as a pre-treatment.
- If the input water turbidity is more than 5 NTU or comprises colloidal particles, use of a special filter** is required as a pre-filter.
- If the input water TDS is more than 1,000 ppm (mg/L) or input water hardness is more than 300 ppm (mg/L), use of a Membrane life enhancer** is recommended.
- Do not install the water purifier if the TDS is more than that prescribed in the technical specifications.
**Available at an extra cost.
MTDS REGULATOR OPERATING PROCEDURE: (Only Applicable for RO+UV+MTDS+ALKALINE Models)
TDS modulator is located inside the product. As per factory setting, it comes in fully closed mode. TDS level of output water can be increased by slowly loosening the spindle of the TDS modulator (anti-clockwise). Normally a slight quarter turn is enough to increase the TDS of the output water. Rotating the spindle in the clockwise direction closes the TDS modulator and reduces the level of TDS blending.
Please note that the TDS blending, and its adjustment is dependent upon the level of TDS of input water and on the TDS reduction capacity of the RO membrane. TDS adjustment should be done by the authorized Eureka Forbes technician only.
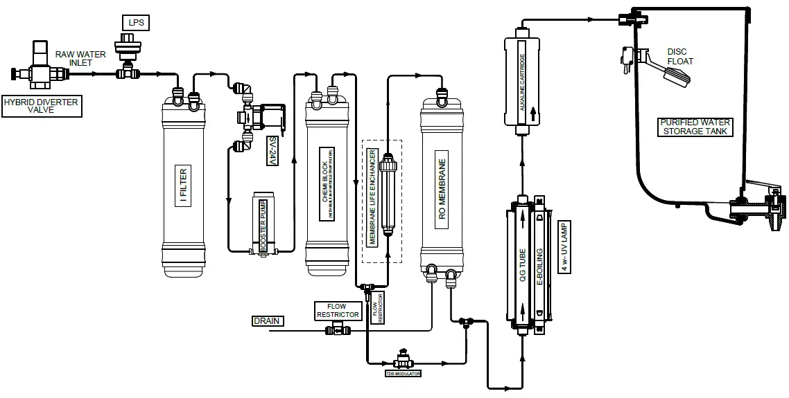
HERE’S HOW YOUR AQUAGUARD® ASTOR RO+UV+MTDS+ALKALINE WORKS
AQUAGUARD ASTOR RO + UV + MTDS + ALKALINE ( WATER FLOW DIAGRAM )

NOTE : THIS IS A SCHEMATIC ILLUSTRATION OF THE PRODUCT TO GIVE A VISUAL SCHEME OF WORKING OF UNITS.
THIS IS NOT AN ACTUAL ENGINEERING DRAWING OF THE PRODUCT.
PURIFICATION PROCESS IN YOUR AQUAGUARD® ASTOR RO+UV+MTDS+ALKALINE

***Not a part of the product, Membrane life enhancer is recommended if the input water TDS is more than 1,000 ppm (mg/L) or input water hardness is more than 300 ppm (mg/L). Available at extra cost.
LED INDICATION CHART FOR AQUAGUARD® ASTOR RO+UV+MTDS+ALKALINE

AQUAGUARD® ASTOR RO+UV+MTDS+ALKALINE TECHNICAL SPECIFICATIONS*

*Technical Specifications are subject to change without prior notice. +As input water applicable to the overall product.
Note: The performance data presented in the table is applicable under standard laboratory conditions#. Actual performance may vary depending on the input water quality, water pressure, turbidity and condition of filters.
Input water quality/pressure/TDS are important determinants of recovery rate and rejection.
**If the input water pressure is more than 3.0 kg/cm2, installation of a PRV (Pressure Reducing Valve) is mandatory. If the input water pressure is less than 0.3 kg/cm2, installation of a booster pump is recommended. If the input water pressure is less than 0.3 kg/cm2, installation of a booster pump is recommended.
++If the input water TDS is more than 1,000 ppm (mg/L) or input water hardness is more than 300 ppm (mg/L), use of a Membrane life enhancer is recommended.
These accessories are available at an extra cost.
Warranty void if not installed as per recommendations.
#Standard Test Conditions: Feed Water Quality: TDS Max: 1,000 mg/L with NaCl, Pressure: 1 kg/cm2, Turbidity: 1 NTU (Max.), Temperature: 25°C, Chlorine: Below 0.2 mg/L, Iron: Below 0.3 mg/L Life: 6,000 Litres.
##Standard test conditions of Alkaline Cartridge Input water: pH : 7.0 (+/- 0.2); TDS : 40 (+/- 10 mg/l); Flow rate: 250 ml/min; Temperature: 25ºC.
Under standard test conditions##, the output water pH range is 7.5 – 8.5 (+/- 0.2).
Note : Performance of alkaline cartridge is applicable under standard test conditions of Alkaline cartridge##. Actual performance may vary depending on the input water quality, life of alkaline cartridge & RO membrane element. Under certain input water quality condition the pH of output water from alkaline cartridge can exceed 8.5 pH.”
For Aquaguard® Astor RO+UV+MTDS+ALKALINE

Note: Please refer Standard Test Conditions# and Standard Test Condition for Alkaline Cartridge## for filter life. **As per manufacturer’s spec.
A QUICK CHECKLIST

CLEANING AND DISINFECTION OF WATER STORAGE TANK
Note: Storage Tank of this product must be periodically cleaned (at least once in every 30 days) by a disinfectant.
Disinfection Tablet* may be purchased from the Company Authorised Service Centre. Please follow the disinfection process strictly as per the instructions as provided in this User Manual.
- Drain the tank completely.
- Switch OFF the water purifier from the main power supply.
- Open the top cover, wipe the inside of the tank with a dry, clean soft cloth.
- Keep the top cover in place.
- Switch the power supply ON.
- Let the storage tank get filled & then drop one disinfection tablet* into the tank.
Caution: Keep the Disinfection Tablet* out of the reach of children.
Do not eat/consume the tablet. - Keep the top cover in place & leave the unit for 30 mins.
- After 30 mins. open the tap & discard this and the first filling water completely.
- Now your unit is ready to use. In case you notice any medicinal taste/smell, discard the tank of water fully & let it refill again.
- Please ensure that this disinfection process is carried out by the authorised installation person/service technician during first installation and in every subsequent mandatory servicing of your product.
*Available with Eureka Forbes Service Technician.
TIPS FOR SAFETY AND MAINTENANCE OF YOUR AQUAGUARD®
- Read attentively and understand the purifier and its functions, before use.
- Installation and service has to be conducted by authorised person from
Eureka Forbes Limited only. - In case of any damage or incorrect functioning, immediately contact an authorised service centre of Eureka Forbes Limited.
- Water from waste water tube is not suitable for drinking. You can use that water for gardening or to clean floors (For applicable models only).
- Water storage tank must be periodically (at least once in every 30 days) cleaned using
a disinfectant (For applicable models only). - Drain the water if it hasn’t been used for over 48 hours.
- Ensure that the flow restrictor is checked and replaced (if required), by the authorised service technician during the mandatory service or in-service call (For applicable models only).
- Ensure that the replacement of the consumable cartridges are done by a trained
Eureka Forbes technician. - Ensure that the filter cartridges and spares used during service/replacement are genuine and from Eureka Forbes Limited only.
WARRANTY TERMS & CONDITIONS
- The Products are warranted against manufacturing defects for a period of twelve (12) months from the date of original purchase.
- The Customer will notify the Company in writing promptly of any defects noticed and give the Company or its authorized agent adequate opportunity to inspect test and remedy them for which the Customer will deposit the goods at its own expense, if so, required by the Company with the
Company’s Office/Service Centre along with the original invoice in the city where they are sold. - The Inspection and Test Report of the company’s office/service centre will be final and binding under the warranty for determining defects, repairs /alterations required or carried out or certifying work of the goods thereafter.
- Aquaguard® may require initial setting, post-installation, depending on varying water conditions and power supply. In case of any service requirement, post-installation, please contact the company’s service centre.
- The company or its authorized agent will be entitled to retain any defective part replaced under the warranty.
- Notwithstanding anything to the contrary contained or implied by this warranty:
a) The company’s liability under this warranty shall be limited to the first sale of the goods by the company to the customer and will not apply or extend
to any secondary sale of goods by the customer.
b) The company’s liability under this warranty shall be limited only to defects in the goods which occur under the conditions of normal operation of the
goods and their proper and prescribed use. The warranty does not cover or extend to defects which are determined by the company or its authorized agents as occurring or resulting from or attributable to negligence, abuse, misuse, faulty care, operation or maintenance or repairs, alterations to the goods or any part thereof by others or the use of the goods on electrical supply for which they are not designed, or damage caused by lightening or
other electrical disturbances or interruptions, dismantling or re-installation at a different location.
c) The company’s liability under this warranty shall remain valid only if the goods are duly installed by the company or its authorized agency at the location specified in the invoice and such installation is undertaken by the company or its authorized agent or franchisee.
d) Consumable items mentioned in the consumables table are subject to normal wear and tear are not covered by this warranty. Please refer model
specific components given in the user manual under the table “consumable cartridges”.
e) Reverse Osmosis Membrane warranty is for a period of 1 year (or) 6,000 litres (whichever is earlier) from the date of installation, on the condition
that the input water is as per the standard test conditions for RO variants (provided in the section “Technical specifications table”), mentioned in the
user manual. If the RO membrane gets clogged within warranty period, it will be cleaned/repaired/replaced free of charge as deemed fit by the
company authorized service person/centre after inspection. (At applicable for RO models only.)
f) The customer will have no claim against the company, its employees and its authorized agents or franchisees under or pursuant to this warranty in respect of death or injury to the customer or any other person or loss or damage to any property caused by or due to equipment failure, breakdown or accident, fire or operation or utilization of the goods otherwise than in accordance with the user manual or by due to any other cause or circum
stances beyond the control of the company.
g) The company’s liability, under this warranty, shall in no event and under no circumstances exceed the price paid by the customer to the company for the goods stated in the invoice.
General
For the purpose of this warranty, the following expressions shall have the following meanings respectively:
- The ‘Goods’ shall mean the goods described in the Order Form.
- The ‘Customer’ shall mean the original purchaser of goods from the company.
- The ‘Company’ shall mean EUREKA FORBES LIMITED.
- Aquaguard® means and includes Aquaguard®, Aquaguard® Select and Sure from Aquaguard®.
- ‘General Terms & Conditions’ shall mean the terms and conditions agreed upon by the customer and the company printed on the Order Form.
- ‘Invoice’ shall mean the invoice issued by the company to the customer describing the goods and indicating, inter alia, the total purchase price thereof and name of the customer.
- ‘User Manual shall mean the instructions for Installation, use and maintenance provided through QR code along with Product supplied by the company.
- EFL reserves the right, in its absolute discretion, to change, alter or discontinue and alter the terms and conditions from time to time without any prior notice.
- Any disputes are subject to Mumbai Jurisdiction only.
Post-warranty
- The customer may be offered a yearly Service Contract at the prevailing company rates and terms.
- In case the customer does not wish to enter the Service Contract, he has the option of calling the company’s service centre having his Aquaguard® services on an actual basis, i.e., by paying the labour cost and spares needed to attend to that service/complaint call at the prevailing company rates. Such service will be rendered by the company in towns/places where the company has its service centres.
- If during such servicing it is necessary for the company to replace or repair defective components or parts, the customer shall be required to pay for the same as per the company’s prevailing price list.
- Eureka Forbes limited reserves the right to offer annual maintenance contract/ensure availability of spares only up to 7 years from the date of invoice.
*Conditions apply.
Environment Protection:
‘Protection’ has always been our motto and guiding principle. We care for the environment. We urge you to recycle the packaging material or take it to the nearest recycling facility rather than disposing of it with the rest of your waste.
Your product has been designed to work for many years, however, should you wish to upgrade or replace your old product, remember to help protect the environment by disposing of it at your local e-waste disposal centre. Should you have any queries, the nearest authorised service centre of Eureka Forbes will be able to guide you.
Allow us to become your environment partner; together we can make the world a cleaner place.



















