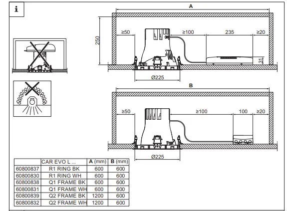
ZUMTOBEL CAR EVO LED L

Mounting instructions


Important notices. Please, read first!
- The installation and commissioning of the luminaire as well as any modification to the luminaire may only be performed
by authorized personnel (qualified electrician).
The manufacturer is not liable for damages resulting from improper or faulty installation or operation or from unauthorized modifications to the luminaire.
The luminaire is used exclusively for lighting and is to be installed in accordance with the national installation regulations. - Use of the supplied control gear only in conjunction with the associated luminaire
Caution, risk of electric shock! Disconnect mains cables and any existing DALI control lines from mains and check that
the power is off before conducting any maintenance and assembly work.
Hot plug-in is not permitted. Hot plug-in may result in damage to the luminaire and entail loss of
warranty claims!
Neutral conductor breaks during operation will result in power surge damage to the lighting system. Therefore neutral disconnect terminals in three-phase AC circuits may only be opened voltage-free and must be closed before power supply is switched back on. The light source contained in this luminaire shall only be replaced by the manufacturer or his service agent or a similarly qualified person. - Luminaire not suitable for covering with material. thermally insulating Commissioning after the construction phase, if the mains voltage is continuously present
- Dispose of packaging and luminaire in accordance with applicable regional regulations.
Keep the instructions safe!
Specifications are subject to change without notice! If you have questions, please contact the manufacturer. - The distance between the luminaire and the illuminated material must not be less than stated.



Protected earthing not required

























