INVERTER GENERATOR
Owner’s Manual
GR2300iS

Tips-read this manual carefully before operating this generator.
GR2300iS Portable Inverter Generator
Save this operating manual properly and carry it with the generator for the convenience of emergency query in the future.This manual constitutes one permanent element of the generator.This manual shall be provided along with the generator set when you lend or resell it.
Relevant information and technical specifications defined in this manual take effect when printing is approved, with the contents based on the equipment in production at
time of publication. Manufacturer reserves the rights to modify and improve any parts described in the text without prior notice.
Foreword
Thank you for purchasing a generator. We recommend that the operator read this manual carefully before use this generator, and fully comprehend all requirements and
operating procedure concerning the generator. In case of any questions about this manual, contact the recent authorized dealer for start up, operation, maintenance program and so on.The technician will teach you how to use the generator in a correct and safe manner.We also recommend that the operator consult startup and operating procedure of this generator when buying it.
Safety precautions
This generator will work in a safe, effective and reliable way only when it is kept, operated and maintained properly.Before operation or maintenance of the generator, the operator should:
Know well and strictly observe local laws and regulations.
Read and observe all safety warnings in this manual and on the device.
Let your family get familiar with all safety warnings in this manual.
lt is impossible for manufacturers to predict all hazardous circumstances that may occur, for this reason, warnings in this manual and caution signs on the generator set may not cover all hazardous circumstances. lf we do not give extra cautions for operating procedures, methods or techniques,operate the generator in such ways that helps guarantee personal safety,make sure no damage to generator set arises there from.
To make sure safe operation,Please read carefully three vital safety warnings in this manual and on the generator, preceded by a safety alert symbol
including:
Safety Information

DANGER
Do not use it indoors.

DANGER
Keep the machine clean and avoid spilt combustibles including gasoline on it.

WARNING
Do not use it in a wet condition.

WARNING
Turn the generator “OFF””when add fuel.

WARNING
Don’t add fuel near the flammable thing or cigarette.

WARNING
Keep children and pets away from the area of operation.
Do not place flammable objects close to the outlet valve when generator operation.
Keep it at least 1m away from inflammables.
WARNING
The generating set must not be connected to other power sources, such as the power company supply main.
Protection against electrical shock depends on circuit breaker specially matched to the generating set.
Due to high mechanical stresses only, tough rubber-sheathed flexible cable (in accordance with ICE 245 or thee quivalent should be used.When using extension lines or mobile distribution networks the total length of lines for across section of 1.5 mm2 should not exceed 60 m; for across section of 2.5 mm2thisshould not exceed 100 m.
Electrical equipment (including lines and plug connections)should not be defective.

WARNING
It must realize safe grounding.
Use the ground wire with enough electric flux.
NOTICE electric flux Ground wire diameter: 0.12mm/A
There is a permanent conductor between the generator (stator winding) and the frame.
EX:10A-1.2mm
The generator (stator winding) is isolated from the frame and from the ac receptacle ground pin. Electrical devices that require a grounded receptacle pin connection will not function if the receptacle ground pin is not functional.
The generator surface has high

WARNING
temperature, avoid scalding. Pay attention to the warnings on the generating set

Connection to a home power supply
If the generator is to be connected to a home power supply as a standby, connection shall be performed by a professional electrician or by another person with proficient
electrical skill.
When the loads are connected to the generator, please carefully check whether electrical connections are safe and reliable. Any improper connection may cause damage to the generator, or cause a fire.

If the generator is to be connected to a home power supply as a standby, connection shall be performed by a professional electrician or by another person with proficient
electrical skill.
When the loads are connected to the generator, please carefully check whether electrical connections are safe and reliable. Any improper connection may cause or damage to the generator.
Others
Make sure Inverter ducted fan, muffler louver and the inverter bottom side cooling well and without chips, mud and water come in. it may damage the generator, inverter or
alternator if the cooling vent blocked. Do not mix the generator with other stuff if moving, storing or running the unit, It may cause generator damage or bring property
safety issue when the inverter in leakage.
There is the warning label on the machine to remind you of the safety regulations.

Read the safety instructions before using the generator.
Gases such as carbon monoxide (colourless and odourless gas)are produced during operation which may lead to suffocation.
Only use the generatorin well-ventilated areas
Only fill the generator in well-ventilated areas and keep it away from open flames, sparks and cigarettes. Spilled fuel should be soaked up immediately.
Switch off the engine and let it cool down before filling the generator. Fuel is easily flammable and may even explode under certain circumstances.
Warning! Dangerous voltages are present when the generator is in operation.
Generator must always be switched off before performing maintenance works.
Wear ear protection when operating the generator
Disconnect all devices from the connections before performing maintenance works, before leaving the device and after switching it off.
WARNING
- A warning reminding the user that he shall conform to regulations of electrical safety applicable to the place where the generating sets are used.
- A warning on the requirements and the precautions to be respected by the user in the case of re-supply by generating sets of an installation, depending on existing protective measures in this installation and applicable regulations.
Control Function
DESCRIPTION

| (1) Handle | (6) Spark plug |
| (2) Fuel tank cap air vent knob | (7) Muffler |
| (3) Fuel tank cap | (8)Louver |
| (4) Recoil starter | (9) Cover |
| (5) Control panel |
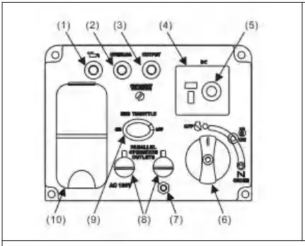
CONTROL PANEL
120V

| (1) Oil warning light | (6)3 in 1 switch knob |
| (2) Overload indicator light | (7)USB Socket |
| (3) AC pilot light | (8) Ground terminal |
| (4) Reset switch | (9)AC receptacle |
| (5) Parallel receptacle |

- Oil warning light
- Overload indicator light(3)AC pilot light
- Reset switch
- ESC(engine smart control)(6) co protect light
- 3 in 1 switch knob(8)Ground terminal(9)USB Socket
- Parallel receptacle(11)AC receptacle
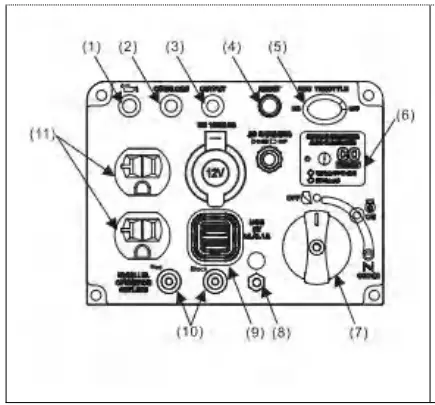
100V

| ( 1 ) Oil warning light | (6) 3 in 1 switch knob |
| (2) Overload indicator light | (7) Ground terminal |
| (3) AC pilot light | (8) Parallel receptacle |
| (4) DC receptacle | (9) ESC(engine smart control) |
| (5) DC protector | (10)AC receptacle |
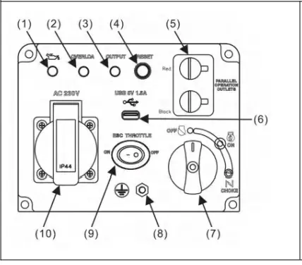
230v
| (1 ) Oil warning light | (6) USB Socket |
| (2) Overload indicator light | (7) 3 in 1 switch knob |
| (3) AC pilot light | (8) Ground terminal |
| (4) Reset switch | (9) ESC(engine smart control) |
| (5) Parallel receptacle | (10) AC receptacle |
![]() | ![]() |
3 in 1 switch knob
- Engine/fuel valve
“OFF”;lgnition circuit is switched off. Fuel is switched off.The engine will not run. - Engine switch /fuel valve /chock.
“ON” lgnition circuit is switched on.Fuel is switched on. Chock is switched on.The engine can be running. - Engine switch /fuel valve /chock.
“ON” Ignition circuit is switched on.Fuel is switched on.Chock is switched on.The engine can be start.
TIP: The chock
is not required to start a warm engine.
Oil warning light
When the oil level falls below the lower level the oil warning light comes on and then the engine stops automatically.Unless you refill with oil, the engine will not start
again.
Tip: If the engine stalls or does not start turn the engine switch to”ON” and then pull the recoil starter. lf the oil warning light flickers for a few seconds, the engine oil is insufficient.Add oil and restart.

Overload indicator light (Red)
The overload indicator light○1 comes on when an overload of a connected electrical device is detected, the inverter control unit overheats, or the AC output voltage rises.Then, the AC protector will trip, stopping power generation in order to protect the generator and any connected electric devices.The AC pilot light (Green)will go
off and the overload indicator light (Red) will stay on, but the engine will not stop running. when the overload indicator light comes on and power generation stops, proceed
as follows:
- Turn off any connected electric devices and stop the engine.
- Reduce the total wattage of connected electric devices within the rated output.
- Check for blockages in the cooling air Inlet and around the control unit. If any blockages are found remove.
- After checking, restart the engine.
TIP: The overload indicator light may come on for a few seconds at first when using electric devices that require a large starting current,such as a compressor or a submergible pump. However, this is not a malfunction.

AC pilot light (Green)
The AC pilot light ① comes on when the engine starts and produces power.
Frequency selection (FS) switch Only for 100V product
| (1)Oil warning light | (7) 3 in 1 switch knob |
| (2)Overload indicator light | (8)Ground terminal |
| (3)AC pilot light | (9)USB Socket |
| (4) Reset switch | (10) Parallel receptacle |
| (5)ESC(engine smart control) | (11)AC receptacle |
| (6) co protect light |
Fuel tank cap
- Remove the fuel tank cap by turning it counterclockwise.
- The fuel tank cap 2 is prowided with an air vent knob1 to stop fuel flow.The air vent knob must be turned to”ON”.This will allow fuel to flow to the carburetor and the engine to run. When the engine is not in use. turn the air vent knob to “OFF” to stop fuel flow.

Ground terminal
Ground terminal 1 connects the earth line for prevention of electric shock.When the electric device is earthed,always the generator must be earthed.

Parallel Operation Outlets
This is the terminal 1 for connecting special cables for parallel running of two generator. The parallel running requires two generator and the special cables. (The rated output in parallel running is 3.0Kva and the rated current is 25.0A/120V;13.0A/230V.)
The handing,operation procedure and the notes on usage are described in the PARALLEL RUNNING KIT OWNER’SMANUAL included in the Parallel.
Pre-oparation
NOTICE
Pre-operation checks should be made each time operation.
WARNING
The engine and muffler will be very hot after the engine has been run.Avoid touching the engine and muffler while they are still hot with any part of your body or clothing during inspection or repair.
Fuel
- Fuel is highly flammable and poisonous.Check “SAFETY INFORMATION”(See page 2-5) carefully before filling.
- Do not overfill the fuel tank, otherwise it may over flow when the fuel warms up and expands.After fill the fuel,make sure the fuel tank cap is tightened securely.
WARNING
- lmmediately wipe off spilled fuel with a clean. Use only unleaded gasoline.The use of leaded gasoline will cause severe damage to internal engine parts.
Remove the fuel tank cap and fill to the red mark.
Recommended fuel: Unleaded gasoline
Fuel tank capacity: Total: 3.7L(0.977 us gal,0.814 UK gal) ①Fuel level

The generator has been shipped without engine oil. Do not start the engine till fill with the sufficient engine oil.
Do not tilt the generator when adding engine.This could result in overfilling and damage to the engine.

- Place the generator on a level surface.
- Remove the cover ①.
- Remove the oil filler cap ②.
- Fill with the specified amount of the recommended engine oil,and then install and tighten the oil filler cap.
- Install the cover.
Oil level

Recommended engine oil:SAE 10W -30 Recommended engine oil grade:APl Service SE type or higher Engine oil quantity: 0.38 L(0.46 us qt, 0.35 Imp qt)
NOTICE
Never operate the engine in a closed area or it may cause unconsciousness and death within a short time. Operate the engine in a well ventilated area.The generator has been shipped without engine oil.Do not start the engine till fill with the sufficient engine oil.
TIP:
- The generator can be used with the rated output load at standard atmospheric conditions.
- “Standard atmospheric conditions “; Ambient temperature 25c.Barometric pressure 100kPa; Relative humidity 30%
- The output of the generator varies due to change temperature,altitude (lower air pressure at higher altitude) and humidity.
- The output of the generator is reduced when the temperature, the humidity and the altitude are higher than standard atmospheric conditions.
- Additionally, the load must be reduced when using in confined areas,as generator cooling is affected.
STARTING THE ENGINE
Turn the air vent knob to“ON” 2.
Turn the 3 in 1 switch to”CHOCK” 3
a.lgnition circuit is switched on.
b.Fuel is switched on.
c.Chock is switched off.
TIP: The choke is not required to start a warm engine.Push the choke knob in to the position“ON”.

Pull slowly on the recoil starter until it is engaged, then pull it briskly.
TIP: Grasp the carrying handle firmly to prevent the generator from faliing over when pulling the recoil starter.

After the engine starts, warm up the engine until the engine does not stop when the choke knob is returned to the”ON”” position ④.
TIP:
When starting the engine,with the EsC”ON”and there is no load on the generator:
ln ambient temperature below 0℃ (32F), the engine will run at the rated (5000r/min) for 5 minutes to warm up the engine.ln ambient temperature below 5℃(41F), the ngine will run at the rated r/min (5000r/min) for 3 minutes to warm up the engine.The EsC unit operates normally after the above time period,while the EsC is “ON”.
STOP THE ENGINE
TIP: Turn off any electric devices.

Disconnect any electric devices.

Turn the 3 in 1 switch to “OFF”②,
a. lgnition circuit is switched off.
b. Fuel is switched off.
Turn the fuel tank cap air vent knob to”OFF” 3 after the engine has completely cooled down.
ALTERNATING CURRENT(AC)CONNECTION
NOTICE
Be sure any electric devices are turned off before plugging them in.
WARNING
- Be sure all electric devices including the lines and plug connections are in good condition before connection to the generator.
- Be sure the total load is within generator rated output.
- Be sure the receptacle load current is within receptacle rated current.
TIP: Make sure to ground (Earth) the generator. When the electric device is earthed, always the generator must be earthed.
- Start the engine.
- Turn the ESC to “ON”.3.Plug in to AC receptacle.
- Make sure the AC pilot light is on.
- Turn on any electric devices.
TIP: The ESC must be turned to“OFF” before increasing engine speed to rated rpm.
- Most motorized appliances require more than their electrical rating for startup.When an electrical motor is started, the overload indicator (red) may come on.This is normal if the overload indicator(red) goes off within 4 seconds. If the overload indicator (red) stay son,consult your generator dealer.
- lf the generator is connected to multiple loads or electricity consumers, please remember to first connect the one with the highest starting current.And last connect the one with the lowest starting current.
- lf the generator is overload, or if there is a short circuit in a connected appliance, the overload indicator (red) will go ON. The overload indicator (red) will stay ON, and after about 4 seconds,current to the connected appliance(s) will shut off,and the output indicator (green) will go OFF. Stop both engines and investigate the problem.Determine if the cause is a short circuit in a connected appliance or an overload, correct the problem and restart the generator.
AC PARALLEL OPERATION
Before connection an appliance to either generator, make sure that it is in good working order and that its electrical rating does not exceed that of the receptacle.
During parallel operation, the EsC switch should be in the same position on both generators.
- Connect the parallel operation cable between the generator to either an generator or companion generator following the instructions supplied with the cable kit.
- Start the engines and make sure the output indicator (green) on each generator comes on.
- Plug an appliance into the AC receptacle.4.Turn on the appliance. AC Parallel Operation Applications
TIP:
- Make sure that it is in good working order. A faulty appliance or power cord can create a potential for electrical shock.
- If an appliance begins to operate abnormally, becomes sluggish, or stops suddenly, turn if off immediately. Disconnect the appliance and determine whether the problem is the appliance, and determine
- whether the problem is the appliance or the rated load capacity of the generator has been exceeded.
- Make sure that the combined electrical rating of the tools or appliance do not exceed that of the generator. Never exceed the maximum maybe used for no more
than 30 minutes. - Never connect different generator models.
- Don’t remove the parallel operation cable when the generator operation.
- For single generator operation, the parallel operation cable must be removed.
WARNING
- Substantial overloading that continuously lights the overload indicator (red) may damage the generator Marginal overloading that temporarily light the overload
indicator (red) may shorten the service life of the - generator.
- For continuous operation, do not exceed the rated power.Rated power in parallel operation is: 3.6 kW.
Application Range
When using the generator, make sure the total load is within rated output of a generator. Otherwise, generator damage may occur.
| AC | ||||
| Power factor | 1 | 0.8-0.95 | 0.4-0.75 (Efficiency 0.85) | |
| GR2300iS | 1800w | 1440w | 720w | Rated voltage 12v Rated current 8.3A |
TIP:
- “~”means below.
- Application wattage indicates when each device is used by itself.T
- he simultaneous usage of AC and DC power is possible but total wattage should not exceed the rated output.
EX:
| Generator rated output | 1800VA | |
| Frequency | Power factor | |
| AC | 1.0 | 1800W |
| 0.8 | 1400W | |
| DC | – | 100W(12V/8.3A) |
The overload indicator light comes on when total wattage exceeds the application range.
(See page 12 for more details.).
NOTICE
- Do not overload.The total load of all electrical appliances must not exceed the supply range of the generator.overloading will damage the generator.
- When supplying precision equipment,electronic controllers, Pcs, electronic computers, microcomputer based equipment or battery chargers, keep the generator a sufficient distance away to prevent electrical interference from the engine.Also ensure that electrical noise from the engine does not interfere with any other electrical devices located near the generator.
- lf the generator is to supply medical equipment, advice should first be obtained from the manufacturer, a medical professional or hospital.
- Some electrical appliances or general-purpose electric motors have high starting currents, and cannot therefore be used, even if they lie within the supply ranges given in the above table.Consult the equipment manufacturer for further advice.
Maintenance
Safety is an obligation of the owner. Periodic inspection, adjustment and lubrication will keep your generator in the safest and most efficient condition possible.The most important points of generator inspection and lubrication are explained on the following pages.
WARNING
lf you are not familiar with maintenance work, have a franchised dealer do it for safety.
Maintenance chart
WARNING
Stop the engine before starting maintenance work.
Use only franchised dealer specified genuine parts for replacement.Ask an authorized franchised dealer for further attention.
| ltem | Routine | Pre-operation check(daily) | 6 months or 100 Hr | 12 months or 300 Hr |
| Spark PLug | Check condition.Clean and replace if necessary. | O | ||
| Fuel | Check fuel level and leakage. | O | ||
| Fuel hose | heck fuel hose for racks or damage, Replace if necessary. | O | ||
| Oil | Check oil level in engine. | O | ||
| Replace | O | |||
| Air filter | Check condition.Clean. | O(1) | ||
| Muffler screen | Check condition.Clean and replace if necessary. | O(2) | ||
| Spark arrester | Check condition.Clean and replace if necessary. | O |
| ltem | Routine | Pre-operation check(daily) | 6 months or 100 Hr | 12 months or 300 Hr |
| Fuel filter | Check condition.Clean and replace if necessary. | O | ||
| Crankcase breather hose | Check fuel level and leakage. | O | ||
| Cylinder head | heck fuel hose for racks or damage, Replace if necessary. | ★ | ||
| Valve clearance | Check oil level in engine. | ★ | ||
| Fittings/fasteners | Replace | ★ | ||
| The point where abnormality was recognized by use | O | |||
- Initial replacement of the engine oil is after before one month or after 20 hours of operation.
- The air filter needs to be cleaned more frequently when using in unusually wet or dusty areas.
Since these items require tools, date and technical skills,you should find a local dealer perform the service.
SPARK PLUG INSPECTION
The spark plug is important engine components, which should be checked periodically.
- Remove the cap 1 and spark plug cap 2 , Insert the tool 4 through the hole from the outside of the cover.
- Insert the handlebar 3 in to the tool 4 and turn it counterclockwise to remove the spark plug.
- Check for discoloration and remove any carbon deposits.The porcelain insulator around the center electrode of spark plug should be a medium to light tan color.
- Check the spark plug type and gap. Standard spark plug:
A5RTC
Spark plug Gap: o.6-o.7mm (0.024-0.028in) - Install the spark plug. Torque: 20.0 N.m


TIP:
lf a torque wrench is not available when installing a spark plug, a good estimate of the correct torque is 1/4-1/2turn past finger tight. However,the spark plug should be tightened to the specified torque as soon as possible. - Install the spark plug cap and spark plug cover.
CARBURETOR ADJUSTMENT
The carburetor is a vital part of the engine.Adjusting should be left to a dealer with the professional knowledge, specialized date, and equipment to do so properly.
ENGINE OIL REPLACEMENT

WARNING
Avoid draining the engine oil immediately after Shopping the engine.the oil is hot and should be with care to avoid burns.
- Place the generator on a level surface and warm up the engine for several minutes. Stop the engine and turn the 3 in 1 switch knob and fuel tank cap air vent knob to”OFF”.
- .Remove the cover ①.
- Remove the oil filler cap ②.
- Place an oil pan under the engine.Tilt the generator to drain the oil completely.
- Replace the generator to a level surface.
NOTICE
Do not tilt the generator when adding engine oil This could result in overfilling and damage to the engine.
- Add engine oil to the upper level. Recommended engine oil: SAE 10W -30 Recommended engine oil grade:APl Service SE type or higher Engine oil quantity:
0.35 L (0.42 us qt, 0.35 lmp qt) - Wipe the cover clean, and wipe up any spilled oil.
NOTICE:
Be sure no foreign material enters the crankcase. - Install the oil filler cap.
- Install the cover and tighten the screws.
AIR FILTER

- Remove the screw ①and then remove the cover 2.
- Remove the screw 3 and then remove the air filter case cover ④.

- Remove the foam element .
- Wash the foam element in solvent and dry it.
- Oil the foam element and squeeze out excess oil.The foam element should be wet but not dripping.
NOTICE
Do not wring out the foam element when squeezing it. This could cause it to tear. - lnsert the foam element into the air filter case.
TIP:
Be sure the foam element seals properly against the air filter holder to avoid air leakage.The engine should never run without the foam element;excessive piston and cylinder wear may result. - Install the air filter case cover in its original position and tighten the screw.
- Install the cover and tighten the screws
MUFFLER SCREEN
WARNING
The engine and muffler will be very hot after the engine has been run.Avoid touching the engine and muffler while they are still hot with any part of your body or clothing during inspection or repair.

- Remove the bolt ①and remove the muffler screen 2.
- Clean the carbon on the muffler screen by wire brush.
- Check the muffler screen and spark arrester, replace if it damage.
- Install spark arrester.
FUEL TANK FILTER

WARNING
Never use gasoline while smoking or in the vicinity of an open flame.
- Remove the fuel tank cap and filter.
- Clean the filter with gasoline.3. Wipe the filter and install it.4.Install the fuel tank cap.
Be sure the fuel tank cap is tightened securely.
Storage
Long term storage of your machine will require some preventive procedures to guard against deterioration.
DRAIN THE FUEL

- Turn the 3 in 1 switch to “OFF”①.
- Remove the fuel tank cap, remove the filter.Extract the fuel from the fuel tank into an approved gasoline container using a commercially available hand siphon. Then,install the fuel tank cap.
WARNING
Fuel is highly flammable and poisonous.
Check “SAFETYINFORMATION” (See page 6) carefully.
NOTICE
lmmediately wipe off spilled fuel with a clean, dry,soft cloth,since fuel may deteriorate painted surfaces or plastic parts. - Start the engine and leave it running until it stops.The engine will stop in approx.20 mins.
TIP:
• Do not connect with anyelectrical devices.
• (Unloaded operation).
Duration of the running engine depends on the amount of the fuel left in the tank. - Remove the screws, and remove the cover
- Drain the fuel from the carburetor by loosening the drain screw on the carburetor float chamber.
- Turn the 3 in 1 switch to “OFF”.7.Tighten the drain screw.
- lnstall the cover and tighten the screws.
- Turn the fuel tank cap air vent knob to”OFF”after the engine has completely cooled down.
ENGINE
Perform the following steps to protect the cylinder, piston ring, etc. From corrosion.
- Remove the spark plug; pour about one table-spoon of SAE 10W-30 into the spark plug hole and reinstall the spark plug.
- Recoil start the engine by turning over several times (with 3 in 1 switch knob off) to coat the cylinder walls with oil.
- Pull the recoil starter until you feel compression.(This prevents the cylinder and valves from rusting).
- Then stop pulling.
- Clean the outside of engine and spay antirust additive.
- Store the generator in a dry, well-ventilated place, with the cover place dover it.
- Lay the engine vertically.
Troubleshooting
![]() | ![]() |
ENGINE CAN’T START
- Fuel systems
• No gasoline in the fire chamber.
• No fuel in the fuel tank…add fuel.
• Fuel in tank.
• CIogged fuel filter …..Clean fuel filter.
• Clogged carburetor….Clean carburetor. - Engine oil system
• oil level is low…Add engine oil. - Electrical systems
• Put the1in 3 switch to CHOKE and pull the recoil starter… Poor spark.
• Spark plug dirty with carbon or wet.. .. Remove carbon or wipe spark plug dry.
• Faulty ignition system.-. Consult a franchised dealer.
GENERATOR WON’T PRODUCE POWER
- Safety device (Dc protector) to”OFF”… . Press the DC protector to “ON”.
- The AC pilot light (Green) go off …. Stop the engine,and then restart.
Parameters
| Model No. | GR2300is | ||
| Generator | Type | Inverter | |
| Rated frequency /Hz | 50/60/50&60 | ||
| Rated voltage /v | 230/120/100 | ||
| Starting Watts /kw | 2.3 | ||
| ※Rated Power /kw | 1.8 | ||
| Power factor | 1.0 | ||
| AC output quality | JB/T 2820 G1 | ||
| THD/% | ≤1.5 | ||
| Noise Level dB/LpA/LwA/K 4m(3/4 load) | 68 | ||
| DC Output/ V-A | 12-8.3 | ||
| Overload Protect | DC | Non-fuse Protector | |
| AC | Control by inverter overload protect program | ||
| Engine | Engine | H80G | |
| Engine type | Single cylinder,4-Stroke,forced air cooling,OHV | ||
| Displacement/cc | 79 | ||
| Fuel type | Unleaded Gasoline | ||
| Fuel Tank capacity/L | 3.7 | ||
| Continue Running Time (at rated power) / h | 3.2 | ||
| Engine oil Capacity/L | 0.38 | ||
| Spark Model No. | A5RTCR | ||
| Starting mode | Recoil start | ||
| Generator set | Length×Width×Height/mm | 430×285×445 | |
| ★Net weight/kg | 17 | ||
※Modified power, run in for more than 20h (run in at 90% of rated power).The weight
★here is indictive and subjected to real products.
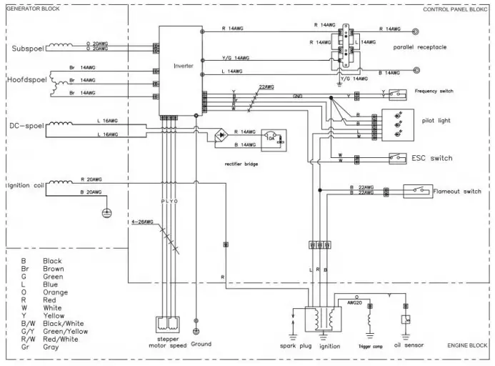
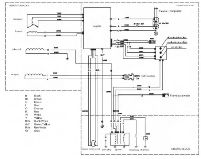
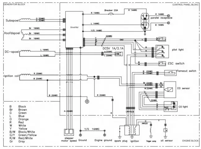
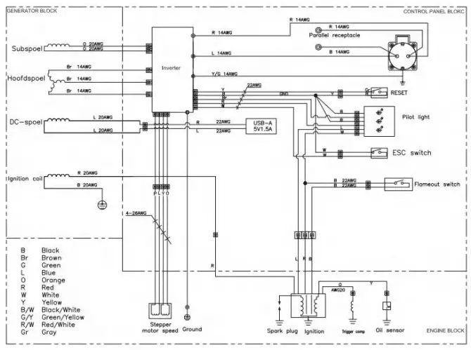
Electrical Schematic Diagram
100v

120V Without CO

120v With CO+USB+Cigarette lighter

230v

























