Knoll INFR Inlet Screens
Parts List
- 3AL2024xx Screen Panel (A)
- 3AL2029 Foot (B)
- 3AL2021 Handle (C)
- 3AL2018 Porthole Trim (D)
- 3AL2017 Porthole Acrylic (E)
- 3AL2028xx Markerboard (F)
- 3AL2025 Screw (G)

Pattern Numbers Represented
Screens: INFR
Tools Required
- Tape measure
- Rubber mallet or dead blow hammer with nonmarring face
- Drill driver with #2 Phillips bit
- Painter’s tape
DISASSEMBLY FOR RECYCLING
Materials Identification and Segregation: Where possible plastic components are marked with ASTM recycling codes. Use these codes to identify material type for recycling. Non-marked components should be treated as mixed plastic. Ferrous metals can be identified using a small magnet for recycling. Non-ferrous metals should be separated and recycled separately
Knoll Inlet Screens, continued
Feet
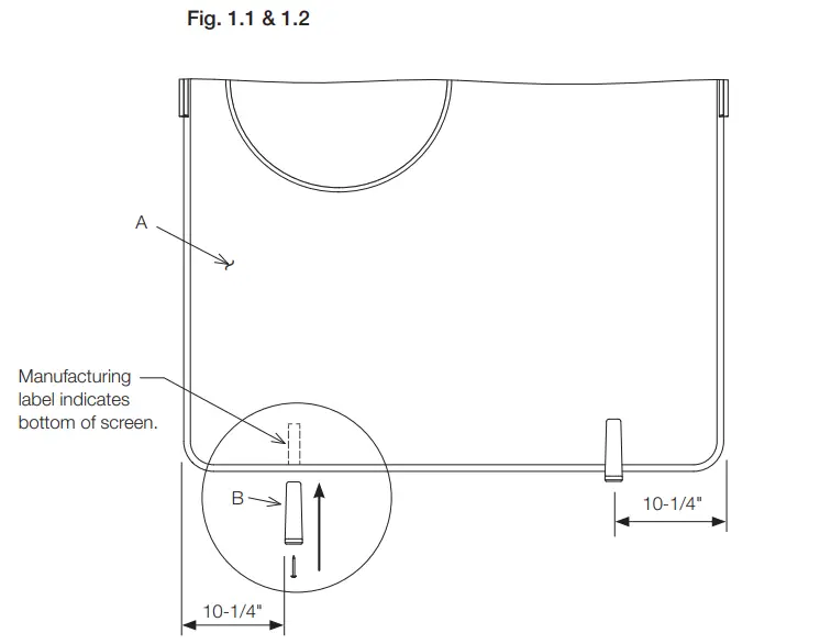
Labels on the screen (A) indicate the base where the feet will be installed.
- Align the outside edge of a foot (B), glides are pre-installed, inboard 10-1/4” from the outside edge of the screen (A).
- By hand, or with a mallet, tap the foot (B) onto the screen (A) until fully seated (friction fit) covering the label.

- Drive #10×2” Phillips screw using a #2 Phillips driver at the lowest possible torque setting, through the hole in the bottom of the foot (B) into the screen (A) until the screw head is flush with the foot

Optional Porthole
- Remove protective paper/film from acrylic
- Wrap porthole trim (D) around the acrylic (E) ensuring the acrylic sits inside the groove of the trim. Temporarily tape the end of the trim together with painter’s tape.

- Stand screen (A) upright. Orient acrylic/trim assembly (D,E) with the trim seam at top of the screen (A) opening (12 o’clock). Starting at the bottom of the screen (A) opening, angle the acrylic/trim (D,E) assembly into the screen (A). Tuck the trim (D) into the screen (A) opening starting at the bottom working to the top. Seat the trim by pushing the trim from one side and pulling from the other side until acrylic/trim assembly (D,E) is fully seated within the screen (A) (friction fit) with equal amount of trim (D) protruding from each side of the screen (A). A clean, non-marring dead blow or rubber mallet may be used to aid this process by tapping the acrylic (not the trim) to help seat the trim assembly.
- Remove painter’s tape.

Optional Handles
- Align the handle (C) (non-handed) to the edge of the screen (A) 11” from the top. Press handle (C) by hand onto end of screen (A).
- Using a dead-blow or rubber mallet, lightly tap handle (C) until fully seated onto screen (A) (friction fit).

Optional Markerboards
Install pre-drilled cleats with screws (G) onto the center upper and lower section of screen (A). For screens (A) with portholes (shown), cleats must be centered from edge of screen to edge of window. Both scenarios have +/- 1/2” allowance on cleat centering. A constant dimension from edge of cleat to edge of screen cannot be used as distance varies depending on screen size and/or porthole. Markerboards (F) come with mating pre-installed cleats on the back. Slide markerboard (F) onto cleated screen (A).
Upper Cleat Location: All screens:
- Distance from top of screen to top of cleat 6-5/8”

Lower Cleat Location:
- 54H x 72W, without window: 26-5/8”
- All other screens: Distance from top of screen to top of cleat 36-5/8


























