Installation Instructions
PS220/220B
DESCRIPTION
The PS220 and PS220B(Battery Backup) are regulated, linear power supplies rated at 2 Amps continuous but designed to provide a brief current surge required by 24VDC for electrified locking hardware: locksets, strikes, maglocks, and latch retraction devices.
SPECIFICATIONS
- Input voltage: 120 VAC, 60Hz, 2 Amp Input Fuse
- Output voltage: Regulated 24VDC +/- 10%
- Current Rating: 2 Amps continuous; 3 Amp Boost @ 20% duty cycle.
- UL294 Sixth edition
- Class 2 Rated power limited Output
- Inputs: 2 independent, solid-state inputs triggered by normally open dry contact
- Solid-State Outputs 1: 2 Auto Resetting rated @ 1.5 Amp ea.
- Enclosure: PS220 (11”W x 11”H x 4”D), PS220B (13”W x 15.5”H x 5”D) (accommodates two 7AH batteries)
- AC Fuse Type: 5mm x 20mm rated @ 2 Amp, 250VAC
- LEDs: Red = A/C Power Indicator, Green = D/C Output Indicator, Orange = Battery Output Indicator
- Temperature Range: 0 to 49° C
- Power Tap1 : Continuous 24VDC with .5 Amp re-setable fuse
- Fire Alarm Link
- Battery charging: Regulated, independent battery charging
- Battery backup: Automatic uninterrupted battery backup.
Note -Battery capacity for emergency standby is at least 1 hour.
Batteries not included (accommodates 2 each 7AH batteries) - Maximum humidity: 85%
- Made in the USA
- UL294 (6e) Security Levels:
Destructive Attack: Level I
Line Security: Level I
Endurance: Level IV
Standby Power: Level I (PS220)/Level IV (PS220B)
1. Total combined current for 24VDC outputs may not exceed 2A

PDQ Industries, Inc. 800-441-9692 www.pdqlocks.com
Mounting Notes
- For UL Installations, the power supply must be installed in the protected area within an Access Controlled room
- Must be Installed within accordance with the National Electrical Code, ANSI/NFPA 70.
- Must be Installed within accordance with Local authority having jurisdiction.
- The AC input wiring shall
a. be in conduit,
b. be minimum No. 18 AWG wire,
c. maintain ¼ inch spacing between non power-limited wiring, and
d. be fail safe to meet the requirements of NFPA 101, Paragraph 7.2.1.6
STEP 1 – Mount the power supply
- Find a cool and dry location to mount the power supply.
- Using the four mounting holes in the power supply box, secure the box to a wall or other solid surface.
(Note: The box is designed & approved for indoor use only.) - Proceed to step 2.
Fig. 1 – Mounting

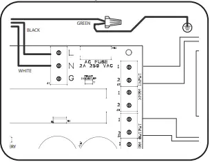
STEP 2 – 120VAC wiring connection
- Make sure 120VAC service is off at power supply PS220 (Breaker should be shut off).
- Make sure 120VAC supply wire is rated at 90° C or higher.
- Connect 120VAC supply wire to the terminal block. Connect ground to pigtail attached to enclosure.
- Restore AC power to power supply. Red LED should now be on.
- Proceed to step 3.
Fig. 2 – 120VAC Connection

WARNING: HIGH VOLTAGE! SEVERE RISK OF ELECTRIC SHOCK IN FIGURE 2
STEP 3 – Wiring the Electrified Hardware
- Shut off breaker supplying AC power to the power supply.
For firing devices independently continue to section A. Firing devices simultaneously proceed to section B.
Section A.
- Using wiring diagram in fig 3.1, wire your exit devices.
- Restore power to power supply and trigger exit devices to make sure they are working correctly.
fig. 3.1 – Wiring & power Tap

Section B.
- Using wiring diagram in fig 3.2, wire your exit devices.
- Restore power to power supply and trigger exit devices to make sure they are working correctly.
Fig. 3.2 – Wiring off 1 relay

For PS220B – Wiring Batteries (Batteries not included)
- Turn on 120VAC to power supply
- WARNING: Make sure battery polarity is correct before you proceed.
- Hook up batteries with battery leads as shown in fig 4. The enclosure will accommodate (2) 7AH 12V batteries.
NOTES:
- When installing batteries for the first time or replacing old batteries make sure the batteries installed are fully charged.
- We recommend you label the battery with the date the batteries were installed. Most battery manufactures recommend the batteries be replaced after 4-5 years of service. You may want to check with your battery manufacturer when establishing a “replace by” date.
Fig. 4 – Wiring Batteries

Connecting to the Fire Alarm Link (if needed)
- Shut off the 120 VAC to the power supply.
- Remove the jumper wire from “FIRE” terminal. (see fig 5)
- Connect to normally closed fire alarm relay.
- Restore AC voltage to power supply
Fig. 5 – Connecting FA

TROUBLESHOOTING
| Symptom | Possible Cause | Solution |
| • EL Exit device can’t fully retract latch | Possibility 1- Wire gauge from power supply to exit device too small | Check with your device manufacturer’s wiring specifications. |
| Possibility 2- Distance from Power Supply. to exit device is too far | Check with your device manufacturer’s wiring specifications. | |
| Possibility 3- Exit device out of adjustment | Re-adjust exit device according to manufacturer’s mechanical recommendations. | |
| • Green channel LED won’t light up, channel isn’t working | Possibility 1- Dead short or overload | Shut off power, detect short, restore power, channel will reset. |
| Possibility 2- Bad solenoid in exit device, or defective interface device between solenoid and power supply. | Check solenoid coil resistance and compare to manufacturer spec. If not close, contact service representative. | |
| • Power supply not working and red LED not lit. | Possibility 1- AC fuse blown | Replace fuse with 2A Slow Blow 250VAC 5mm x 20mm |
| Possibility 2- Short Circuit | If replacement fuse has blown then there is likely a short circuit in the board & it will need to be replaced. |
Doc. #20106_B_PDQ 7/20/22
Installation Instructions

















