HEWI S50.01.01000 Pre Wall Element for Washbasin

Markings, installation and warning notices
Article No. S50.01.01000

OPTION LED

Read original instructions carefully before use.
Keep for future reference.
About these instructions
About these instructions
These instructions describe the mounting of the electronically continuously adjustable washbasin module HEWI S 50 and the corresponding prewall installation.
The following version and option (accessories) is described:
STANDARD version
OPTION LED:
Connection option for LED light strips.
The light source included in this product is energy efficiency grade F. The light source can be replaced.
Safety advice
- Ensure that the product is installed, maintained and repaired by qualified, skilled personnel only.
- Relevant processing guidelines of all trades involved must be considered.
- Use only original spare parts.
- Use only HEWI mounting materials, additional mounting materials available from HEWI.
Warning notices
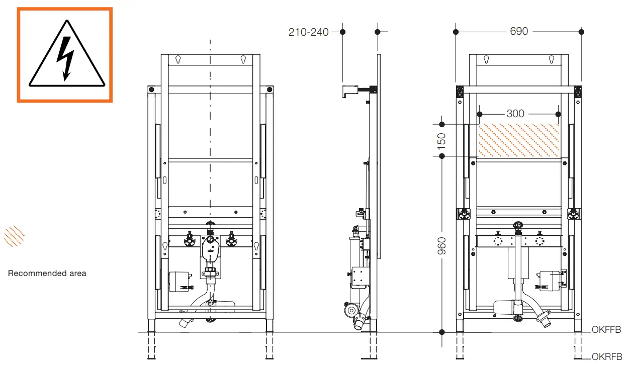
Risk of injury from electric shock, connection to 230 V network must be carried out by an authorised specialist.
Intended use
- Pre Wall installation for installation in drywalls.
- Mounting materials supplied are suitable for concrete and solid sand-lime brick.
- Maximum load weight 400 kg; commercially available washbasins restrict these load limits, standard 150 kg
Terms and symbols used
OKFFB Upper edge of finished floor
OKRFB Top edge building shell floor
Order of mounting steps
Variant
Single steps within a mounting step
Observe notes in separately enclosed instructions, e.g. care tips.
OKFFB Observe floor construction!
Keep all components dry and dust-free!
Further installation conditions can be found in our „Planning & Design Information“ at www.hewi.com/s50.
Warning and hazard notices
Improper cleaning can cause damage to the surface and lead to injuries.
- Clean the product as and when required.
- Follow the manufacturer’s instructions regarding concentration, contact time, etc.
- Always apply the cleaning product on a cloth; do not apply it directly on the surface.
- Note the material-specific information on suitable/ unsuitable cleaning products.
- Try out all products on an inconspicuous area before use.
- Do not use any products with unknown composition.
- Isopropanol (2-propanol) can be used for cleaning or disinfection.
Unsuitable cleaning products
- Abrasive products/objects (e.g. scouring agents, scourer sponge, brushes, steel wool, microfibres, dirt erasers)
- Alkaline, acidic and chorine-based cleaning products, solvents
- Steam cleaners
- Do not treat metal components with objects containing iron (e.g. scourer sponge, steel wool).
To be provided on site
- 230 V power supply
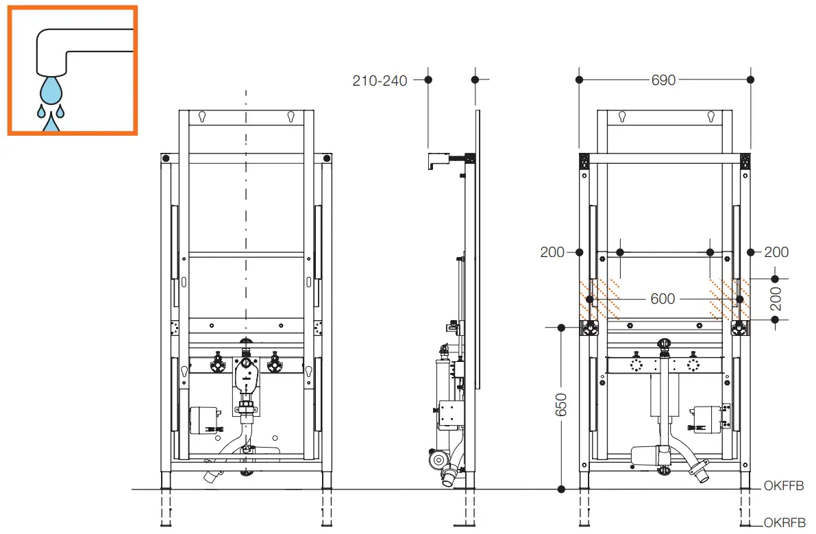
- ½” flexible hose water connection for water intake (connection height 650 mm, allow for sufficient length for the entire travel distance of the washbasin height adjustment)
To be provided on site / Recommendation
- Single-lever stand mixer tap incl. ½” inlet hoses for cold and hot water (1x each)
- ½” angle valve (2x) hansgrohe (13901000)
- Extension ½” angle valve (2x) Viega (357245)
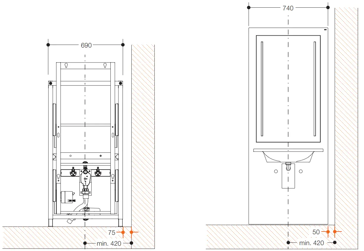
Notes on installation/ dimensions
Wall build-up: min. 12.5 mm / max. 35 mm Installation depth: 210 – 240 mm Keep to height of top edge flooring. Mistakes due to incorrect construction heights can lead to restrictions in the adjustment range. Later correction or corresponding limitation of the setting range is not possible.
Maintenance
Have components cleaned or valves replaced as necessary by specialist staff.
Technical data
Stroke height: 300 mm
Voltage: 230 V (50/60Hz)
Water connection: ½”
Loading capacity up to 150kg
Disclaimer
HEWI does not accept any liability whatsoever for personal injuries or damage to property that is or has been caused due to incorrect assembly, installation or use, especially due to disregard of the listed warnings and safety instructions.
Disposal
Proper disposal is subject to the applicable national statutory regulations.
For further information, please contact HEWI Technical Support, tel. 0044 1634 258200 (UK), 0049 5691 82-0 (International).
Shell Construction Phase

Components S 50 pre wall installation
- Prewall frame
- Mounting feet on wall
- Valve water connection
- Receiver, remote control
- Remote control with separate operating instructions
- McAlpine FYNE 240×40 comp flexible hose
- Washbasin fastening screws
Development Phase

Components fitout element - HPL mounting board
- Water connection extension (provided on site)
- Standard mirror
- Plexiglas front
- Plexiglas front cover drain
- Covering collar dia. 90 mm (Geberit: 241.405.21.1)
- Washbasin fastening drain pipe
- Washbasin
- G 1 1/4 ASK Starr, chrome, always open drain valves (Nr.4042707106391
Components OPTION LED - Control and mains adapter
- LED light strips
- LED mirror
- Remote control with separate operating instructions
Shell and development Phase

Mounting preparation






Mounting preparation


Wall and floor installation


Electricity and water connection

Remote control

Preparation of dry walling

Dry walling


Installation mounting panel




Connection for illuminated mirror



Mirror installation


Completion

Maintenance, servicing


Customers Support
Deutschland
HEWI Heinrich Wilke GmbH
Postfach 1260
D-34442 Bad Arolsen
Telefon: +49 5691 82-0
Telefax: +49 5691 82-319
www.hewi.com
[email protected]













