FORTE 450 Series F9BFRESC450PR 24-Inch Built-In Bottom Freezer Refrigerator User Manual
IMPORTANT NOTICES
- Some provisions in this user manual apply to refrigerating products of different types e.g. (for a refrigerator, refrigerator-freezer or freezer). The Manufacturer shall not be held liable for damage arising from the failure to observe the instructions contained in this manual.
- Keep this manual for future reference, or to provide to the next user.
- The appliance operates properly at the ambient temperature 61℉ (16 ℃) to 90℉ (32℃). Do not use it in conditions that are out of those recommended.
- When placing, moving or lifting the appliance, do not hold the door handles, do not pull the condenser at the rear part of the refrigerator and do not touch the compressor unit.
- When transporting, moving or positioning the fridge-freezer do not tilt it by more than 40°from the vertical position. Should such a situation occur, the appliance should not be switched on for a minimum 2 hours.
- Unplug from the mains socket before any maintenance activity.
- The “cracking” sound, which the appliance may emit is caused by the expansion and contraction of parts as a result of temperature variations during its cooling and defrost recycles.
- For safety reasons never repair the appliance yourself. Repairs carried out by persons who do not have the required qualifications may result in serious danger for the user of the appliance and may void the warranty.
- o not refreeze partly thawed products.
- Do not store beverages in bottles and cans, especially carbonated beverages, in the freezer compartment. The cans and the bottles may explode.
- Do not put frozen products, taken out directly from the freezer (candies, ice cubes, etc.) into your mouth, their low temperature may cause severe frost-bite.
- Make sure you do not damage the cooling system, by puncturing the refrigerant pipes in the evaporator or breaking the pipes. The refrigerant is flammable. If the refrigerant makes contact with the eyes, rinse them with clean water and call for medical assistance immediately.
- This appliance is intended for food and beverage storage, do not use it for other purposes.
- When performing activities, such as cleaning, maintenance or moving, the appliance must be completely disconnected from power supply (by pulling the plug out from the socket or turning off the breaker)
- This appliance should not be used by children under 8 years of age or by persons with physical, mental or sensory handicaps, or by those who are inexperienced or unfamiliar with the appliance, unless they are supervised or have been instructed how to safely use the appliance and are familiar with risks associated with the use of the appliance. Ensure that children do not play with the appliance. Cleaning and maintenance of the appliance should not be performed by children unless they are 8 years or older and are supervised by a competent person.
- Anti-bacteria system (varies depending on the model. Its presence is indicated by the label inside the appliance compartment). The anti-bacteria system protects food and products inside the refrigerator from bacteria and mold which may cause unpleasant smells and shorten storage time. The anti-bacteria system prolongs the freshness of food. The special material used to construct the fridge liner prevents bacterial, micro-organism and mold growth.
APPLIANCE COMPONENTS

- Control panel
- Rear panel cover
- Glass shelves
- Crispers
- Fresh zone
- Drawers
- Door bins
INSTALLATION AND OPERATING CONDITIONS OF THE APPLIANCE
Connect to the power supply
- This appliance should be connected to AC 115V/60Hz supply socket.
- It is a legal requirement that the appliance is properly grounded. The manufacturer will not be held liable for any damage or injury which may result from the failure to fulfil this requirement.
- Do not use adapters, multiple sockets and two-wire extension cords. If it is necessary to use the extension cord, it must have an appropriate wire gauge and safety certification for the load requirement of this appliance.
- When an extension cord is used, it’s socket must be located at a safe distance away from sinks and must not be in a place where it could be flooded by water or wastewater.
- See the serial plate at the lower part of the internal wall of the appliance for detailed specifications**.
Disconnecting the power supply
Make sure the appliance can be easily disconnected from the mains, either by unplugging from the mains socket, or by switching off the breaker.
Minimum distances from heat sources
- from electric, gas and other ovens – 1 inch (30 mm)
- from oil or coal fired ovens – 12 inches (300 mm)
- from built-in ovens – 2 inches (50 mm)
- Use an appropriate insulation panel between them when there is no possibility of ensuring the specified distances.
Installation before using the appliance for the first time
- Make sure there is enough space around the refrigerator to allow it work properly. A free space of ¼ inch (1cm) is required on the rear of the appliance so that the air can be circulated to cool the compressor and condenser. And 12 inches (30cm) space above the refrigerator.
- Make sure the appliance is placed in level position by adjusting the 2 adjustable front legs.

Shelves
The fridge shelves can be moved according to the storage requirements within the fridge section.
To move the shelf, lift up the rear section and then pull it outwards.
To replace, slide the shelf back into the slot, and then lower the rear section.
Placement of the Refrigerator in cabinetry
- This shows the placement of the refrigerator in a row of cabinets – demonstrates the flow of air through the entire cabinet, the platform base that the refrigerator sits on, as well as the cabinet doors as they overlay the refrigerator doors.

INSTALLATION INSTRUCTIONS
Ventilation is the main consideration when installing any refrigeration unit into a custom kitchen.
The heat removed from the cooling and/or freezing compartments needs to be dissipated into the atmosphere.
Incorrect ventilation can lead to premature compressor failure, excessive power consumption, moisture buildup and mold, total system failure and will likely invalidate the warranty provided with the appliance. For products intended to be installed into a cabinet, the following requirements must be met:
Ventilation from underneath through the base of the kitchen cabinet must be set up with the supplied ventilation grill or an air vent with at least a 31 in2 (200 cm2) cross section area.
Installing the cabinet base air ventilation grill:
- Cut a hole in the plinth/kick plate of the kitchen cabinet below the refrigerator: 17.64 in. (448 mm) wide and 2.6 in. (55mm) high.
- Insert the ventilation grill into the cut out in the cabinet base.
- Secure the grill with the 4 screws, 1 in each corner.

IMPORTANT!
An air passageway must be provided in the top of the cabinet run to allow free air in and out.
There must be space at the rear of the cabinet to allow cool air to be drawn over the condenser
Unit and Cavity Dimensions
This built-in appliance is completely enclosed by a kitchen cabinet. The cabinet surrounding the appliance must be designed in accordance with the specified dimensions and must allow sufficient air circulation to ensure correct operation of the appliance.
| Unit | Cavity |
| Width 21 1/4” 540mm | Width Min. 22 1/8” Min. 560mm |
| Height 6941/64” 1769mm | Height 6923/65” – 6927/32” 1771 – 1774mm |
| Depth 2121/32” 550mm | Depth Min. 223/64” Min 560mm |


Cabinet Door Dimensions
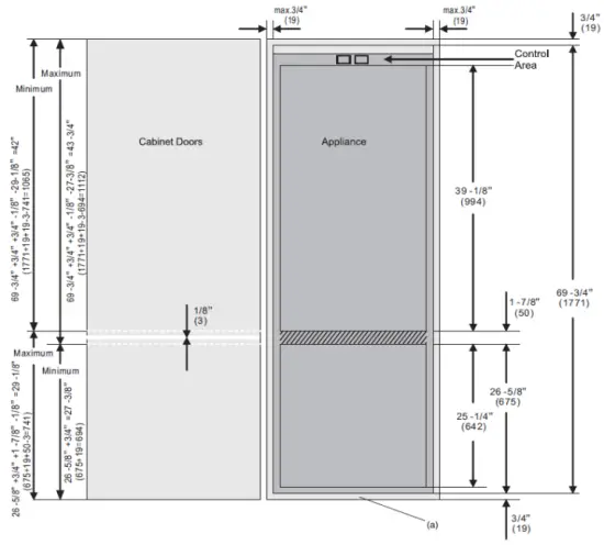
This appliance requires 2 doors. One for the fridge section on the top and one for the freezer section on the bottom. The custom doors must be at least 5/8” (16 mm) thick and no more than ¾” (19mm) thick. The space between the top and bottom doors must be at least 1/8” (3mm), the same as the appliance door space.
Similar space is required between the top door and the cabinet door above the appliance if it exists – 1/8” (3mm).
The width of the spacing between the cabinet doors and the existing cabinets should comply with the existing kitchen cabinets, typically 1/8” (3mm) should be allowed. The cabinet doors must follow the recommended weight requirements –
Fridge compartment door 37.5 lbs (17 kg)
Freezer compartment door 26.5 lbs (12 kg)
Detailed specs for custom doors for appliance: Specs provided for the width of the appliance doors in the diagram . Detail for designers/planners.
Fridge 3813/16” ( 988mm)
Freezer 25” ((640mm)
Definition of the Door Panel Heights
The freezer door height is 25-1/4″(642mm). In order to cover the lower part of the appliance increase the height of the panel to 26- 5/8″(675mm).
To cover the face side of the floorboard (a) add the thickness of the floor board (usually 3/4″(19mm). Thus, the minimum height of the freezer door panel is: 26-5/8″+3/4″=27-3/8″ (675mm+19mm=694mm).
Without door panels on the unit, there is a gap of 1-7/8″ (50mm) between the freezer door and the refrigerator door. After the installation of the cabinet doors, the gap between the two doors will only be around 1/8″(3mm).
If there is other furniture standing close to the refrigerator cabinet this furniture typically has a gap between two drawers or two doors. Depending on your kitchen, these gaps are approximately 1/8″(3mm) wide.
In this case, the maximum height of the freezer door panel is:26 -5/8″+3/4″+1 -7/8″-1/8″=29 -1/8″ (675mm+ 19mm+50mm-3mm= 741mm). Where as the minimum height of the freezer door panel is: 26-5/8″+3/4″=27-3/8″ (675mm+19mm=694mm). The final door height depends on the gap position of the cabinets that stand to the left and right of the refrigerator cabinet.
The height of the refrigerator door panel is: The total opening of the cabinet ( 69-3/4″(1771mm)) plus the thickness of the top as well as the floor board (usually 3/4” (19mm) minus the height of the freezer door panel (xxx”(xxxmm)) and subtract the width of the gap(approximately 1/8″(3mm)): 69-3/4″+3/4 +3/4 -xxx-1/8 =71-1/8″-xxx (1771mm+ 19mm+ 19mm-xxx mm-3mm= 1806mm-XXX )
Start with the lower door of the freezer compartment: ” ” ” ” mm
(The numbers in brackets are mm)
(a) The base of the cabinet can be thickened to raise the the top of the lower door panel to counter height. Lower panel will have to be increased in length by the same amount. The gap between refrigerator and freezer door must lie within the crosshatched area.
With the help of another individual, or two, maneuvre the appliance into the cabinet. There are two metal plates at the base of the appliance. Fit the supplied white spacers to these plates. Ensure that the lips of the spacers are level with the lip of the cabinet base.
Secure the top of the appliance to the top of the cabinet through the metal trim screw holes marked ‘T’.
Remove the white spacers from the base plates and secure the plates to the cabinet base using four of the supplied screws. Replace the spacers.
Ensure that there is a gap of 0.16in (3 to 4mm) between the non-hinged side and the cabinet wall.
Locate the slider in the bracket and fix the slider to the fascia door 0.8in (20 to 22mm) from the edge of the fascia as shown in following pic., ensuring that the slider is positioned centrally and horizontally within the bracket. Tighten securely by hand.
Fill the gap on the non-hinged side with the gasket/seal strip provided.
The finished look for the door sliders should be similar to those shown in following pics., which shows 2 sliders in place.
Once complete, and if you are happy with the fit of the appliance in the cabinet, bend and snap the parts of the white spacers marked ‘S’ as shown by the dotted outline. Leave the rest of the spacer cover in place over the metal plates.
Important: After completing the installation, check that the appliance is secured within the unit and that the door(s) close and open properly. If there is no resistance from the door seals when opening the doors, then it is probable that the appliance and/or decor doors are not fitted properly
DOOR REVERSAL
Carefully prise off the cover cap for the top hinge and unscrew the screws fixing the top hinge to the appliance, you should support the upper door whilst doing this.
Carefully remove the upper door and place it somewhere safe. Note that there are spacers between the door and the hinge; note how many and their position.
Remove the central hinge by removing the screws fixing it to the appliance; support the lower door whilst doing this.
Remove the lower door and place it somewhere safe, again noting the position of any spacer pieces.
Swap the previous top hinge to the opposite side at the bottom.
Refit the lower door using any spacers and position the central hinge on the door. After removing the
cover caps, fix the hinge securely to the appliance.
Swap the previous bottom hinge to the opposite side at the top. Refit the upper door and the “new” top hinge and fix securely to the appliance.
Fit the central cover caps and top hinge cover pieces in place to complete the process.
Unscrew all four slider brackets from the doors and swap them over to the side furthest from the new hinge positions, before the decor door is fitted.
BEFORE FIRST USE
Allow the fridge to settle for at least 24 hours after transport prior to switching the power on.
Clean the interior of the appliance prior to first use, using a solution of baking soda (sodium bicarbonate) and warm water and then thoroughly drying the interior. Note: The fridge may have an odor to it at first. This will disappear as the appliance cools.
Note:
The appliance will start with a default set temperature of 41℉ (5℃) for fridge 36℉ (2℃) for special fridge compartment and 0℉ (-18℃) for freezer and will work continuously until it achieves the correct temperatures. When the appliance is switched off, you should allow five minutes before switching it on again to prevent unnecessary strain to the compressor.
Never store inflammable or explosive items and strong corrosive acids or alkalis in the appliance.
This fridge cools your food by making the inside back of the cavity cold. It is normal for frost to build up on this surface; it then turns into liquid during compressor off cycles and drains through a small drain at the bottom, where it evaporates harmlessly. The presence of frosting or moisture at the back is normal.
STORAGE INSTRUCTIONS
The fridge section is for short term food storage. Although low temperatures can be maintained, extended periods of food storage is not recommended. As the cold air circulates within the fridge, the temperature can vary between the different sections. As such, foods should be stored in different sections according to type.
- Butter, cheeses etc.
- Food in jars and bottles
- Drinks, e.g. milk
- Cooked food
- Yogurts, preserves etc.
- 75 ml bottles or ready meals etc.
- Fresh meat and fish
- Fruit and vegetables
Fridge storage
- Never put liquids in the refrigerator uncovered.
- Never put hot foods in the refrigerator. Warm food should be allowed to cool to room temperature before being put into the refrigerator.
- Nothing should rest against the rear wall of the refrigerator, as this will cause frost and possible condensation problems which will be difficult to remove.
- Make sure food is clean and any extra water is wiped away before putting into the fridge.
- Wrap or cover food before putting into the fridge. This will help prevent the loss of moisture, keep food fresh and avoid unpleasant odors.
- Any foods to be used soon should be stored at the front of the shelf to prevent deterioration caused by the door being open for prolonged periods.
- Do not overfill the fridge. There should be sufficient space between the foods to allow the cool air to circulate.
- Thawing frozen foods in the fridge compartment will help to keep the temperature low and save energy.
- Never store raw meats on shelves above cooked meats or other produce.
Freezer storage
- The freezer compartments are designed to store only frozen food.
- Never put hot or warm foods in the freezer, allow them to cool fully before putting them into the freezer.
- Follow the instructions on the food packaging for storage of frozen food. If no information is provided, foods should not be stored for more than three months after the purchase date.
- Store food in small packages (ideally less than 2lbs). This reduces the freezing time and improves the quality of the food after thawing.
- Wrap food before putting into the freezer. To stop the wrapping sticking together, ensure it is dry
- Label the food before freezing with information including type of food and dates of storage and expiry
- Once food is thawed, it must not be refrozen. Only defrost as much food as is required to prevent wastage.
- Bottled or canned drinks should not be stored in the freezer compartments as they could explode.
- The maximum amount of fresh food that can be frozen within a 24 hour period is 6.5lbs. Do not attempt to freeze more than the maximum amount.
Fresh zone
- The fresh zone means that you can control the temp. inside the fresh zone independently.
- Temperature ranges of fresh zone 27 ℉ (-3℃) to 37 ℉ (3℃ ).
- The fresh zone is designed to make it easier to handle ingredients in a short period of time when you have to handle frozen foods.
- Zero-degree biological preservation technology make the refrigerator contain a relatively stable, independent, very close to 27 ℉ (-3℃) ) but not less than 27 ℉ (-3℃) fresh-keeping compartment and maintain the temperature of the fresh zone sequentially ensure that not to frostbite the food, so that the food will not be frozen and keep fresh for a period of time.
- Suggestions for use: It is recommended to store fresh fish, fresh meat and dried fruit in condition of 28℉ (-2℃) ~ 32℉ (0℃). Put the frozen ingredients into the fresh zone 4~5 hours before use, you can then cut or cook frozen foods effortlessly and enjoy a faster and healthier cooking experience.
- It is recommended to store vegetables and fruit in temperatures of 32℉ (0℃) ~ 37℉ (3℃)
- Note: If you want to put easy-drying items such as meat into the 32℉ (0℃) temperature zone for more than 4 hours, you should wrap the ingredients to avoid excessive moisture loss.
Crisper drawer humidity adjustment
- The crisper drawer within this appliance features a humidity level adjustment slider. Vegetables and similar produce that are subject to wilting (e.g. arugula, spinach leaves, herbs such as basil etc.) should be kept in the crisper drawer and the adjustment slider kept closed (fully to the left – high). By keeping the adjustment slider closed, water vapor is held in the drawer and subsequently greens are kept crisper and fresher for longer.
- By contrast, fruits that are susceptible to rotting should be stored in the crisper drawer with the humidity adjustment slider fully open (to the right – low). This will allow gases, emitted by certain produce and that accelerate the rotting process, to exit the crisper drawer.
- The drawer is marked high and low with vegetable and fruit symbols to aid you
CONTROLS

- First time switching on the appliance or re-supply after power failure, the appliance always works at settings: 41 ℉ (5℃) for fridge, 32 ℉ (0℃) for Fresh zone and 0 ℉ (-18℃) for freezer. If you want to adjust the temperature or functions manually, press any button to activate the control panel, then operations can be conducted.
- Fridge temperature adjustment: press button D on left part of control panel multiple times to cycle through temperatures from 34 ℉ (2℃) to 43 ℉ (8℃).
- Freezer temperature adjustment: press button E on right part of control panel multiple times to cycle through temperatures from 5 ℉ (-15℃) to -9 ℉ (-25℃).
- Fast cooling function: press button B to activate. Button illuminates and fast cooling function is turned on, fridge will work automatically at temperature setting of 36 ℉ (2℃). Mode expires automatically after 24 hours operation and illumination of button ceases. Mode can be canceled manually by pressing the button again.
- Holiday function: press button C to activate. Button illuminates, holiday function is turned on and whole appliance will work automatically at settings: fridge at 63 ℉ (17℃), freezer at 0 ℉ (-18℃).
- Smart function: press button F on control panel, smart function is turned on and button illuminates, fridge compartment operates at setting 41 ℉ (5℃) and freezer compartment works at setting of 0 ℉ (-18℃). The Fresh zone works at setting of 32 ℉ (0℃).
- Fast freezing function: press button G, to activate. Button illuminates and freezer will operate at temperature setting -13 ℉ (-25℃). After 24 hours, fast freezing function stops automatically, or can be ended manually at any time by pressing the button again.
- Standby: press button H for 3 seconds to switch off your appliance and the button illuminates indicating unit is in a standby mode. Press the button H for 3 seconds to switch on your appliance.
- Press the button A to temporary turn the display section corresponding to the fresh zone, press the button A again to adjust the temperature. Temperature ranges of fresh zone from 27 ℉ (-3℃) to 37 ℉ (3℃).
- Fault display
This appliance has ‘fault display & alarm’ function. If a fault is detected, there are alarms displayed on the temperature display, the appliance still cools but a professional service technician should be called to check the appliance.
F1 – Sensor of fridge evaporator
F2 – Sensor of fresh zone
F3 – Sensor of fridge compartment
F4 – Sensor of freezer compartment
F5 – Sensor of defrosting
2E – Fault of fan/motor in freezer
EC – Communication fault between main panel and display panel.
PS: Main board is located in compressor compartment
DEFROSTING
The product has a no frost system which is designed to prevent the heavy build up of ice.
Under normal use, there should be no need to regularly defrost the freezer system.
Note: If you are regularly finding a heavy build up of ice, or pools of water, in the freezer section then it is likely that the door is not sealing properly. This could be due to a defective door seal or an incorrectly fitted, or overly heavy, decor door. For more information see the troubleshooting section on ice.
CARE AND CLEANING
Always disconnect the appliance from the power supply before any maintenance.
The fridge and freezer sections should be cleaned using a solution of baking soda and lukewarm water.
Do not use abrasive products or detergents. After washing, rinse and dry thoroughly.
Clean the shelves and door bins separately by hand with a solution of mild dish detergent and water. Do not put them in the dishwasher.
If the appliance is not to be used for prolonged periods of time, unplug and clean the appliance. The doors should be left slightly ajar to prevent the formation of mildew and unpleasant odors.
TROUBLE-SHOOTING
Should you have any problems with your appliance, check this troubleshooting guide prior to calling Customer Care.
If the appliance is not working, check:
That there is power to the appliance.
The house fuses are intact and the fuse in the plug has not blown.
The fridge has not been turned off.
The plug socket is functioning fine. To check this, plug another electrical appliance in to see if the socket is faulty.
If the appliance is working, but not very well, check:
The appliance is not overloaded.
The thermostat is set to an appropriate temperature.
The doors are closing properly.
The cooling system at the rear of the appliance is clean and free of dust, and not touching the rear wall.
There is enough ventilation at the side and rear walls.
If the appliance is noisy, check:
The appliance is level and stable.
The side and rear walls are clear, and there is nothing resting on the appliance.
Note: The cooling gas in the refrigerator may make a slight bubbling or gurgling noise, even when the compressor is not running.
If the appliance is beeping, check:
That the doors are closed. An alarm will sound after 60 seconds of a door being open.
If ice has formed on the back wall of the fridge:
It is normal for some ice droplets to form on the back wall of the fridge. This does not constitute a fault with the appliance.
Ensure that no items inside the fridge are in contact with the back wall.
Check that there is some resistance when opening the door of the appliance. If it opens at the slightest touch it may mean that the door seal needs to be replaced.
Check the door seal for any kinks, debris or damage. If you notice any, and are unable to resolve the issue yourself, contact Customer Care so that the seal can be replaced.
This can be due to the decor door(s) not being properly fitted. If you are at all unsure, ask your fitter to check the decor doors.
If excessive ice has formed in the freezer:
Check that there is some resistance when opening the door of the appliance. If it opens at the slightest touch it may mean that the door seal needs to be replaced.
Check the door seal for any kinks, debris or damage. If you notice any, and are unable to resolve the issue yourself, contact Customer Care so that the seal can be replaced.
This can be due to the decor door(s) not being properly fitted. If you are at all unsure, ask your fitter to check the decor doors.
If one or more of the LED units within the appliance is not working:
Contact Customer Care to arrange a service visit.
Refrigerator Warranty
Your REFRIGERATOR has been inspected and tested and is warranted subject to following for a period to 24 months from the date of purchase against defects in workmanship and materials. During this period, we undertake to repair or replace any defective part which was originally defective in our opinion. This warranty is null and void if the appliance is used for commercial purposes.
SECOND THROUGH FIFTH YEAR FULL WARRANTY ON SYSTEM PARTS AS LISTED In the second through fifth years from the date of purchase, when this refrigerator is operated and maintained according to instructions attached to or furnished with the product, FORTÉ Appliances will pay for replacement parts and repair labor costs to correct defects in materials or workmanship in system. These parts are: compressor, evaporator, condenser, dryer, and connecting tubing.
This warranty is valid only when:
- This appliance has not been opened or tampered with by any unauthorized person.
- The appliance is brought to and taken from the retailer at the customer’s cost and risk.
- The warranty card and Cash Memo duly signed by the authorized retailer are present with the complaint.
- The appliance has been installed, used and maintained in accordance with the instruction manual.
The warranty does NOT apply for:
- Damages due to chipping, peeling of coating and denting.
- Breakage or damage to components made of Bakelite, plastic materials, rubber parts and cord.
- Normal wear and tear of parts.
- Damage resulting from accident, mishandling or negligence on the part of the customer. Liability for consequential loss or damage is neither accepted nor implied.
FORTÉ Appliances will not pay for:
- Service calls to correct the installation of your refrigerator, to instruct you how to use your refrigerator, to replace house fuses or correct house wiring or plumbing, to replace light bulbs, or replacement water filters other than as noted above.
- Repairs when your refrigerator is used in other than normal, single-family household use.
- Pickup and delivery. Your refrigerator is designed to be repaired in the home.
- Damage resulting from accident, alteration, misuse, abuse, fire, flood, improper installation, acts of God, or use of products not approved by FORTÉ Appliances
- Any food loss due to product failure.
- Repairs to parts or systems resulting from unauthorized modifications made to the appliance.
- Replacement parts or repair labor costs for units operated outside the United States or Canada.
- Travel or transportation expenses for customers who reside in remote areas.
- Any labor costs for replacement of the water filter during the limited warranty period.
1870 Bath Avenue, Suite 3 |
Brooklyn, NY 11214 |
Tel: 718.249.1217 |
[email protected] |
www.forteappliances.com






















