signify TruGroove Recessed Micro Light

Installation Instructions
Standalone or Continuous Run in T-Grid Ceiling
These instructions review how to install TruGroove recessed micro fixtures in T-Grid ceilings for power over ethernet application. For continuous run lengths, Please refer to layout drawings supplied by Philips Ledalite in conjunction with these installation instructions. The graphics below show the components required to install a run of TruGroove fixtures in T-Grid ceilings. 
Hanger Kit(s)
- Bracket (x4)
- Screws (x8)
NOTE: One kit required for each module.
Joint Kit(s)
- Joiner Aligners (x2)
- Joining Brackets (x2)
- Hex Bolts (x4)
- Screw(s) ( x1 symmetric, x2 for asymmetric )
- LED pan connectors (x1)
NOTE: Image shown is a symmetric connector. Asymmetric has two pieces.
NOTE: One (1) kit required for each module joint in continuous runs

This equipment has been tested and found to comply with the limits for a Class A digital device, pursuant to part 15 of the FCC Rules. These limits are designed to provide reasonable protection against harmful interreference when the equipment is operated in a commercial environment. This equipment generates, uses, and can radiate radio frequency energy and, if not installed and used in accordance with the instruction manual, may cause harmful interference to radio communications. Operation of this equipment in a residential area is likely to cause harmful interference in which case the user will be required to correct the interference at his own expense.
Important Notes
Warning, Shock Hazard
Fixture must be connected to building ground via the provided ground wire before connecting to mains power supply.
Disconnect or turn off power before attempting any installation, service or maintenance.
Prepare Fixtures
Arrange boxed fixtures on floor in specified mounting locations, based on supplied layout drawings. Remove fixtures from boxes. Remove plastic from fixtures. Match up each fixture and lens based on the spec tag and ID number labelled on each fixture box for the specified run.
Install Fixtures
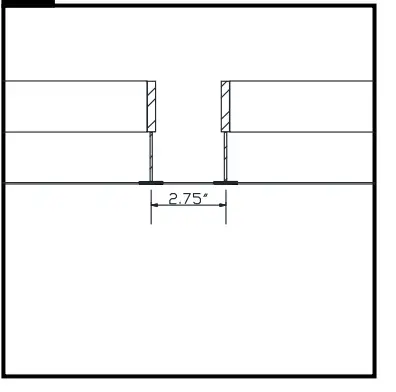
- T-Grid
Install main T’s, 2.75” on center. For continuous row lengths, refer to supplied layout drawings. Add 1/4 “ to the overall housing length indicated on your layout drawings. Position the cross T.
- Install Mounting Brackets
Important: Install T-Grid mounting brackets to required height.
- Install Fixture Above T-Bar Grid
Install the first fixture (or Standalone Unit) from above the T-Bar Grid.
NOTE: For Standalone fixtures skip to step 7 - Install Joiner Aligners
In the joining fixtures install the joiner aligners in the trim extrusion to approximately halfway
Important: To insert aligners, tap gently with a hammer until half is inserted into the joiner channel. Be sure to engage the dimple. - Open Slots for Joiner Brackets
Snap off the safety cover on joiner brackets slots with a flat head screw driver. This only needs to be done one sides that require joining. - Install Joiner Brackets
Install supplied side attachment brackets with 3/8” nut driver.
- Secure Fixture on the Grid
Secure the fixture to T-bar the Grid. For continuous runs, finish installing run first and then secure to the T-Bar grid. - Install CAT6 Cables
Install CAT6 cables and desired location. - Install Seismic Restraints
Install seismic restraints according to local building code requirements.
- LED Pan Joiner – Symmetric
Mount the LED pan connector with the supplied screw in the joiner kit.
10b LED Pan Joiner – Asymmetric: Mount the LED Pan connector with the supplied screw in the joiner kit. There are two pieces for asymmetric fixtures.
- Install Snap-In Flush Lens
Snap in lens into fixture. Standalone Units: Lenses are supplied in 2’, 3’, 4’, 5’, 6’ or 8’ lengths.
Continuous Runs: Lenses are pre-cut to a maximum of 8’ lengths and are specific to run lengths. Consult layout drawings for placement.
Sensors in Rows
Single Sensor Controlling Whole Row
- Purple & brown (or purple & grey/pink) control wires MUST be connected between fixtures.
Note: A maximum of 8 drivers can be wired to one sensor; confirm fixture driver count with factory.
Multiple Sensors Controlling Separate Zones in a Row - Purple & brown (or purple & grey/pink) control wires MUST NOT be connected between zones.
Notes:
A maximum of 8 drivers can be wired to one sensor; confirm fixture driver count with factory.
Only one sensor is allowed on a wired zone. (Sensors can be paired together wirelessly via a mobile app).
Sensor Spacing
- For correct operation, sensors should be placed a minimum distance of 8ft apart.
- Wireless sensors should be placed no further than 40ft apart for good wireless signal connection.

Important Consideration When Using Sensors in a Row
- For fixtures with wireless sensors (CS, SB or RA options):
- DO NOT connect fixture purple & brown (or purple & grey/pink) control wires to an external dimming switch. Fixture mains wiring should not be connected to a circuit with an external on/off switch.
- For best aesthetic condition, place sensors at ends of row only so as not to break the continuous lens.
- For better occupancy coverage in longer rows, sensors may be placed mid run, but keep in mind this will break the continuous lens into discrete sections. Alternatively, remote sensor may be used, note the same wiring rules will apply.
ATTENTION: Install in accordance with national and local building and electrical codes.
Occupancy Sensor Coverage
Note: Longer dimension of detection area (Y1, Y2) is parallel to longer dimension of the luminaire.
Daylight sensor
The light sensor measures the total amount of light in a circular field of approximately 80% of the PIR detection area. The following aspects should be observed during installation:
- Minimum distance from the window ≥2ft (0.6m).
- Prevent light reflections from outside entering the sensor (for example sunlight reflection on a car hood) as this will lead to incorrect light regulation.
As a guideline the formula 0.72 x H can be used to calculate the minimum distance between the window and sensor whereby H is the height from the bottom of the window to the sensor.
The detection area for the movement sensor can be roughly divided into two parts:
- Minor movement (person moving ≤3ft/s or 0.9m/s).
- Major movement (person moving ≥3ft/s or 0.9m/s).
Photosensor spatial response
2021 Signify Holding. All rights reserved. The information provided herein is subject to change, without notice. Signify does not give any representation or warranty as to the accuracy or completeness of the information included herein and shall not be liable for any action in reliance thereon. The information presented in this document is not intended as any commercial offer and does not form part of any quotation or contra ct, unless otherwise agreed by Signify.
Signify North America Corporation
400 Crossing Blvd, Suite 600
Bridgewater, NJ 08807
Telephone: 855-486-2216
Signify Canada Ltd.
281 Hillmount Road,
Markham, ON, Canada L6C 283
Telephone: 800-668-9008
All trademarks are owned by Signify Holding or their respective owners.
www.signify.com
www.ledalite.com




NOTE: For Standalone fixtures skip to step 7



Multiple Sensors Controlling Separate Zones in a Row



















