MONTIGO PVHIN47-200 Inline Power Vent System

4/7 INLINE POWER VENT
MUST USE IN CONJUNCTION WITH APPLICABLE TERMINATION: TMVIN47-12, TMHIN47-24, MTO4-PV, MTO4F-PV, MVTK1SS
- The installation of this fireplace must be done by a qualified and certified gas appliance installer.
- Check local codes and read all instructions prior to installation.
WARNING:
FIRE OR EXPLOSION HAZARD
Failure to follow safety warnings exactly could result in serious injury, death, or property damage
- Do not store or use gasoline or other flammable vapors and liquids in the vicinity of this or any other appliance.
- WHAT TO DO IF YOU SMELL GAS
- Do not try to light any appliance.
- Do not touch any electrical switch; do not use any phone in your building.
- Leave the building immediately.
- Immediately call your gas supplier from a neighbour’s phone. Follow the gas supplier’s instructions.
- If you cannot reach your gas supplier, call the fire department.
- Installation and service must be performed by a qualified installer, service agency or the gas fitter
![]()
Installer: Leave this manual with the appliance.
Consumer: Retain this manual for suture reference.
![]()
Installation and service must be performed by a qualified installer, service agency or the gas fitter.![]()
Read and understand this manual. Improper installation, adjustment, alteration, service or maintenance can cause serious injury, property damage or even death. For assistance or additional information consult a qualified installer, service agency or the gas supplier.![]()
Some materials used in the manufacturing process of this product can expose you to Benzene which is known in the State of California to cause cancer and birth defects or other reproductive harm. For more information go to www.P65warnings.ca.gov
Safety Alert Key
![]()
Indicates a hazardous situation which, if not avoided, WILL result in death or serious injury or property damage.
![]()
Indicates a hazardous situation which, if not avoided, COULD result in death or serious injury or property damage.
![]()
Indicates a hazardous situation which, if not avoided, WILL result in minor or moderate injury
![]()
Indicates practices that are important, but not related to personal injury.
Introduction
Congratulations on your purchase of a Montigo Fireplace.
This installation guide covers installation of the Inline Power Vent System only. This system is designed to allow installation of gas fireplaces that cannot be done with a standard Direct Vent gas fireplace installation.
ONLY USE WITH APPROVED FIREPLACES – see fireplace installation manual.
Read through the fireplace’s installation & maintenance manual, as it must also be adhered to.
Power Cord Harnesses:
- EPVH10 – 10 foot power cord and harness
- EPVH20 – 20 foot power cord and harness
- EPVH40 – 40 foot power cord and harness
- EPVH50 – 50 foot power cord and harness
- EPVH60 – 60 foot power cord and harness
- EPVH80 – 80 foot power cord and harness
- EPVH100 -100 foot power cord and harness
Power vent specifications
Voltage: ………115V 60HZ
Current:………1.4A
RPM:………….2300
CFM: ………….300
Capacitor: …..12uF
- Maintenance-free ball bearings
- Thermally protected
- IP 44 protection
- Motor insulation class F
MPORTANT:
For vent configurations and power vent locations, refer to fireplace manual.
Section A: Before You Begin
IMPORTANT MESSAGE: SAVE THESE INSTRUCTIONS
The unit must be installed in accordance with these instructions.
Carefully read all the instructions in this manual first. Consult the Local Gas Branch to determine the need for a permit prior to starting the installation. It is the responsibility of the installer to ensure this fireplace is installed in compliance with the manufacturers instructions and all applicable codes.
NOTICE
Do not use this appliance if any part has been under water.
Immediately call a qualified service technician to inspect the appliance and to replace any part of the control system and any gas control that has been under water.
NOTICE
Children and adults should be alerted to the hazards of high surface temperature and should stay away to avoid burns or clothing ignition
CAUTION
When cold air enters the warmer building interior, primarily at the air intake end, condensation may occur on the exterior of the flex pipe. To limit this condensation, install insulation over the last twenty feet of flex pipe. Also, by sloping the last 20′-0″ feet of flex pipe downward toward the exterior of the building, elimination of most of the condensation problems should occur. Ensure the termination is securely fastened, and sealed to the flex pipe. Fasten the termination to exterior of the building with water tight sealant and the appropriate fasteners.
Power Vent Compatibility
| POWER VENT SERIES | HARNESS/HARNESS+ BOARD REQUIRED | REDUCER REQUIRED | |
| DRL3613NI | 200 | PVBWH-SIT | NO |
| DRL3613NI-2 | 200 | PVWH-SIT | NO |
| DRL4813NI | 200 | PVBWH-SIT | NO |
| DRL4813NI-2 | 200 | PVWH-SIT | NO |
| DRL6013NI | 200 | PVBWH-SIT | NO |
| DRL6013NI-2 | 200 | PVWH-SIT | NO |
| DRSQ34NI | 200 | PVBWH-SIT | NO |
| DRSQ34NI-2 | 200 | PVWH-SIT | NO |
| DRSQ38NI-2 | 200 | PVWH-SIT | PVA5487 |
| DRSQ38NI | 200 | PVBWH-SIT | PVA5487 |
| DRSQ42NI-2 | 200 | PVWH-SIT | PVA5487 |
| DRSQ42NI | 200 | PVBWH-SIT | PVA5487 |
| DRSQ46NI-2 | 200 | PVWH-SIT | PVA5487 |
| DRSQ46NI | 200 | PVBWH-SIT | PVA5487 |
| D3615NI-2 | 200 | PVWH-SIT | PVA5487 |
| D4815NI-2 | 200 | PVWH-SIT | PVA5487 |
| D6315NI-2 | 200 | PVWH-SIT | PVA5487 |
| D7215NI-2 | 200 | PVWH-SIT | PVA5487 |
| D3615STNI-2 | 200 | PVWH-SIT | PVA5487 |
| D4815STNI-2 | 200 | PVWH-SIT | PVA5487 |
| D6315STNI-2 | 200 | PVWH-SIT | PVA5487 |
| D7215STNI-2 | 200 | PVWH-SIT | PVA5487 |
| H38FSD* | – | – | – |
| H38FSD*I | 200 | PVBWH-SIT | PVA5487 |
| H42FSD* | – | – | – |
| H42FSD*I | 200 | PVBWH-SIT | PVA5487 |
| H38PF*I-2 | 200 | PVWH-SIT | PVA5487 |
| HL38PF*I-2 | 200 | PVWH-SIT | PVA5487 |
| H38CL*I-2 | 200 | PVWH-SIT | PVA5487 |
| H38CR*I-2 | 200 | PVWH-SIT | PVA5487 |
| HL38CL*I-2 | 200 | PVWH-SIT | PVA5487 |
| HL38CR*I-2 | 200 | PVWH-SIT | PVA5487 |
| POWER VENT SERIES | HARNESS/HARNESS+ BOARD REQUIRED | REDUCER REQUIRED | |
| R320* | 300 | NO | NO |
| R420* | 300 | NO | NO |
| R520* | 300 | NO | NO |
| R720* | 300 | NO | NO |
| R820* | 300 | NO | NO |
| R320ST* | 300 | NO | NO |
| R420ST* | 300 | NO | NO |
| R520ST* | 300 | NO | NO |
| R620ST* | 300 | NO | NO |
| RP620* | 300 | NO | NO |
| RP424PF* | 300 | NO | NO |
| R324STIO* | – | – | – |
| P38DF*I-2 | 200 | PVWH-SIT | PVA5487 |
| P42DF*I-2 | 200 | PVWH-SIT | PVA5487 |
| P52DF*I-2 | 200 | PVWH-SIT | LVA54107 |
| PL38DF*I-2 | 200 | PVBWH-SIT | PVA5487 |
| PL42DF*I-2 | 200 | PVBWH-SIT | PVA5487 |
| PL52DF*I-2 | 200 | PVBWH-SIT | LVA54107 |
| L38FSD* | – | – | – |
| L38FSD*I | 200 | PVWH-SIT | PVA5487 |
| L42FSD* | – | – | – |
| L42FSD*I | 200 | PVWH-SIT | PVA5487 |
| L52FSD* | – | – | – |
| L52FSD*I | 200 | PVWH-SIT | PVA5487 |
| 30FID*IS-01 | – | – | – |
| 34FID*IS-01 | – | – | – |
Required Components
| 1 Power Vent | 2 Harness Kit | 3 Raducer ( IF unit is Not 4/7) | 4 Power Cord |
| PVBWH-SIT
This kit is designed to power vent fireplaces that were shipped with a Proflame 2 BASIC control board. The PVBWH-SIT kit contains a full load board as well as a power vent wiring harness. | PVA5487
|
|
PVWH-SIT
| LVA54107
|
Approved Vent for Power Venting
- Montigo 4/7 pipe
- Duravent 3/5 CVS pipe

The fireplace manual may reference additional approved alternate venting manufacturers, though these are NOT all approved for power vent runs.The following venting components are approved for use with Montigo products. Please contact your local Montigo dealer for further information.
Alternate venting table
| Component | Duravent P/N | Description | Notes |
| Adaptors | 46DVA-AD-M1 46DVA-AD-M2 58DVA-AD M1 46DVA-X35CVS 35CVS-X46DVA 58DVA-X35CVS | Montigo 4/7 to Duravent 4/6⅝ at fireplace Duravent 4/6⅝ to Montigo 4/7 at termination Montigo 5/8 to Duravent 5/8 at fireplace Duravent 4/6⅝ reducer to 3/5 at fireplace 3/5 increaser to 4/6⅝ at termination 5/8 reducer to 3/5 at fireplace | Also used on Inline PV downstream Also used on Inline PV upstream Also used on Inline PV downstream Also used on Inline PV upstream |
| Termination Inline PV | 46DVA-HC 46DVA-VCH 35CVS-HCR 35CVS-VC | Duravent wall termination Duravent roof high wind termination 3/5 round wall termination 3/5 Roof termination | Requires 35CVS-X46DVA 3/5 to 4/6⅝ increaser Requires 35CVS-X46DVA 3/5 to 4/6⅝ increaser |
| Rigid Pipe | 35CVS-06 35CVS-12 35CVS-24 35CVS-36 | 3/5 Diameter 6″ Pipe Length 3/5 Diameter 12″ Pipe Length 3/5 Diameter 24″ Pipe Length 3/5 Diameter 36″ Pipe Length | |
| Telescoping Pipe | 35CVS-12TA 35CVS-18TA | 3/5 Diameter Adjustable Pipe 9″-12″ 3/5 Diameter Adjustable Pipe 12″-18″ | |
| Elbows | 35CVS-E45 35CVS-E90 | 3/5 Diameter 45° Elbow 3/5 Diameter 90° Elbow | |
| Wall Thimble | 35CVS-WT 35CVS-WTP | 3/5 Wall Thimble 3/5 Wall Thimble with insulation ring | |
| Support ring | 35CVS-RS 35CVS-WS | 3/5 Roof Support 3/5 Wall Strap | |
| Firestop | 35CVS-FS | 3/5 Firestop with support clamp | |
| Roof Flashing | 35CVS-F 35CVS-DSA | 3/5 adjustable roof flashing 0/12 to 12/12 pitch 3/5 DSA Roof Flashing, up to 7/12 pitch | |
| Storm collar | 35CVS-SC | 3/5 Roof storm collar |
Section 1: Dimensions
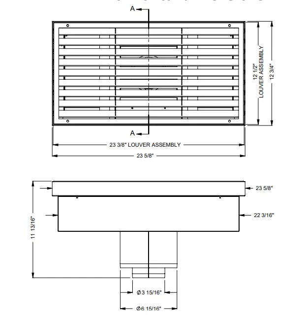
PVHIN47-200 Inline power vent unit dimensions

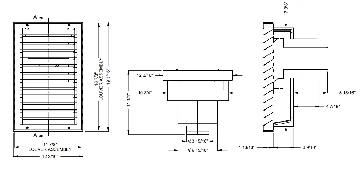
TMVIN47-24 horizontal dimensions


TMVIN47-12 vertical dimensions

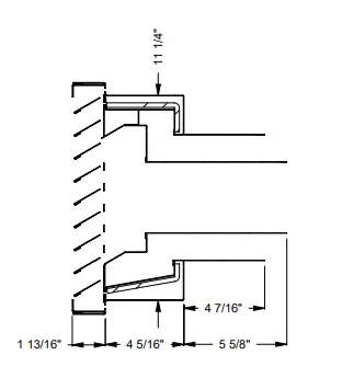
MT04-PV termination dimensions

Section 2: Installing the power vent
Power Vent Clearances


Horizontal venting configurations
Multi-elbow installations are possible up to a maximum eighty five feet, with five (5) 90° elbows and two (2) 45° elbows. Minimum vent run from Fireplace to Power Vent must be four feet, (4′-0″). Maximum allowable vent run must be reduced by ten feet (10′-0″) for every 90° elbow added
Vertical venting configurations
Multi-elbow installations are possible up to a maximum one-hundred feet, with three (3) 90° elbows. Minimum vent run from Fireplace to Power Vent must be four feet, (4′-0″). Maximum allowable vent run must be reduced by ten feet (10′-0″) for every 90° elbow added.
NOTICE
After adapting Montigo 4/7 vent to CVS Vent, the run must be converted back to Montigo 4/7 venting before connecting to the power vent.
Wiring Installation
Connect the wiring to the external power vent termination as outlined in the previous section, and connect the wiring to the fireplace as outlined in the schematic below. Ensure that the proper clearances are maintained for the wiring and conduit.
- When installing the wiring it must never run above the vent run and it must be at least 1″ clear of all venting.

WARNING
If you do not follow these instructions exactly, a fire or explosion may result causing property damage, personal injury or loss of life.
NOTICE
Below are the instructions for the PVWH-SIT, designed for full load units with an existing Proflame 2 full load control board. For instructions on the PVBWH-SIT, please refer to PVBWH-SIT section of this manual.
PVWH-SIT Installation
- Shut off the power to the fireplace before starting.
Locate control board inside the fireplace. It might be attached to the bottom of fireplace or on the tray.
Control board is secured with two Velcro strips.
Pull out control box/tray from fireplace so all connections are clearly visible, if needed cut zipties on wiring harness to get extra slack.
- Unplug valve control harness from X5 plug on control board and remove battery backup (held with Velcro)

- Locate combination gas valve and unplug connectors from green and red solenoid valve and yellow ground from valve body.

- Unplug the rest of the connections from control board.
Its recommended to take a photo of connections before unplugging. Note: do not discard any wiring (except valve control harness)
- Remove control board lid by gently prying tabs on all 4 corners with screwdriver

- Locate jumper pin on control board

- Discard jumper OR place jumper on only one terminal for storage. Once complete, re-attach module cover.

- Unpackage universal power vent harness.

- Connect following PV wiring harness connectors to the control board: female power plug to X1, valve harness to X5, ORANGE MARKED male molex to X13-X12:

- ATTENTION!
ORANGE MARKED plug connects to the control board (X13-X12). Do not plug pigtail female molex to the board.
- Bring control board and PV wiring harness combo to the fireplace so its in the reach of fireplace wiring harness. If applicable mount control board back to the tray Connect valve control harness wires to the valve.

- Connect pilot wiring to control board (X2 & X3), connect override On/Off switch to X4, connect stepper motor (if applicable) to X6.

- Connect transparent female power plug (from fireplace) to white inverted male power plug (PV harness).

- Plug female molex connector from fireplace to control board X11-X10 slot.

- Connect male molex from fireplace (if applicable) to pigtail PV female molex.

- Unpack PVFCB (power vent speed control) and connect to PV wiring harness:

- Connect PV Power Cord (not supplied with PVWH-SIT kit) to other end of PVFCB (power vent speed control)

NOTICE
Below are the instructions for the PVBWH-SIT, designed for basic units without an existing Proflame 2 full load control board. For instructions on the PVWH-SIT, please refer to PVWH-SIT section of this manual.
PVBWH-SIT Installation
- Shut off the power to the fireplace before starting.
Locate control board inside the fireplace. It might be attached to the bottom of fireplace or on the tray.
Control board is secured with two Velcro strips. Pull out control box/tray from fireplace so all connections are clearly visible, if needed cut zipties on wiring harness to get extra slack
- Locate combination gas valve and unplug connectors from green and red solenoid valve and ground from valve body.

- Unplug rest of connections from control board. Discard control board.
Note: Do not discard wiring in the fireplace
- Unpack control board and wiring combo from PVBWHSIT kit and bring to the fireplace so its in the reach of fireplace wiring harness. If applicable mount control board back to the tray.

- Connect pilot wiring to control board (X2 & X3), connect LVT wiring (wall switch) to X4, Connect transparent female power plug (from fireplace) to white inverted male power plug (PV harness)

- Connect valve control harness wires to the valve:

- Unpack PVFCB (power vent speed control) and connect to PV wiring harness:

- Connect PV Power Cord (not supplied with PVWH-SIT kit) to other end of PVFCB (power vent speed control)

- Note (applicable to PVBWH-SIT only): in order to use wall switch with Power Vent board, turn on breaker switch to the fireplace. Press SW1 on control board until it beeps (amber LED will light), release SW1 and press one more time until beeps. Now control board is in wall switch mode.

This procedure might need to be repeated in case of power outage.
PVFCB power vent fan speed control box

- Install the PVFCB between the 6-pin Molex connector of the fireplace harness and the plug the EPVH-** power cord into the mating 6-pin Molex connector in the box, as in the photo above.
- Turn on fireplace with remote or wall switch, allow the unit to run for 20 minutes. At full speed, turn dial to the left until it clicks off then right click ON this is maximum speed.

- After 20 minutes of running turn speed control to the right, the motor speed will slow, keep turning the control knob to the right until the burner turns off.
This point is the slowest speed the venter may run in this installation. Turn the speed control back to the left until the pilot begins to reignite and the burner comes back ON. This is the minimum speed point for the installation. - If the fireplace cycles on/off due to windy conditions, increase the speed of the venter to overcome this situation.
Section 3: Termination framing
TMHIN47-24 Termination (Standard combustible framing)
Step 1: If doing a combustible frame install, remove the concrete mounting feet and louver grille and install as shown
NOTICE
The TMVIN47-12 / TMHIN47-24 Termination is zero clearance to combustibles and can be safely placed in wood framing
TMVIN47-12 Termination
(Standard combustible framing)
Step 1: The mounting feet can be used if a .
TMHIN47-24 Termination (Adjustable depth)

TMVIN47-12 Termination (Adjustable depth)

MT04-PV / MT04F-PV Termination
Installation of termination with built in frame
A termination with a built-in frame is installed during framing of a structure.
- Frame the termination opening to 11″ x 11″.
- Install exterior sheathing to the structure framing.
- Fasten the termination to the sheathing using a minimum of 4 screws.

Installation of termination frame at time of framing
Terminations with a MSR frame allow the installation of the frame prior to installation of the termination.
- Frame the termination opening to 12″ x 12″.
- Secure the MSR Frame to the exterior sheathing of the structure.
- Fasten the termination to the MSR Frame using a minimum of 4 screws

Installation of termination frame at time of framing in masonry
Terminations with a BSR frame allow the installation of the frame in masonry prior to the installation of the termination
- Frame the BSR opening to 12″ x 12″.
- Secure the BSR Frame to the exterior sheathing of the structure.
- Fasten the termination to the BSR Frame using a minimum of 4 screws.

Appendix A: Powervent Terminations

| Location | |
| A | clearances above grade, veranda, porch, deck, or balcony [*12 inches (30 cm) minimum] |
| B | clearance to window or door that may be opened [* 12 inches (30 cm) minimum] |
| C | clearance to permanently closed window [minimum 12 inches (30 cm) recommended to prevent condensation on window] |
| D | vertical clearance to ventilated soffit located above the terminal within a horizontal distance of 2 feet (60 cm) from the edge of the terminal [0 inches (0 cm) minimum] |
| E | clearance to unventilated soffit [0 inches (0 cm) minimum] |
| F | clearance to outside corner [6 inches (15 cm) minimum] |
| G | clearance to inside corner [3 inches (7.5 cm) minimum] |
| H | * not to be installed above a meter/regulator assembly within 3 feet (90 cm) horizontally from the center-line of the regulator |
| I | clearance to service regulator vent outlet [* 6 feet (1.8 m) minimum] |
| J | clearance to non mechanical air supply inlet to building or the combustion air inlet to any other appliance [* 12 inches (30 cm) minimum] |
| K | clearance to a mechanical air supply inlet [* 6 feet (1.8 m) minimum] |
| L | ^ clearance above paved side-walk or a paved driveway located on public property [* 7 feet (2.1 m) minimum] |
| M | clearance under veranda, porch, deck, or balcony [0 inches (0 cm) minimum**] |
| N | 18″ minimum chase height |
| O | 24″ clearance from roof mounted power vent to wall |
^ a vent shall not terminate directly above a side-walk or paved driveway which is located between two single family dwellings and serves both dwellings*
** only permitted if veranda, porch, deck, or balcony is fully open on a minimum of 2 sides beneath the floor*
* as specified in CGA B149 Installation Codes, Note: local Codes or Regulation may require different clearances
* for U.S.A. Installations follow the current National Fuel Gas Code, ANSI Z223.1
Appendix B: Warranty
MONTIGO RESIDENTIAL WARRANTY PROGRAM Canadian Heating Products Inc. and/or Montigo DelRay Corp (collectively referred to herein as “The Companies”), warrants the Montigo gas appliance (referred to herein as ‘the appliance’) to be free from defects in materials and workmanship at the time of manufacture. The gas appliance and related components are further subject to the terms and conditions set forth below.
This warranty covers the following Montigo product series: Distinction, Divine & Divine Outdoor (H-Series), Illume (FID Inserts), Phenom (L/P/PL-Series), Exemplar (R/RP-Series), Mahana and DelRay
| Component | Coverage Period | Labor Coverage |
| Firebox, heat exchanger | 15 years | 1 year |
| Main burner | 15 years | 1 year |
| Gas control valve and related control components (pilot assembly, spark electrode flame sensors, thermopile) | 1 year | 1 year |
| Electrical components (internal blowers, ignition control module, wiring, switches, remote control systems, blower control module, accent bulbs) | 1 year | 1 year |
| Firebox media (logset, glass beads, river rocks) | 1 year | 1 year |
| Glass (thermal breakage) | 1 year | 1 year |
| Plated, painted finishes (including interior reflective glass) * | 1 year | 1 year |
| Refractory lining | 1 year | 1 year |
| Mesh/Glass safety barriers | 1 year | 1 year |
| Power vent termination | 1 year | 1 year |
| Montigo terminations* | 10 years | 1 year |
| Montigo venting (excluding termination) | 15 years | 1 year |
* Exterior painted surfaces exempt
QUALIFICATIONS TO THE WARRANTY
This Warranty only covers gas appliances installed in the United States or Canada.
To receive the benefits of this warranty, the appliance must be purchased, installed and serviced annually by a dealer authorized by The Companies for the warranty to be valid. The gas appliance must be installed by a licensed professional in accordance with The Companies’ installation instructions and local building codes. The warranty on the appliance covers only components manufactured by The Companies. The use of components manufactured or supplied by other manufacturers and used in conjunction with the appliance could create serious safety hazards, may result in the denial of certification by recognized national safety agencies and could violate local building codes. Such use may untimely void this warranty. This warranty does not cover any damages occurring from the use of any components not manufactured or supplied by The Companies.
The appliance must be subjected to normal use. The appliance is designed to burn natural gas (NG) or liquefied petroleum (LP) only. Burning conventional fireplace fuels such as wood, coal or any other solid fuel will cause damage to the appliance, produce excessive temperatures will result in a fire hazard and void all warranties. This warranty is transferable. The appliance must remain in its original place of installation to be valid. If the components of the appliance covered by this warranty are found to be defective within the time frame stated (see The Companies investigation of claims), The Companies will, at its option, replace or repair defective components of the appliance manufactured by The Companies at no charge and will also pay for labor costs (in accordance with schedule) incurred in replacing or repairing components. If repair or replacement is not commercially practical, The Companies will, at its sole discretion, fully discharge all obligations under the warranty by refunding the verified dealer purchase price of the appliance, excluding the cost of labor unless the labor is covered by the terms of the warranty.
This warranty covers only parts and labor as provided above.
In no case shall the companies be responsible for materials, components or construction, which are not manufactured or supplied by The Companies, or for the labor necessary to install, repair or remove such materials, components or construction. All replacement or repair components will be shipped F.O.B. from the nearest Company factory.
LIMITATION ON LIABILITY
It is agreed and understood that The Companies sole obligation, and purchaser’s exclusive remedy under this warranty, under any other warranty, expressed or implied, or in contract, tort or otherwise, shall be limited to repair, replacement or refund as specified above. The opinion of The Companies with respect to these matters shall be final.
In no event shall The Companies be responsible for any incidental or consequential damages caused by (but not limited to) improper installation, installation by an unqualified or unauthorized installer, accident, lack of regular maintenance, user error, abuse, misuse, Acts of God, power surges, floods, natural disasters, force majeure, defects in its appliance whether such damage occurs or is discovered before or after replacement or repair, and whether or not such damage is caused by The Companies negligence. Some jurisdictions do not allow the exclusion or limitation of incidental or consequential damages, so the above limitation or exclusion may not apply to you. The duration of any implied warranty with respect to the appliance is limited to the duration of the foregoing warranty. Some jurisdictions do not allow limitations on how long an implied warranty lasts, so the above limitation or exclusion may not apply to you.
EXCLUSIONS TO WARRANTY
Corrosion or rust of any kind due to a lack of maintenance, inadequate combustion air or improper venting and corrosive chemicals/environments, expansion and contraction of metals or minor movements of components causing noise are not covered by this warranty.
Willful misconduct (i.e. use of the appliance with problems known to the purchaser and causing further damages), including unauthorized or self-performed ‘fixing’ or exploration of the appliance’s internal workings will void the warranty. Appliances on which the serial number has been altered, defaced, removed or made illegible will void the warranty. Costs incurred for diagnosis, service work, shipping and handling of defective or replacement parts are not covered under this warranty.
The published warranties are not applicable for any equipment manufactured by The Companies that has been sold direct to the consumer via internet or auction websites. The Companies do not endorse, approve or certify any online sale of its products through auction websites, online retailers or any other method of online sales direct to consumers.
INVESTIGATION OF CLAIMS AGAINST WARRANTY
The Companies reserve the right to investigate any and all claims against this warranty and decide upon method of settlement.
The Companies are not responsible for work done without written consent of The Companies.
The Companies shall in no event be responsible for any warranty work done without first obtaining the Companies written consent.
The Companies employees and dealers have no authority to make any warranties to neither alter this warranty nor authorize any remedies in addition to or inconsistent with those stated within this warranty.
IF WARRANTY SERVICE IS NEEDED
To make a claim under this warranty, contact your installing dealer or contractor. The installing dealer is responsible for providing service and will contact the companies to initiate warranted parts replacements. In the event the installing dealer is unavailable, contact your nearest authorized Montigo dealer (www.Montigo.com) or contact Montigo direct at [email protected]. Ensure you have your sales receipt and the model and serial number of your appliance.
DO NOT ATTEMPT TO DO ANY SERVICE WORK YOURSELF
If you cannot locate the installing dealer, or nearest dealer/ distributor, you must notify The Companies in writing.
USA Offices 6955 Salashan Parkway Ferndale WA, 98248 [email protected].
Canadian Offices 27342 Gloucester Way Langley, BC V4W 4A1 [email protected].
The terms and conditions of this warranty may be altered or amended from time to time without prior notice.
WARRANTY PERIOD: Warranty coverage begins on the date of original purchase. In the case of new construction, warranty coverage begins on the date of first occupancy of the dwelling or six months after the sale of the product by an independent, authorized Company dealer/ distributor, whichever occurs earlier.
Appendix C: Amendment
(Gas Fireplace / Equipment sold in the State of Massachusetts) 5.08: Modifications to NFPA-54, Chapter 10
(1) Revise NFPA-54 section 10.5.4.2 by adding a second exception as follows: Existing chimneys shall be permitted to have their use continued when a gas conversion burner is installed, and shall be equipped with a manually reset device that will automatically shut off the gas to the burner in the event of a sustained back-draft.
(2) Revise 10.8.3 by adding the following additional requirements: (a) For all side wall horizontally vented gas fueled equipment installed in every dwelling, building or structure used in whole or in part for residential purposes, including those owned or operated by the Commonwealth and where the side wall exhaust vent termination is less than seven (7) feet above finished grade in the area of the venting, including but not limited to decks and porches, the following requirements shall be satisfied:
- INSTALLATION OF CARBON MONOXIDE DETECTORS. At the time of installation of the side wall horizontal vented gas fueled equipment, the installing plumber or gas fitter shall observe that a hard wired carbon monoxide detector with an alarm and battery back-up is installed on the floor level where the gas equipment is to be installed. In addition, the installing plumber or gas fitter shall observe that a battery operated or hard wired carbon monoxide detector with an alarm is installed on each additional level of the dwelling, building or structure served by the side wall horizontal vented gas fueled equipment. It shall be the responsibility of the property owner to secure the services of qualified licensed professionals for the installation of hard wired carbon monoxide detectors
a. In the event that the side wall horizontally vented gas fueled equipment is installed in a crawl space or an attic, the hard wired carbon monoxide detector with alarm and battery backup may be installed on the next adjacent floorl evel.
b. In the event that the requirements of this subdivision can not be met at the time of completion of installation, the owner shall have a period of thirty (30) days to comply with the above requirements; provided, however, that during said thirty (30) day period, a battery operated carbon monoxide detector with an alarm shall be installed. - APPROVED CARBON MONOXIDE DETECTORS. Each carbon monoxide detector as required in accordance with the above provisions shall comply with NFPA 720 and be ANSI/UL 2042 listed and IAS certified.
- SIGNAGE. A metal or plastic identification plate shall be permanently mounted to the exterior of the building at a minimum height of eight (8) feet above grade directly in line with the exhaust vent terminal for the horizontally vented gas fueled heating appliance or equipment. The sign shall read, in print size no less than one-half (1/2) inch in size, “GAS VENT DIRECTLY BELOW. KEEP CLEAR OF ALL OBSTRUCTIONS”.
- INSPECTION.
The state or local gas inspector of the side wall horizontally vented gas fueled equipment shall not approve the installation unless, upon inspection, the inspector observes carbon monoxide detectors and signage installed in accordance with the provisions of 248 CMR 5.08(2)(a)1 through 4.
(b) EXEMPTIONS: The following equipment is exempt from 248 CMR 5.08(2)(a)1 through 4:
- The equipment listed in Chapter 10 entitled “Equipment Not Required To Be Vented” in the most current edition of NFPA 54 as adopted by the Board; and
- Product Approved side wall horizontally vented gas fueled equipment installed in a room or structure separate from the dwelling, building or structure used in whole or in part for residential purposes.
(c) MANUFACTURER REQUIREMENTS – GAS EQUIPMENT VENTING SYSTEM PROVIDED. When the manufacturer of Product Approved side wall horizontally vented gas equipment provides a venting system design or venting system components with the equipment, the instructions provided by the manufacturer for installation of the equipment and the venting system shall include:
- Detailed instructions for the installation of the venting system design or the venting system components; and
- A complete parts list for the venting system design or venting system.
(d) MANUFACTURER REQUIREMENTS – GAS EQUIPMENT VENTING SYSTEM NOT PROVIDED. When the manufacturer of a Product Approved side wall horizontally vented gas fueled equipment does not provide the parts for venting the flue gases, but identifies “special venting systems”, the following requirements shall be satisfied by the manufacturer:
- The referenced “special venting system” instructions shall be included with the appliance or equipment installation instructions; and
- The “special venting systems” shall be Product Approved by the Board, and the instructions for that system shall include a parts list and detailed installation instructions.
(e) A copy of all installation instructions for all Product Approved side wall horizontally vented gas fueled equipment, all venting instructions, all parts lists for venting instructions, and/or all venting design instructions shall remain with the appliance or equipment at the completion of the installation. - (3) After NFPA-54 section 10.10.4.2 add a new section 10.10.4.3 as follows: When more than four gas appliances are to be vented through a common gas vent or common horizontal vent manifold, a plan of the proposed vent installation shall be submitted to the Inspector and the serving gas supplier for review and approval.
Extraction from: Massachusetts Rules and Regulations
5.00: Amendments To 2002 Edition Of ANSI Z223.1-NFPA-54
















































