R 31 Q Hydraulic Control Valves
Instruction Manual 
Quick Pressure Relief Control Valve 2 Way
The following is a step-by-step narrated description of the Eliptix R-31-Q 2W Quick Pressure Relief Valve installation, operation and maintenance processes.
The A.R.I. R-30/31 Series is a line of metal, diaphragm-operated, hydraulic control valves.
The valves are suitable for installation in agriculture, water transmission, and waterworks systems for irrigation, landscape, and infrastructure applications.
The R-30/31 series has an innovative elliptic-shaped diaphragm that integrates well with a wide variety of regulating control pilots, solenoids, and control accessories.
The valves are compatibly designed for water level control, flow control, electric & remote control as well as pressure reducing & pressure sustaining operation.
The R-31-Q 2-Way Quick Pressure Relief Valve is designed to relieve excess pressure in the atmosphere. When the line pressure reaches the preset level, the valve opens quickly and releases the excessive pressure. Once the pressure is re-stabilized the valve closes gradually for protecting the pipeline from a rapid surge.
Quick pressure release R20 Eliptix ARI Aquestia Orders and tech support IOM document
Disclaimer
This document is an Installation, Operation, and Maintenance (IOM) manual for A.R.I. Flow Control Accessories Ltd. (A.R.I.) products.
The information enclosed herein contains restricted, privileged, proprietary, and confidential information, intended only for usage by authorized A.R.I. technicians. If you are not a qualified technician, you must not take any action in reliance upon this document, unless otherwise permitted in writing by A.R.I.
A.R.I. has made every effort to ensure that this document is accurate; A.R.I. disclaims liability for any inaccuracies or omissions that may have occurred.
All the procedures, drawings, pictures, and/or any other information provided in this document are presented as general information only; they can be altered, removed, or changed without A.R.I.’s prior written approval. A.R.I. makes no commitment to update or keep the information in this document current and/or up-to-date, and reserves the right to make improvements, alterations, and/or modifications to this document and/or to the products described in this document, at any time without providing any notice with respect thereto. Nothing in this Disclaimer derogates in any way whatsoever from the confidential nature of any document enclosed hereto, including for the avoidance of doubt, any mistake or clerical error, or other error. None of the procedures provided in this Disclaimer and/or in any document enclosed hereto may be used in any form or by any means without the prior written consent from A.R.I. If you received this Disclaimer and/or in any document enclosed hereto in error or by mistake or if this Disclaimer and/or in any document enclosed hereto is not intended for you, please notify A.R.I. in writing immediately. A.R.I. assumes that all users understand the risks involved within this Disclaimer and/or in any document enclosed hereto. A.R.I. accepts/assumes no liability whatsoever, whether caused by: accessing and/or relying upon this Disclaimer and/or in any document enclosed hereto including without limitation any links, procedures or materials. A.R.I. shall NOT assume any liability for any costs, direct or indirect, including loss of income, loss of profits and/or goodwill, legal actions and/or damages of any kind whatsoever including any, damages accidents, equipment damage or bodily injury resulting from and/or related to any of the following:
- product has not been duly installed and thereafter maintained in strict compliance with its designated Maintenance Instructions and/or any other installation and operation manuals provided by A.R.I. for the product and/or applicable ordinances and/or codes;
- Repairs made in and to the products by personnel not authorized by A.R.I.
- Maintenance or repairs using parts or components other than those specified by A.R.I. and in their original condition.
- Operating the products in ways other than the operating procedures described in the manuals provided by A.R.I., or resulting from not following the cautionary remarks and warnings in the product manual.
- Improper storage, workplace conditions, and environmental conditions which do not conform to those stated in the Product manual.
- Fires, earthquakes, floods, lightning, natural disasters, or acts of God.
A.R.I. does not warrant and hereby disclaims any express or implied warranties that the product will work properly in environments and applications other than its original design purpose, and makes no warranty and representation, either implied or expressed, with respect to the quality, performance, merchantability, or fitness for any other particular purpose. Except as provided herein and to the full extent permitted by law, A.R.I. shall not be responsible and/or liable for direct, special, incidental, or consequential damages or loss resulting from any breach of the above or under any other legal theory. This document does not replace any certified drawing, procedure, or information provided by A.R.I. in reference to a specific customer, site or project. All rights reserved.
SAFETY INSTRUCTIONS
General
- A.R.I. products always operate as components in a larger system. It is essential for the system designers, installers, operators, and maintenance personnel to comply with all the relevant safety standards.
- Installation, operation or maintenance of the product should be done only by qualified workers, technicians, and/or contractors using only good engineering practices, complying with and observing all conventional safety instructions in order to minimize risk and/or danger and/or hazard to workers, the public or to property in the
vicinity in accordance with all relevant local standards. - Extra safety considerations should be taken with hot and hazardous liquids or in hazardous environments’ applications to avoid bodily/physical harm and damage to public or private property.
- All individuals installing operating and/or handling the products including all workers should at all times adhere to the occupational safety and health (OSH) instructions and wear safety helmets, goggles, gloves, and any other personal safety equipment required by the local standards and regulations.
- Use only appropriate standard tools and equipment operated by qualified operators when installing, operating, and maintaining the product.
- Prior to installation, operation, maintenance or any other type of action carried out on the product, read carefully the safety, installation, and operation instructions of the product.
- Please note:
– Pressurized fluid and/or gas may be discharged from the product without prior warning. Make sure that all products’ outlet ports are not directed toward electrical elements (pumps) or people. - Always open and close valves slowly and gradually.
- Please note that the maximum working pressure indicated at the product’s specifications table doesn’t include pressure changes caused by the water hammer and pressure surge effects. Use the product only according to its designated pressure rate specifications.
- Use the product only for its intended use as designed by A.R.I. Any misuse of the product may lead to undesired damages and may affect your warranty coverage. Please consult with A.R.I. prior to any non-regular use of this product and make no change or modification to the product without prior written consent to be provided by A.R.I. at A.R.I.’s sole discretion.
- Please note that A.R.I. shall NOT assume any liability with respect to any damage losses and/or expenses caused to any person and/or property whatsoever unless the product has been duly installed and thereafter maintained in strict compliance with its designated maintenance Instructions and/or any other installation and operation manuals provided by A.R.I. for the product and/or applicable ordinances and/or codes.
Handling
- Shipping and handling of the product must be done in a safe and stable manner and in accordance with the relevant standards and regulations.
- Storage should be in the original delivery crates or cases. Storage should be off the ground in a clean, dry indoor area.
- For lifting and positioning the product, use only approved lifting equipment operated by authorized employees and contractors.
- Prior to the installation visually verify that the product was not damaged during shipment to the installation site.
Installation
- Install the product according to the detailed Installation Instructions provided with it by A.R.I. and according to the description given in this manual.
- The user should install manual Isolation Valves at the valve’s upstream and downstream ports.
- In all installation sites, the user should enable good visibility and verify that the work and auxiliary equipment used are done in accordance with the relevant local authorized standards. Extra safety considerations should be taken on hazardous environment sites.
- Check and re-tighten the bolts connecting the product to the pipeline during commissioning and before operating the product for the first time.
Commissioning and Operation
- Read carefully the operation instructions prior to any attempt to operate the product.
- Observe the safety stickers on the product (when exist) and never perform any operation contradicting the instructions given.
- In order to achieve maximum performance and smooth operation of the product, it is crucial to perform the startup and first operation procedures exactly as described in this manual.
- In cases where a formal commissioning procedure is required, it should be done by an authorized A.R.I. technician prior to the first operation of the product.
Maintenance
Before any maintenance or non-regular operation, please read the following:
- Servicing the product should be done only by qualified technicians for this type of work.
- Make sure that you know the exact type of the system fluid. Act accordingly and comply with all the relevantstandards and regulations set for handling this type of fluid.
- Before disconnecting the product from the system and before releasing the residual pressure do NOT:
– loosen or unscrew the product bolts;
– remove any protection cover;
– Open any service port. - Before any maintenance or non-regular operation, shut off the Isolation valves and release the residual pressure: A. For control valves with a pressure release outlet, slowly pen the pressure release plug or the ball valve and make sure that all pressure is released.
B. For control valves without a pressure release outlet, slowly unscrew the flange bolts until all the pressure is released from the valve. - Make sure the control valve is empty of all liquid prior to commencing maintenance.
- Remove the product from the line only after ensuring that internal pressure has been released.
- Place warning signs around the work area as required by the local standards and procedures.
- Inspect the product’s safety stickers and replace any damaged or faded stickers.
- Manual cleaning of the product and/or its components using high water pressure or steam should be performed inaccordance with its specific cleaning instructions, the ocal standards and regulations, and without endangering the operator or the vicinity.
- Manual cleaning of product and/or its components using acid or other chemical agents should be performed inaccordance with the specific cleaning instructions, the elevant safety instructions for using that chemical as given its supplier, the local standards and regulations, and without endangering the operator or his vicinity.
- For products used in potable water systems, if it is required to disinfect the product, do so according to the local water authority standards and regulations before putting the product into service.
Before returning to regular operation
- Re-assemble any protective covers or protection mechanisms removed during service or maintenance operations.
- Make sure that all the tools, ladders, lifting devices, etc. used during the maintenance procedures are taken away from the product area and stored.
- Remove grease and fat material residues in order to avoid slipping.
- In order to return the product to regular operation, follow the First Start-up Operation instructions as detailed in your user manual.
INSTALLATION
2.1. Pre installation requisites
- Important: Before performing any work on the valve make sure that all workers on site are familiar with the safety instructions and the relevant local and general safety instructions and work regulations.
- Before installing the valve, flush the pipeline to remove scale, dirt and other particles that might affect the valve performance.
- Carefully remove the valve from the shipping package. Unload all valves carefully to a sturdy level surface taking care not to drop them.
- Valves fitted with hoist rings should only be lifted and conveyed using these hoist rings.
- It is recommended that the valve be easily accessible as well as clearly marked to prevent damage.
2.2. Installation procedure
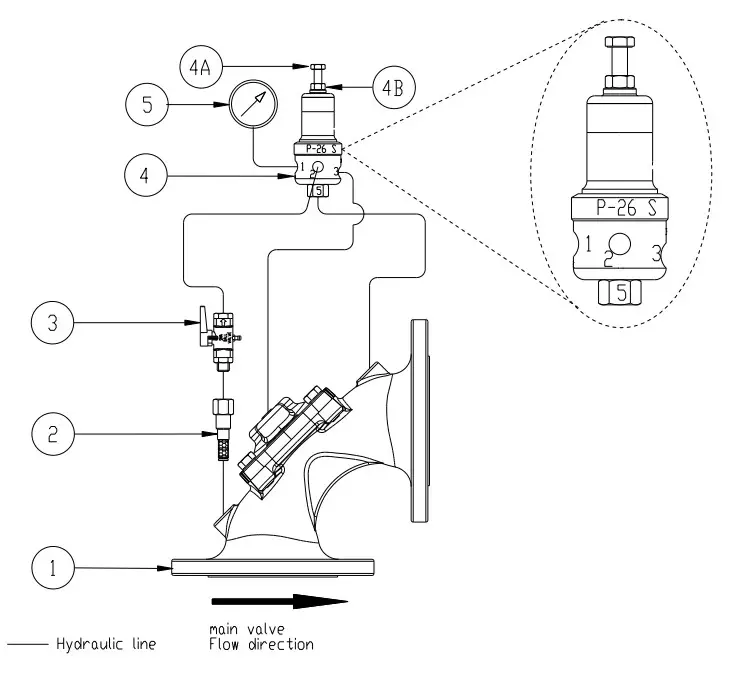
- Install the valve as indicated by the arrow on the valve bonnet, indicating flow direction [1].
- It is recommended to install an isolation valve upstream of the control valve [2].
- Turn the adjusting screw [4A] clockwise until the screw head touches the pilot’s bonnet.
- Turn on the water supply to the valve
- Check for leaks; tighten bolts & fittings, if necessary.
- Close the isolation valve [2].

2.3. Initial Start-up – The Control Valve
It is recommended to set the relief pressure level at 0.5bar above the working pressure of the system
- Make sure that the upstream isolation valve is closed [2].
- Turn on the manometric ball valve [3].
- Slightly open the upstream isolation valve [2], water starts to flow to the valve.
- Turn the adjusting screw [4A] counter-clockwise until water will begins to flow from the valve’s outlet.
- Turn the adjusting screw [4A] clockwise half turn.
- Make sure there is no water coming out from the valve’s outlet.
- When the required pressure is reached, prevent the adjusting bolt (4A) from turning, and turn the locking nut (4B) clockwise until it touches the pilot bonnet. Tighten the nut carefully.
- Fully open the upstream isolation valve [2].

2.4. Initial Set-up – The Quick Pressure Relief Application
- The following is a general description of the Quick Pressure Relief Application:
This quick pressure relief automatic control valve is designed to relieve excess pressure in the atmosphere.
The Elliptic R-31-Q valve is a Normally Closed Valve (N.C.) that is activated by the line pressure.
When the line pressure reaches the preset level, the valve opens quickly and releases the excessive pressure.
When the upstream pressure drops below the setting, the valve closes gradually with the help of the restriction nozzle built into the pilot; therefore the pipeline is protected from the rapid surge.
When the upstream pressure is lower than the pilot’s pressure settings, the pilot keeps the control chamber pressurized through port #3, causing the diaphragm to close the valve.
When the upstream pressure is higher than the pilot’s pressure settings, the pilot releases the internal pressure of the control chamber through port #5, causing the valve to open
- Make sure that the upstream pressure is at the required pressure
- Turn the pilot valve’s locking nut (4B) counterclockwise, until it touches the adjusting bolt (4A) head.
- Make sure that the manometric ball valve (3) is open.
- Turn the adjusting bolt (4A) counter-clockwise until the valve starts to open.
- To increase the relief pressure, turn the adjusting bolt (4A) clockwise, one turn at a time, allowing some time between turns for the valve to respond.
- To decrease the relief pressure, turn the adjusting bolt (4A) counterclockwise, one turn at a time, allowing some time between turns for the valve to respond.
- When the required pressure is reached, prevent the adjusting bolt (4A) from turning, and turn the locking nut (4B) clockwise until it touches the pilot bonnet. Tighten the nut carefully.
OPERATION INSTRUCTIONS
- To manually open the valve, close the manometric ball valve (3).
Please note:
.By doing so you will have no control over the system pressure and flow rates. - For standard operation turn on the manometric ball valve (3).
- During regular operation, it is recommended to keep the upstream isolation valve of the quick relief valve (2) always opened.
MAINTENANCE
Under regular operation, A.R.I’s valves require minimal maintenance and no lubrication, however in
freezing climates the valve should be dismantled and drained for the winter months.
4.1. Periodic Inspection
- Every 6 months visually inspect the valve’s diaphragm for any tears.
- Every 12 months inspect the valve’s operation and clean the Finger Filter.
- Check the downstream pressure; adjust if required.
4.2. Storing the valve
It is not recommended to store the valve or its spare parts for long periods (years); under improper storage conditions, rubber parts can harden, have ozone cracking, grow mold bloom and heat aging.
It is recommended to order new rubber parts when required.
TROUBLESHOOTING
| Problem | Cause | Check | Solution |
| Valve does not open | 1. The inlet pressure is too low | 1. Check the inlet pressure | 1. Make sure that the water supply (or the pump) is on. |
| 2. The preset pressure is too high | 2. Check the pilot’s adjustment | 2. Turn the adjusting bolt (4A) counterclockwise, one turn at a time, allowing some time between turns for the valve to respond. | |
| Valve does not close | 1. Debris on the sealing seat | 1. The valve is constantly discharging a small amount of water to the downstream | 1. Close the manometer ball valve (3) for 5 seconds, allowing the valve to flush. Gradually reopen the manometer ball valve (3). If the problem continues, turn off the water supply to the valve, remove the bonnet and remove the foreign object. |
| 2. Diaphragm is damaged | 2. Turn off the water supply to the valve, remove the bonnet and replace the diaphragm | ||
| 3. The manometer ball valve (3) is closed. | 3. Check the state of the manometer valve (3). | 3. Open the manometer valve (3). | |
| 4. Blocked pilot | 4. Contact A.R.I.’s field service |
DIMENSIONAL DRAWING

A.R.I. LIMITED WARRANTY
A.R.I. Standard International Warranty
A.R.I. manufactured products are guaranteed to be free from defects in material and/or workmanship and to perform as advertised when properly installed, used and maintained in accordance with current instructions, written or verbal.
Should any item prove defective within the time period set forth for that item(s), but in any case not later than within 12 (twelve) months of that product having left A.R.I.’s premises, and subject to receipt by A.R.I. or its authorized representative, of written notice thereof from the purchaser within 30 days of discovery of such defect or failure – A.R.I. will repair or replace or refund the purchase price, at its sole option, any items proven defective in workmanship or material.
A.R.I. will not be responsible, nor does this warranty extend to any consequential or incidental damages or expenses of any kind or nature regardless of the nature thereof, including without limitation, injury to persons or property, loss of use of the products, loss of goodwill, loss of profits or any other contingent liabilities of any kind or character alleged to be the cause of loss or damage to the purchaser.
This warranty does not cover damage or failure caused by misuse, abuse, or negligence, nor shall it apply to our products upon which repairs or alterations have been made by other than an authorized A.R.I. representative.
This warranty does not extend to components, parts, or raw materials used by A.R.I. but manufactured by others, which shall be only to the extent warranted by the manufacturer’s warranty.
THERE ARE NO WARRANTIES, EXPRESS OR IMPLIED, EXCEPT THIS WARRANTY WHICH IS GIVEN IN LIEU OF ANY OTHER WARRANTIES, EXPRESS OR IMPLIED, INCLUDING ANY IMPLIED WARRANTY OF FITNESS FOR A PARTICULAR PURPOSE.
(R10822)
Ori Sheffi
C.E.O



















