unitronics V230 Vision PLC+HMI Controller With Embedded HMI Panel

This guide provides basic information for Unitronics’ Models V230/280/290 (Non-color Screens).
General Description
Vision PLC+HMIs are programmable logic controllers that comprise an integral operating panel containing a graphic LCD screen and a keyboard. All models offer the same PLC features. Operating panel features differ according to model.



Communications
- 2 serial ports: RS232 (COM1), RS232/RS485 (COM2)
- 1 CANbus port
- The user can order and install an additional port. Available port types are: RS232/RS485, and Ethernet
- Communication Function Blocks include: SMS, GPRS, MODBUS serial/IP Protocol FB enables PLC to communicate with almost any external device, via serial or Ethernet communications
I/O Options
Vision supports digital, high-speed, analog, weight and temperature measurement I/Os via:
- Snap-in I/O Modules
Plug into the back of the controller to provide an on-board I/O configuration - I/O Expansion Modules
Local or remote I/Os may be added via expansion port or CANbus
Information Mode
This mode enables you to:
- View & Edit operand values, COM port settings, RTC and screen contrast/brightness settings
- Calibrate the touchscreen
- Stop, initialize, and reset the PLC
Programming Software, & Utilities
To enter Information Mode, press the <i> button for several seconds.
- VisiLogic
Easily configure hardware and write both HMI and Ladder control applications; the Function Block library simplifies complex tasks such as PID. Write your application, and then download it to the controller via the programming cable included in the kit.
Note that in order to program the V290-19-B20B,you must select the V280/V530 in VisiLogic’s Hardware Configuration. - Utilities
These include UniOPC server, Remote Access for remote programming and diagnostics, and DataXport for run-time data logging
To learn how to use and program the controller, as well as use utilities such as Remote Access, refer to the VisiLogic Help system.
Operand Types
Memory Bits 4096
Memory Integers, 16-bit, 2048
Long Integers, 32-bit, 256
Double Word, 32-bit unsigned, 64
Memory Floats, 32-bit, 24
Timers, 32-bit, 192
Counters, 16-bit, 24
Additional product documentation is in the Technical Library, located at www.unitronicsplc.com.
Technical support is available at the site, and from [email protected].
Kit Contents
- Vision controller
- Mounting brackets (x4)
- 3 pin power supply connector
- 5 pin CANbus connector
- CANbus network termination resistor
- Grounding hardware
- Rubber seal
- Extra set of keyboard slides, according to model
Alert Symbols and General Restrictions
When any of the following symbols appear, read the associated information carefully.
| Symbol | Meaning | Description |
| Danger | The identified danger causes physical and property damage. | |
| Warning Caution | The identified danger could cause physical and property damage. Use caution. |
- Before using this product, the user must read and understand this document
- All examples and diagrams are intended to aid understanding, and do not guarantee operation Unitronics accepts no responsibility for actual use of this product based on these examples
- Please dispose of this product according to local and national standards and regulations
- Only qualified service personnel should open this device or carry out repairs
Failure to comply with appropriate safety guidelines can cause severe injury or property damage
- Do not attempt to use this device with parameters that exceed permissible levels
- To avoid damaging the system, do not connect/disconnect the device when power is on
Environmental Considerations
- Do not install in areas with: excessive or conductive dust, corrosive or flammable gas, moisture or rain, excessive heat, regular impact shocks or excessive vibration, in accordance with the standards given in the product’s technical specification sheet
- Ventilation: 10mm space required between controller’s top/bottom edges & enclosure walls
- Do not place in water or let water leak onto the unit
- Do not allow debris to fall inside the unit during installation
- Install at maximum distance from high-voltage cables and power equipment
UL Compliance
The following section is relevant to Unitronics’ products that are listed with the UL.
The model: V230-13-B20B, V280-18-B20B, V290-19-B20B are UL listed for Ordinary Location.
The model: V230-13-B20B, V280-18-B20B are UL listed for Hazardous Locations.
UL Ordinary Location
In order to meet the UL ordinary location standard, panel-mount this device on the flat surface of Type 1 or 4 X enclosures
UL Ratings, Programmable Controllers for Use in Hazardous Locations, Class I, Division 2, Groups A, B, C and D
These Release Notes relate to all Unitronics products that bear the UL symbols used to mark products that have been approved for use in hazardous locations, Class I, Division 2, Groups A, B, C and D.
Caution
- This equipment is suitable for use in Class I, Division 2, Groups A, B, C and D, or Non-hazardous locations only.
- Input and output wiring must be in accordance with Class I, Division 2 wiring methods and in accordance with the authority having jurisdiction.
- WARNING—Explosion Hazard—substitution of components may impair suitability for Class I, Division 2.
- WARNING – EXPLOSION HAZARD – Do not connect or disconnect equipment unless power has been switched off or the area is known to be non-hazardous.
- WARNING – Exposure to some chemicals may degrade the sealing properties of material used in Relays.
- This equipment must be installed using wiring methods as required for Class I, Division 2 as per the NEC and/or CEC.
Panel-Mounting
For programmable controllers that can be mounted also on panel, in order to meet the UL Haz Loc standard, panel-mount this device on the flat surface of Type 1 or Type 4X enclosures.
Communication and Removable Memory Storage
When products comprise either USB communication port, SD card slot, or both, neither
the SD card slot nor the USB port are intended to be permanently connected, while the USB port is intended for programming only.
Removing / Replacing the battery
When a product has been installed with a battery, do not remove or replace the battery unless the power has been switched off, or the area is known to be non-hazardous.
Please note that it is recommended to back up all data retained in RAM, in order to avoid losing data when changing the battery while the power is switched off. Date and time information will also need to be reset after the procedure.
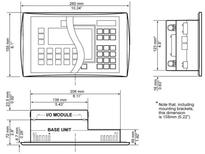
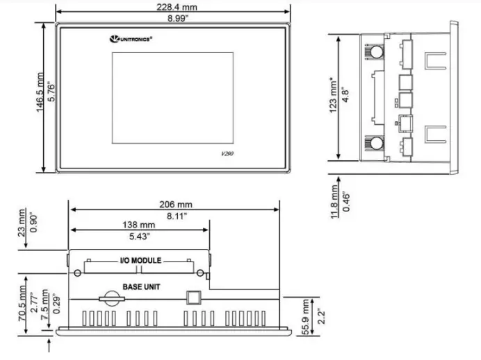
Mounting
Dimensions
V230

V280

V290

Mounting
Before you begin, note that:
- The mounting panel cannot be more than 5 mm thick
- To minimize electromagnetic interference, mount the controller on a metal panel and earth the power supply according to the details on page 6.
- Make a panel cut-out that suits your model controller.
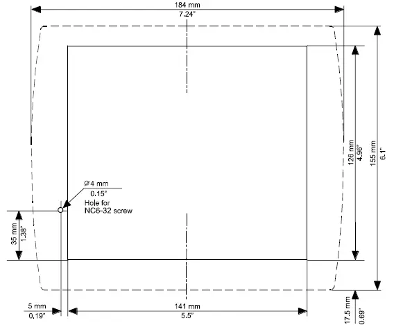
V230 Cut-out Dimensions
V280 Cut-out Dimensions
V290 Cut-out Dimensions
Caution- The necessary torque is 0.45 N·m (4.5 kgf·cm).
- If you mount the controller on a metal panel, earth the power supply only in
V230:- Bore a hole to suit the NC6-32 screw supplied with the kit.
- Scrape panel paint away from the contact area to ensure a conductive con
- Drive the screw into the hole.
- Place the following hardware screw’s shank, in the order shown in the accompanying figure: washer, ring cable shoe, second washer, spring, and

- Pay Attention:
The wire used to earth the power supply must not exceed 10 cm in length if your conditions do not permit this, do not earth the power supply. - Make sure that the metal panel is properly earthed.
- Pay Attention:
- Slide the controller into the cut-out, ensuring that the rubber seal is in place.
- Push the 4 mounting brackets into their slots on the sides of the controller as shown in the figure to the right.
- Tighten the bracket screws against the panel. Hold the bracket securely against the unit while tightening the screw.

- When properly mounted, the controller is squarely situated in the panel cut-out as shown below.

Wiring: General
- This equipment is designed to operate only in SELV/PELV/Class 2/Limited Power environments
- All power supplies in the system must include double insulation. Power supply outputs must be rated as SELV/PELV/Class 2/Limited Power.
- Do not connect either the ‘Neutral or ‘Line’ signal of the 110/220VAC to device’s 0V pin.
- Do not touch live wires.
- All wiring activities should be performed while power is OFF.
- Unused pins should not be connected. Ignoring this directive may damage the device
- Caution
- To avoid damaging the wire, do not exceed a maximum torque of 0.5 N·m (5 kgf·cm)
- Do not use tin, solder, or any substance on stripped wire that might cause the wire strand to break
Use crimp terminals for wiring; use 26-14 AWG wire (0.13 mm 2–2.08 mm2).
- Strip the wire to a length of 7±0.5mm (0.250–0.300”).
- Unscrew the terminal to its widest position before inserting a wire.
- Insert the wire completely into the terminal to ensure a proper connection.
- Tighten enough to keep the wire from pulling free.
Wiring Guidelines
- Use separate wiring ducts for each of the following groups:
- Group 1: Low voltage I/O and supply lines, communication lines.
- Group 2: High voltage Lines, Low voltage noisy lines like motor driver outputs. Separate these groups by at least 10cm (4″). If this is not possible, cross the ducts at a 90˚angle.
- For proper system operation, all 0V points in the system should be connected to the system 0V supply rail.
Earthing the Controller
To maximize system performance, avoid electromagnetic interference as follows:
- Use a metal cabinet.
- Connect the 0V terminal to the earth ground of the system at one point, preferably as near to the controller as possible.
Power Supply
The controller requires an external 12 or 24VDC power supply. The permissible input voltage range is 10.2-28.8VDC, with less than 10% ripple.
- You must use an external circuit protection device
- Install an external circuit breaker. Guard against short-circuiting in external wiring
- Double-check all wiring before turning on the power supply
In the event of voltage fluctuations or non-conformity to voltage power supply specifications, connect the device to a regulated power supply

Communication Ports
- Turn off power before making communications connections
- Signals are related to the controller’s 0V; this is the same 0V used by the power supply
- Caution
- Always use the appropriate port adapters
- The serial ports are not isolated. If the controller is used with a non-isolated external device, avoid potential voltage that exceeds ± 10V
Serial Communications
This series comprises 2 RJ-11-type serial ports and a CANbus port.
COM1 is RS232 only. COM2 may be set to either RS232 or RS485 via jumper as described below.
By default, the port is set to RS232.
Use RS232 to download programs from a PC, and to communicate with serial devices and applications, such as SCADA.
Use RS485 to create a multi-drop network containing up to 32 devices.
Caution
- COM1 & 2 are not isolated
Pinouts
To connect a PC to a port that is set to RS485, remove the RS485 connector, and connect the PC to the PLC via the programming cable. Note that this is possible only if flow control signals are not used (which is the standard case).
| RS232 | |
| Pin # | Description |
| 1* | DTR signal |
| 2 | 0V reference |
| 3 | TXD signal |
| 4 | RXD signal |
| 5 | 0V reference |
| 6* | DSR signal |
| RS485** | Controller Port | |
| Pin # | Description | ![]() |
| 1 | A signal (+) | |
| 2 | (RS232 signal) | |
| 3 | (RS232 signal) | |
| 4 | (RS232 signal) | |
| 5 | (RS232 signal) | |
| 6 | B signal (-) | |
*Standard programming cables do not provide connection points for pins 1 and 6.
** When a port is adapted to RS485, Pin 1 (DTR) is used for signal A, and Pin 6 (DSR) signal is used for signal B.
RS232 to RS485: Changing Jumper Settings
The port is set to RS232 by factory default.
To change the settings, first remove the Snap-in I/O Module, if one is installed, and then set the jumpers according to the following table.
Note:
For V230/V280/V290 modules only there is a small window as described on page 6 for jumper setting so there is no need to open the controller.
- Before you begin, touch a grounded object to discharge any electrostatic charge
- Before removing a Snap-in I/O Module or opening the controller, you must turn off the power
RS232/RS485 Jumper Settings
| Jumper | 1 | 2 | 3 | 4 |
| RS232* | A | A | A | A |
| RS485 | B | B | B | B |
| RS485 Termination | A | A | B | B |
*Default factory setting.

Removing a Snap-in I/O Module
- Locate the four buttons on the sides of the module, two on either side.
- Press the buttons and hold them down to open the locking mechanism.
- Gently rock the module from side to side, easing the module from the controller.

Re-installing a Snap-in I/O Module
- Line the circular guidelines on the controller up with the guidelines on the Snap-in I/O Module as shown below.
- Apply even pressure on all 4 corners until you hear a distinct ‘click’.
The module is now installed.
Check that all sides and corners are correctly aligned.
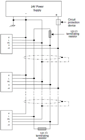
CANbus
These controllers comprise a CANbus port. Use this to create a decentralized control network using one of the following CAN protocols:
- CANopen: 127 controllers or external devices
- Unitronics’ proprietary UniCAN: 60 controllers, (512 data bytes per scan)
The CANbus port is galvanically isolated.
CANbus Wiring
Use twisted-pair cable. DeviceNet® thick shielded twisted pair cable is recommended.
Network terminators: These are supplied with the controller.
Place terminators at each end of the CANbus network.
Resistance must be set to 1%, 121Ω, 1/4W.
Connect ground signal to the earth at only one point, near the power supply.
The network power supply need not be at the end of the network.

CANbus Connector

Technical Specifications
This guide provides specifications for Unitronics’ models V230-13-B20B,V280-18-B20B, V290-19-B20B.
You can find additional information in the Technical Library at www.unitronics.com.
Power Supply
- Input voltage 12VDC or 24VDC
- Permissible range 10.2VDC to 28.8VDC with less than 10% ripple
Max. current consumption
| @12VDC @24VDC Typical power consumption | V230 | V280 | V290 |
| 280mA 140mA | 540mA 270mA | 470mA 230mA | |
| 2.5W | 5.4W | 5.1W |
Battery
- Back-up
7 years typical at 25°C, battery back-up for RTC and system data, including variable data. - Replacement
Yes. Refer to instructions in the document: Replacing a Battery V230-280-290.pdf, available from Unitronics’ Technical Library.
Graphic Display Screen
| LCD Type Illumination backlight Display resolution, pixels Viewing area Touchscreen ‘Touch’ indication Screen contrast | V230 | V280 | V290 |
| STN | Graphic B&W FSTN | ||
| LED yellow-green | CCFL fluorescent lamp | ||
| 128×64 | 320×240 (QVGA) | ||
| 3.2″ | 4.7″ | 5.7″ | |
| None | Resistive, analog | ||
| None | Software (SB16) | Software (SB16); Via buzzer | |
| Manually adjusted. Refer to Visi Logic Help topic: Setting LCD Contrast/Brightness | Via software (Store value to SI 7). Refer to Visi Logic Help topic: Setting LCD Contrast/Brightness | ||
Keyboard
| V230 | V280 | V290 |
| Number of keys 24 | 27 | none (virtual) |
| Includes soft keys and alphanumeric keypad | ||
| Key type Metal dome, sealed membrane switch | none | |
| Slides Picture, alphanumeric keypad, and Function keys | none | |
Program
Application memory 1MB
| Operand type | Quantity | Symbol | Value |
| Memory Bits | 4096 | MB | Bit (coil) |
| Memory Integers | 2048 | MI | 16-bit signed/unsigned |
| Long Integers | 256 | ML | 32-bit signed/unsigned |
| Double Word | 64 | DW | 32-bit unsigned |
| Memory Floats | 24 | MF | 32-bit signed/unsigned |
| Timers | 192 | T | 32-bit |
| Counters | 24 | C | 16-bit |
- Data Tables 120K (dynamic)/192K (static)
- HMI Displays Up to 255
- Scan Time 30μsec per 1K of typical application
Communication
- Serial Ports 2. See Note 1
RS232
- Galvanic isolation No
- Voltage limits 20V absolute maximum
- Baud rate range COM1 COM2 300 to 57600 bps 300 to 115200 bps
- Cable length Up to 15m (50′)
- RS485
- Galvanic isolation No
- Voltage limits −7 to +12V differential maximum
- Baud rates 300 to 115200 bps
- Nodes Up to 32
- Cable type Shielded twisted pair, in compliance with EIA RS485
- Cable length Up to 1200m (4000′)
- CANbus port 1
- Nodes CANopen Unitronics’ CANbus protocols
- 127 60
- Power requirements 24VDC (±4%), 40mA max. per unit
- Galvanic isolation Yes, between CANbus and controller
- Cable length/baud rate
- 25 m 1 Mbit/s
- 100 m 500 Kbit/s
- 250 m 250 Kbit/s
- 500 m 125 Kbit/s
- 500 m 100 Kbit/s
- 1000 m* 50 Kbit/s
- 1000 m*
* If you require cable lengths over 500 meters, contact technical support.
Optional port
User may install an additional port, available by separate order. Available port types are: RS232/RS485, and Ethernet.
Notes:
- COM1 supports RS232 only.
COM2 may be set to either RS232/RS485 according to jumper settings as shown in the product’s
Installation Guide. Factory setting: RS232.
I/Os
- Via module
Number of I/Os and types vary according to module. Supports up to 256 digital, high-speed, and analog I/Os. - Snap-in I/O modules
Plugs into rear port to create self-contained PLC with up to 43 I/Os. - Expansion modules
Local adapter, via I/O Expansion Port. Integrate up to 8 I/O Expansion
Modules comprising up to 128 additional I/Os.
Remote I/O adapter, via CANbus port. Connect up to 60 adapters; connect up to 8 I/O expansion modules to each adapter.
Dimensions
- Size See Page 5 V230 V280 V290
- Weight 429g (15.1 oz) 860g (30.4 oz) 840g (29.7 oz)
Mounting
- Panel-mounting Via brackets
Environment
- Inside cabinet IP20 / NEMA1 (case)
- Panel mounted IP65 / NEMA4X (front panel)
- Operational temperature 0 to 50ºC (32 to 122ºF)
- Storage temperature -20 to 60ºC (-4 to 140ºF)
- Relative Humidity (RH) 5% to 95% (non-condensing)
The information in this document reflects products at the date of printing. Unitronics reserves the right, subject to all applicable laws, at any time, at its sole discretion, and without notice, to discontinue or change the features, designs, materials and other specifications of its products, and to either permanently or temporarily withdraw any of the forgoing from the market.
All information in this document is provided “as is” without warranty of any kind, either expressed or implied, including but not limited to any implied warranties of merchantability, fitness for a particular purpose, or non-infringement. Unitronics assumes no responsibility for errors or omissions in the information presented in this document.
In no event shall Unitronics be liable for any special, incidental, indirect or consequential damages of any kind, or any damages whatsoever arising out of or in connection with the use or performance of this information.
The tradenames, trademarks, logos and service marks presented in this document, including their design, are the property of Unitronics (1989) (R”G) Ltd. or other third parties and you are not permitted to use them without the prior written consent of Unitronics or such third party as may own them.

V280 Cut-out Dimensions
V290 Cut-out Dimensions
Caution























