gothamgotham Incito 2″ Round Pendant Mount Cylinder

LED IMPORTANT SAFETY INSTRUCTIONS
READ AND FOLLOW ALL SAFETY INSTRUCTIONS! SAVE THESE INSTRUCTIONS AND DELIVER TO OWNER AFTER INSTALLATION
- To reduce the risk of death, personal injury or property damage from fire, electric shock, falling parts, cuts/abrasions, and other hazards please read all warnings and instructions included with and on the fixture box and all fixture labels.
- Before installing, servicing, or performing routine maintenance upon this equipment, follow these general precautions.
- Installation and service of luminaires should be performed by a qualified licensed electrician.
- Maintenance of the luminaires should be performed by person(s) familiar with the luminaires’ construction and operation and any hazards involved. Regular fixture maintenance programs are recommended.
- It will occasionally be necessary to clean the outside of the refractor/lens. Frequency of cleaning will depend on ambient dirt level and minimum light output which is acceptable to user. Refractor/lens should be washed in a solution of warm water and any mild, non-abrasive household detergent, rinsed with clean water and wiped dry. Should optical assembly become dirty on the inside, wipe refractor/lens and clean in above manner, replacing damaged gaskets as necessary.
- DO NOT INSTALL DAMAGED PRODUCT! This luminaire has been properly packed so that no parts should have been
damaged during transit. Inspect to confirm. Any part damaged or broken during or after assembly should be replaced. - Recycle: For information on how to recycle LED electronic products, please visit www.epa.gov.
- These instructions do not purport to cover all details or variations in equipment nor to provide every possible contingency to meet in connection with installation, operation, or maintenance. Should further information be desired or should particular problems arise which are not covered sufficiently for the purchaser’s or owner’s purposes, this matter should be referred to Acuity Brands Lighting, Inc.
WARNING RISK OF ELECTRIC SHOCK
- Disconnect or turn off power before installation or servicing.
- Verify that supply voltage is correct by comparing it with the luminaire label information.
- Make all electrical and grounded connections in accordance with the National Electrical Code (NEC) and any applicable local code requirements.
- All wiring connections should be capped with UL approved recognized wire connectors.
WARNING RISK OF BURN
- Allow lamp/fixture to cool before handling. Do not touch enclosure or light source.
- Do not exceed maximum wattage marked on luminaire label.
- Follow all manufacturer’s warnings, recommendations and restrictions for: driver type, burning position, mounting locations/methods, replacement and recycling.
CAUTION RISK OF INJURY
- Wear gloves and safety glasses at all times when removing luminaire from carton, installing, servicing or performing maintenance.
- Avoid direct eye exposure to the light source while it is on.
CAUTION RISK OF FIRE
- Keep combustible and other materials that can burn, away from lamp/lens.
- Do not operate in close proximity to persons, combustible materials or substances affected by heat or drying.
CAUTION: RISK OF PRODUCT DAMAGE
- Never connect components under load.
- Do not mount or support these fixtures in a manner that can cut the outer jacket or damage wire insulation.
- Controls for dimming, auto-sensing, or remote control of a luminaire that are not factory-wired to the luminaire must be checked for compatibility with the luminaire prior to installation. LED fixtures must be powered directly off a switched circuit.
- Unless individual product specifications deem otherwise: Do not restrict fixture ventilation. Allow for some volume of airspace around fixture. Avoid covering LED fixtures with insulation, foam, or other material that will prevent convection or conduction cooling.
- Unless individual product specifications deem otherwise: Do not exceed fixtures maximum ambient temperature.
- Only use fixture in its intended location.
- LED products are Polarity Sensitive. Ensure proper Polarity before installation.
- Electrostatic Discharge (ESD): ESD can damage LED fixtures. Personal grounding equipment must be worn during all installation or servicing of the unit.
- Do not touch individual electrical components as this can cause ESD, shorten lamp life, or alter performance.
- Some components inside the fixture may not be serviceable. In the unlikely event your unit may require service, stop using the unit immediately and contact an ABL representative for assistance.
- Always read the fixtures complete installation instructions prior to installation for any additional fixture specific warnings.
- Always ensure that the electrical distribution system is up to NEC (and any applicable local code) requirements.
- Verify that power distribution system has proper grounding. Lack of proper earth ground can lead to fixture failure and may void warranty.
Choose either Part 15 OR Part 18 and move to Page 3 Installation Instructions under Delivery. Lithonia Outdoor will always use Part 15. All luminaires that contain electronic devices that generate frequencies above 9kHz from any component within the luminaire comply with Part 15 of the FCC Rules. Operation is subject to the following two conditions:
- This device may not cause harmful interference
- This device must accept any interference received, including interference that may cause undesired operation
This device complies with Part 18 of the FCC Rules but may cause interference with cordless and cell phones, radios, televisions, and other electronic devices. To correct the problem, move the device away from the luminaire or plug into a different outlet. This product may cause interference to radio equipment and should not be installed near maritime safety communications equipment or other critical navigation or communications equipment operating between 0.45-30MHz.
Failure to follow any of these instructions could void product warranties. For a complete listing of product Terms and Conditions, please visit www.acuitybrands.com.
| Our Brands Indoor/Outdoor | Indoor Lighting | Outdoor Lighting | Controls | Daylighting |
| Lithonia Lighting | Aculux | American Electric Lighting | DARK TO LIGHT | SunOptics |
| Carandini | Gotham | Antique Street Lamps | LC&D | |
| Holophane | Indy | Hydrel | ROAM | |
| RELOC | Juno | Tersen | Sensor Switch | |
| Light Concepts | Mark Architectural Lighting | Synergy | ||
| Peerless | ||||
| Renaissance Lighting | ||||
| Winona Lighting |
Acuity Brands Lighting, Inc. assumes no responsibility for claims arising out of improper or careless installation or handling of its products. ABL LED General Warnings, Form No. 503.203 © 2010, 2016 Acuity Brands Lighting, Inc. All rights reserved. 12/01/10
INSTALLATION INSTRUCTIONS
These installation instructions are used for installing the following luminaires and kits.
| Luminaire Variants | Mounting Type | Mounting Type Description |
| ICO2CC (2” Pendant Cord) EVO2CC (2” Pendant Cord) |
JBXCC |
Integral driver, Surface J-box with Conduit Covers |
| A) | Identification of Pendant Mount Luminaires………………………………… | ………….……………………… | Page 3 |
| B) | Identification of Parts…………………………………………………………………. | ………….……………………… | Page 4 |
| C) | Cord Length Calculation……………………………………………………………………. | ………….……………………… | Page 5 |
| D) | Conduit Canopy Assembly (JBXCC)……………………………… | ………….……………………… | Page 6 |
| E) | Fixture Install………………………………………………………… | ………….……………………… | Page 7 |
A) Identification of Pendant Mount Luminaires

B) Identification of Parts
Cord Cylinder: Assembly

Cord Hardware
- a) Swivel ball
- b) Bracket
- c) Screw (2)
- i. #8-32 x 3/8” Lg. Flat Head
- d) Aircraft Cable Hardware
Canopy Assembly
- a) JBXCC Canopy
Conduit Keys (JBXCC Only)
- a) Blank Conduit Key (4) with 5/64” Allen wrench
- b) Conduit Key (4) with 5/64” Allen wrench
Additional Tools Needed:
- a) Phillips Head Bit/Screwdriver
C) Cord Length Calculation
- Calculate the necessary cord length per the equations below . Equations account for the required 6” extra length needed for stripping.
- Cut the cord to length. Measure from top of fixture per picture below .

D) Conduit Canopy Assembly (JBXCC)
NOTE: JBXCC mounting type requires a 1.5” depth, 4” octagonal junction box.
- Select the appropriate keys and insert them into the correct canopy slots for each specific J-box configuration. Adjust set screw s in the keys to allow the keys to slide in completely.
Note: Keys accept ½” and ¾” EMT conduit ONLY.
- Loosen screw s securing the plate to the canopy so the screw s can slide w ithin the slots.

- Bring canopy up to J-box and insert J-box screw s into key slots. Rotate the plate attached to the canopy to allow the J-box screw s to slide into the key slots. Tighten the screw s that secure the plate to the canopy. This w ill secure the canopy to the ceiling for fixture install. Leave J-box screw s loose for fixture install.

E) Fixture Install
NOTE:
- JBXCC mounting type fixtures require a 1.5” depth, 4” octagonal junction box.
- WARNING: All pendant fixtures exposed to wind require tethering – consult factory
- Slide Canopy (1), Mounting Bracket (2), and Sw ivel Ball (3) onto the end of the cord in below order.

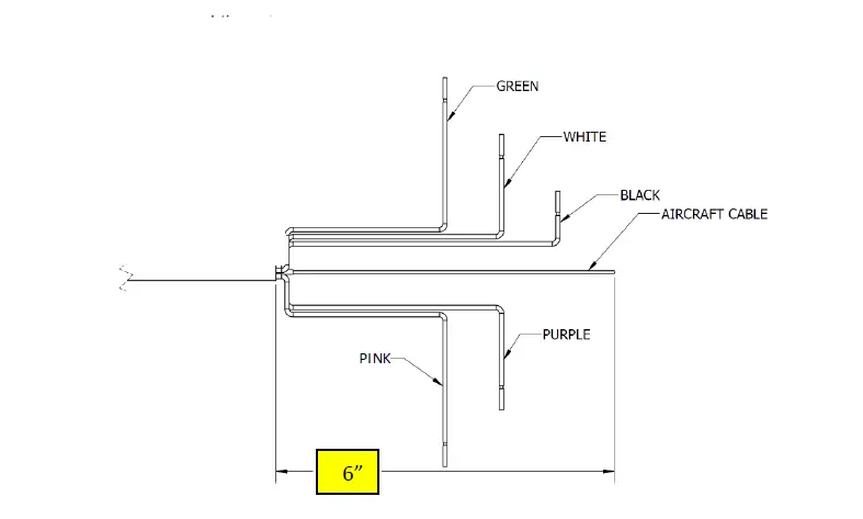
- Strip 6in of jacket to reveal the w ires.

- Thread the aircraft cable gripper into the cross member opposite the side of the countersink holes as show n below . Loosen the nut on the aircraft cable gripper and push it onto aircraft cable on the end of the cord. Push gripper all the w ay till it is stopped by the blue insulation. Hand tighten the nut.

- Assemble cross member to sw ivel ball w ith screw s. Route w ires on both sides. Tie safety knot in aircraft cable.

- lign sw ivel ball groove w ith mounting plate tab as it is brought up to the ceiling.

- Bring the fixture up to junction box w ith the sw ivel ball seated in the mounting plate. Attach tether to mounting plate.

- Make w ire connections per below diagram and push them into the J-box.

- After making wire connections, move the mounting plate and stem up to the J-box and canopy housing. Proceed to Step 9 to mechanically secure the mounting plate.

- Loosen the J-Box screws to allow keyholes in the mounting bracket to be captured by screws. Use the keyholes in the mounting bracket to secure it with the J-box screws. Align screws with the indication marks on the bracket. Adjust as necessary for fixture alignmen t. Tighten screws.

- Bring the canopy up to the ceiling and align the spring clips on the canopy w ith the rectangular cutouts on the bracket. Push the canopy up to the ceiling to snap the clips into the cutouts to secure the canopy.

© Acuity Brands Lighting, Inc. 2021 All Rights Reserv ed.
GOTHAM ARCHITECTURAL DOWNLIGHTING P: 1-800-705-SERV (7378)
www.gothamlighting.com
































