NewTech 8030 Sorano Rimless Toilet Suite

NOTE:
Our Back-to-Wall toilet suites are suitable for both a rear & side entry water inlet.
BEFORE YOU BEGIN
Before proceeding with installation, please read these instructions carefully to familiarise yourself with the required tools, materials and installation sequences. Please leave these instructions for the consumer after installation. Prior to installation, inspect the toilet to ensure that no damage has occurred in transit. If damage has occurred, or a visible defect exists, do not proceed with installation, and advise your supplier immediately.
CAUTION: Risk of personal injury or product damage. Handle with care. Vitreous china can break or chip if the product is handled carelessly.
- Observe all local plumbing and building codes. Installation shall be in accordance with AS/NZS 3500 and AS/NZS 6400.
- Carefully inspect the new toilet for damage.
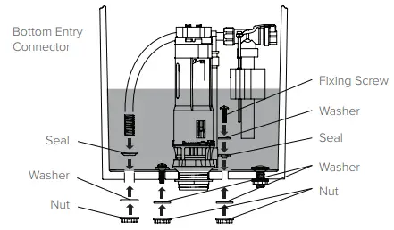
PARTS IDENTIFICATION

PREPARING TO INSTAL
- Identify the type of toilet installation
- Side Entry with Bottom Inlet or B) Top Rear Entry with Side Inlet Valve for Side Entry toilets, the bottom Entry Connector is supplied with the cistern.

Important: Please ensure and check the bung is tight. We recommend using a small bead of silicon to ensure seal. For Top Rear Entry installations, skip to Pan Installation on page 6
For Side Entry/Bottom Inlet installations, proceed with the instructions, below.
- Side Entry with Bottom Inlet or B) Top Rear Entry with Side Inlet Valve for Side Entry toilets, the bottom Entry Connector is supplied with the cistern.
- . For Side Entry/Bottom Inlet installations, check the shut-off valve position.

CISTERN INSTALLATION – BOTTOM INLET
- . Install the Bottom Entry Connector to the cistern. Place the stainless steel bolt with the rubber seal through fixing holes and tighten with stainless steel washer and nut beneath cistern. Ensure bottom entry bungs are a tight mechanical seal. We recommend also using silicon to ensure a seal.

- Position the cistern over the gasket on the pan inlet. Securely tighten the cistern bolts using a washer and stainless wing nut.

- Connect the supply hose to the cistern inlet and feed the hose through the appropriate side hole in the pan.

- Connect the supply hose to the shut-off valve to test the system for leaks. Shut off the water supply and disconnect the hose. Insert a capping plug into the unused hole.

PAN INSTALLATION
- Define the position of the connector: Place the connector onto the pan, and position the connector between the outlet and waste pipe. Installation instructions are supplied with each respective pan connector.

- Mark the positions of the floor fixing kit holes

- Drill fixing holes at the marked locations on the floor and insert the anchors where required.

- Place a washer onto each of the hexagon screws and fix the brackets to the floor.
- Position the toilet in the marked location, while ensuring an effective connection is made with the pan connector.
- Install the plastic screw sleeves and use the screws to fix the toilet to the brackets. Attach the chromed caps to the screw heads.
CISTERN INSTALLATION – TOP REAR ENTRY
- Place the stainless steel bolt with the rubber seal through fixing holes and tighten with stainless steel washer and nut beneath cistern. Ensure bottom entry bungs are a tight mechanical seal. We recommend also using a silicon to ensure seal.

- Position the cistern over the gasket on the pan inlet. Securely tighten the cistern bolts using a washer and stainless wing nut.

- Connect the supply hose to the cistern inlet, connect the hose to the water supply shut-off valve and check for leaks.

- Insert cappling plugs into the side entry holes in the pan.
- Connect the supply hose to the shut-off valve to test the system for leaks. Shut off the water supply and disconnect the hose.
PUSH BUTTON INSTALLATION
Fit the lid and test the buttons. Adjust the rods as required.
FLUSH VALVE REMOVAL AND INSTALLATION
Flush Valve A
- Release flush valve by turning anti-clockwise and pulling straight up on the canister.

- Assemble flush value by pushing straight down into the canister and turning clockwise.

TOILET SEAT INSTALLATION
- Before installation, please check all parts are included and match the images below.

TOILET SEAT CLEANING INSTRUCTIONS

- We recommend cleaning the toilet seat with warm soapy water, then drying with a clean soft cloth.
CAUTIONS
- Exposure of toilet seat to direct sunlight for an extended amount of time may cause fading

- Do not place heavy objects on the toilet seat cover, as this can lead to damage.

- Do not clean the toilet seat with strong chemical cleaners or citrus based cleaners.

- Do not close the toilet seat forcefully. This can cause damage to the soft-close mechanism.
NOTES
Do not force closure of the seat or lid, allow the mechanism to close naturally.
Be careful of damaging the toilet seat. This includes standing on the toilet seat, or overloading the toilet seat, which can result in broken hinges.
FINALISING INSTALLATION

- Ensure the front edge of seat follows the shape of the front edge of the pan.
- Ensure silicon rubber washer is fitted between seat connector and pan to ensure seat is rigid.
- Make final connection of the water supply hose to the shut-off valve. Test the system for leaks.
- Apply a suitable sealant between the pan and adjacent surfaces.
Head Office
281 Heads Road, Wanganui
PO Box 2050, Wanganui
[email protected]
Auckland Showroom
525 Great South Road, Penrose, Auckland
[email protected]
0800 728 662
www.newtech.co.nz





































