GRAM K 1807 CSG Three Door Refrigerated Counter Instructions
Thank you for choosing a quality product from Gram Commercial. This manual will advise you how to install, use and maintain your new product.
Before our products leave the factory, they undergo a full function and quality test.
Should you nevertheless experience problems with the product, then contact your local dealer. Gram Commercial representatives and dealers placed all over the world are ready to help you.
Please refer to your dealer for information about the warranty coverage of your new Gram product.
Any warranty is subject to correct use according to specifications in this user manual, where e.g. common maintenance and eventual repairs are carried out by authorized technicians with proper knowledge of the product and only using original spare parts.
Changes in installation and other use of the product than prescribed in this manual, might affect the operation and durability of the product.
The manual is written according to our current technical knowledge. We constantly work on updating this information, and we reserve the right to make technical changes.
Intended use
The product is intended for the storage of foodstuffs in non-household environments but not for the display to or access by customers. The product is designed for storage at a constant temperature and not be used for chilling down or freezing hot/fresh foodstuff. The product is only to be used for the purpose for which it has been expressly designed. Any other use could cause that the foodstuff stored in the product is not kept at the correct temperature or even damage the product. The product is not suited for storing blood plasma, laboratory samples, pharmaceuticals or similar substances. The manufacturer will not be held liable or responsible for any damage caused by improper, incorrect or unreasonable use of the product.
Safety information
Important
Description of symbols used in this manual.
⚠ Warning Lacking observation to these instructions might result in accidents with personal injury.
Important If these instructions are not observed, the product might be damaged or destroyed.
Be aware that Gram Commercial has taken precautions to ensure that the safety of the product is in order.
Please read carefully the following information regarding safety.
⚠ It is important, that everyone who are to use or install the product, to have access to this manual.
⚠ This appliance is not intended for use by persons with reduced physical, sensory or mental capabilities, or lack of experience and knowledge, unless they have been given supervision or instruction concerning use of the appliance by a person responsible for their safety.
⚠ Children should be supervised to ensure that they do not play with the appliance.
⚠ The appliance might contain parts with sharp edges in the compressor compartment, and in the inside compartment.
⚠ The appliance is not to be transported on a sack truck, there is a danger of loosing the balance, causing danger to persons.
Do not pull the power cord to disconnect the appliance, or when moving the appliance.
Location
When receiving the counter, check the packaging material for damage. If any damage occurs at the packaging material, it should be considered if the cabinet might have been damaged too. If the damage is substantial, please contact your dealer. The transport pallet can be removed by loosening the screws that fasten the pallet to the counter.
Because of the heavy weight of the counter, the floor might be damaged or scratched when moving the cabinet.
Correct set up gives the most effective operation.
The counter should be located in a dry and adequately ventilated room.
To ensure efficient operation, it may not be placed in direct sunlight or against heat-emitting surfaces.
The counter is designed to operate in an ambient temperature between +16C and +40°C.
Avoid placement of the counter in a chlorine/acid-containing environment (swimming bath etc.) due to risk of corrosion.
The counter and parts of the interior is equipped with a protecting film, which should be removed before use.
Clean the counter with a mild soap solution before use.
The set up place must be level and horizontal. For versions with legs, use the adjustable legs to make sure that the counter stands level and upright.

Optimizing the energy consumption
- Correct set up gives the most effective operation.
- The product should be located in a dry and adequately ventilated room.
- To ensure efficient operation, it may not be placed in direct sunlight or against heat emitting surfaces. The product is designed to operate in an ambient temperature between +16C and +40°C.
- Do not keep the door open for too long.
- Keep the condenser filter clean to be cleaned at least every 2 weeks.
- Do not set the temperature setpoint too low.
General description

Refrigerant / GWP value

Climate / temperature class
Products are tested according to the following climate and temperature classes. Information about the product’s climate and temperature class can be found at the name plate (see fig.9)
Climate class

Electrical connection
Read the text below thoroughly before electrical connection.
The cabinet is intended for connection to alternating current. The connection voltage (V) and frequency (Hz) are shown on the name plate in the cabinet (see Fig. 9). Only the supplied cord is to be used.
Never use an extension cord for this appliance! If a wall socket is placed in a longer distance than the length of the supplied power cord, contact an electrician to establish a wall socket within the range of the supplied power cord. If the product is defective, it must be examined by an authorized technician with proper knowledge of the product during the guarantee period, if it is a product with built-in compressor. If it is a product connected to an external compressor unit, it must be examined by the company who has connected the product to the unit. Outside the guarantee period, it is advisable to use the service advised by your dealer. If this is not the case, assistance is required from an authorized technician with proper knowledge of the product.
Always disconnect the power if interruptions in power supply occur, and when electrical parts are removed/put on, and before cleaning and maintenance of the appliance.
Repairing of electrical/technical parts may only be performed by authorized technicians with proper knowledge of the product.
Do not use the appliance before all coverings are installed, so that live or rotating machine parts can not be touched.
The counter is not to be used outdoor. All earthing requirements stipulated by the local electricity authorities must be observed. The cabinet plug and wall socket should then give correct earthing. If necessary, contact an electrician.
⚠ Make sure the appliance is switched off at the socket before service is performed on electrical parts. It is not sufficient to switch off the cabinet by the START/STOP key as there will still be voltage to some electrical parts of the counter.
General use
⚠ Do not block vent holes in the front panel.
⚠ Do not damage the refrigeration system parts.
⚠ During normal operation, some parts of the refrigeration system in the compressor compartment might reach high temperatures, and could therefore cause burns if touching these components.
Do not use electrical devices inside the cabinet.
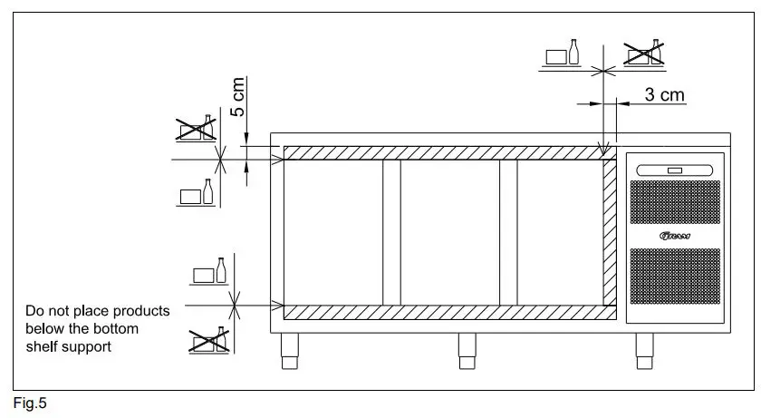
To ensure correct and efficient air flow in the cabinet, the shaded areas must be kept free of products. (see Fig. 5)
All products to be stored, that are not wrapped or packed, must be covered in order to avoid unnecessary corrosion of the inner parts of the cabinet.
If any controller parameters are changed from default, this could cause that the appliance is not functioning normally, and harmful temperatures could damage products that are kept inside the appliance.
If the appliance is turned off, wait minimum 3 minutes before turning the appliance on again.
This is to protect the compressor from damage Maximum loading of wire shelf: 40 kg
Do not store explosive substances such as aerosol cans with flammable propellant in this appliance.
Be aware, if bottles are stored near the air outlet, they may freeze up and break, causing a risk of injury.
Do not pack the cabinet with foods. Allow some space between them to ensure a good airflow.
Moist or fresh foods and those with a strong smell should be wrapped up in a plastic film or packed in a container. Otherwise the food may dry up or give their smell to other foods.
Foods containing acetic acid or yeast should be wrapped up in plastic film. Otherwise they may accelerate corrosion of the evaporator and metal parts, resulting in failure.

Starting up
Display overview:

During start up, the software version is displayed, followed by the software variant. The cabinet temperature is displayed, when the cabinet starts normal operation.
The cabinet starts with a defrost, which is stopped shortly after, when the system has performed a system check. To cancel the defrost program, press keys P and for more than 3 seconds. is turned off. To turn off the cabinet, push for more than 3 seconds.
Shortcuts:

Temperature setting
Temperature control: Press P to see the cabinet temperature setting; the display will show the set temperature.
Temperature regulation: Keep P pressed. At the same time, press + or – . Each time + or – is pressed the temperature will change one degree. When the display shows the desired temperature, let go of the two keys and the setting has been made.
Error codes on the display

* Applies only to counters with built-in compressor.
Acknowledgement of an alarm:
Acknowledge an alarm: push P .
Troubleshooting
Noise:
- If abnormal noise occurs, request service assistance.
- Operating sounds from compressor, condenser fan and interior fan are normal.
- If sheet metal parts, front panels or panels in front of the compressor compartment are making noise, these might be open. Close the panels.
Frosting inside compartment:
- Ambient humidity too high.
- The door is opened too often.
- The door is left open for too long.
- Damaged door gasket.
Poor cooling performance:
- Ambient temperature too high.
- The door is opened too often and/or open for too long.
- The door is left open.
- Damaged door gasket.
- Room temperature setting too high.
- Counter too packed with foods – air inlet/outlet blocked.
- Condenser mesh filter is clogged.
- Warm or hot foods inside.
- Defrost in progress. The room temperature may rise temporarily during the defrost cycle, but it will not affect the foods inside.
Some of the foods are frozen:
- Counter too packed with foods – air inlet/outlet blocked.
- Room temperature setting too low.
Condensation around the door:
- Ambient humidity too high.
- The door is not closed tightly.
- Damaged door gasket.
Too high energy consumption:
- Ambient temperature too high.
- The door is opened too often and/or open for too long.
- The door is left open.
- Damaged door gasket.
- Room temperature setting too low.
- Counter too packed with foods – air inlet/outlet blocked.
- Condenser mesh filter is clogged.
- Warm or hot foods are brought into the cabinet too often.
- Counter placed in direct sunlight or close to heat-emitting surfaces.
- The default settings have been changed.
This chapter includes setting of alarm values. The alarm system is divided into 2 systems. The one system only triggers local alarms, which means that the error codes are only shown at the display. The other alarm system triggers both alarms at the display, but it also activates the remote alarm outlet. Each alarm system operates independently of each other.

Keylock
The keypad can be locked by simultaneously pushing + 1 for more than 5 seconds. lights to indicate that the keys are locked, and a short beep sounds. Now it is not possible
to use the keys for temperature setting etc. The same code is to be used for unlocking the keypad again.
Defrosting
Defrosting is automatically performed 4 times every 24 hours. If the counter is operating under severe load (frequent door opening and frequent replenishment), manual defrosting can become necessary. Starting manual defrosting: push P + simultaneously for more than 3 seconds.
The next defrost will occur 6 hours later. lights up to indicate a defrosting cycle. It is possible to change the number of defrosts. See the chapter “User menu” for setting.
Do not use sharp or pointed objects to accelerate the defrosting process.
Defrost water
Counters with compressor Defrost water is led through a pipe, from the evaporator and into a tray behind the condenser. Here, the water is evaporated by heat from the condenser. Counters connected to a common compressor The defrost water is led through a pipe to a tray behind the front panel, from where it is evaporated by a heating element.
It is recommended to clean the tray at least once a year. Remember to disconnect the counter before cleaning.

Power failure
In the event of a power failure, the control remembers the temperature setting and restarts the counter when power is restored. If the power failure persists for some time, the control might revert to the factory setting.
Cleaning
Insufficient cleaning will cause that the counter will not work at optimum performance, or eventually it will be defective.
⚠ Before cleaning, the counter should always be disconnected.
⚠ Do not flush the counter with water, do not use water jet or steam hose as this may cause short-circuits in the electrical system.
Cleansing agents containing chlorine or compounds of chlorine as well as other corrosive means, are not to be used, as they might cause corrosion to the stainless panels of the cabinet and the evaporator.
The compressor compartment and in particular the condenser must be kept free from dust and dirt. This is best done with a vacuum cleaner and a brush. The air filters on the condenser and the front panel can be removed and cleaned in a dishwasher at max. 50°C.
For the external maintenance use stainless steel polish.
The counter should be cleaned internally with a mild soap solution at suitable intervals and checked thoroughly before it is put into operation again.
Cleaning of counters with drawers: If the counter is equipped with drawers and the bottom, sides or back wall require cleaning, the drawers can be removed as follows (see Fig. 7a,7b,7c):
Pull out the drawer. Lift it up, after which the drawer can be pulled of the extension rails.
After cleaning, the drawer can be replaced. Place the drawer on the outer wheels on the telescopic rails. Lower the drawer into a horizontal position after which it can be pushed into a closed position. The drawer is now securely positioned.

Changing door hinge side
The door can be changed from righthand-hinged to left-hand-hinged or vice-versa. To do so, proceed as follows:

- Remove the hinge at pos. A.
- Lift off the door.
- Remove the hinge at pos. B.
- Move cover plugs in the cabinet from pos. D to pos. A and from pos. C to pos. B.
- Move the cover plug in the door from pos. D to pos. A, too.
- The hinge previously mounted at pos. A is now mounted at pos. C.
- The door is now placed at the hinge at pos. C.
- The hinge previously mounted at pos. B is now mounted at pos. D and adjusted, so that the door is closing properly. Then tighten the screws.
Door/drawer gaskets
This chapter deals with the importance of a well-functioning gasket. Gaskets are an important part of a refrigerator/freezer. Gaskets with reduced functionality, reduces the tightness of the counter. Reduced tightness might cause increased humidity, internal icing, an iced up evaporator (leading to reduced refrigeration capacity), and in worst case reduced lifecycle of the counter.
Therefore it is important to be aware of the condition of the gasket. Regular inspection is recommended.
The gasket should be cleaned regularly with a mild soap solution. If a gasket needs replacement, contact your supplier.
Long term storage
If the counter is taken out of operation, and need to be prepared for long-term storage, clean the inside compartment, the door and door gasket thoroughly with a hot soapy damp cloth. Eventual remnants of food could create mould.
Service
The refrigerating system and the hermetically sealed compressor require no maintenance – they merely must be kept clean.
If refrigeration fails, first investigate whether the unit has been unintentionally disconnected or switched off at the socket, or whether a fuse has blown.
If it is not possible to find the cause of the refrigeration failure, please contact your dealer.
When reporting a malfunction please state the type and serial number (S/N) of the cabinet. This information is found on the name plate, see Fig. 9.
Location of the name plate:

Disposal
Electrical and electronic equipment (EEE) contains materials, components and substances that can be dangerous and harmful to human health and the environment if the waste (WEEE) is not disposed of properly. Products that are labelled with a “crossed-out wheelie bin” is considered electric and electronic equipment. The crossed-out wheelie bin symbolizes that waste of this type cannot be disposed of with unsorted municipal waste but must be collected separately. Contact your local dealer when the product needs to be disposed of. Please be aware of not damaging the refrigeration system and piping when a product is taken out of use. This will prevent the uncontrolled escape of the refrigerant from the refrigeration system.
The below only concerns the United Kingdom.
Disposal of an old cabinet is only available when we are delivering a new one at the same time. Cabinets must be fully defrosted and emptied prior to collection.
Gram recognises that our products for the catering market are considered as WEEE when they become obsolete. To ensure that Gram’s responsibilities are handled correctly and environmentally friendly, we are signed up the largest Business to Business compliance scheme in the UK B2B Compliance http://www.b2bcompliance.org.uk
B2B Compliance will on our behalf deal with all areas of our responsibilities when collecting and disposing of equipment which fall under the UK WEEE regulations. B2B Compliance can be contacted on telephone number 01691 676124.
![]()
EC-Declaration of conformity

UKCA-Declaration of conformity
Wiring diagram



Piping diagram




















