IHB EN 2217-7 PV Solar Cell Package
Instruction Manual
Installer manual
Solar package
NIBE PV Solar cell package
IHB EN 2217-7
431707 431707
Important information
Safety information
This manual describes installation and service procedures for implementation by specialists.
The manual must be left with the customer.
This appliance can be used by children aged from 8 years and above and persons with reduced physical, sensory or mental capabilities or lack of experience and knowledge if they have been given supervision or instruction concerning use of the appliance in a safe way and understand the hazards involved. Children shall not play with the appliance. Cleaning and user maintenance shall not be made by children without supervision.
This is an original manual. It may not betranslated without the approval of NIBE.
Rights to make any design or technical modifications are reserved.
©NIBE 2022.
SYMBOLS
NOTE
This symbol indicates danger to person or machine.
Caution
This symbol indicates important information about what you should consider when installing or servicing the installation.
TIP
This symbol indicates tips on how to facilitate using the product.
MARKING
Explanation of symbols that may be present on the product’s label(s).
General
RECOVERY
Leave the disposal of the packaging to the installer who installed the product or to special waste stations.
Do not dispose of used products with normal household waste. It must be disposed of at a special waste station or dealer who provides this type of service. Improper disposal of the product by the user results in administrative penalties in accordance with current legislation.
COPYRIGHT
The manufacturer retains the copyright for this manual. These instructions may only be distributed, translated or copied with the written permission of the manufacturer. We reserve the right to make changes to the specifications or illustrations in this manual without prior notification.
Start-up protocol for solar panel system
Start-up protocol, which is filled in by the installer.
| Installer | |
| Company: | |
| Installer: | |
| Telephone: | |
| Product Make: | Goodwe |
| Model: | |
| Inverter’s serial number: | |
| Start-up date: | |
| Connected to compatible NIBE product: | |
| Inverter’s position: | |
| Measurement values C Inverter test-run/started | The inverter is powered by the solar panels and will, for this reason, not start under all conditions. Measuring the values below ensures that the installation has been performed correctly. |
| C Checked polarity from the solar panels | |
| Current conditions (time, weather) | |
| Voltage AC: | |
| Voltage DC – String 1: | |
| Voltage DC – String 2: | |
| Voltage DC – String 3: | |
| Voltage DC – String 4: | |
| Notes / Other | |
| Signature | |
| Place and date: | |
| Signature: | |
| Clarification |
Installation inspection, solar panels
Current regulations require the installation to undergo an installation inspection before it is commissioned. The inspection must be carried out by a suitably qualified person.
| I Description | Notes | Signature | Date | |
| Mounting | ||||
| All work is carried out in accordance with the installation instructions, regulations and procedures regarding health, safety and the environment. | ||||
| In the event of any deviations from the specifications. changes must be performed in dialogue with, and according to the guidance of, the supplier. | ||||
| Roof surface checked and measured prior to start of installation. | ||||
| Roof structure and condition of mounting points checked. | ||||
| Projecting rails cut outside of outer clamps. | ||||
| All roof brackets have been installed in accordance with the instructions and measures have been implemented to prevent damage caused by water, moisture or other environmental factors. | ||||
| No holes have been made unnecessarily in the roof, and penetrations that have been created unintentionally or by mistake have been sealed. | ||||
| Any damage to the product(s) has been reported to the supplier and rectified in the agreed manner. | ||||
| Electrical installation | ||||
| Notification submitted to the power supplier, inverter data enclosed. | ||||
| The property’s main fuse checked against power from solar panels. | ||||
| Cables are installed in accordance with applicable rules and regulations. | ||||
| All MC4 connectors/connections have been double-checked to ensure they are correctly connected. | ||||
| All cables are correctly routed and executed with suitable pipes. ducts or protection Indoors and outdoors. | ||||
| All roof and wall lead-throughs are protected against water. moisture and other environmental factors, and are executed in accordance with applicable rules and regulations. | ||||
| DC cables are clearly marked. | ||||
| All voltages on the DC side have been measured and noted in the start-up protocol. | ||||
| The PV system is connected to the AC network and the installation has been functionally tested in accordance with the start-up protocol. | ||||
| Make sure that the connections are tamper-proof. if the inverter is located where It can be accessed by unauthorised parties. | ||||
| Warning signs installed. | ||||
| Notification of completion submitted to the power supplier. | ||||
| Handover to the property owner completed. | ||||
| Heat pump, where applicable | ||||
| EME 20 is installed between inverter and heat pump. | ||||
| EME 20 activated and communication checked in heat pump. | ||||
Delivery, handling and maintenance
Delivery
Together with the driver, check the delivery immediately for the following:
- Visible damage (compressed packaging etc.)
- That the correct number of packages have been delivered
- That the solar panels in particular are undamaged.
Handling
Caution
Avoid knocks and mechanical damage to the solar panel. Do not lift the solar panels by the connections.
Do not place the solar panels on objects that can damage them, nor pull or drag them over anything that can damage them.
Maintenance
SERVICE
The solar panels must be regularly inspected.
Check that the glass in the panels and the aluminium frames are not damaged.
Check that electrical wiring and connections are intact and undamaged.
Mechanical cleaning is not usually required and is not recommended.
Supplied components
PVK BASIC KIT

PVK 40-10
Monocrystalline silicon cell panels 10 pcs
Alu. rails, 10 pcs.
Alu. rail connectors 10 pcs.
Mountings for solar panels (assembly clamps) 24 pcs
Connectors for electrical connection between the panels and the inverter, male and female, (electrical cable not included) 4 + 4 pcs
PV cable with pre-installed connectors 7 metres 2 pcs
PVK 40-20
Monocrystalline silicon cell panels 20 pcs
Alu. rails 20 pcs.
Alu. rail connectors 20 pcs.
Mountings for solar panels (assembly clamps) 48 pcs
Connectors for electrical connection between the panels and the inverter, male and female, (electrical cable not included) 8 + 8 pcs
PV cable with re-installed connectors 7 metres 4 pcs
INVERTER
Inverters 1 pcs
Rating plates for electrical installation 4 pcs
EME 20 1 pcs
ROOF BRACKET PRM XX-20, 20 PCS
(AVAILABLE FOR VARIOUS ROOF TYPES)
PRM 11-20 Tiled roof
PRM 61-20 Retrofit kit, horizontal installation for tiled roof
PRM 21-20 Sheet metal roof
PRM 41-20 Felt roof
PRM 31-20 Seamed sheet metal roof
PRM 51-20 Universal for aluminium rails
Lower section for the roof bracket is not supplied by NIBE
Additional fastening for the relevant roof type is required
See section Mounting brackets for solar panels on felt roof on page 16 for further information.
Installation
General
The installation must only be carried out by competent personnel.
The enclosed materials are those required for the installations described (see page 12),. In special cases, these may need to be supplemented. If in doubt, contact your supplier.
Information on the applicable standards and regulations must be obtained prior to installation and commissioning.
The electrical installation, as well as the notification to the network operator, must be carried out by a qualified electrician.
Please note that commissioning the installation before the network operator has given its approval is not permitted.
NOTE
Installation of a solar panel is an extensive intervention on an existing roof. The roof covering, particularly on converted and inhabited loft spaces or where the roof’s minimum angle is undersized (relative to the covering), may require further measures against moisture because of wind pressure and drifting snow, this must be evaluated by the installer on a case to case basis. The roof design must be able to handle the wind and snow loading that can occur in the region.
STATIC LOAD
The installation is only permitted to be performed on roof surfaces or support structures with sufficient carrying capacity and strength. If necessary, the static load capacity of the roof and roof structure must be investigated before the solar panels are installed. Great importance should be placed on the condition of wooden roof structures and the possibilities for screwing the mounting devices for the solar panels to the structure. The roof structure must be reinforced if necessary. Inspection of the whole solar panel installation in accordance with DIN 1055 part 4 and 5, or in accordance with country-specific regulations, is required, in particular in areas that experience snowfall and strong winds. The characteristics of the installation’s location (prevailing wind direction, whirlwinds, etc.) must also be included in the calculation/estimate if these could involve increased loads. The solar panels must be installed so that snowdrifts resulting from snow guards or due to special conditions in the installation location cannot occur in the vicinity of the solar panels.
The distance from the outer edges of the roof must be at least 0.35 m at the sides of roofs and 0.2 m at ridges and eaves, in order to reduce the risk of the wind ripping the solar panels off.
The installation system according to DIN 1055 part 5 for snow zone II is intended for use up to 400 m above sea level. If the installation is made on a tiled roof, it is recommended that the snow is cleared if it reaches a depth of more than 30 cm on the solar panels (NOTE! If the snow has melted, been packed down and then more snow has fallen and so the density has increased, the snow may need to be cleared – even though it is not 30 cm deep.)
If there is a risk that the snow will slide down onto the panels and in particular behind the rear of raised panels, snow guards must be installed to prevent this. Also ensure that the material under roofs with roof tiles is sufficiently stable to support the roof mounting points.
Otherwise the roof must be reinforced. The installer must evaluate this and make a decision. If in doubt, a structural engineer needs to be consulted. We also recommend that the roof tiles should be ground down so there are no point loads between the roof and the roof brackets. The minimum distance between roof tiles at overlap points and the underside of the brackets is 3 mm, in order to allow for any movements in the mounting system due to the loads that can arise.
SAFETY INSTRUCTIONS
- Safety regulations for working on roofs and similar structures must be followed.
- Protection against falling parts must be installed. This is particularly important in locations where people pass below the roof/building.
- Personal safety equipment and/or scaffolding must be used when working on roofs, according to applicable regulations.
- Suitable measures must be taken during installation to ensure that the solar panel does not come loose and fall.
- Observe the safety distance to live conductors.
Installation and positioning
Using the map and the diagram, it is possible to estimate the annual value of the insolation on the surface where the solar panels are placed.
100% is the insolation at a horizontal surface. The angle of inclined surfaces is 45°.
The diagram shows insolation as a percentage of global radiation in relation to surfaces at various orientations and angles.
The map shows lines with the same global radiant flux, i.e. the insolation measured at horizontal surfaces.
- Calculate the annual solar radiation using the map. The specific solar radiation for the installation is obtained as a percentage, based on the location of the solar panel according to the diagram.
- Multiply the results by the installation’s peak output(e.g. 4 / 8 / 12 / 16 / 20 kW).
- Multiply the result 2 by a constant 0.9 to calculate the energy production in kWh/year (with a reservation for shade, dirt and snow coverage).
Example: Prague, 8 kW, 45°, installation south (112 %).1120 x (112/100) x 8 x 0.9 = 9032 kWh/year
Functions
MYUPLINK / NIBE UPLINK
With myUplink and the Internet, you can obtain a quick overview and the current status of the solar panel system on your property. You receive easy-to-grasp and good supporting data, where you can see the current power and the history. In the event of any malfunction, you also receive an alarm directly in the app, which allows you to take prompt countermeasures. myUplink requires the accessory EME 20, which is enclosed with the inverter.
WIFI COMMUNICATION MODULE CMO 11 / CMO 22
With this accessory, you can connect the inverter to its portal without myUplink.
CMO 11/22 communicates with your home network via wifi.
See separate manual for more information and installation.
CMO 11 is used for inverter PVI 10 and CMO 22 is used for PVI 20.
Mounting
Installing solar panels in several groups
Examples of possible combinations per ten panels:
To reduce the risk of damage to the electric cables between the groups of solar panels, these can be run underneath the roof tiles or ceiling. To prevent moisture penetrating under the roof tiles or through the damp barrier at the holes for the electrical cables, diffusion sealed lead-ins must be fitted.
Horizontal installation
The rails are installed vertically in the case of horizontal mounting. Remember that extra roof brackets and clamps are required.
Horizontal installation on a tiled roof also requires a retrofit kit PRM 61-20.
Specially adapted roof brackets for tiled roofs, sheet metal roofs, felt roofs or seamed sheet metal roofs. The type of roof bracket to be used must be specified when ordering. If
the panels are installed in a different formation, additional mounting materials may be required.
Caution
Additional connectors and mounting materials may be required to install solar panels in different groupings.
ADDITIONAL PANELS
Each package can be expanded with additional panels (PVK 40-1).
This means that you have extremely good flexibility, allowing attractive roof installation.
Caution
Check that the inverter can cope with the total power with additional panels.
Example
8 kW package installed on roof that is expanded by e.g. four solar panels (9.6 kW)
8 kW package installed on roof where it was decided not to install e.g. two panels (7.2 kW).
Number of solar panels per string and per package
The table shows how many panels you can have per string, as well as how many panels are standard and how many the inverter can cope with. The inverter has dual trackers, allowing the installation of different numbers of panels per string. If the number of panels is not sufficient to achieve the minimum number for two strings, you have to install all the panels in one string.
String = a number of panels connected in series.
| PVI | Inverter rec. max. DC: | Min./ string | Max./ string | Std./ no. | Min. total | Rec. max.total |
| 10-3 1 | 3.9 kW | 4 | 9 | – | 4 | 9 |
| 20-4 | 5.2 kW | 6 | 13 | 10 | 6 | 20 |
| 20-6 | 8 kW | 6 | 20 | 20 | 6 | 13 |
| 20-10 | 13 kW | 6 | 20 | 30 | 6 | 32 |
| 20-12 | 16 kW | 6 | 2×20 2 | 40 | 6 | 40 |
| 20-15 | 20 kW | 6 | 2×20 2 | 50 | 6 | 50 |
- 1×230 V.
- Tracker one can manage one string or two equally long strings.
OVERVIEW, ASSEMBLY PARTS
NOTE
Ensure that the strength and load-bearing capacity of the roof structure are sufficient.
NOTE
If there is not a sufficiently stable substructure such as tongued and grooved boards or roof trusses to allow a durable installation the roof must be reinforced.
BEFORE INSTALLING SOLAR PANELS
- Number of rows of installed solar panels x height of solar panels (plus distance between the solar panels where relevant).
- Number of solar panels installed horizontally x (solar panel’s width + 24 mm) + 31 mm.
- The horizontal distance between the mounting points for the roof brackets must not exceed c-c 1200 mm.
- Solar panel height
- Vertical location of the mounting points = panel height x 0.25.
- Max distance between the last roof bracket and the end of the mounting rail = 200 mm
CABLE ROUTING
Cable with pre-installed connectors (PVK 40-10: 2×7 m, PVK 30-20: 4×7 m) is supplied and can be used as a return cable for roof installation. For more information, see chapter
“Electrical connection” on page 19.
REMOVE THE ROOF TILES
Mark out the positions for the roof brackets using chalk.
Remove or slide up the marked roof tiles.
Caution
The image is only an example. For dimensions between roof brackets, see the section “Before installing solar panels” above.
ROOF BRACKETS IN TRUSS OR IN TONGUE AND GROOVE

Secure each roof bracket in the trusses with 3 x wood screws. 2 x screws are located in the lower groove and 1 x screws are located in the upper groove (screws not supplied).
Caution
The distance to the edge (X) must be the same on both sides
Installing the roof brackets in tongued and grooved boards
Secure each roof bracket with 6 x stainless steel construction screws, divided between the two grooves (screws not supplied).
SPACER PLATES

The roof bracket must not be pressed directly against the roof tile. Use a spacer plate if necessary?
The spacer plate must be made of a water and weatherresistant material (not supplied).
ADAPTING ROOF TILES
HANGER BOLT FOR SHEET METAL ROOF
- Drill holes in the roof tile or use existing holes
- Install the screw pin in the truss sufficiently deeply, (all the threaded section must be screwed in), to install a seal against the roof sheet. A bitumen based roof and building sealant can be used – required for textured (sanded) surfaces
- Install the L profile, adjust the height to the other screw pins
- Ensure that the screw pin’s entire thread is screwed into the roof truss.
MOUNTING BRACKETS FOR SOLAR PANELS ON SEAMED SHEET METAL ROOF
- Install the mounting on the roof according to the usual rules and practice
- Install the L profile with M10 bolt, washer and nut.
MOUNTING BRACKETS FOR SOLAR PANELS ON FELT ROOF
This applies for the installation of felt on a wooden roof, such as a garage roof. Depending on the roof structure, other felt/membrane variants may require different brackets.
In such cases, consult a certified roofer.
In such cases, the PRM 51 universal mount may be required.
- Install the plate on the roof according to the usual rules and practice

- Install the L profile on the protruding coach bolt with M10 nuts.
Caution
The coach bolt should be installed from underneath before the plate is mounted on the roof.
Caution
Never use the installed roof brackets as a ladder.
MOUNTING RAILS
Standing panels
Mounting rails are secured in the roof brackets with T bolts and locking nuts (8 mm).
Landscape panels
The PRM 61 retrofit kit is required for landscape panels.
Caution
Check that the head of the T-bolt is vertical in the mounting rail after tightening.
The rectangular hole in the roof bracket permits optimal height adjustment of the mounting rail.
Adjustment of the mounting rail height
Adjust the first mounting rails installed in relation to each other and the roof cladding. Then fix the mounting rail to the roof bracket by tightening the nut. Tightening torque
12-15 Nm.
JOIN THE MOUNTING RAIL
Slide the joint section with rivets into the mounting rail until it catches firmly on the raised part. Slide on the next mounting rail until it also catches on the raised part. Leave a space of 2 mm to compensate for thermal expansion.
A wider expansion joint is required after 21 panels, the joint must measure at least 100 mm.
INSTALLING SOLAR PANELS IN THE FIRST (BOTTOM) ROW
Caution
The assembly clamps can be twisted and are adapted for use both at the outer edges and between the solar panels.
- Position the first solar panel on the mounting rail.
- Click the assembly clamp into the first (bottom) row 5 mm from the end of the mounting rail.
- Secure the solar panel with the assembly clamp screw, tighten to 8 Nm.
- Click the assembly clamp into the installation rail on the right-hand side of the solar panel. Slide the assembly clamp towards the solar panel and connect.
- Position the second solar panel on the mounting rail and move the solar panel towards the assembly clamp.
Connect the cable to the previous solar panel. Secure the wiring between the solar panels. - Tighten the assembly clamp, tighten to 12-15 Nm.
- Install further solar panels according to point 4 to 6.
- After the last solar panel in the row 1 has been positioned on the mounting rail and connected, the assembly clamp is clicked into the mounting rail from the right. Minimum distance between the assembly clamp and the end of the mounting rail is 5 mm.
- Secure the solar panel with the assembly clamp screw, tighten to 8 Nm.
Caution
Secure the wiring between the solar panels.
Caution
Take the return cable when installing the panels. See section Electrical connection/Cable routing
Caution
Measure the voltage at the connected panels on the roof before removing any scaffolding.
Install the following rows in the same way.
Electrical connection
Outline diagram
* myUplink for the S-series and NIBE Uplink for the F-series.
NOTE
Electrical installation and service must be carried out under the supervision of a qualified electrician, and in accordance with applicable electrical safety regulations.
Factory-fitted junction boxes prepared with cables for positive and negative connections can be found on the reverse of the solar panels. The cables are fitted with quick-release
connectors.
The electrical cables between the panels and the inverter must be double insulated and UV/weather-resistant photovoltaic cables, 4 mm² up to 100 m length (not supplied).
The inverter is connected and fused to the fuse panel as if it was a load with the same output. The inverter includes a factory-fitted 300 mA residual current device. If the inverter
is to be connected to an external residual current device, this must be 300 mA or larger and of type A.
NOTE
The inverter is powered by the voltage from the solar panels. At night and in poor light, the inverter may therefore be switched off.
LIGHTNING PROTECTION
There are occasions when lightning protection can affect how the installation is installed. See the applicable laws and regulations.
NOTE
In order to minimise the risk of induced voltages in the event of lightning, the return cable must be laid together with connection cables for the panels connected in series.
INSTALLING CONNECTORS ON DC WIRING
DC connectors of the MC-4 type are supplied with all packages.
- The connector’s sleeve must not be disconnected until the cable has been inserted into the connector

- Strip the cable 15-16.5 m

- Twin the cable’s strands

- Insert the cable into the connector until a “click” is heard

- Check that the cable is securely in place by carefully pulling it.

- Fasten the connector’s sleeveso that the cable is secure andso that the sleeve is at the bottom(3-4 Nm)

Caution
Check that the polarity is correct when connecting to the inverter.
CONNECTING INVERTERS
For assembly and installation, consult the quick guide. For more information about the inverter, consult the enclosed manual.
QUICK GUIDE
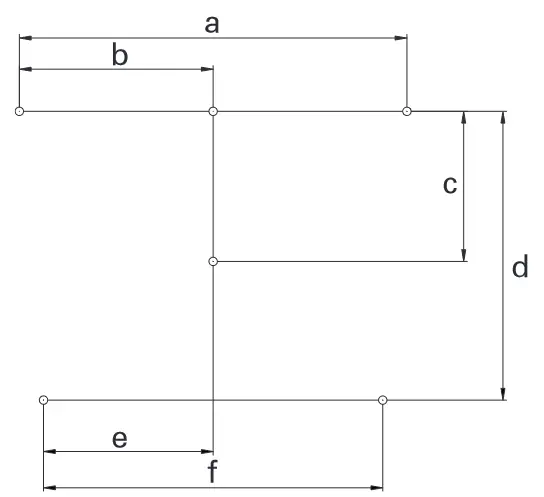
Installation area
Hole pattern for the bracket
| PVI 10-3 | 200 mm | |
| a | 250 mm | PVI 20-XX |
| b | 125 mm | 100 mm |
| c | 120 mm | 45 mm |
| d | 240 mm | – |
| e | – | – |
| f | 265 mm | – |
Fitting the wall bracket

Fitting the inverter
Fit the inverter on the wall bracket according to the diagram above.
The inverter must also be earthed as illustrated, then cover the switch with silicone to protect against corrosion.
NOTE
The warranty does not cover the inverter, if the sealing tape on the front cover is broken!
Switch
WARNING!
Check that all of the screws are tightened and that they do not protrude from the connector.
Inspection of the installation
Check that all screws and cable grommets are tightened and sealed.
The guarantee does not cover faults caused by screws/cable grommets that have not been tightened.
Set time and date.
EME 20
Connection of EME 20 and for information about RS-485, see separate manual for EME 20.
Technical specifications
Technical specifications
| Solar panel | kW | 4 | 8 | 12 | 16 | 20 | |
| Number of panels | 10 | 20 | 30 | 40 | 50 | ||
| Panel area | m2 | 20 | 40 | 60 | 80 | 100 | |
| Rated output at STC (Pnimp) | Wp | 400 | |||||
| Rated voltage (Vmmp) | V | 37. | |||||
| Rated current (Iwo) | A | 11. | |||||
| External; dimensions (LxWxH) | mm | 1879x1045x32 | |||||
| Version with aluminium frame | Anodised black | ||||||
| Weight panel | kg | 22 | |||||
| Connection cables with pre-installed connect- Ors | mm | 2×1250 | |||||
| Basic kit PVK | 40-10 | 40-20 | |||||
| Part No. | 57315 | 57314 | |||||
| Inverter | PVI 10-3 | PVI 20-4 | I PVI 20-6 | PVI 20-10 | PVI 20-12 | PVI 20-15 | |
| Voltage | V | 1×230 | 3×400 | ||||
| Outer dimensions (WxHxD) | mm | 347x432x145 | 354x433x147 | 354x433x155 | |||
| Weight | kg | 14 | 15 | 16 | 18 | ||
| Max. number of strings | 2 | 3 | |||||
| Cooling | Passive | Fan | |||||
| Colour | White | ||||||
| Number of trackers (MPPT) | 2 | ||||||
| Enclosure class | 1P65 | ||||||
| Max. power output”‘ | kW | 3 | 4 | 6 | 10 | 12 | 15 |
| Max. rec. DC power | kW | 4. | 5. | 8.0 | 13.0 | 16.0 | 20.0 |
| Recommended fuse size | A | 16 | 25 | 32 | |||
| Part No. | 572001057276 | 57277 | 57278 | 57279 | 57281 | ||
| EME 20 (only included in inverter PVI 10/20) | |||||||
| External dimensions (LxWxH) | MITI | 81x81x28 | |||||
| Enclosure class | IP22 | ||||||
| Part No. | 57188 | ||||||
- Has to be fused according to the max. power output or the max. rec. DC power, if that is lower.
Accessories
Not all accessories are available on all markets.
Detailed information about the accessories and complete accessories list available at nibe.eu.
Solar package NIBE PV
PVK 40-1 (1 x) Solar panel with assembly kit
(4 x assembly clamps,
1 x aluminium rail, 2 x joints)
Part no. 057 316
PRM 11-1 (1 x) Roof bracket, tiled roof
Part no. 057 181
PRM 11-20 (20 x) Roof bracket, tiled roof
Part no. 057 207
PRM 61-1 (1 x) Roof bracket, horizontal installation for tiled roof. Complement to PRM 11-1.
Part no. 057 250
PRM 61-20 (20 x) Roof bracket, horizontal installation for tiled roof. Complement to PRM 11-20.
Part no. 057 249
PRM 21-1 (1 x) Roof bracket, sheet metal roof
Part no. 057 182
PRM 21-20 (20 x) Roof bracket, sheet metal roof
Part no. 057 208
PRM 41-1 (1 x) Roof bracket, felt roof
Part no. 057 183
PRM 41-20 (20 x) Roof bracket, felt roof
Part no. 057 209
PRM 31-1 (1 x) Roof bracket, seamed sheet metal roof
Part no. 057 184
PRM 31-20 (20 x) Roof bracket, seamed sheet metal roof
Part no. 057 210
PRM 51-1 (1 x) Roof bracket, universal, for aluminium rails
Part no. 057 228
PRM 51-20 (20 x) Roof bracket, universal, for aluminium rails
Part no. 057 227
CMO 11 Wifi communication module (1 x) for the PVI 10-series
Part no. 057 252
CMO 22 Wifi communication module (1 x) for the PVI 20/30-series
Part no. 057 283
Item register
A
Accessories, 23
Accessory, 23
CMO 11, 23
CMO 22, 23
Communication module, 23
Roof bracket, felt roof, 23
Roof bracket, horizontal installation for tiled roof, 23
Roof bracket, seamed sheet metal roof, 23
Roof bracket, sheet metal roof, 23
Roof bracket, tiled roof, 23
Roof bracket, universal, for aluminium rails, 23
C
Cable routing, 14
CMO 11, 11
CMO 22, 11
Communication module, 11
E
Electrical connection, 19
Cable routing, 14
Installing connectors on DC wiring, 20
Inverter, 20
F
Functions
Communication module, 11
Internet, 11
I
Important information
Recovery, 4
Safety information, 4
Start-up protocol, 5
Insolation, 10
Installation
Adapting roof tile, 15
Additional panels, 12
Before installation, 13
Hanger bolt for sheet metal roof, 15
Horizontal installation, 16
Join the mounting rails, 17
Mount for felt roof, 16
Mount for seamed sheet metal roof, 16
Number of panels per string and per package, 13
Overview, assembly parts, 13
Panels in the bottom row, 17
Removal of roof tiles, 14
Roof bracket in tongue and groove, 14
Roof bracket in truss, 14
Spacer plate, 15
Vertical installation, 17
Installing connectors on DC wiring, 20
L
Lightning protection/potential compensation, 19
M
Marking, 4
Mounting, 12
myUplink, 11
N
NIBE Uplink, 11
O
Outline diagram
Electrical connection, 19
EME 20, 19
Energy meter, 19
Inverter, 19
Residual current device, 19
Solar panels, 19
Q
Quick guide, 20
Connector, 21
Hole pattern for the bracket, 20
Installation area, 20
Installation inspection, 21
Installing inverter, 21
Installing wall bracket, 20
Time and date, 21
R
Residual current device, 19
Roof combinations, 12
S
Safety information, 4
Marking, 4
Symbols, 4
Safety instructions, 9
Service, 7
Set time and date, 21
Solar map, 10
Start-up protocol, 5
Static load, 9
Supplied components, 8
Symbols, 4
T
Technical Data, 22
W
Wifi, 11
Contact information
| AUSTRIA KNV Energietechnik GmbH Gahberggasse 11, 4861 Schörfling Tel: +43 (0)7662 8963-0 [email protected] knv.at | CZECH REPUBLIC Družstevní závody Dražice – strojírna s.r.o. Dražice 69, 29471 Benátky n. Jiz. Tel: +420 326 373 801 [email protected] nibe.cz | DENMARK Vølund Varmeteknik A/S Industrivej Nord 7B, 7400 Herning Tel: +45 97 17 20 33 [email protected] volundvt.dk |
| FINLAND NIBE Energy Systems Oy Juurakkotie 3, 01510 Vantaa Tel: +358 (0)9 274 6970 [email protected] nibe.fi | FRANCE NIBE Energy Systems France SAS Zone industrielle RD 28 Rue du Pou du Ciel, 01600 Reyrieux Tél: 04 74 00 92 92 [email protected] nibe.fr | GERMANY NIBE Systemtechnik GmbH Am Reiherpfahl 3, 29223 Celle Tel: +49 (0)5141 75 46 -0 [email protected] nibe.de |
| GREAT BRITAIN NIBE Energy Systems Ltd 3C Broom Business Park, Bridge Way, S41 9QG Chesterfield Tel: +44 (0)330 311 2201 [email protected] nibe.co.uk | NETHERLANDS NIBE Energietechniek B.V. Energieweg 31, 4906 CG Oosterhout Tel: +31 (0)168 47 77 22 [email protected] nibenl.nl | NORWAY ABK-Qviller AS Brobekkveien 80, 0582 Oslo Tel: (+47) 23 17 05 20 [email protected] nibe.no |
| POLAND NIBE-BIAWAR Sp. z o.o. Al. Jana Pawla II 57, 15-703 Bialystok Tel: +48 (0)85 66 28 490 biawar.com.pl | RUSSIA EVAN bld. 8, Yuliusa Fuchika str. 603024 Nizhny Novgorod Tel: +7 831 288 85 55 [email protected] nibe-evan.ru | SWEDEN NIBE Energy Systems Box 14 Hannabadsvägen 5, 285 21 Markaryd Tel: +46 (0)433-27 3000 [email protected] nibe.se |
SWITZERLAND
NIBE Wärmetechnik c/o ait Schweiz AG
Industriepark, CH-6246 Altishofen
Tel. +41 (0)58 252 21 00
[email protected]
nibe.ch
For countries not mentioned in this list, contact
NIBE Sweden or check nibe.eu for more information.
NIBE Energy Systems
Hannabadsvägen 5
Box 14
SE-285 21 Markaryd
[email protected]
nibe.eu
This is a publication from NIBE Energy Systems. All product illustrations, facts and data are based
on the available information at the time of the publication’s approval.
NIBE Energy Systems makes reservations for any factual or printing errors in this publication.
©2022 NIBE ENERGY SYSTEMS
References
Nowoczesne urządzenia grzewcze — bufory i pompy | BIAWAR
Wärmepumpen und effiziente Energiesysteme von KNV
Wärmepumpen für einen nachhaltigen und einfachen Alltag | NIBE
Contemporary and Energy-efficient Heat pumps From | NIBE
Švédská tepelná čerpadla pro komfortní a udržitelný život | NIBE
Wärmepumpen | Heizen, Kühlen & Lüften - NIBE | NIBE
Heat pumps for sustainable energy solutions | NIBE
NIBE - Lämpöpumppuja jo yli 30 vuoden ajan | NIBE
Fabricant Suédois de pompes à chaleur | NIBE
Varmepumper for vannbåren varme | NIBE
Värmepumpar för en enkel och hållbar vardag | NIBE
Jouw warmtecomfort is onze passie | NIBE
Vølund Varmeteknik - varmeløsninger og varmepumper
Nowoczesne urządzenia grzewcze — bufory i pompy | BIAWAR
Wärmepumpen und effiziente Energiesysteme von KNV
Wärmepumpen für einen nachhaltigen und einfachen Alltag | NIBE
Contemporary and Energy-efficient Heat pumps From | NIBE
Švédská tepelná čerpadla pro komfortní a udržitelný život | NIBE
Wärmepumpen | Heizen, Kühlen & Lüften - NIBE | NIBE
NIBE - Lämpöpumppuja jo yli 30 vuoden ajan | NIBE
Fabricant Suédois de pompes à chaleur | NIBE
Varmepumper for vannbåren varme | NIBE
Jouw warmtecomfort is onze passie | NIBE
Vølund Varmeteknik - varmeløsninger og varmepumper
Heat pumps for sustainable energy solutions | NIBE
Värmepumpar för en enkel och hållbar vardag | NIBE

























