CombiSteel 7075.0105 Horizontal Outlet Drainage

HORIZONTAL OUTLET DRAINAGE CHANNEL INSTALLATION
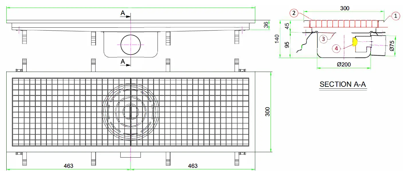
PLEASE CHECK AND MAKE SURE THAT THE BELOW LISTED PARTS ARE SUPPLIED
| NO | PART NAME | QUANTITV |
| 1 | BODY | 1 |
| 2 | GRATE | 2 |
| 3 | FILTER ELEMENT | 1 |
| 4 | RUBBER PLUG | 1 |
IT IS RECOMMENDED TO KEEP THE GRATE AND THE FILTER ELEMENT AWAY FROM THE INSTALLATION AREA UNTILL FINISHING THE FLOOR COVERING

- THE DISTANCE BETWEEN THE TOP OF THE EXISTING CONCRETE AND THE ANTICIPATED FINISH ED FLOOR LEVEL SHOULD BE EQUAL TO THE TOTAL HEIGHT OF THE DRAINAGE CHANNEL. IN CASE THIS DISTANCE IS MORE, FOUR PIECES OF MS BOLTS AND EIGHT PIECES OF MS NUTS SHOULD BE OBTAINED AND USED AS ADJUSTING FEET. THE LENGTH OF THE BOLTS WILL BE SPECIFIED ACCORDING TO THE AFOREMENTIONED DISTANCE.

- IN CASE APPLICATION OF ADJUSTING FEET IS REQUIRED, AS A FIRST STEP,THE BOLTS AND NUTS ARE FIXED ON THE BODY AS SHOWN BELOW.

- THE FLOOR DRAIN IS PLACED AT THE ALREADY SPECIFIED LOCATION.
- THE HEIGHT OF THE DRAINAGE CHANNEL IS ADJUSTED. THE TOP OF THE DRAINAGE CHANNEL SHOULD BE ADJUSTED 0.5-1.00 MM BELOW THE ANTICIPATED FINISH ED FLOOR LEVEL.

- THE DRAINAGE CHANNEL IS CONNECTED TO THE PVC PIPE. PLEASE MAKE SURE TO HAVE THE REQUIRED SLOPE AND THE ANGLE OF FLOW.

- APPROXIMATEL Y 30-40 MM OF CONCRETE IS POURED AT THE BOTTOM OF EACH FOOT AND LEFT TO CURE. MAKE SURE THAT THE DRAINAGE CHANNEL IS KEPT UNTOUCHED TILL THE CONCRETE IS PROPERLY CURED.

- THE WHOLE GAP AROUND AND UNDER THE DRAINAGE CHANNEL SHOULD BE FILLED WITH CONCRETE GRADUALLV AND HAVE A SMOOTH TOP SURFACE.
- AS THE LAST STEP, TILING IS APPLIED

- THE WHOLE SURFACE OF THE DRAINAGE CHANNEL MUST BE CLEANED PROPERLV BEFORE PLACING THE FILTER ELEMENT AND THE GRATE.
- PLEASE MAKE SURE THAT THE RUBBER PLUG IS ALWAVS ON. THE RUBBER PLUG MAV BE TAKEN OFF FOR MAINTENANCE ONLY.


























