smartwares DIC-211 Door Intercom Two-Wire Indoor Panel

WARNING
- Please read these instructions carefully before installing and using the product.
- Do not cut the power supply cable to extend it; the device (transformer) will not work with a longer cable. Do not plug in the device until all the wiring has been finished.
INSTALLATION SAFETY
- Keep children and bystanders away while installing the products. Distractions can cause you to lose control.
- Do not overreach when installing this product. Keep proper footing and balance at all times. This enables better control in unexpected situations.
- This product is not a toy. Mount it out of reach of children.
OPERATION SAFETY
- Do not operate electrically powered products in explosive atmospheres, such as in the presence of flammable liquids, gases, or dust. Electrically powered products create sparks which may ignite the dust or fumes.
- The warnings, precautions, and instructions discussed in this instruction manual cannot cover all possible conditions and situations that may occur. It must be understood by the operator that common sense and caution are factors which cannot be built into this product, but must be supplied by the operator.
- Do not expose the Power Adapter of this product to rain or wet conditions. Water entering the Power Adapter will increase the risk of electric shock.
- Do not abuse the Power Cord. Never use the cord for unplugging the plug from the outlet. Keep cord away from heat, oil, sharp edges or moving parts. Damaged or entangled cords increase the risk of electric shock.
- The adapter must match the outlet. Never modify the plug in any way. Unmodified plugs and matching outlets will reduce risk of electric shock.
WHAT’S IN THE BOX

- Indoor unit
- Outdoor unit
- Wiring
- Adapter
- Nameplate
- Mounting plate
- Screws and plugs
- Quickstart guide
PRODUCT OVERVIEW
INDOOR UNIT

- Speaker
- Unlock button
- Internal call button
- Intercom button
- Mute indicator
- Power indicator
- Select ringtone button
- Mute Button
- Adjust the ring volume button
- Microphone
OUTDOOR UNIT

- Speaker
- Call button/ Name card
- Microphone
- Unlock time switch
INSTALLATION – OUTDOOR UNIT
When installing the outdoor unit, make sure that the location you wish to install it is dry. It is important that the electronics do not get wet.

- Drill holes in the wall, insert the wall plugs in the holes. Place the bracket and tighten the screws.
- Connect the wires. Please pay attention to the color markings.
- Mount the outdoor unit on the bracket. Make sure it is properly secured.

- Use the special security screw on the bottom of the unit, to prevent theft.
Changing the nameplate

To change the nameplate on the outdoor unit, please push on the call button on one side, then use a flat screwdriver on the other side to gently pull out the button. Now place the nameplate, and replace the call button by pushing it back in.
INSTALLATION – INDOOR UNIT

- Select a suitable location for installation.

- Drill holes in the wall, insert the wall plugs in the holes. Place the bracket and tighten the screws.
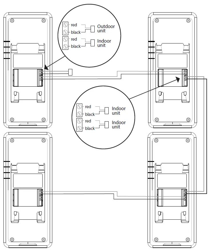
- Connect the wires. Please pay attention to the color markings
- Mount the indoor unit on the bracket. Make sure it is properly secured.
- Plug in the AC adapter after making sure all the wires are properly connected.
WIRING
When running the wires, please make sure that they are not placed directly next to electrical wiring, This could cause interference in your connection.
Testing the unit
When testing the unit, please make sure that the indoor unit and the outdoor unit are at least 10 meters apart. If the units are to close together, you could experience a high-pitched sound and echoes.


- Indoor-monitor B, C and D are optional, depending on how many indoor units you intend to use.

Distance between units/Wiring
- 1–50 m
- 2×0,75 mm2
- 1–100 m
- 2×1,5 mm2
USE
![]()
- Intercom function: When in standby, when a visitor presses the call button on the outdoor unit, the indoor unit will chime. Press the intercom button to speak to the visitor.
- Internal Intercom: When in standby, press and hold the intercom button to activate the internal intercom function. Use this to communicate between your different indoor units.
- Unlocking the door: After identifying your visitor, you can press this button to unlock the door.
- Setting your ringtone: Press this button multiple times to set the melody of your choice.
- Adjusting the ringtone volume: Press this button to turn up the volume.
- Muting the ringtone: Press this button to mute the ringtone, for when you don’t want to be disturbed.


INSTALLATION
- Extra indoor-monitors are optional, depending on how many indoor units you intend to use.


TECHNICAL SPECIFICATION
INDOOR UNIT
- Supply Voltage: 15V 1A
- Consumption current: 150mA±10mA
- Operation temperature: -10˚C – +50˚C
- Operation Humidity: 85%(Max)
OUTDOOR UNIT
- Consumption Current: 60mA±10mA
- Operating temperature: -10˚C – +50˚C
- Storage temperature: -20˚C – +60˚C
- Operating humidity: ≤85%RH
SAFETY INFORMATION
Precaution
- Do not cover the ventilation openings with objects such as newspaper, table cloths, curtains etc.
- Do not allow this product to get directly into contact with heat sources or naked flames.
- The normal operation of the product may be disturbed by strong electro-magnetic interference.
- This equipment is built exclusively for domestic use.
- The device must not be exposed to splashes and it must not be submerged.
- No object containing liquids, such as a vase, may be placed on the device.
- Maintain a minimum safety distance of 10cm all around the product in order to insure proper ventilation.
- Insure the outdoor unit is not installed where it may be covered by water or rain.
- Do not allow children to play with the device
CE: Conforms to all relevant European Directives.
This symbol is known as the ‘Crossed-out Wheelie Bin Symbol’. When this symbol is marked on a product or battery, it means that it should not be disposed of with your general household waste. Some chemicals contained within electrical/electronic products products or batteries can be harmful to health and the environment. Only dispose of electrical/electronic/battery items in separate collection schemes, which cater for the recovery and recycling of materials contained within. Your co-operation is vital to ensure the success of these schemes and for the protection of the environment.
smartwares Europe
- Swaardvenstraat 65 5048 AVTilburg The Netherlands
- www.smartwares.eu



















