
FRANKE FBFE A52 GB Cable Hood Instruction Manual

FBFE A52FBFE A70FBFP A52FBFP A70FBFP A86
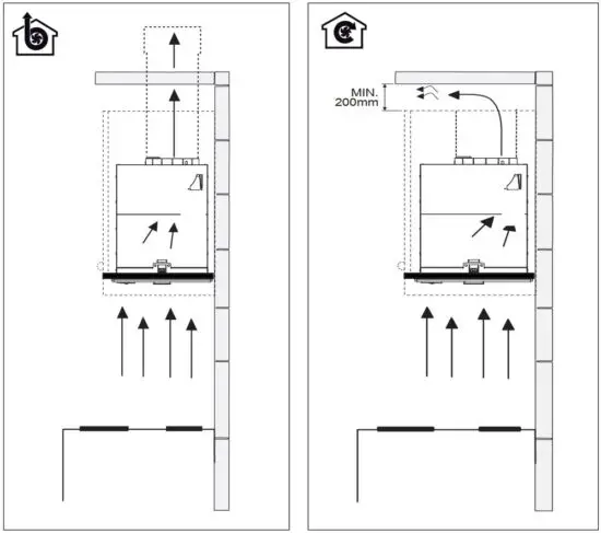
Warning! Before proceeding with installation, read the safety information in theUser Manual.

























![]()
Franke S.p.a.
Via Pignolini, 2
37019 Peschiera del Garda (VR)
www.franke.it
Read More About This Manual & Download PDF:


















