NOTIFIER UniNet 2000 AFP-300 Fire Alarm Control Panel Instruction Manual
Fire Alarm System Limitations
While a fire alarm system may lower insurance rates, it is not a substitute for fire insurance!
An automatic fire alarm system–typically made up of smoke detectors, heat detectors, manual pull stations, audible warning devices, and a fire alarm control with remote notification capability–can provide early warning of a developing fire. Such a system, however, does not assure protection against property damage or loss of life resulting from a fire.
The Manufacturer recommends that smoke and/or heat detectors be located throughout a protected premise following the recommendations of the current edition of the National Fire Protection Association Standard 72 (NFPA 72), manufacturer’s recommendations, State and local codes, and the recommendations contained in the Guide for Proper Use of System Smoke Detectors, which is made available at no charge to all installing dealers. A study by the Federal Emergency Management Agency (an agency of the United States government) indicated that smoke detectors may not go off in as many as 35% of all fires.
While fire alarm systems are designed to provide early warning against fire, they do not guarantee warning or protection against fire. A fire alarm system may not provide timely or adequate warning, or simply may not function, for a variety of reasons:
Smoke detectors may not sense fire where smoke cannot reach the detectors such as in chimneys, in or behind walls, on roofs, or on the other side of closed doors. Smoke detectorsalso may not sense a fire on another level or floor of a building.
A second-floor detector, for example, may not sense a first-floor or basement fire
Particles of combustion or “smoke” from a developing fire may not reach the sensing chambers of smoke detectors because:
- Barriers such as closed or partially closed doors, walls, or chimneys may inhibit particle or smoke flow.
- Smoke particles may become “cold,” stratify, and not reach the ceiling or upper walls where detectors are located.
- Smoke particles may be blown away from detectors by air outlets.
- Smoke particles may be drawn into air returns before reaching the detector.
The amount of “smoke” present may be insufficient to alarm smoke detectors. Smoke detectors are designed to alarm at various levels of smoke density. If such density levels are not created by a developing fire at the location of detectors, the detectors will not go into alarm.
Smoke detectors, even when working properly, have sensing limitations. Detectors that have photoelectronic sensing chambers tend to detect smoldering fires better than flaming fires, which have little visible smoke. Detectors that have ionizingtype sensing chambers tend to detect fast-flaming fires better than smoldering fires. Because fires develop in different ways and are often unpredictable in their growth, neither type of detector is necessarily best and a given type of detector may not provide adequate warning of a fire.
Smoke detectors cannot be expected to provide adequate warning of fires caused by arson, children playing with matches (especially in bedrooms), smoking in bed, and violent explosions (caused by escaping gas, improper storage of flammable materials, etc.).
Heat detectors do not sense particles of combustion and alarm only when heat on their sensors increases at a predetermined rate or reaches a predetermined level. Rate-of-rise heat detectors may be subject to reduced sensitivity over time. For this reason, the rate-of-rise feature of each detector should be tested at least once per year by a qualified fire protection specialist.
Heat detectors are designed to protect property, not life.
IMPORTANT! Smoke detectors must be installed in the same room as the control panel and in rooms used by the system for the connection of alarm transmission wiring, communications, signaling, and/or power. If detectors are not so located, a developing fire may damage the alarm system, crippling its ability to report a fire.
Audible warning devices such as bells may not alert people if these devices are located on the other side of closed or partly open doors or are located on another floor of a building. Anywarning device may fail to alert people with a disability or those who have recently consumed drugs, alcohol or medication.
Please note that:
- Strobes can, under certain circumstances, cause seizures in people with conditions such as epilepsy.
- Studies have shown that certain people, even when they hear a fire alarm signal, do not respond or comprehend the meaning of the signal. It is the property owner’s responsibility to conduct fire drills and other training exercise to make people aware of fire alarm signals and instruct them on the proper reaction to alarm signals.
- In rare instances, the sounding of a warning device can cause temporary or permanent hearing loss.
A fire alarm system will not operate without any electrical power. If AC power fails, the system will operate from standby batteries only for a specified time and only if the batteries have been properly maintained and replaced regularly.
Equipment used in the system may not be technically compatible with the control. It is essential to use only equipment listed for service with your control panel.
Telephone lines needed to transmit alarm signals from a premise to a central monitoring station may be out of service or temporarily disabled. For added protection against telephone line failure, backup radio transmission systems are recommended.
The most common cause of fire alarm malfunction is inadequate maintenance. To keep the entire fire alarm system in excellent working order, ongoing maintenance is required per the manufacturer’s recommendations, and UL and NFPA standards.
At a minimum, the requirements of Chapter 7 of NFPA 72 shall be followed. Environments with large amounts of dust, dirt or high air velocity require more frequent maintenance. A maintenance agreement should be arranged through the local manufacturer’s representative. Maintenance should be scheduled monthly or as required by National and/or local fire codes and should be performed by authorized professional fire alarm installers only. Adequate written records of all inspections should be kept.
Installation Precautions
Adherence to the following will aid in problem-free installation with long-term reliability:
WARNING – Several different sources of power can be connected to the fire alarm control panel. Disconnect all sources of power before servicing. Control unit and associated equipment may be damaged by removing and/or inserting cards, modules, or interconnecting cables while the unit is energized. Do not attempt to install, service, or operate this unit until this manual is read and understood.
CAUTION – System Reacceptance Test after Software Changes. To ensure proper system operation, this product must be tested in accordance with NFPA 72 Chapter 7 after any programming operation or change in site-specific software. Reacceptance testing is required after any change, addition or deletion of system components, or after any modification, repair or adjustment to system hardware or wiring.
All components, circuits, system operations, or software functions known to be affected by a change must be 100% tested. In addition, to ensure that other operations are not inadvertently affected, at least 10% of initiating devices that are not directly affected by the change, up to a maximum of 50 devices, must also be tested and proper system operation verified.
This system meets NFPA requirements for operation at 0-49° C/32-120° F and at a relative humidity of 85% RH – 93% per ULC – (non-condensing) at 30°C/86° F. However, the useful life of the system’s standby batteries and the electronic components may be adversely affected by extreme temperature ranges and humidity. Therefore, it is recommended that this system and all peripherals be installed in an environment with a nominal room temperature of 15-27° C/60-80° F.
Verify that wire sizes are adequate for all initiating and indicating device loops. Most devices cannot tolerate more than a 10% I.R. drop from the specified device voltage.
Like all solid state electronic devices, this system may operate erratically or can be damaged when subjected to lightning-induced transients. Although no system is completely immune from lightning transients and interferences, proper grounding will reduce susceptibility. Overhead or outside aerial wiring is not recommended, due to an increased susceptibility to nearby lightning strikes. Consult with the Technical Services Department if any problems are anticipated or encountered.
Disconnect AC power and batteries prior to removing or inserting circuit boards. Failure to do so can damage circuits.
Remove all electronic assemblies prior to any drilling, filing, reaming, or punching of the enclosure. When possible, make all cable entries from the sides or rear. Before making modifications, verify that they will not interfere with battery, transformer, and printed circuit board location.
Do not tighten screw terminals more than 9 in-lbs.
Over-tightening may damage threads, resulting in reduced terminal contact pressure and difficulty with screw terminal removal.
Though designed to last many years, system components can fail at any time. This system contains static-sensitive components. Always ground yourself with a proper wrist strap before handling any circuits so that static charges are removed from the body. Use static-suppressive packaging to protect electronic assemblies removed from the unit.
Follow the instructions in the installation, operating, andprogramming manuals. These instructions must be followed to avoid damage to the control panel and associated equipment. FACP operation and reliability depend upon proper installation by authorized personnel.
FCC Warning
WARNING: This equipment generates, uses, and can radiate radio frequency energy and if not installed and used in accordance with the instruction manual, may cause interference to radio communications. It has been tested and found to comply with the limits for class A computing device pursuant to Subpart B of Part 15 of FCC Rules, which is designed to provide reasonable protection against such interference when operated in a commercial environment. Operation of this equipment in a residential area is likely to cause interference, in which case the user will be required to correct the interference at his own expense
Canadian Requirements
This digital apparatus does not exceed the Class A limits for radiation noise emissions from digital apparatus set out in the Radio Interference Regulations of the Canadian Department of Communications.
Acclimate Plus™, HARSH™, NOTI•FIRE•NET™, ONYX™, and VeriFire™ are trademarks, and FlashScan® and VIEW® are registered trademarks of NOTIFIER.
NION™ and UniNet™ are trademarks of NIS. NIS™ and Notifier Integrated Systems™ are trademarks and NOTIFIER® is a registered trademark of Fire•Lite
Alarms, Inc. Echelon® is a registered trademark and LonWorks™ is a trademark of Echelon Corporation. ARCNET® is a registered trademark of Datapoint Corporation. Microsoft® and Windows® are registered trademarks of the Microsoft Corporation. LEXAN® is a registered trademark of GE Plastics, a subsidiary of General Electric Company.
- Network Installation M anual: 51539
- Workstation: 51540
- System Utilities: 51592
- BCI ver. 3-3: 51543
- Local Area Server: 51544
- UniLogic: 51547
- Event Manager: 51546
- UniTour: 51550
- AFP-300/400 Operation Manual: 50260
- Wide Area Server: 51545
Related Documentation
Foreword
The contents of this manual are important and must be kept in close proximity of the hardware. If building ownership is changed, this manual and all other testing and maintenance information must also be passed to the current owner of the facility. A copy of this manual was shipped with the equipment and is also available from the manufacturer.
This equipment has been designed to comply with standards set forth by the following regulatory agencies:
NFPA Standards
- National Fire Protection Association Standards 72.
- National Electric Code (NFPA 70).
- Life Safety Code (NFPA 101).
Underwriters Laboratories U.S. Documents
- UL-864 Control Units for Fire Protective Signaling Systems.
- UL-1076 Proprietary Burglar Alarm Units and Systems.
Other
- Requirements of the Local Authority Having Jurisdiction (LAHJ).
WARNING: Improper installation, maintenance, and lack of routine testing could result in system malfunction. WARNING:WARNING:
Introduction
The AFP-300/400 NION is a plug-in component of the UniNet Workstation. It allows a workstation to view events and other data originating from the AFP-300 or AFP-400 fire alarm control panels.
UniNet consists of graphical workstations monitoring and controlling local or remote twisted pair or fiber optic networks. Remote network monitoring is achieved through the use of a Building Communications Interface (BCI), which has a maximum capacity of 32 nodes. Each Local Area Server (LAS) has a maximum capacity of 200nodes, using twisted pair or fiber-optic cabling. A twisted pair network topology (FT 10) may be a maximum length of 6000 feet per network segment with no T-taps, allowing communications between 64 nodes in each segment.
In addition, FT-10 allows dedicated runs of 8000 feet point-to-point or multiple T-taps within 1500 feet of any other node on the segment. Fiber-optic cable runs can be configured in either a bus or ring topology. The network is supervised for shorts, opens and node failures as dictated in Style 4 wiring.
The network power is 24 VDC nominal and receives operating power from a power limited, filtered source listed for use with fire protective signaling units
Description and Installation
Description of the AFP-300/400 NION
The AFP-300/400 NION (Network Input Output Node) is the EIA-232 interface used with the network. All of the system components are based on LonWorks™ (Local Operating Network) technologies. The AFP-300/400 NION provides transparent or interpreted communications between the Workstation and control panels. Unless otherwise noted, full control capabilities are available for each interface. Check specific connections for details.
The NION connects a LonWorks™ FT-10 or fiber optic network, and the EIA-232 port of control panels. It provides a two-way communication channel for EIA-232 serial data when connected to a control panel. NIONs are specific to the type of network to which they connect (FT-10 or fiber). The LonWorks™ network interface accepts any standard SMX style transceiver (FTXC, S7FTXC, FOXC, or DFXC). The transceiver type must be specified and ordered separately when ordering the NION.
The NION mounts in an enclosure (NISCAB-1 or CHS-4L in CAB-3 or CAB-4 series enclosure – sold separately)with conduit knockout
When upgrading from the older AFP-300/400 NION-232B board, the database conversion utility needs to be run before installing the new AFP-300/400 NION board. The conversion utility will -300/400 NION board. The conversion utility will alter existing device IDs in the screen database to match the new format used by this NION. Any UniLogic equations from the old system must be recreated after installing the new AFP-300/400 -300/400-300/400 NION.
See Appendix A for details on the conversion utility.
NOTE: This NION is only compatible with UniNet 2.0 and later Workstation software.

AFP-300/400 NION (AFP-300/400 NION)
NOTE: The NION is installed in the cabinet with the AFP-300/400 FACP*)
FIgure 1-1: NION Architecture Diagram

Figure 1-2: AFP-300/400 NION Board Layout
NOTES: The AFP-300/400 NION is only compatible with AFP-300/400 firmware version 3.6 or later.
It is recommended that the installer conform to local code requirements when installing all wiring. All power connections must be non-resettable. Refer to the current Notifier catalog for specific part numbers and ordering information for each NION.
To avoid damage to hardware, always remove power from the NION before making any changes to switch settings and removing or installing option modules, SMX network modules and software upgrade chips.
Always observe ESD protection procedures.
AFP-300/400 NION Connectors
Power Connector (TB5) – +24VDC input power connector.
TB6 – Relay output; both Normally Open/Normally Closed are available (contact rating: 2A 30VDC). All rated loads are resistive.
TB1 – Standard terminal block style port for EIA-232 connection to serial channel A.
Echelon Network Transceiver Connector(J1) – Pin connection header for SMX Transceiver.
Reset Pin (SW1) – Resets the NION and restarts the software.
Bind Pin (SW2) – Sends a message to the Local Area Server requesting to be added to the network.
Battery Terminal (BT1) – 3V Lithium battery terminal (replacement battery P/N – LITHBATT-3V).
Network Communication PLCC (U24) – The flash module that specifies the network transceiver.
Application PLCC (U6) – The flash module that contains the application software.
Environmental Requirements
The AFP-300/400 NION can be installed in the following environmental conditions:
- Temperature range of 0ºC to 49ºC (32°F – 120°F).
- 93% humidity non-condensing at 30ºC (86°F).
Installation Description
Required Components
- NION-SPB
- SMX Transceiver (FTXC, S7FTXC, FOXC, or DFXC)
- Software kit for AFP-300/400 NION interface
- Enclosure (CAB-3 or CAB-4 series cabinet, NISCAB-1, or ABS-4DB)
The following paragraphs describe all required and optional components used to assemble a functional AFP-300/ 400 NION. All of the items described must be ordered separately.
Cabinet Mounting Information
The AFP-300/400 NION board can be installed in any NOTIFIER® CAB-3 or CAB-4 series cabinet, a NOTIFIER® NISCAB-1, or an ABS-4DB Annunciator Backbox (surface mount). The NISCAB-1 allows the installation of one NION.
The AFP-300/400 NION board is designed to be installed on a wall within 20 feet in conduit of the control panel in the same room. The type of hardware used is at the discretion of the installer, but it must be in accordance with local code requirements.
CAB-3/CAB-4 Series Installation
The CHS-4L or CHS-M2 chassis gets mounted into a CAB-3 or CAB-4 series cabinet.

Figure 1-3: CAB-A3/4 Enclosure
NISCAB-1 Installation
The AFP-300/400 NION may be mounted stand-alone in a single node enclosure, the NISCAB-1, where power is supplied by the monitored equipment or an external source. This enclosure is provided with door and key lock.
Mounting the enclosure to its wall position
- Use the provided key to unlock the enclosure cover.
- Remove the enclosure cover.
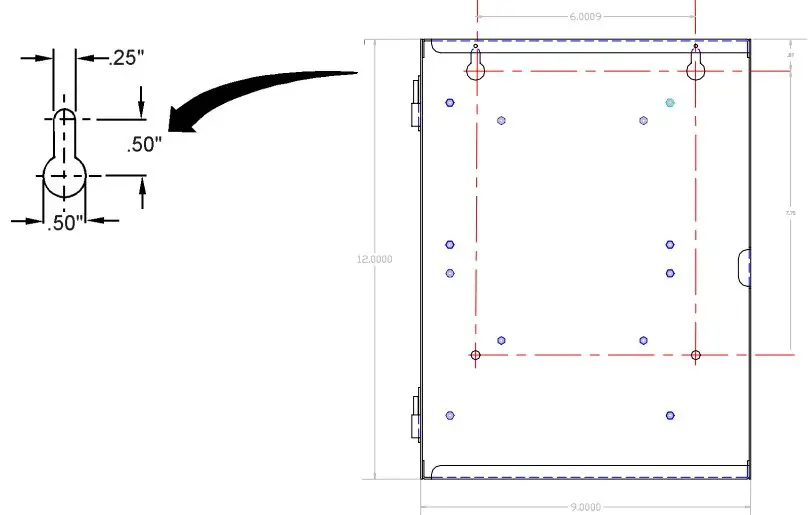
- Mount the enclosure to the wall. Refer to the enclosure mounting hole layout below.

Figure 1-4: NION Stand-Alone Enclosure Mounting Hole Layout
When mounting single NION boards in this enclosure, be sure to use the inboard set of four mounting studs.
ABS-4D/B Installation
The Annunciator Backbox (ABS-4D/B) cabinet has a hinged door with a key lock (to diminish unauthorized use) and a transparent window. The mounting panel and door are both hinged at the bottom for easy access. Power must be supplied externally if the cabinet is surface mounted. Knockouts are provided for use with a 1/2-inch (12.7mm) conduit. The height of the cabinet is 12 inches (30.48 cm), the width is 19-7/8 inches (50.483 cm), and the depth is 3-1/2 inches (8.9mm). If the cabinet is a surface mount, the door adds an additional 1-1/4 inches (31.75) to the depth. A trim ring will be required if the cabinet is a semi-flush mount.

Figure 1-5: ABS-4D/B Annunciator Backbox
AFP-300/400 NION Diagnostic LEDs
The AFP-300/400 NION has 6 diagnostic LEDs used as aids in diagnosing proper operation.
Service LED – Indicates binding status of node on Echelon network.
- Slow blink indicates NION not bound.
- Off indicates NION bound.
- On indicates nonrecoverable error.
Service Service
Network Status Network StatusNetwork Status
Network P Network PNetwork Packet
Serial 2 Serial 2Serial 2
Serial 1 Serial 1Serial 1
NION Status
Figure 1-6: NION LEDs
Network Status – Indicates status of Echelon network interface.
- Slow blink indicates network operation normal.
- Off indicates network interface not functioning.
- Fast blink indicates a network communication error
Network Packet – Blinks briefly each time a data packet is received or transmitted on the Echelon network.
Serial 2 – not used.
Serial 1 – Application specific indicator of serial port activity (port 1); slow blink indicates the NION is operating properly.
NION Status – Indicates status of the NION.
- Rapid blinking indicates proper NION operation.
- On or Off indicates critical error and that the NION is not functioning.
NION Power Requirements
The AFP-300/400 NION requires +24VDC @ 250 mA nominal and supervised battery backup in accordance with local code requirements. It can be powered by any regulated, power limited source that is UL listed for use with fire protective signaling units. The NION is equipped with a +3VDC lithium battery for data backup during low power conditions. The AFP-300/400 NION is powered by external +24VDC supply at TB5.

Figure 1-7: AFP-300/400 NION TB5 Power Connection
Relay output – Fault Annunciation
TB6 on the SPB board is used to annunciate a trouble condition;
Normally Open and Normally Closed contacts are available.
The red Relay Power LED on the AFP-300/400 NION indicates a trouble with either serial communication or Echelon network communication.

Figure 1-8: AFP-300/400 Fault Annunciation
SMX Network Connection
The UniNet facilities monitoring system is distributed via a LonWorks™ network. This high-speed network allows communication between field nodes and a Local Area Server or a BCI. NION modules provide the communication links between monitored equipment and the network.
J1 SMX Connection
A twisted pair of wires or dedicated fiber-optic cable is used for data transmission in the UniNet network. The SMX transceiver connects the NION to the network using one of these wiring types. The network SMX transceiver daughter board is a component of every NION. This transceiver provides the network medium interface for NION network communication.
There are four styles of SMX transceivers: FTXC (Free Topology), S7FTXC (Style 7 FTXC), DFXC, and FOXC. The proper transceiver must be ordered separately for the specific medium it is to utilize
FTXC
The FTXC transceiver is used for FT-10 (Free Topology) wire bus and star network configurations.
The wire must be:
- Twisted pair cable.
- UL listed for use in a power-limited fire-detection system (if used in conjunction with a fire monitoring network).
- Riser, plenum, or non-plenum cable, according to local fire alarm wiring codes.
FOXC
The FOXC transceiver is used for point-to-point optical fiber. For the FOXC, two strands are required per segment; one dedicated to transmit, the other to receive. The FOXC can have no more than 8db of attenuation between nodes.
DFXC
The DFXC is a bidirectional optical fiber transceiver; it requires only one strand between nodes. The DFXC can have no more than 12.5db of attenuation between nodes.
Transceivers are mounted to the NION mother board using a header strip and two standoffs. Refer to the board layout diagram for the placement of the SMX transceivers.
NOTE: Fiber optic segments require fiber that is:
- Multi-mode.
- 62.5/125 µm dia.
NOTES: Use only wire for power limited systems. Power limited wireruns use type FPLR, FPLP, FPL or equivalent cabling per NEC 760.
All non-fiber network connections are transformer isolated making all network communication immune to ground fault conditions. Therefore, no ground fault supervision of the Echelon network is required or provided.
FTXC-PCA and FTXC-PCB Network Transceivers
When used by the FTXC transceiver, FT-10 allows up to 8,000 feet (2438.4 m) per segment in a point-to-point configuration, up to 6,000 feet (1828.8 m) per segment in a bus configuration, or up to 1,500 feet (457.2 m) per segment in a star configuration. Each segment can support 64 nodes, and with routers, the system can be expanded up to 200 nodes.

Figure 1-9: SMX Transceivers: FTXC-PCA and FTXC-PCB

Figure 1-10: FTXC-PCA Transceiver Wiring
S7FTXC-PCA (Style-7) Network Transceiver
The S7FTXC-PCA combines two FT-10 interface ports that allow the transceiver to meet Style-7 wiring requirements.
The two ports on the S7FTXC-PCA, when used with true style-7 wiring requirements, create a point-to-point type network segment allowing up to 8,000 feet between nodes that use the S7FTXC-PCA. The seperate FT ports allow two twisted pair connections so that a cabling fault on one segment will not affect the other.
The S7FTXC-PCA has four diagnostic LEDs that are visible when the board is installed onto a NION.
- Packet – Blinks when a packet is received or transmitted.
- Status – Blinks steadily when no network traffic is present, and blinks rapidly when processing.
- P1 ERR and P2 ERR – These LEDs (P1 for Port1, P2 for Port 2) denote error conditions when they blink.
NOTE: The S7FTXC temporarily stops processing when an error occurs. This suppresses noise propagation throughout the network.
For more information about Style-7 network configuration refer to the Local Area Server manual 51544.

Figure 1-11: SMX Transceivers: S7FTXC-PCA Style 7 Transceiver
NOTE: See section 1.1.8 of the Network Installation manual for more information about FT and Bus termination.
FOXC-PCA and DFXC-PCA Fiber Optic Network Transceivers
The FOXC-PCA allows up to 8db of attenuation between nodes in a point to point configuration only.
The DFXC-PCA can operate in either a bus or a ring format. The regenerative properties of the DFXC transceiver allow runs of up to 12db of attenuation between each node, with up to 64 nodes per segment.

Figure 1-12: FOXC-PCA and DFXC-PCA Fiber Optic Network Transceivers
Serial Connections with the AFP-300/400 Control Panel
The NION must be connected to the CPU-300/400 board of the AFP-300/400 panel. Serial communication wires must be connected to the TB2 connector (EIA 232). For specific connections, refer to Figure 1-13: AFP300/400 NION/AFP-300/400 Wiring Diagram. The NION should be mounted within 20ft of the panel with all connections run in conduit.

Figure 1-13: AFP-300/400 NION/AFP – 300/400 Panel Wiring Diagram
Powering the NION from the AFP-300/400 Control Panel
The NION should use terminals 3 (+24) and 4 (Common) of the TB2 connector of the MPS-300/400 board to get the auxiliary power from the AFP-300/400 panel. This power source is power limited and non-resettable. For specific connections, refer to Figure 1-13: AFP-300/400 NION – AFP-300/400 Panel Wiring Diagram.
Configuring the AFP-300/400 Control Panel
IMPORTANT: The panel must have a network node address programmed in the panel. This node address is internal to the panel and can be any three digit number. However, it is recommended that the address numberbe the same as the NION node number it communicates with. Refer to the AFP 300/400 manual for more information on programming panel node addresses.
The NION operates at 2400 baud, 8 data bits, no parity, and 1 stop bit.
In order to utilize all features available with the AFP-300/400, the AFP-300/400 Plug-In utility must be configured at the system Workstations. General Plug-In setup information can be found in the Workstation manual.
NOTE: The AFP-300/400 NION is only compatible with AFP-300/400 firmware version 3.6 or later.
Be sure that if you use AFP-300/400 plug-insthat you associate them with AFP-300/400 NIONs, respectively
NOTE: Use only wire for power limited systems. Power limited wire runs use type FPLR, FPLP, FPL or equivalent cabling per NEC 760.
Software Replacement/Upgrade Installation
When replacing or upgrading the software and network PLCCs, execute the following steps:
- Disconnect all power to the AFP-300/400 NION. IMPORTANT: Always exercise ESD precautions : Always exercise ESD precautions: Always exercise ESD precautions when directly handling the AFP when directly handling the AFPwhen directly handling the AFP-300/400 NION or any other hardware. -300/400 NION or any other hardware.-300/400 NION or any other hardware.
- Place the flash modules in their respective sockets according to the figure below. Orient the notch on the chip with the notch in the socket.
- Re-apply power to the NION.

Figure 1-14: NION Software Replacement
EVENT REPORTING FORMAT
All Event reporting from the AFP-300/400 NION appears at the Workstation in the following format:
NNNSSSXXXXXXXX
Where NNN is the network node number for the AFP-300/400 NION.
Where SSS is the node number programmed in the AFP-300/400 panel.
Where XXXXXXXX is an 8 digit device ID.
The 8 digit ID will conform to one of the following formats, depending on the nature of the device.
87654321
- Detectors: LllDddd Lll = loop, Dddd = detector
- Modules: LllMmmm Lll = loop, Mmmm = module
- Annunciators: ANNUNaa aa = annunciator
- Annunciator Points: AaaPppp aa = annunciator, ppp = point
- Bell Circuits: BC cc cc = circuit
- Panel Circuits: PC cc-p cc = circuit, p = point
- Zones: ZONEzzz zzz = zone
- Panel: Panel
- Ground: GROUND
- Battery: BATTERY
- AC Power: ACPOWER
- Audibles: Audible
Example 1:
Echelon Node 001, AFP-300/400 Panel programmed as node 007, Loop 02, Detector 003 reports with the following device ID:
001007 L02D003
Example 2:
Echelon Node 007, AFP-300/400 Panel programmed as node 003, Bell Circuit 01 reports with the following device ID:
007003 BC 01
Example 3:
Echelon Node 003, AFP-300/400 Panel programmed as node 001, Zone 004 reports with the following device ID:
003001 ZONE004
The AFP-300/400 NION Explorer Plug-In
AFP-300/400 NION Explorer Overview
The AFP-300/400 Explorer is a Windows application incorporated into the UniNet facilities monitoring system, allowing the user to control an AFP-300/400 fire panel using the familiar Windows Explorer style interface.
The AFP-400 NION supports event reporting with respect to all panel internal devices, Panel Circuit modules, ACS (Annunciator Control System) devices, and SLC (Signaling Line Circuit) devices that exist on the AFP-300/400 fire panels.
The AFP-300/400 NION provides annunciation of serial communication fault and Echelon network fault by relay closure.
The AFP-300/400 NION will synchronize the time according to the FACP with that of the Event Manager
Registering the AFP-300/400 NION Explorer with UniNet
Before the AFP-300/400 NION Explorer can be used with UniNet, it must first be properly registered. This is accomplished by a simple two-step process
- From the UniNet Workstation (UWS), go to the Workstation Configuration menu, and then select NION Applications. Locate the NION Type drop-down box. Using this drop down box, scroll down and select AFP-400 SPB. Click the Change button on the form. This will cause a dialogue box to be displayed with the names of all available configuration files. Select 400SPB.cfg, then click the Openbutton. Finally, click Done to end the registration process.
- From the UWS, go to the Tools menu and click on Node Control Selection. Take control of the node by clicking on the node number for the AFP-300/400 NION, then click on \ Activate Control For This Node. Click Done to end the process.
Launching the AFP-300/400 NION Explorer
To launch the AFP-300/400 NION Explorer, the user must first be running the UWS and have at least one AFP300/400 NION related device icon created on a graphics screen. For assistance in device creation, see section 3.4.3 in the Workstation Manual. To launch the explorer, simply right click on any AFP-300/400 NION device icon, then select AFP-300/400 NION Explorer from the pop-up menu. The application will load and appear on the screen within a few seconds.

Figure 2-1: AFP-300/400 NION Explorer Workstation Launch Menu
The AFP-300/400 NION supports the commands listed below. Different commands are accessible depending on what device type you right click.
To access commands, right-click on the desired entry in the Explorer list.
- Acknowledge – This will acknowledge the event currently displayed at the Workstation

Figure 2-2: AFP-300/400 Sample Right-Click Menu
NOTE: Performing the Acknowledge command from the plug-in will acknowledge the message at the AFP300/400 panel but not at the Workstation. - Signal Silence – This will silence the AFP-300/400 panel. See section 2.4 for information regarding viewing all silenced panels.
- Signal Resound – Signal resound makes the panel turn on all outputs that are programmed as silence (this presumes a silence already happened).
- Reset – Like Signal Silence, this will silence as well as reset the AFP-300/400 panel
NOTE: Performing the Reset command on a panel that has an active alarm will display an Alarm-Off condition at the workstation. - Manual Evacuate (Confirmed) – This command performs a test on all notification devices being monitored by the AFP-300/400 panel. This command performs the same function as pressing the AlarmActivate button on the panel.
- Enable (accessible for Loop Device, Panel Circuit, or Zone) – This will enable the specified device, allowing the AFP-300/400 NION to monitor the point, and allowing the Workstation to annunciate it.
- Disable (accessible for Loop Device, Panel Circuit, or Zone) – This will disable the specified device.
The device will not be monitored until it is re-enabled. - Activate (accessible for SLC Output, Panel Circuit, or Zone) – This will manually activate the specified device, and the Workstation will report a corresponding event.
- Deactivate (accessible for SLC Output, Panel Circuit, or Zone) – This will manually deactivate the specified device, and the workstation will display a system message reporting the action.
NOTE: The Deactivate command is not intended to silence active alarm outputs. - Clear Panel History – This remotely clears the AFP-300/400’s history. The history is stored inside the AFP300/400 as a sequence of characters and is not accessible to the plug-in.
- Clear Verification Counter – Selecting this option clears the Verification Counter. When the panel detects that a detector has enough smoke to cause it to go into alarm, a check is made to see if verification is turned on for that device. If not, the alarm occurs immediately. If so, a timer is started and the alarm is deferred. When the timer times out, the smoke level of the detector is checked again; if it is still enough to make the detector go into alarm, then the detector goes into alarm. But if the smoke level has subsided below the alarm level, the verification counter is incremented. The whole mechanism is designed to guard against false alarms caused by fast variations in the ambient atmosphere, such as dust. The verification counter basically counts the number of times the detector would have given a false alarm due to ambient conditions.

Figure 2-3: AFP-300/400 NION Explorer Startup Screen
The Option Pulldown Menu
Use Configurable Event Status – When this option is checked, the user can configure the Custom Alarm Device Status property for modules set to be Supervisory (Latching) or Tamper Alert (Tracking); all other properties for all other module types are view only. Status assignments are on a point-by-point basis. User defined status is supported for Off-Normal Alarm conditions only and is limited to those found in the UniNet mststat.mdb.

Figure 2-4: Option Pulldown Menu
- This option (user-configurable event status) will be disabled by default. Unless the NION is specifically programmed through the plug-in to alter the event status for specific devices, it will report all events as they are received from the panel.
- The option to alter event statuses can be enabled/disabled from within the AFP 300/400 Explorer by a user with an administrator (WKS configuration) security profile.
IMPORTANT: Altering event status is not allowed on a UL listed system. If the user chooses to do this, they no longer have a UL-compliant system.
A Note on User Configurable Event Status
When the user changes the default event status for a Supervisory or Tamper device type, it is important to take the following into consideration:
- Some events are double-ended, or paired, in that they have both normal and off-normal conditions. For example, “Input On” and “Input Off” are paired events.
- Some events are single-ended in that they only have one way of reporting. For example, “Card Accepted” is a single-ended event because it has no associated paired event, hence no “off normal” to “normal” condition.
- Some events are defined within the network monitoring system to “return to normal on panel reset.” Fore these events, when a reset occurs at the fire panel, a reset event is received at the Workstation from the NION. When the Workstation sees this reset event, it will automatically clear all events from that NION that are off-normal.
If a non-optimal event status choice is made for a NION via the User Configurable Event Status feature, the user could see abnormal activity on that NION in the form of single ended events that do not have a return to normal, or events that do not clear on a panel reset.
For details on any particular event that might be selected, the user should call technical support for assistance in selecting the proper event status to use with the NION.
Upload Database – Standard Windows File Selection dialog box; this command will upload the database from the NION software application to the AFP-300/400 panel. This database determines which devices the NION will translate.
Download Database – Standard Windows File Selection dialog box; this command will download the database from the panel to the NION software application.
Update All – If a Configurable Event Status has been modified, clicking in this command will update any changes made to configurable devices.
Cancel All – If changes have been made and you change your mind, Cancel All will cancel any changes.
NOTES: A device must be enabled for the properties/values to be displayed. Online sessions are not supported with the AFP-300/400 NION.
Viewing the Silenced Panels List
The UniNet™ 2000 workstation displays a list of all panels that are currently silenced. This list is accessed by clicking the Audibles Silenced heading above the Event Counter in the upper right corner of the workstation main screen.

Figure 2-5: Silenced Panels List
The AFP-300/400 Database Conversion Utility
For UniNet™ versions 2.1 SP2 or later, when upgrading an AFP-300/400 NION from the NION-232B architecture to the AFP-300/400 NION architecture, the 400DBConvert utility must be run. IMPORTANT: The W : The W: The Workstation cannot be running during this conversion process. The conversion utility will alter existing device IDs in the screen database to match the new format used by this NION. Any UniL . Any UniL. Any UniLogic equations from the old system must be recreated after installing the new AFP 300/400 NION -300/400 NION-300/400 NION.
The conversion process has three main steps:
- To run the conversion utility, open up Windows™ Explorer, go to the c:\UniNet\PlugIns directory, then double click on 400DBConvert.exe.

Figure A-1: Accessing the Conversion Utility - When the utility is running, the resulting window will walk you through the conversion process. It is recommended that the you perform the upgrade using the default file path for the screen.mdb file specified in the Database to convert field. Click on Next to continue, or Cancel to abort the upgrade process.

Figure A-2: The Database Upgrade File Path - Check the Backup screen database option if you wish to create a backup copy of the old screen database file. The backup will be saved as “screen.bak” and will be located in the same directory where the utility was run. This directory will normally be c:UniNet\PlugIns\screen.bak. Select the name of the site you wish to convert by choosing from the drop-down list.
In the Select node to convert list, only NION-232 PCB board 300/400 nodes will be displayed as options for upgrading. In addition, any 300/400 nodes that have previously been converted will not be displayed in this list.
Once you have selected the desired 300/400 node, specify the Panel Node Number. This is the network node number programmed in the fire panel.
IMPORTANT: It is imperative that the correct panel node number be : It is imperative that the correct panel node number be: It is imperative that the correct panel node number be entered during the conversion process. F entered during the conversion process. Fentered during the conversion process. Failure to do so will result in ailure to do so will result inailure to do so will result in device ID errors in the converted database. device ID errors in the converted database.device ID errors in the converted database
Once these parameters have been defined, click on Next to continue with the upgrade. The utility will prompt you to verify the information entered. Once this is done, the utility will finish the upgrade process, and a message saying “Upgrade complete” will be displayed.

Figure A-3: Performing the Conversion Upgrade
Symbols
2DRN Board Layout
J2,J3 Pin Connections 10
J6 Pin Connections Headers for SMX Xvr 10
A
- ABS-4D/B Installation 12
- AFP-300/400 Control Panel Configuration 17
- AFP-300/400 NION Explorer Plug-In 21
Control Options 22
Launching 21
Registration 21
C
- CAB-3/CAB-4 Series Installation 11
- Cabinet Mounting 11
- Configuration
AFP-300/400 Control Panel 17 - Configuring the AFP-300/400 Control Panel 17
D
- Database Conversion Utility 25
Running 25 - DFXC 14
- DFXC Transceiver 14
- Diagnostic LEDs 13
E
- EVENT REPORTING FORMAT 19
- Event Status 25
F
- Fault Annunciation 13 fiber-optic cable 14
- FOXC 14
- FOXC Transceiver 14
- FTXC 14
- FTXC Transceiver 14
L
- LEDs 13
N
- Network Transceivers 15
Style 7 15 - NFN Explorer
Launching 21
Overview 21
Registering 21 - NFN NION
Event Reporting Format 19 - NION Power Connections 17
- NION Power Requirements 13
- NION Wiring Diagram 17
- AFP-300/400 NION Architecture Diagram 9
- AFP-300/400 NION Board Layout 10
- AFP-300/400 NION Connectors 11
- AFP-300/400 NION Description 9
- AFP-300/400 NION Diagnostic LEDs 13
- NISCAB-1 Installation 12
P
- PC Board Layout 10
- PC Boartd Connectors 11
- Power Connections 17
- Power Requirements 13
R
- Relay Output 13
- Required Components 11
S
- SMX Network Connection 14
- SMX Transceivers 14
- Software Replacement 18
- Style-7 Network Transceiver 15
T
- Transceivers 14
Network 15
U
- UniNet System Overview 9
W
- Wiring Diagram 17
Limited Warranty
NOTIFIER® warrants its products to be free from defects in materials and workmanship for eighteen (18) months from the date of manufacture, under normal use and service. Products are date stamped at time of manufacture. The sole and exclusive obligation of NOTIFIER® is to repair or replace, at its option, free of charge for parts and labor, any part which is defective in materials or workmanship under normal use and service. For products not under NOTIFIER® manufacturing date-stamp control, the warranty is eighteen (18) months from date of original purchase by NOTIFIER®’s distributor unless the installation instructions or catalog sets forth a shorter period, in which case the shorter period shall apply. This warranty is void if the product is altered, repaired or serviced by anyone other than NOTIFIER® or its authorized distributors or if there is a failure to maintain the products and systems in which they operate in a proper and workable manner. In case of defect, secure a Return Material Authorization form from our customer service department. Return product, transportation prepaid, to NOTIFIER®, 12 Clintonville Rd., Northford, Connecticut 06472-1653.
This writing constitutes the only warranty made by NOTIFIER® with respect to its products. NOTIFIER® does not represent that its products will prevent any loss by fire or otherwise, or that its products will in all cases provide the protection for which they are installed or intended. Buyer acknowledges that NOTIFIER® is not an insurer and assumes no risk for loss or damages or the cost of any inconvenience, transportation, damage, misuse, abuse, accident or similar incident.
NOTIFIER® GIVES NO WARRANTY, EXPRESSED OR IMPLIED, OF MERCHANTABILITY, FITNESS FOR ANY PARTICULAR PURPOSE, OR OTHERWISE WHICH EXTEND BEYOND THE DESCRIPTION ON THE FACE HEREOF. UNDER NO CIRCUMSTANCES SHALL NOTIFIER® BE LIABLE FOR ANY LOSS OF OR DAMAGE TO PROPERTY, DIRECT, INCIDENTAL OR CONSEQUENTIAL, ARISING OUT OF THE USE OF, OR INABILITY TO USE NOTIFIER® PRODUCTS. FURTHERMORE, NOTIFIER® SHALL NOT BE LIABLE FOR ANY PERSONAL INJURY OR DEATH WHICH MAY ARISE IN THE COURSE OF, OR AS A RESULT OF, PERSONAL, COMMERCIAL OR INDUSTRIAL USE OF ITS PRODUCTS.
This warranty replaces all previous warranties and is the only warranty made by
NOTIFIER®. No increase or alteration, written or verbal, of the obligation of this warranty is authorized.
“NOTIFIER” is a registered trademark.


















