Flatline Van Co SP0108B Sprinter Safari Rack Drop Down 170

Product Information
The product is the Sprinter Safari Rack Drop Down 170, manufactured by Flatline Van Co. The package includes various components required for assembly, such as side rail weldment, drop down weldment, open front weldment, rear basket weldment, crossbars, bayonet, safari rail mount, floor sections, mounting brackets, and hardware. The estimated installation time for the product is 4 hours, and additional help is suggested for a few of the installation steps. The product must be properly assembled and secured before attaching to the vehicle to avoid any automobile accidents that could cause serious bodily injury or death.
Product Usage Instructions
Before beginning the installation process, make sure to gather the necessary tools such as a 3/8 wrench, 5/32 Allen key, 7/16 wrench, and 9/16 wrench. Slide half of the rail nuts into the passenger-side factory roof rail and half of them into the driver-side rail. If you’re installing a side ladder, grab the two rail nuts from your ladder hardware pack and put those two on the driver side. Next, assemble the side rails using the 8 side rail weldments, 10 bayonets, and 10 rail mounts as shown in figure 1. Use quick clamps to assist alignment as shown in detail D and tighten the side rail weldments and bayonets, but leave the rail mounts slightly loose to allow adjustment. The carriage bolts that attach the rail mounts can be mounted facing upward or downward for a clean look.
All Flatline Van Co products must be properly assembled and secured before attaching to your vehicle. Improper attachment could result in an automobile accident, and could cause serious bodily injury or death to you or to others involved. You are responsible for assembling and securing Flatline Van Co products to your vehicle, checking the mounting points and attachments prior to use, and regularly inspecting the products for wear and or damage. We always recommend you use a professional to install any aftermarket accessories to your vehicle. If you have no mechanical experience and are not thoroughly familiar with the installation procedures, you must have the product installed by a professional installer or other qualified persons. The responsibility is yours and must be taken seriously for everyone’s safety.
THANK YOU!
ARE YOU EXCITED ABOUT YOUR NEW PRODUCT NAME? HERE ARE A FEW THINGS TO DO BEFORE BEGINNING THE INSTALLATION PROCESS–
- PLEASE INSPECT THE PRODUCT TO ENSURE THERE WAS NO DAMAGE INCURRED DURING SHIPPING.
- IF THERE IS DAMAGE TO REPORT, PLEASE CONTACT OUR CUSTOMER SERVICE DEPARTMENT AS SOON AS POSSIBLE.
- NEXT, USING THE “PACKAGE CONTENTS†PAGE, CHECK INVENTORY AND FAMILIARIZE YOURSELF WITH THE PARTS AND HARDWARE.
- GATHER ALL TOOLS REQUIRED FOR INSTALL.
- 3/8 BOX WRENCH OR SOCKET
- 7/16 BOX WRENCH OR SOCKET
- 9/16 BOX WRENCH OR SOCKET
- 5/32 HEX KEY ALLEN WRENCH
ESTIMATED INSTALL TIME- 4 HRS
ADDITIONAL HELP IS SUGGESTED FOR A FEW OF THE INSTALL STEPS.
TOOLS

PACKAGE CONTENTS

HARDWARE

LET’S GET STARTED
- SLIDE HALF OF THE RAIL NUTS INTO THE PASSENGER SIDE FACTORY ROOF RAIL, AND HALF OF THEM INTO THE DRIVER SIDE RAIL.
NOTE- IF YOU’RE INSTALLING A SIDE LADDER, GRAB THE TWO RAIL NUTS FROM YOUR LADDER HARDWARE PACK, AND PUT THOSE TWO IN ON THE DRIVER SIDE. THESE CAN BE ADDED LATER, IT JUST SAVES TIME TO DO IT NOW. - NEXT, BEGIN ASSEMBLING YOUR SIDE RAILS. GRAB YOUR 8 SIDE RAIL WELDMENTS, 10 BAYONETS, AND 10 RAIL MOUNTS. BEGIN ASSEMBLING THEM AS SHOWN IN FIGURE 1. WE FIND THAT A GOOD SIZED TABLE OR WORKBENCH MAKES THIS A BIT EASIER. TO ASSIST ALIGNMENT, IT’S SUGGESTED TO USE SOME QUICK CLAMPS AS SHOWN IN DETAIL D (SEE NEXT PAGE FOR DETAIL). TIGHTEN THE SIDE RAIL WELDMENTS AND BAYONETS, BUT LEAVE THE RAIL MOUNTS SLIGHTLY LOOSE TO ALLOW ADJUSTMENT.
NOTE- THE CARRIAGE BOLTS THAT ATTACH THE RAIL MOUNTS CAN BE MOUNTED FACING UPWARD OR DOWNWARD FOR A CLEAN LOOK.

- 1/4-20 X 0.75 FLANGED BUTTON HEAD HEX DRIVE SCREW
- 1/4-20 X 0.75 FLANGED HEX
- HEAD SCREW
- 1/4 SCREW FLAT WASHER
- 1/4-20 NYLON INSERT LOCKNUT
- 0.375-16 X 1 SQUARE NECK CARRIAGE BOLT
- 3/8 SCREW FLAT WASHER
- 3/8-16 NYLON INSERT LOCKNUT
- AT THIS POINT, YOU SHOULD HAVE 2 COMPLETE SIDE RAIL ASSEMBLIES AS SHOWN BELOW IN FIGURE 2. WITH THE HELP OF A SECOND PERSON, TAKE THE SIDE RAIL ASSEMBLIES UP TO THE TOP OF THE VAN. LINE UP THE FRONT RAIL MOUNT WITH THE VERY FRONT OF YOUR ROOF RAIL.
NOTE- LAY A BLANKET OR CARDBOARD DOWN ON THE ROOF OF THE VAN BEFORE BRINGING THE SIDE RAILS UP IF YOU ARE WORRIED ABOUT SCRATCHING THE PAINT. - NOW LEAN THE RAIL ASSEMBLY UP AND ONTO THE ROOF RAIL AND THREAD IN THE BOLTS TO THE RAIL NUTS. LEAVE THESE BOLTS LOOSE; WE’LL COME BACK AND TIGHTEN THEM AT A LATER STEP.

- WE RECOMMEND HAVING A SECOND SET OF HANDS TO HELP WITH THIS STEP AS WELL. START WITH THE REAR BASKET AND SLIDE IT ONTO THE EXPOSED BAYONETS ON THE REAR OF THE RACK. ATTACH USING THE SAME HARDWARE USED TO ASSEMBLE THE SIDE RAILS, AND USE THE SAME CLAMPING METHOD AS BEFORE TO ENSURE GOOD ALIGNMENT. REPEAT THE SAME STEPS FOR THE OPEN FRONT.

NOTE- REMEMBER TO LEAVE THE RAIL MOUNT FEET LOOSENED. WE’LL TIGHTEN THOSE DOWN IN A LATER STEP. - NEXT WE’LL GET THE DROP DOWN WELDMENT MOUNTED UP. THE DROP DOWN MOUNTS TO THE UNDERSIDE TRAY OF THE OPEN FRONT WELDMENT. YOU WILL NEED TO MANEUVER IT AROUND YOUR ANTENNA TO GET IT IN PLACE, SO HAVING A SECOND PERSON HELPS IMMENSELY FOR THIS STEP. DETAIL E & F DISPLAY HOW IT FASTENS TO THE OPEN FRONT WELDMENT.

NOTE- WE RECOMMEND INSTALLING YOUR LIGHTING SETUP TO THE DROP DOWN WELDMENT PRIOR TO INSTALLING IT ON THE RACK. THIS MAKES ADJUSTMENTS AND PLACEMENT A BIT EASIER. - ONCE YOU’VE GOT BOTH ENDS TIGHTENED; IT’S TIME TO START LAYING DOWN YOUR CROSSBARS. WE’VE PROVIDED DIMENSIONS BELOW IN FIGURE 4 TO MAKE IT EASY. MAKE SURE YOU VERIFY THE DIMENSION ON BOTH ENDS OF THE CROSSBAR RELATIVE TO THE REFERENCE POINT TO ENSURE THEY ARE SQUARE. THIS WILL MAKE IT MUCH EASIER WHEN MOUNTING YOUR DECKING PANELS LATER. THE DIMENSIONS ARE PULLED FROM THE FLANGE ON THE TRAY OF THE REAR BASKET TO THE FRONT FACE OF THE CROSSBAR (FURTHEST SIDE) WAIT TO TIGHTEN THE CROSSBARS UNTIL YOU HAVE PUT ALL OF THEM IN.
NOTE- REMEMBER TO LEAVE THE RAIL MOUNT FEET LOOSENED. WE’LL TIGHTEN THOSE DOWN IN A LATER STEP.
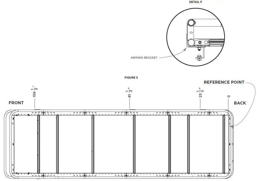
AWNING MOUNTS
- THIS STEP IS ONLY NECESSARY IF YOU ARE MOUNTING A FIAMMA F45 (OR SIMILAR) AWNING TO YOUR SAFARI RACK. IF YOU ARE NOT MOUNTING AN AWNING, SKIP TO STEP 8.

YOU WILL MOUNT THE 3 AWNING BRACKETS TO THE UNDERSIDE OF THE PASSENGER SIDE OF THE RACK AS SHOWN IN DETAIL F TO THE RIGHT. THE LOCATIONS ARE SHOWN BELOW IN FIGURE 5 AND USE THE SAME REFERENCE POINT AS THE CROSSBARS. THESE BRACKETS SHOULD BE TIGHTENED ONCE ATTACHED TO THE RACK USING THE SAME HARDWARE SET AS THE RAIL MOUNTS.
NOTE- THE DIMENSIONS GIVEN ARE SUGGESTED BASED ON OPTIMAL SUPPORT LOCATIONS. THESE MAY DIFFER IF USING A SMALLER OR LARGER AWNING THAN TYPICAL, AND ADDITIONAL MOUNT SLOTS ARE AVAILABLE TO SUIT YOUR NEEDS.
THE AWNING BRACKETS HAVE SLOTS FOR MINOR ADJUSTMENT. - BEFORE MOVING ONTO THE FLOOR SECTIONS; NOW IS THE TIME TO CENTER THE RACK ON YOUR VAN AND TIGHTEN THE RAIL MOUNTS, BOTH TO THE VAN, AND TO THE RACK. ONCE YOU FINISH THAT; WE CAN PROCEED TO ATTACHING THE FLOOR SECTIONS.


- START WITH THE REAR FLOOR SECTION FIRST AND WORK YOUR WAY UP. INSERT THE HARDWARE INTO THE SLOT ON THE CROSSBAR AS SHOWN IN DETAIL G TO THE RIGHT, THEN ALIGN THEM USING YOUR ALLEN KEY AS SHOWN IN DETAIL H. DETAIL J SHOWS A SECTION VIEW OF HOW THE FASTENERS ATTACH THE END FLOOR SECTIONS TO THE TRAY OF THE BASKET WELDMENTS WHERE NO CROSSBARS ARE PRESENT TO ATTACH TO. FIGURE 6 ON THE NEXT PAGE SHOWS PANEL LOCATIONS.
ALIGNMENT IS KEY HERE TO ACHIEVE A HIGH QUALITY END RESULT, SO USE YOUR EYES TO ALIGN THE PANELS STRAIGHT WITH THE CROSSBARS. THE MOUNTING SLOTS HAVE A WIDE RANGE TO ACCOUNT FOR ANY MISALIGNMENT THAT MAY HAVE OCCURRED DURING ASSEMBLY OF THE RACK.
NOTE- WE RECOMMEND APPLYING BLUE LOCTITE (OR SIMILAR THREADLOCKER) TO THE SCREWS THAT HOLD THE FLOOR SECTIONS DOWN TO THE CROSSBARS TO ENSURE THEY DO NOT COME LOOSE WHILE DRIVING. THIS IS NOT NECESSARY ON FRONT AND REAR BOLTS WITH NYLOCK NUTS. - ONCE YOU’VE GOT ALL OF THE FLOOR SECTIONS BOLTED DOWN, DO A ONCE OVER OF ALL FASTENERS ON THE RACK TO ENSURE THEY ARE TIGHT AND SECURE. INSTALL IS NOW COMPLETE, AND YOU’RE READY FOR ADVENTURE!

GET OUT AND EXPLORE
LEAVE US A REVIEW
Happy with your new FVC product? We would love to hear (and see) from you! Head to the product page and click “Leave Review.” Add a short review and upload a few photos to be showcased on the product page.
SHARE YOUR PHOTOS WITH US
We love seeing how our customers use their FVC products and following along with your adventures. Tag us in your photos with @flatlinevanco or send them to us via email. We love posting customer pictures in our feed!
CUSTOMER SUPPORT
If you are having any issues with your product, please reach out, and we will make it right. FVC is a company of van and outdoor enthusiasts that design and use our own products, so we want you to be as stoked on your new parts as we are!
@flatlinevanco
facebook.com/flatlinevanco
youtube.com/c/flatlinevanco
support@flatlinevanco.com
FLATLINE VAN CO • [email protected] • 888-667-5576
















