Stainless Steel Pellet Grill

C1P28
INSTALL GUIDE
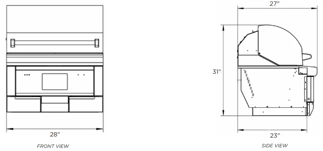
DIMENSIONAL RENDERINGS


| Overall Product Dimensions | |||
| Model No. | Height | Width | Depth |
| C1P28 | 31″ | 28″ | 27″ |
| CJAKTC1P28 | 17 3/4″ | 30″ | 24 3/4″ |
| Cutout Dimensions for Island | |||
| Model No. | Height | Width | Depth |
| C1P28 | 16 1/2″ | 26 1/4″ | 23″ |
| CJAKTC1P28 | 17 1/4″ | 27 1/4″ | 22 1/2″ |
When using a Coyote insulated jacket, you will want to build your island to the jackets Cutout and Overall Dimensions listed above (detailed on 2nd page). Once the jacket is installed, the grill will rest on/inside the insulated jacket
| 1P28 | BTU/HR | Amps | Electrical Requirements |
| 1P28 | 8,000 | 5 | 120V 60Hz Grounded Plug |
Important Note to Installer: This file is not intended to replace your Owners’ Manual which contains specific safety requirements and consumer guidelines. Please refer to your Owners’ Manual prior to installing or operating your built-in grill.
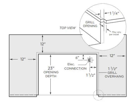
NON-COMBUSTIBLE CONSTRUCTION
Insulated Jacket NOT Required

- Combustible material can not be within 12″ of the grills frame
- This applies to all directions – horizontal & vertical
- Shaded area above on “TOP VIEW” illustrates the 12″ minimum requirement (not to scale for rendering purposes)
- The grill is designed to hang from the counter top with no support underneath
- Minimum rear clearance for the hood to open is 2 1/4″
- If you have a wall/partition behind the grill, the minimum rear clearance to that wall should be at least 7″ to allow for ventilation of the exhaust
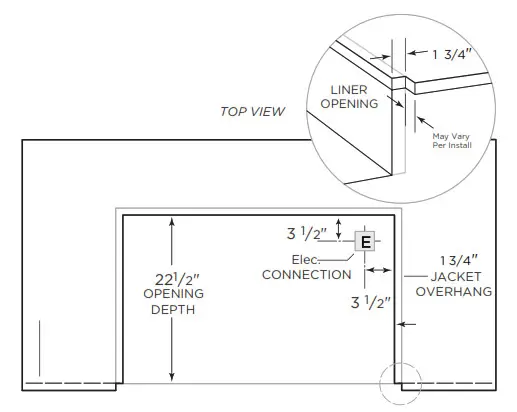
COMBUSTIBLE CONSTRUCTION
Insulated Jacket Required – Model # CJAKTC1P28

If using combustible material within 12″of the grill frame, you MUST use the corresponding Coyote Insulated Jacket- Using a insulated jacket, does not waive any other standard installation procedure (ventilation, connections, etc)
- The jacket is designed to hang from the counter top with no support underneath
- Minimum clearance for hood to open is 2″
- If you have a wall/partition behind the grill, the minimum rear clearance to that wall should be at least 7″ to allow for ventilation of the exhaust
Ventilation Requirements:
- Regardless if you are using a combustible or non-combustible building material, you must include at least two vents but optimally 4 vents within the island.
- These vents must be at least 20 sq. in. each and allow fresh air to move from the grill cabinet to the exterior environment.
- Do not locate the two vents on the same wall of the island. Cross ventilation is key to allow any excess heat or trapped gas to dissipate.
Important Note to Installer: This file is not intended to replace your Owners’ Manual which contains specific safety requirements and consumer guidelines. Please refer to your Owners’ Manual prior to installing or operating your built-in grill.
Outdoor Living
www.coyoteoutdoor.com
If using combustible material within 12″of the grill frame, you MUST use the corresponding Coyote Insulated Jacket

















