Tamarack Solar
Ground Mount Kit
Installation Manual

Customer Support
Tamarack Solar makes every effort to ensure your mounting kit is easy to install. If you need assistance at any point in your installation or have suggestions on how we can improve your experience, call customer support at 1-800-819-7236 ext 556 or email us at [email protected]
Technical Support: 707-234-8107 or [email protected]
Tamarack Ground Mount System Features
- Designed for mounting photovoltaic (PV) arrays on the ground.
- Top clamps and rail attachments require the use of a single standard 1/2-inch socket
- 5050 Clamp for both mid-clamp and end-clamp use simplifies ordering and stocking parts.
- Module clamps are spring-loaded to ease module placement.
- Built-in wire management for module and microinverter cables
Tamarack Product Summary
The Tamarack Solar Ground Mount system is a visually appealing photovoltaic (PV) module installation system that significantly lowers PV module installation costs by allowing the installation professional to stock fewer parts and to complete the installation in less time.
Certified to meet local and International Building Codes and ASCE/SEI-7 when installed in accordance with this manual.
ETL Listed to UL 2307 for bonding and grounding when in¬stalled in accordance with this manual.
Rails, clamps, splices, and mounting devices are UL2703 Listed for mounting flat-plate Photovoltaic Modules and Panels
- Conforms to STD UL 2703 (2015) Standard for Safety First Edition: Mounting Systems, Mounting Devices,
Clamping/Retention Devices, and Ground Lugs for Use with Flat-Plate Photovoltaic Modules and Panels. - Certified to CSA STD LTR AE-001-2012 Photovoltaic Module Racking Systems.
- Max Overcurrent Protective Device (OCPD) Rating: 20A
- Max Module Size: 25.6 ft²
- System-Level Allowable Design Load Rating: meets minimum requirements of the standard (10 PSF downward, 5 PSF upward, 5 PSF lateral).
- Actual system structural capacity is defined by PE stamped certification letters.
Tamarack Solar Ground Mounts use Hollaender® structural aluminum pipe fittings that combined with pipe make stable, secure, corrosion-free mounting rack systems for both ground and roof-mounted solar arrays. Hollaender’s Speed-Rail® fittings are ideal for this application because the aluminum-magnesium 535 alloys used to manufacture them is the most corrosion-resistant aluminum alloy available. It can be used with steel without any concern for galvanic corrosion. Hollaender Speed-Rail® fittings are now approved as UL 2703 Recognized Components under ETL Mark 5006568. The system uses set-screws that penetrate the surface of the pipe to ensure that fittings are electrically bonded to a pipe and bracing, thereby eliminating the need for added bonding components such as jumpers to provide a grounding path.
This manual describes proper installation procedures and provides the necessary standards required for product reliability. Warranty details are available on our website. www.tamaracksolar.com
All installers must thoroughly read this manual and have a clear understanding of the installation procedures prior to installation. Failure to follow these guidelines may result in property damage, bodily injury, or even death.
Installer Responsibilities
- Follow all applicable local or national building and fire codes, including any that may supersede this manual.
- Electrical installation should be conducted by a licensed and bonded electrician or solar contractor.
- Module maintenance or removal must not break the bonding path of the system.
- Ensure all products used are appropriate for the installation and array under the site’s wind and snow loading conditions.
- Ensure information is used for the system design is accurate. Any inaccurate information used for the system the design will cause errors and are the installer’s responsibility to correct.
- We recommend consulting with your local building department about local regulations and building requirements, including soil conditions, terrain, and wind and snow load requirements. Local conditions and
- Use only Tamarack Solar Products parts or parts approved by Tamarack; substituting parts may void any applicable warranty.
- Ensure bare copper grounding conductors do not contact aluminum and zinc-plated steel components in order to prevent the risk of galvanic corrosion.
- The Installation should be inspected periodically, and any loose components or fasteners should be retightened. Any corroded parts found should be examined carefully to assess whether the corrosion compromises the physical integrity or performance of the system, and if so, the corrosion should be remediated, or the affected components replaced.
- Provide an appropriate method of direct-to-earth grounding according to the latest edition of the National Electrical Code, including NEC 250: Grounding and Bonding, NEC 690: Solar Photovoltaic Systems, and CSA C22.1, Safety Standard for Electrical Installations, Canadian Electrical Code, Part 1
- Disconnect AC power before servicing or removing microinverters and power optimizers.
- Review photovoltaic module manufacturer’s documentation to ensure compatibility and compliance with warranty terms and conditions.
- Maximum Series Fuse Rating for the photovoltaic array is 20 Amps.
For Technical Support, call 707-234-8107 or 800-819-7236 ext.556, email us at [email protected]
Ground Mount Kit Description
- Kits contain all parts required except 2-inch schedule 40 pipe and concrete
- Choose one starter kit for first column of 3 or 4 modules
- Expand with up to 7 add-on column kits
- Mount up to 64 modules on a single structure
- Rated for up to 170 MPH wind speed and 50 psf of snow load
- Some situations require cross bracing (see table )
Tamarack Ground Mount System Components


Tools Required
- Post Hole Digger or Power Auger
- Torque Wrench (0-240 in-lbs recommended)
- Socket Driver with a 1/2-inch
- 3/16-inch Allen Head Driver Socket
- String Line and Level, or Transit
- Plumb Bob
- Tape Measure
- Chop Saw with metal-cutting blade (only required if cutting aluminum rails)
- Pipe Cutter for cutting 2” steel pipe (reciprocating saw or portable bandsaw could be used)
Torque Specifications
Rail Adapter on Pipe Mount Clamp . . . . . . . . . . . . . . . . . . . . . . . . . . . . . . . . . . . . 144 in-lbs (12 ft-lbs)
U-Bolt Nuts on Pipe Mount Clamp . . . . . . . . . . . . . . . . . . . . . . . . . . . . . . . . . . . . . . . 72 in-lbs (6 ft-lbs)
Socket Tees, Flex Socket Tees . . . . . . . . . . .. . . . . . . . . . . . . . . . . . . . . . . . . . . . . . . .204 in-lbs (17 ft-lbs)
Rail Splice Lock bolts . . . . . . . . . . . . . . . . . . . . . . . . . . . . . . . . . . . . . . . . . . . . . . . . . 144 in-lbs (12 ft-lbs)
MLPE Rail Attachment . . . . . . . . . . . . . . . . . . . . . . . . . . . . . . . . . . . . . . . . . . . . . . . . 144 in-lbs (12 ft-lbs)
Ground Lug . . . . . . . . . . . . . . . . . . . . . . . . . . . . . . . . . . . . . . . . . . . . . . . . . . . . . . . . . .144 in-lbs (12 ft-lbs)
5050 Clamp as Mid-Clamp . . . . . . . . . . . . . . . . . . . . . . . . . . . . . . . . . . . . . . . . . . . . . 144 in-lbs (12 ft-lbs)
5050 Clamp as End Clamp . . . . . . . . . . . . . . . . . . . . . . . . . . . . . . . . . . . . . . . . . . 72-108 in-lbs (6-9 ft-lbs)
Ground Lug . . . . . . . . . . . . . . . . . . . . . . . . . . . . . . . . . . . . . . . . . . . . . . . . . . . . . . 144 in-lbs (12 ft-lbs)
Ilsco SGB-4 Module Frame Ground lug . . . . . . . . . . . . . . . . . . . . . . . . . . . . . . . . . . . 144 in-lbs (12 ft-lbs)
System Design
- Make a drawing showing the dimensions of the mounting system and the location of the mounting peers.
- Read this manual before beginning installation.
- Purchase 2-inch schedule 40 pipes for vertical posts, horizontal supports, and cross-bracing if necessary for your snow load and wind load requirement.
- Tamarack design information assumes the array is to be on the ground with no more than 15 degrees of slope.
- Tamarack Ground Mount Kits are for use in sites with Class 3 or Class 4 soil type and terrain exposure category B.
- If terrain and/or soils conditions are different, consult a structural engineer.
Class 3 Soil: Medium dense coarse sands, sandy gravels, very stiff silts, and clays.
Class 4 Soil: Loose to medium dense sands, firm to stiff clays and silts, alluvial fill. - Exposure Category B is an urban, suburban or wooded area. Obstructions the size of single-family dwellings must surround the structure at within 2,630 ft or 10 times the mounting structure height in all directions, whichever is greater.
Preparations for Installation
Plan the PV array layout and confirm that plans comply with local AHJ requirements and applicable building codes. Leave enough room to work safely around the array during the installation process. Some building and fire codes require minimum clearances around PV module installations.
The length of the rails for each column in the installation will be equal to the total width of all of the modules in each column, plus 1/2-inch for every 5050 clamps used between modules, plus 2-inches total for end clamping (1” on each rail end).
Purchase 2-inch (NPS) ASTM A53 Grade B Schedule-40 Steel Pipe (2.375-inch O.D.), galvanized to a min of ASTM A653 G90 or ASTM A123 G35, or 2.375-inch (O.D.) Allied Mechanical Tubing with Gatorshield or FlowCoat Zinc Coating (ASTM A1057)
Use the table below to estimate the length of the vertical pipe required. The pipe lengths shown are the above-ground portion. Determine the depth of the foundation holes (see pages 10 – 11) and add at least enough pipe to reach down 2/3 of each hole. If the ground is sloped to the south, subtract the ground height difference of the rear pier location from the front Example: With a rear post that is 80-inches above ground, and with a required hole depth of 48-inches, add 32-inches (48 x 0.66) to the 80-inches for a total of 112-inches.
If the system to be installed requires to cross bracing, one pipe will be required for each front to back brace. Pipe length will be approximately 75 inches for systems with 3 modules per column and 95 inches for systems with 4 modules per column.
| For Vertical pipe, length add foundation depth x .66 | ||||
| 3 Modules per Column | 4 Modules per Column | |||
| Slope (deg) | Front Vertical Pipe (inches) Above Ground | Rear Vertical Pipe (inches) Above Ground | Front Vertical Pipe (inches) Above Ground | Rear Vertical Pipe (inches) Above Ground |
| 0 | 30 | 30 | 30 | 30 |
| 5 | 30 | 36 | 30 | 38 |
| 10 | 30 | 43 | 30 | 46 |
| 15 | 30 | 49 | 30 | 54 |
| 20 | 30 | 56 | 30 | 63 |
| 25 | 30 | 64 | 30 | 72 |
| 30 | 30 | 72 | 30 | 82 |
| 35 | 30 | 80 | 30 | 93 |
| 40 | 30 | 90 | 30 | 106 |
| 45 | 30 | 102 | 30 | 120 |
Determine Post Spacing and Need For Cross Bracing
The Tamarack Ground Mount Kits allow for two potential design configurations, either three or four modules per column in landscape orientation (long side of the modules perpendicular to the ground).
North to South post spacing is always constant and depends on the number of modules in each column.
Mounts with 3 modules per column have 72-inch North/South spacing.
Mounts with 4 modules per column have 90-inch North/South spacing
Some configurations require cross-bracing between each North and South vertical post. The bracing requirement is based on maximum snow load, maximum wind load, and array tilt angle. See the table at the right to determine if cross bracing is required. Dark gray cells require cross bracing. Light gray cells do not require cross bracing. Cells with [60] can only be used with modules no longer than 67-inches. Black cells will require more vertical posts. This configuration is not allowed using a standard kit. Contact technical support.
- East to West post spacing will be: 69-inches when using 72 cell modules with a length of 80-inches or less on the long side
- 62-inches when using 60 cell modules with a length of 66-inches or less on the long side.
The minimum length of the horizontal pipe in inches must be equal to the ((L + 0.5) x N) – (L x 0.4) Where L = Module Length in inches and N = Number of Columns in the array is installed.
The horizontal pipe will cantilever past the end posts and should extend past the end posts an equal distance on each end.
Foundation Hole and Post Layout
Using batter boards and string lines, layout your footing locations for both the front and back east-west rows of piers. This will consist of two string lines, one for the front east-west row of piers and one for the back row of piers. Be sure that the two strings are parallel to each other, and with the proper spacing between the two east-west rows (this spacing depends on whether you use columns of 3 or 4 modules – see page 8). Once you have the two east-west string lines properly in place, place the first north-south string across one end, at the location where you want the first piers to be located. The first two piers (front and back) will be located directly below where the north-south string and two east-west strings cross.

Continue to add batter boards and north-south strings, spaced apart according to the proper EastWest pier spacing. If you only need four piers (two front and two rear), you will only need two north-south strings. If you need six piers total, you will need three north-south strings. Eight piers would require four strings, etc.
Make sure that the strings are in the proper locations and adjust as needed. Make sure that the whole layout is square and aligned evenly.
Directly below where each north-south string crosses one of the east-west strings will be the location of the center of a foundation hole and pier. Use a plumb bob to locate those points on the ground and drive a stake at each location.
These are the centers of where the holes will be excavated. Once the stakes are driven, the strings may be temporarily removed.
Excavating Holes for Concrete Piers
Using a 12-inch power auger, excavate footings at marked locations to the depth required. See Charts on pages 10 and 11.
Re-install the layout strings to make sure that the holes are excavated at the proper locations and adjust the hole centers if necessary. Clean out as much loose soil as you can from the augured holes.
Determine Concrete Piers Depth – 3 Modules per Column
Hole depth for 12-inch diameter foundation piers for structures with 3 modules per column can be found in the table below.
Larger diameter foundations with less depth may also be used. Please contact technical support for depths of holes that are 16, 20 or 24 inches in diameter. They will require more concrete but may be helpful if there is a problem reaching the depths listed in the table below.
Minimum Foundation Depth (inches) – 3 Modules per Column
| Tamarack Ground Mount Kit Foundation Info | Minimum Foundation Depth (inches) – 3 Modules per Column | ||||||||||||
| Wind Speed Rating | |||||||||||||
| Soil Type | Braced/ Unbraced | Slope (deg) | 90 | 95 | 100 | 105 | 110 | 120 | 130 | 140 | 150 | 160 | 170 |
| Soil Class 3 | Unbraced | 0 | 36 | 36 | 36 | 36 | 36 | 36 | 36 | 36 | 36 | 36 | 36 |
| 5 | 36 | 36 | 36 | 36 | 36 | 36 | 36 | 36 | 36 | 36 | 36 | ||
| 10 | 36 | 36 | 36 | 36 | 36 | 36 | 36 | 36 | 36 | 36 | 36 | ||
| 15 | 36 | 36 | 36 | 42 | 42 | 42 | 42 | 42 | 48 | 48 | 48 | ||
| 20 | 42 | 42 | 42 | 48 | 48 | 48 | 48 | 48 | 48 | 48 | 48 | ||
| 25 | 48 | 48 | 48 | 48 | 48 | 48 | 48 | 48 | 48 | 48 | 48 | ||
| 30 | 48 | 48 | 48 | 48 | 48 | 48 | 48 | 48 | 48 | 48 | 48 | ||
| 35 | 48 | 48 | 48 | 48 | 48 | 48 | 48 | 48 | 48 | 48 | 48 | ||
| 40 | 48 | 48 | 48 | 48 | 48 | 48 | 48 | 48 | 48 | 48 | |||
| 45 | 48 | 48 | 48 | 48 | 48 | 48 | 48 | 48 | |||||
| Soil Class 3 | paoeis | 0 | 36 | 36 | 36 | 36 | 36 | 36 | 36 | 36 | 36 | 36 | 36 |
| 5 | 36 | 36 | 36 | 36 | 36 | 36 | 36 | 36 | 36 | 36 | 36 | ||
| 10 | 36 | 36 | 36 | 36 | 36 | 36 | 36 | 36 | 36 | 36 | 36 | ||
| 15 | 36 | 36 | 36 | 36 | 36 | 36 | 36 | 42 | 42 | 42 | 42 | ||
| 20 | 36 | 36 | 36 | 42 | 42 | 42 | 42 | 48 | 48 | 48 | 48 | ||
| 25 | 42 | 42 | 42 | 42 | 48 | 48 | 48 | 54 | 54 | 54 | 60 | ||
| 30 | 48 | 48 | 48 | 48 | 54 | 54 | 54 | 60 | 60 | 60 | 60 | ||
| 35 | 48 | 54 | 54 | 54 | 54 | 60 | 60 | 60 | 66 | 66 | 66 | ||
| 40 | 54 | 54 | 54 | 60 | 60 | 60 | 66 | 66 | 66 | 72 | 72 | ||
| 45 | 60 | 60 | 60 | 60 | 66 | 66 | 66 | 72 | 72 | 78 | 78 | ||
| Soil Class 4 | paoeiciun | 0 | 36 | 36 | 36 | 36 | 36 | 36 | 36 | 36 | 36 | 36 | 36 |
| 5 | 36 | 36 | 36 | 36 | 36 | 36 | 36 | 36 | 36 | 36 | 36 | ||
| 10 | 36 | 36 | 36 | 36 | 36 | 36 | 36 | 42 | 42 | 42 | 42 | ||
| 15 | 42 | 42 | 42 | 42 | 42 | 48 | 48 | 48 | 54 | 54 | 54 | ||
| 20 | 42 | 42 | 42 | 48 | 48 | 48 | 48 | 48 | 48 | 48 | 48 | ||
| 25 | 48 | 48 | 48 | 48 | 48 | 48 | 48 | 48 | 48 | 48 | 48 | ||
| 30 | 48 | 48 | 48 | 48 | 48 | 48 | 48 | 48 | 48 | 48 | 54 | ||
| 35 | 48 | 48 | 48 | 48 | 48 | 48 | 48 | 48 | 48 | 54 | 54 | ||
| 40 | 54 | 54 | 54 | 54 | 54 | 54 | 54 | 54 | 54 | 54 | |||
| 45 | 54 | 54 | 54 | 54 | 54 | 54 | 54 | 54 | |||||
| ISoil Class 4 | Braced | 0 | 36 | 36 | 36 | 36 | 36 | 36 | 36 | 36 | 36 | 36 | 36 |
| 5 | 36 | 36 | 36 | 36 | 36 | 36 | 36 | 36 | 36 | 36 | 36 | ||
| 10 | 36 | 36 | 36 | 36 | 36 | 36 | 36 | 36 | 42 | 42 | 48 | ||
| 15 | 36 | 36 | 36 | 36 | 42 | 42 | 42 | 42 | 48 | 48 | 54 | ||
| 20 | 42 | 42 | 42 | 42 | 48 | 48 | 48 | 48 | 54 | 54 | 60 | ||
| 25 | 48 | 48 | 48 | 54 | 54 | 54 | 60 | 60 | 60 | 66 | 66 | ||
| 30 | 54 | 54 | 54 | 60 | 60 | 60 | 66 | 66 | 66 | 72 | 72 | ||
| 35 | 54 | 60 | 60 | 60 | 60 | 66 | 66 | 72 | 72 | 78 | 78 | ||
| 40 | 60 | 60 | 66 | 66 | 66 | 72 | 72 | 78 | 78 | 78 | 84 | ||
| 45 | _ 66 | 66 | 72 | 72 | 78 | 78 | 78 | 84 | 84 | 90 | 90 | ||
Determine Concrete Piers Depth – 4 Modules per Column
Hole depth for 12-inch diameter foundation piers for structures with 4 modules per column can be found in the table below.
Larger diameter foundations with less depth may also be used. Please contact technical support for depths of holes that are 16, 20 or 24 inches in diameter. They will require more concrete but may be helpful if there is a problem reaching the depths listed in the table below.
Minimum Foundation Depth (inches) – 4 Modules per Column
| Minimum Foundation Depth (inches) – 4 Modules per Column | |||||||||||||
| Wind Speed Rating | |||||||||||||
| Soil Type | Braced/ Unbraced | Slope (deg) | 95 | 100 | 105 | 110 | 120 | 130 | 140 | 150 | 160 | 170 | |
| Soil Class 3 | Poliquin | 0 | 36 | 36 | 36 | 36 | 36 | 36 | 36 | 36 | 36 | 36 | 36 |
| 5 | 36 | 36 | 36 | 36 | 36 | 36 | 36 | 36 | 36 | 36 | 36 | ||
| 10 | 36 | 36 | 36 | 36 | 36 | 36 | 36 | 36 | 36 | 42 | 42 | ||
| 15 | 36 | 42 | 42 | 42 | 42 | 42 | 48 | 48 | 48 | 48 | 48 | ||
| 20 | 42 | 48 | 42 | 48 | 48 | 48 | 48 | 48 | 48 | 48 | 48 | ||
| 25 | 48 | 48 | 48 | 48 | 48 | 48 | 48 | 48 | 48 | 48 | 48 | ||
| 30 | 48 | 48 | 48 | 48 | 48 | 48 | 48 | 48 | 48 | 48 | |||
| 35 | 48 | 48 | 48 | 48 | 48 | 48 | 48 | 48 | 48 | ||||
| 40 | 48 | 48 | 48 | 48 | 48 | 48 | 48 | ||||||
| 45 | 48 | 48 | 48 | 48 | 48 | 48 | |||||||
| Soil Class 3 | paoei9 | 0 | 36 | 36 | 36 | 36 | 36 | 36 | 36 | 36 | 36 | 36 | 36 |
| 5 | 36 | 36 | 36 | 36 | 36 | 36 | 36 | 36 | 36 | 36 | 36 | ||
| 10 | 36 | 36 | 36 | 36 | 36 | 36 | 36 | 36 | 36 | 36 | 42 | ||
| 15 | 36 | 36 | 36 | 36 | 36 | 36 | 42 | 42 | 42 | 42 | 48 | ||
| 20 | 36 | 42 | 42 | 42 | 42 | 48 | 48 | 48 | 48 | 54 | 54 | ||
| 25 | 48 | 42 | 48 | 48 | 48 | 54 | 54 | 54 | 54 | 60 | 60 | ||
| 30 | 48 | 48 | 54 | 54 | 54 | 54 | 60 | 60 | 66 | 66 | 66 | ||
| 35 | 48 | 54 | 54 | 54 | 60 | 60 | 66 | 66 | 66 | 72 | 72 | ||
| 40 | 54 | 60 | 60 | 60 | 60 | 66 | 66 | 72 | 72 | 78 | 78 | ||
| 45 | 60 | 60 | 60 | 66 | 66 | 72 | 72 | 78 | 78 | 84 | 84 | ||
| Soil Class 4 | podeigun | 0 | 36 | 36 | 36 | 36 | 36 | 36 | 36 | 36 | 36 | 36 | 42 |
| 5 | 36 | 36 | 36 | 36 | 36 | 36 | 36 | 36 | 36 | 36 | 42 | ||
| 10 | 36 | 36 | 36 | 36 | 36 | 42 | 42 | 42 | 42 | 48 | 48 | ||
| 15 | 42 | 42 | 48 | 48 | 48 | 48 | 48 | 54 | 54 | 54 | 54 | ||
| 20 | 48 | 54 | 54 | 54 | 54 | 54 | 54 | 54 | 54 | 54 | 54 | ||
| 25 | 54 | 54 | 54 | 54 | 54 | 54 | 54 | 54 | 54 | 54 | 54 | ||
| 30 | 54 | 54 | 54 | 54 | 54 | 54 | 54 | 54 | 54 | 54 | |||
| 35 | 54 | 54 | 54 | 54 | 54 | 54 | 54 | 54 | 54 | ||||
| 40 | 54 | 54 | 54 | 54 | 54 | 54 | 54 | ||||||
| 45 | 54 | 54 | 54 | 54 | 54 | 54 | |||||||
| Soil Class 4 | Braced | 0 | 36 | 36 | 36 | 36 | 36 | 36 | 36 | 36 | 36 | 36 | 42 |
| 5 | 36 | 36 | 36 | 36 | 36 | 36 | 36 | 36 | 36 | 42 | 42 | ||
| 10 | 36 | 36 | 36 | 36 | 36 | 36 | 42 | 42 | 48 | 48 | 54 | ||
| 15 | 36 | 42 | 42 | 42 | 42 | 42 | 48 | 48 | 54 | 54 | 60 | ||
| 20 | 42 | 48 | 48 | 48 | 48 | 48 | 54 | 54 | 54 | 60 | 66 | ||
| 25 | 48 | 54 | 54 | 54 | 54 | 60 | 60 | 60 | 66 | 66 | 72 | ||
| 30 | 54 | 60 | 60 | 60 | 60 | 66 | 66 | 72 | 72 | 72 | 78 | ||
| 35 | 60 | 60 | 66 | 66 | 66 | 72 | 72 | 78 | 78 | 78 | 84 | ||
| 40 | 66 | 66 | 66 | 72 | 72 | 72 | 78 | 78 | 84 | 84 | 90 | ||
| 45 | 72 | 72 | 72 | 78 | 78 | 78 | 84 | 90 | 90 | 90 | 96 | ||
While there is a number of methods that can be used to set the vertical pipe posts in concrete, we recommend the following method which makes it easier to align and level the pipe sub-structure: Using the Socket Tee fittings and sections of 2-inch pipe, assemble both the front and back 2-inch pipe horizontal beams, placing the Socket Tees at the proper distance apart based on the required pier spacing.
Assemble Pipe Structure and Prepare for Concrete
Tighten the Tee’s set screws just enough to hold them in place, but not fully tightened as their location may need to be adjusted
later. Leave the horizontal pipe longer than necessary until the rails are assembled. This will allow for some adjustment from side to side.
NOTE: Schedule-40 steel pipe is available in lengths up to 21 feet. For arrays with more than 3 or 4 columns, you may need to couple two sections of pipe together. You can abut pipe sections in the center of a Socket Tee, or by using a 2-inch threaded pipe coupling in a span between posts, however, coupled splices should not be located in the middle 1/3 of any span between vertical posts.
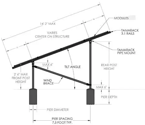
The height of the north (rear) posts will be determined by the tilt angle of the array. See page 7.
North-South post spacing is:
- 72” for columns of 3 modules
- 90” for columns of 4 modules.
Support the horizontal pipe beams at the proper height above the ground level using X-brace pipe supports made with 2×4 or 2×6 wood boards (or use commercially available pipe supports). The X-braces can be each is made using two boards with holes drilled at the proper location, and connected together with a single bolt and nut to act as a hinge.
Center the Socket Tee fittings on the 2-inch pipe directly above the excavated holes. Level the two horizontal beams; make sure they are straight and parallel with each other, and at the proper distance apart. The two boards of each X-brace can be pulled closer together at the bottom to raise the beam or drawn further apart to lower the beam to achieve level. Hold the X-braces in place with another board going down to the ground set at 90° to the X-braces as shown in the photos. Fine adjustment to level can also be done using shims between the beam pipes and the X-Braces. If the horizontal beams are long, you can do this in sections for easier handling. Check for array tilt consistency along the entire length of the array and adjust if necessary.
Use stakes at the bases of the brace boards to hold them in place. Steel concrete form stakes are perfect for this purpose, but you can also use wooden stakes.

Tops of the concrete piers need to be above ground level to keep water from pooling around the pipe posts. Use of Sonotube material to form a pedestal above the in-ground section of the concrete piers. Use 12-inch diameter Sonotube material or equivalent. It is only necessary for the tubes to be located from the ground level up. They do not need to extend into the holes. 6-inches above ground is plenty to produce a proper pier pedestal.
Temporarily hang Sonotube sections from the horizontal beams at each vertical post location before installing the pipe posts into the assembly. They will need to remain suspended until the concrete is poured and then placed into a position above ground level during the concrete pour.
NOTE: For systems with North-South cross bracing, slide a Flex Socket Tee onto each of the vertical pipe posts before installing them onto the horizontal beams. Tighten the set screws just enough to hold them to the pipes at some point near the center so that they are not in the way as you construct the rest of the pipe sub-structure. Their exact position will be determined and set later. If you neglect to do this before the concrete is poured, you will need to remove the horizontal pipe beams after the concrete has been set in order to slide the Adjustable Socket Tees onto the posts.
Next, hang the pipe posts from the Socket Tee fittings. Insert each vertical post down into each hole at each of the post locations, and lift them up through the suspended Sonotube rings and into the bottom parts of the Socket Tees. Make sure that each post is fully inserted into each Socket Tee. Try not to allow the posts to contact the soil on the sides or bottom of the holes. If they do, do not allow any soil material to remain on or inside the pipes. Tighten the set screws in the Socket Tees just enough to hold the vertical pipes in place. Ensure that the bottom of each pipe extends 2/3 of the way to the bottom of the hole. Then tighten the Socket Tee’s set screws on the vertical pipe to make sure that they stay in place.
Make any horizontal adjustments to the Socket Tees required to center the vertical pipe in the holes. Do a final check to make sure that the horizontal beams are level and properly located at the correct spacing between each other, and that the posts are plumb and centered in the holes.
Pouring Concrete
Pour mixed concrete (minimum 2500 psi) into excavated holes. Use a tamping tool (a length of 2×4 works well) to compress the wet concrete and make sure there are no trapped air pockets. As you fill the hole with concrete make sure that the vertical post remains centered and plumb.
Fill the holes to ground level, and then lower the previously hung Sonotube sections down onto the wet concrete, with the pipe posts centered. Twist or shake the Sonotube to make sure it is in full contact with the wet concrete. Use a short level to make sure that the sides of the Sonotubes are plumb and fill the tubes with concrete. Trowel the tops of the concrete into a slight dome formation to allow for water drainage. See drawing at right.
Allow the concrete to cure for at least 24 hours before proceeding.
System With Cross Braces
Skip this step if cross bracing is not required.
On each North-South post pair, loosen the set screws on the Flex Tees which were previously slid onto the vertical pipe before they were installed.
Slide the one on the rear (north) post all the way to the bottom and slide the one on the front (south) post to the Socket Tee on the top of the vertical pipe. (this will allow space as you insert the brace pipes).
Face and align the two swivel sockets towards each other – the socket on the raised south Flex Tee facing down towards the Flex Tee on the north post. Tighten the set screws just enough to hold both Flex Tees in place.
Measure the length of pipe needed to be the brace pipe. The pipe ends can be inserted 2 inches into each Flex Tee, but in order to insert the pipe into both Tees, the pipe will need to be cut shorter. Measure from the very inside of one of the Flex Tees to the outside edge of the other Flex Tee. Cut the pipe for the brace to this length.
To assemble the brace, first, loosen the set screws on Flex Socket Tee at the bottom of the north post. Slide one end of the brace pipe fully into this Flex Tee’s socket until it bottoms out, and tighten the set screw on the brake pipe, but do not tighten the set screws on the post pipe yet.
Angle the brace pipe up toward the Flex Tee on the south post. After loosening the set screws on this Flex Tee, guide the end of the pipe into the socket and lower the Flex Socket Tee assembly down until the pipe end is fully seated into the socket and tighten the set screw onto the brace pipe. Loosen the set-screws on both of the Flex Tees that attach to the vertical posts. Position the brace assembly up so that there no more than 6-inches from the center of the north-post Flex Socket Tee to the surface of the concrete, and no more than 6-inches from the center of the south horizontal beam and the center of the Flex Socket Tee on the south post. See the drawing below. Repeat this whole process for installing the cross-braces on each north/south pair of posts. There may need to be changes to the lengths of the brace pipes from location to location, especially if the installation site is not completely level.

Assemble Module Support Rails
Rails for 4 modules consist of two 85-inch 3.1 rails connected together with a Rail Splice. Rails for 3 modules consist of one 85-inch rail and one 42.5-inch rail and a Rail Splice. You will need two of these rail assemblies per column. The maximum module width that can be accommodated on this rail length is 41.5-inches per module.
Insert the RailSplice 5-inches into one rail end. Install one of the provided Rail Splice Locks (roughly centered in the 5-inch insertion) and tighten to hold it in place. Slide the second section of rail over the splice until it contacts the first section of rail and installs the second Rail Splice Lock. Tighten both Rail Splice Lock bolts to 144 inch-pounds (12 foot-pounds). Either locking bolt may be loosened and moved slightly if it interferes with mid-clamp placement when installing modules
Attach Pipe Mount Clamps to Rail Assemblies
Each Pipe Mount Clamp consists of a rail clamp loosely bolted to an aluminum extrusion and a U-bolt with hardware. Attach Pipe Mount Clamps to all of the rails at this time. Position the adapter into the two features on the bottom of the rail, and finger tighten the bolt to allow for repositioning of the clamps on the rails.
Install Rail Assemblies onto the Pipe Substructure
Mark the location of the rails on the lower horizontal pipe, leaving approximately 1/2-inch of space between the columns.
Install the module rails to the horizontal pipes at the location marks using the U-bolts on the pipe mount clamps. Finger-tighten the flange nuts on the Pipe Clamp U-bolts.
Square and center the rails at each end of the horizontal pipes and tighten their hardware to 72 inch-pounds (6 foot-pounds). Run a string line between the end rails and align the remaining rails. You will need to loosen the Pipe Mount Clamp flange nuts in order to slide the rail up or down for alignment. Tighten the U-bolt nuts to 72 inch-pounds (6 foot-pounds) and the flange nuts to 144 inch-pounds (12 foot-pounds) on all rail assemblies.
Grounding the Array
Tamarack rails and approved PV modules are bonded by 5050 Clamps and splices. The 5050 Clamps achieve bonding to the module frames through stainless-steel pins in the clamping surface of the clamp tops, which penetrate module frame coatings. The rails and channel nuts are bonded because of the conductive surface of the mill finish aluminum used in the rail construction.

SolarEdge Optimizers and Enphase Microinverters are bonded to the rails with the Tamarack MPLE adapters. Other brands and models of power optimizers or microinverters may require a different grounding method. The Tamarack Pipe Mount Clamps provide grounding continuity between the rail assemblies and the horizontal pipe. The Socket Tees provide a grounding path between all connected sections of pipe. Because all of the elements of an entire unified ground mount array are bonded electrically, the Tamarack Solar Ground Mount only requires a single Ground Lug for the grounding connection. Use a Ground Clamp to bond a grounding conductor to one of the rails. It does not matter which rail in the array is used, but the rail closest to the final grounding connection should be chosen to reduce the grounding path as much as possible. The Ground Clamp works with #10 – #6 AWG copper grounding conductors. A #6 AWG solid grounding conductor should be used if the conductor is in any way potentially exposed to damage. NOTE: If the PV module that you are using is not listed on our approved module list at the end of this manual, the grounding method described above may not meet UL standards for grounding. In this case, the proper grounding method would be to use a Module Frame Ground Lug on each module frame in the array and connect all of the frame grounding lugs together with a copper grounding conductor.
Module Level Power Electronics
If you are using rail-mounted Module Level Power Electronics (MLPE), it is easiest install them before installing the solar modules onto the rail assemblies.
Use the Tamarack MLPE Adapter to attach
Enphase microinverters or SolarEdge
Optimizers to the rails. Tighten the bolts with a
1/2-inch socket to the specified torque.
Wire Management
Place the array’s electrical conductors and connectors into the cavity of the rail channels. Wires can be run through the splices, but check to be sure that they do not conflict with the self-drilling fasteners. Install the Wire Management Clips were necessary to keep wires in the channels. If you are using MLPE, use these clips to keep the MLPE wiring in place as it is laid into the rail channels. On a ground mount installation, these clips can be installed from behind the array as necessary to keep wires in place. Use as many as needed to ensure that the wires stay in the rail channels over the years.
PV Module Installation
Start module installation at the bottom of the first column. In order to center the column of modules, you will need to determine if, and by how much, the mounting rails will extend past the bottom module and above the top module in the column. This will be determined by the actual width of the particular PV module being used, the number of modules per column, and the 1/2 inch spacing between the modules for the mid-clamps.
If installing columns of 3 modules, the rail lengths will be about 127.5 inches. If installing columns of 4 modules, the rail lengths will be about 170 inches
To determine the actual full length of the module column:
For 3-module columns: 127.5 – (3 x module width + 1 inch)
For 4-module columns: 170 – (4 x module width + 1.5 inch)
The additional 1 or 1.5 inches in the formulas account for the space required for the 5050 Clamps between the modules
For example a 4-column installation with PV module measuring 39.5 inches in width:
170” – (4 x 39.5” + 1.5”) or 170” – 159.5” = 10.5 inches of extra rail length.
To center the column of modules on the rails, take that measurement of extra rail length and divide by 2. In the example above, that would be 5.25 inches of rail that would extend past the bottom module and past top module in the column.
Place a solar module on the first set of rails so that it is the calculated distance from the lower end of the rails and secure it in place with a 5050 clamp on each rail. Since these clamps will be used as end clamps, place the side of the top clamp with two pins toward the modules. Center the first module east to west over the rails and hold in place. Make sure that the module is straight and level on the rails and tighten the two end clamp bolts to 96 inch-pounds (8 foot-pounds).
Install one 5050 Clamp in each rail on the other side of the first module and slide it down so that the inside of the clamp contacts the frame of the first module. The springs will hold the clamps in place prior to tightening. Place the second module on the rails, align it with the first module, and slide down and fully into the two mid-clamps. Tighten the mid-clamp bolts to 144 inch-pounds (12 foot-pounds) to fully secure the module.
Install the third module (and fourth module if installing columns of four) and mid-clamps on the rails in the column in the same manner, aligning the corners of the modules as you go up the column. Check to make sure that the modules in this first column are all even and straight, and where you want them to be.
On the top edge of the last module of the first column, install the 5050 Clamps so that the sides with the two stainless-steel pins are facing in toward the module frame, and the clamp is tight up against the module frame.
Tighten the two end clamp bolts to 96 inch-pounds (8 foot-pounds).

Install subsequent columns of modules in the same manner. Leave 1/2-inch of spacing between the columns. Make sure that all of the rails are centered between the north and south beams and extend past the south beam the same distance at the bottom end. Use a string line as an alignment aid, or just do this with line-of-sight
Do a final check to be sure that all bolts and installation hardware on the array is properly tightened to the specified torque values.
Module Compatability
The solar modules listed on the next two pages have been certified to meet UL 2703 standards when installed with a Tamarack Solar FM Rail System.
Certified Module List for UL2703 Listing Program
| Manufacturer | Model |
| Aleo | P18/P19/S18/319/S59/S79. |
| AU Optronics | PM Series |
| Astronergy | CHSM6612M. CHSM6612M/HV. CHSM6612P. CHSM6612P/I-IV. CHSM6610M (BL) (BFy(HF), CHSM6610M/HV, ASM3310P |
| Auxin | AXN6M610The.x. AXN6P610Tvcx. AXN6M612-flax. AXN6P612Thoc. |
| Axitec | AXlblackpremium 60 (35mm). AXlpower 60 (35mm). AXlpower 72 (40mm). AXIpremium 60 (35mm). AXlpremium 72 (40mm). |
| Movies | BVM6610. BVM6612. BNM6612 |
| BYD | P6K Series (35mm). MHK-36 |
| Canadian Solar | CS6V-xxxM. CS6P-mocP, CS6K-xxxM. CS5A-xxxM. CS6K-xxxMS CS6U-P, CS6U-M. CS6X-P. CS6K-MS, CS6K-M. CS6K-P, CS6P-P, CS6P-M. CS3U-P, CS3U-MS, CS3K-P, CS3K-MS. CS1K-MS. CS3K. CS3K, CS3U. CS3U-MBAG. CS3K-MB-AG. CS3K-MB-AG. CS6K. CS6U, CS3L, CS3W, CS1H-MS, and CS1U-MS |
| CentrsoSolar America | C and E series. |
| Certainteed | CTmc<Mxx-01. CTxxxPx:<-01. CTxxxMxx-02 Where “,cc” denotes frame and backsheet color. CT-03 Series |
| Dehui | DH-60M xxx-xxxW |
| Eco Solargy | ORION 1000 ECOXXXH156P-60. APOLLO 1000 ECOYJOCI-156M-60. and APOLLO 1000 ECOXXXA156M-60. |
| ET Solar | ETAC Module. ET Module. |
| GCL | 40mm frame: GCL-P6/72 35mm frame: GCL-P6/72. GCL-P6/72H. GCL-M6/72. GCL-M6/72H 35mm frame (Black frame): GCL-P6/60. GCL-M6/60 |
| Hansol | TD-AN3 (40mm). TD-AN4. UB-AN1 (35mm). UD-AN1 (40mm), UB-AN1. UD-AN1 |
| Heliene | 36M. 60M. 72M. 60P. and 72P. |
| HT Solar | HT60-156(M) (NDV) (-F). HT 72-156(M/P) |
| Hyundai | HI. KG. MG. TG. RI. RG. II. MI. KI series (35mm and 40mm). |
| ITEK | 1T-xxx, iT-xxx-HE. iT-xxx-SE. iT-xxx-SE-72 (40mm). |
| JA Solar | JAP6 60-xxx. JAM6-60-xxx/Sl. JAM6(K)-60/xxx. JAP6(k)-72-xxx/4BB. JAP72SYY-xxx/ZZ. JAP6(k)-60-xxx/4BB. JAP6OSYY-xxx/ZZ. JAM6(k)-72-xxx/ZZ. JAM72SYY-xxx/ZZ, JAM6(k)-60-)ocx/ZZ. JAM6OSYY-xmal JAM 72S09. JAM72S10. JAP72S10. JAM60S10, JAP60S10 i.VY: 01 white backsheet, 02 black backsheet. 03 half-cell and white backsheet. 09 M4 cell, 10 M4 1/2 cell ii.ZZ: SC standard cell. PR = perc. BP = bifacial. HiT = HIT, IB = IBC, MW = MWT |
| Japan Solar | JPS-mocP-60 (35mm). JPS-xxxM-60 (35mm). JPS-xxx-P-72 (40mm). JPS-xxxM-60-BB (35mm). JPS-xxx-P-72-BB (40mm) |
| Jinko | JKM ma P-60, JKM ma PP-60, JKM ma M-60, JKM xxx M-60B, JKMS ma PP-60 JKMS mot P-60, JKMSxxx-72, JKMmaP-72, JKMthoocP-72, JKMmocM-72, JKO7A (JKMSmocPP-60 & JKMthoocPP72), JKO7B (JKMSmocPP-60), JKM ma PP-60(Pfus), JKM ma PP-60B, JKM ma M-608, JKMSxxxM-80, JKMSmocM60-EP, JKM ma P-72B, JKMmocPP-72, JKMmaPP-72B, JKluboccPP-72(Plus), JKMSmaPP-72, JKMmocM-72-V, JKMxxxPP-72-V, JKMma-72L-V, JKMma-72HL-V, JKM:cocM-60L, JKM)cmcM-60BL, JKluboody1-60HL, JKRoboocM72HL-V, JKMxxxM-72L-V |
| Hanwha Q-Cells | G3, L-G4 and L-G2, Q.PLUS G4 ma, Q.PLUS BFR G4.1/TAA moc, Q.PLUS BFR, G4.1/MAX ma, Q.PLUS BFR G4.1 ma, Q.PRO-G4 ma, Q.PRO EC-G4.4 w, Q.PRO BFR G4 3COL, Q.PRO BFR G4.1 ma, Q.PRO BFR G4.3 w, Q.PEAK-G4.1 xmc Q.PEAK- G4.1/MAX ‘pa, Q.PEAK BLK G4.1 moc, Q.PEAK-G4.1/TAA ma Q.PEAK BLK G4.1/TAA ma, B.LINE PRO BFR G4.1 moc, B.LINE PLUS BFR G4.1 moc, B.LINE PRO BFR G4.1 moc, Q.PEAK DUO-G5-xn, Q.PEAK DUO-G5.X-ma, and Q.PEAK DUO BLK-G5-xxx Q.PEAK L G4.2, Q.PLUS L G4.2, Q.PLUS L G4.1 -35mm, Q.PLUS L G4 – 35mm, Q.PRO L G4 -35mm, Q.PRO L G4.1 – 35mm, Q.PRO L G4.2 – 35mm, B.LINE PLUS L G4.2 – 35mm, B.LINE PRO L G4.1 – 35mm, B.LINE PRO L G4.2 – 35mm, ()PLUS L-G4.2/TAA -35mm, Q.PEAK DUO L-G5.2, Q.PEAK DUO L-G5.3 (380-395), Q.Peak Duo L-G6 )ox, Q.Peak Duo L-G6.2 mac, Q.Peak Duo L-G6.3 ma, Q.Peak Duo G6 ma, Q.Peak Duo BLK-G6 ma 32mm high frame profile: Q.PEAK DUO-G7, B.LINE PEAK DUO-G7, Q.PEAK DUO-G7.2, B.LINE PEAK DUO-G7.2, Q.PEAK DUO L-G7, Q.PEAK DUO L-G7.1, Q.PEAK DUO L-G7.2, Q.PEAK DUO L-G7.3, B.LINE PEAK DUO L-G7, B.LINE PEAK DUO L-G7.1, B.LINE PEAK DUO L-G7.2, B.LINE PEAK DUO L-G7.3, Q.PEAK DUO-G8, Q.PEAK DUO BLK-G8 |
| Kyocera | KU26x-8MCA where x is 0 or 5. |
| LG | MONO X, MONO X 2, Mono X Plus, Mono Neon 2, Mono Neon 2 LG ma S1C-L4, LG ma NIC-G4 LG )ooc SIC-A5, LG ma N1C-A5, LGmaQ1C(Q1K)-A5,LGmaN1C(N1K)-A5, LthopcS1C-A5, LthoaA1C-A5, Lthooth2T-A4, LG mocN2T-A5, LGxxxN2W-A5 LthoaS2W-A5, LGxxxEIC-A5, LGmaN1C(N1K)-G4, LthoocN2W-G4, LthcaS2W-G4 LthcaS1C-G4, LG)axE1K-A5, LGmocN1K-V5, LthoocN1C-V5, LthoocQ1C-V5, LthoocN2W-V5 |
| LONGi | LR6-60 (40mm), LR6-72 (40mm), LR6-60 I-IV (40mm), LR6-72 HV (40mm), LR6-60 PH (40mm), LR6-72 PH (40mm), LR6-60 PE (40mm), LR6-72 PE (45mm), LR6-60 BK (40mm Black frame), LR6-72 BK (40mm Black frame), LR6-60 PB (40mm Black frame), LR6-72 PB (45mm Black frame) Number in paranthesis signifies frame profile height. |
Certified Module List for UL2703 Listing Program
| Manufacturer | Model |
| Mission Solar | MSE series |
| Mitsubishi | MJE, MLE |
| NSP | D6M and D6P |
| Panasonic | VBHNxxxSA16NBHNxxxSA16B, VBHNxxxSA15NBHNxxxSA15B, VBHNxxxKA01, VBHN SA17/18/KA03/04, VBHNxxxSA17G, VBHNxxxSA17E/18E, VBI-INxxx2A01, VBHNxxxZA02, VBHNxxx7A03, VBHNxxx2A04. |
| Peimar | SGXXXM (FB), SGXXXM (BF), SGXXXM |
| Phono Solar | PS-xxx-60, PS-xxx-72 |
| Risen | RSM72-6 (MDG) (M), RSM60-6 |
| REC Solar | PEAK Energy Series, PEAK Energy BLK2 Series, PEAK Energy 72 Series, TWIN PEAK 2 SERIES TWIN PEAK 2 BLK2 SERIES, TWIN PEAK SERIES, alpha Series |
| Renesola | Virtus II with module ratings of 250-260 in increments of 5. 156 series with module ratings of 270-275. |
| S-Energy | SN3xxM-10/SN3xxP-10 (40mm), SNxxxM-10/SN2xxP-10 (40mm), SNxxxP-15 (40mm) |
| Seraphim | SEG-6PA-XXXWB (X0(=280 to 335), SEG-6PA-XXXBB (XXX=280 to 335), SEG-6PB-XXXWW (XXX=240 to 275), SEG-6PB-XXXWB (X0C=240 to 275),SEG-6PB-XXXBB (X)0C=240 to 275), SEG-6MA-XXXWW (X)0<=290 to 370), SEG-6MA-XXXWB (XXX=290 to 370), SEG-6MA-XXXBB (XXX=290 to 370), SEG-6MB-XXXWW (X)0(=250 to 305) SEG-6MB-XXXWB (XXX=250 to 305), SEG-6MB-XXXBB (XXX=250 to 305) SEG-E01A-X)0( (X)0C=325 to 400), SEG-E018-XXX (XXX=275 to 330) SEG-El 1A-XXX(XXX=325 to 385), SEG-El 1 B-XXX(XXX=275 to 320) SRP-XXX-6QA-WX-XX (X0C=345 to 370) (XX=40 or 50 mm) (X=B or S for Black or Silver frame), SRP-)00(-60ABX-)0( (X)0C=345 to 370) (XX=40 or 50 mm) (X=B or S for Black or Silver frame), SRP-XXX-6QB-WX-XX (XXX=280 to 300) (XX=40 or 50 mm) (X=B or S for Black or Silver frame), SRP-XXX-6QB-BX-XX (X00C=280 to 300) (XX=40 or 50 mm) (X=B or S for Black or Silver frame) |
| Sharp | 60 and 72 NUSA-xxx/NUSC-xxx |
| Silfab | SLA-M and SLG-M |
| SolarWorld | Sunmodule Protect, Sunmodule Plus |
| Solaria | PowerXT-xxxy-zz, PowerXT-xxxR-PD/BD, PowerXT-xxxR-AC, PowerXT-xxxC where: xxx is power in watts y is module size (R for residential, C for commercial), zz is other PowerXT-xxxy-zz all share the same rail profiles |
| Sonali | SS 230 – 265 |
| SunEdison/ Flextronics | F-Series / FXS, R-Series / FXS |
| Suniva | MVX xxx-60, OPT xxx-60-4-100 |
| Sunpower | E20-xxx-COM, X21-xxx, X22-360-C-AC. —Evaluated with both the G3 and G5 frame** SPR-P17-xxx-COM (xxx: module power rating) |
| SunSpark | 40mm high frame profile: Mono module 60P (xxxW), Mono Module 72P (xxxW) |
| Suntech | STP 35/40 |
| Talesun | TP572, TP596, TP654, TP660 (35mm/40mm), TP672, Hipor M350+ (40mm) Talesun Smart (35mm) M = Mono, P = Poly, B = Black, T = Transparent (H) = 1500V, without (H) is 1000V |
| Tesla/ZEP/SolarCity | SCxxx, SCxxxB, SCxxxB1, SCxxxB2 |
| Trina Solar | TSM-xxx PA05.08, TSM-xxx PD05.10, TSM-xxx PD05.08, TSM-xxx DD05.08 TSM-xxx DDO5A.05(11), TSM-xxx DDO5A.05(11), TSM-DD14/PE14/PD14, TSM- DE14 |
| Upsolar | UP-MxxxP. UP-MxxxP-B. UP-MxxxM, UP-MxxxM-B |
| URE | D7MxxxH8A, D7XxxxH8A, D7MxxxH7A |
| Vikram | Eldora Grand Ultima, Eldora Grand, Eldora Prime, Eldora Ultima, Solivo, Somera Grand, Ultima, Somera Grand, Somera Half (VSMH.72), Somera Prime, Somera Ultima |
| Yingli | YL xxx P-29b, YLM 60, YLM 72, YGE, YGE-VG, YLM, YL xxx P-35b, YL xxx D-30b, YL xxx D-36b |
| Waaree | AC, Adiya 60/72 Mono/Poly Black, Adiya 60/72 Multi |
| Winaico | WST (35mm), WSP (40mm) |
Certified Power Optimizer List for UL2703 Listing Program
| Manufacturer | Model Numbers |
| SolarEdge | P400J, P600, P700, P730, P800p, P800s |
| Enphase | M250-72, 250-60, M215-60, C250-72, S230, S280, IQ 6, IQ 6+, IQ 7, IQ 7+, IQ 7X, Q Aggregator |
Manufacturers Limited Product Warranty
Tamarack Solar Products (“Manufacturer”), the manufacturer of the Tamarack Solar FM solar mounting system (the “Product”), warrants to the end-user of the Product (“buyer”), that while installed as part of the original solar electric system (the “System”) at the original installation site, the Product shall be free from defects in materials and workmanship for a period of twenty-five (25) years (the “Limited Product Warranty”), and any products with a painted finish shall be free from visible peeling, cracking or chalking under normal atmospheric conditions for a period of five (5) years (the “Limited Finish Warranty”) (collectively, the “Limited Warranties”). The Limited Warranties shall begin on the date of completion of the installation of the Product as a part of a photovoltaic system. Warranty Service: If within the applicable warranty period, the product is determined by the Manufacturer to be defective, based on reasonable evidence of a defect provided by you, the Manufacturer will, at its sole option, (a) repair the Product or replace it with an equivalent product, or (b) take back the Product and refund to you the purchase price paid to Manufacturer by the original purchaser of the Product. The buyer’s sole and exclusive remedy under the Limited Warranties shall be limited to the repair, replacement, or refund specified herein. Warranty Conditions: THE FOREGOING WARRANTIES ARE CONTINGENT ON THE PROPER USE OF THE PRODUCT IN ACCORDANCE WITH THE INSTRUCTIONS AND SPECIFICATIONS PUBLISHED BY MANUFACTURER AND SHALL NOT APPLY TO ANY PRODUCT THAT HAS BEEN REPAIRED OR MODIFIED BY PERSONS OTHER THAN MANUFACTURERS. Warranty Disclaimer: THE EXPRESS WARRANTIES SET FORTH IN HEREIN ARE IN LIEU OF ALL OTHER WARRANTIES EXPRESS OR IMPLIED. MANUFACTURER HEREBY SPECIFICALLY DISCLAIMS ANY OTHER REPRESENTATIONS OR WARRANTIES, EXPRESS OR IMPLIED, INCLUDING WITHOUT LIMITATION ANY WARRANTIES OF TITLE, NON-INFRINGEMENT, QUIET ENJOYMENT, MERCHANTABILITY, OR FITNESS FOR A PARTICULAR PURPOSE. Damage Waiver: NOTWITHSTANDING ANY OTHER PROVISIONS HEREIN, IN NO EVENT WILL MANUFACTURER OR ITS SUPPLIERS BE LIABLE FOR ANY SPECIAL, INCIDENTAL, OR CONSEQUENTIAL DAMAGES SUFFERED BY YOU, DISTRIBUTOR, OR ANY THIRD PARTY WHICH MAY ARISE UNDER OR IN CONNECTION WITH THE PRODUCT OR THESE LIMITED WARRANTIES. Limitation of Liability: DISTRIBUTOR AND MANUFACTURER HAVE NEGOTIATED RISK ALLOCATION BETWEEN THEMSELVES AND AGREE THAT IN NO EVENT WILL MANUFACTURER’S LIABILITY FOR ANY CLAIM, WHETHER IN CONTRACT, TORT, OR UNDER ANY OTHER THEORY OF LIABILITY, EXCEED THE CUMULATIVE AMOUNTS ACTUALLY RECEIVED BY MANUFACTURER FROM DISTRIBUTOR FOR THE PRODUCTS SOLD TO DISTRIBUTOR DURING THE 12 MONTH PERIOD IMMEDIATELY PRECEDING THE ACCRUAL OF THE CLAIM. Warranty Transference: Buyer may transfer this Warranty to subsequent site owners, or, if the original buyer is a contractor, to the Site. Proof of Purchase is required for any warranty claim Warranty Claims: If Buyer has a claim for repair or replacement under this Limited Warranty, Owner must contact Tamarack Solar Products as soon as possible and under no circumstances later than 30 days after the end of the applicable Limited Warranty Period to initiate the Limited Warranty Claims Process. . Any claim under the above-limited Warranty must include proof of the date the installation was completed or the date of the original product delivery, such as the copy of Owners receipt or invoice.
Address all Warranty claims to:
Tamarack Solar Products, Warranty Claim
288 F Street
Arcata, CA 95521
2021 TAMARACK SOLAR – REVISION 5
FM SYSTEM MANUAL


















