T2002 & T3003 Module/T2002 & T3003 UV-C Module
Electrostatic Precipitator & Electrostatic
Precipitator with UV-C
Installation, Operating & Maintenance
South Street, Whitstable, Kent, CT5 3DU
Tel: +44 (0)1227 276100
Fax: +44 (0)1227 26426
Email: [email protected]
Website: www.trionuk.co.uk
Safety
The manufacturer does not accept any liability for the damage to the product or personal injury caused by non-observance of the safety instructions in this manual, or by negligence during installation, use, or maintenance.
Everyone working on or with the product must be familiar with the contents of this manual. Always keep the manual with the product.
The user of the product is fully responsible for observing local safety instructions and regulations.
Safety Instructions & Warnings
Some of the following information will be repeated in sections of the manual. This section should be fully understood prior to the operation of the equipment supplied.
- A technically competent person should install Trion equipment
- The instructions in this manual are intended for guidance only and are not intended to form a training document
- During normal operation, this device carries very high voltages internally
- The unit will store an electrical charge when it is switched off. Wait for a minimum of one minute prior to opening any access door on the equipment
- When installing this equipment using the suspension eyebolts a second lock nut must be fitted on each eyebolt o lock it in place.
- When installing in an oil mist application a liquid drain trap must be fitted. Regular inspections of oil residue areas should be carried out. Failure to comply with this may result in flashover arching or fire damage in extreme cases.
- This appliance must be connected to true earth and isolated in accordance with EN60947-3
- The unit is fitted with a safety interlock device, which should not be disabled.
- Care should be taken when handling filters and cell units as they may have sharp edges. In oil mist applications oil residue may make the filters and cells slippery and difficult to grip. Suitable PPE should be issued & worn
- When cleaning/ maintaining the equipment suitable PPE/safety procedures should be supplied to the technician to ensure their safety.
- The use of non-approved detergent may damage your unit. Trion only recommends the use of TRI-DEX detergent on their units.
- This manual should be retained for future use. It contains recommendations that will ensure a long service life of the supplied equipment.
Working Safely with UV-C Light
Only approved personnel familiar with the assessment of hazards and risks associated with industrial electrical and ventilation equipment such as fans and air handling units should install, operate and maintain the product. the product must be familiar
If the installer or user is unable to understand the information in this manual or has any doubt that safe and reliable installation, operation, and maintenance of the equipment can be assured, Trion or their representative should be contacted for advice. Additional warnings and safety information relevant to specific operations are contained at the start of the sections to which they apply.
CAUTION
UV Light DO NOT Look Directly At Light
• Ultra-Violet light in the C Band can damage the skin and eyes
• Personal Protective equipment must be worn and direct viewing must be avoided
• The effect of unprotected eyes is similar to that caused by an electric arc welding torch
Access to the lamps is gained through an access cover on the front of the UV-C reactor. Care is to be taken to prevent unauthorized access to the equipment.
The ozone that is generated by the UV-C lamps is an irritant.
The unit must not be operated without
THE Kitchen Extraction Fan running It is recommended to control the unit via an AC-3 rated air pressure switch or directly interlocked to the main fan control to ensure that the lamps do not operate if the extract system is not operating. A class D-rated MCB must be used for surge protection.
UV-C warning labels to be added to duct hatches up to 0m from the unit
Carefully read the manual before starting
Stacking two or more units
Two to four units (maximum) can be stacked and intertwined either in the factory or on-site. The units are sealed with silicone and bolted together ensuring that the drainage holes are aligned. Please enquire at the time of ordering.
Specification – Electrostatic Precipitator
The electrostatic precipitator is designed for the effective treatment of grease and smoke. When combined with UV-C gaseous odors are also treated. The unit has two stages of filtration:
- Mesh prefilters
- Combined ionizer and ESP collector cell to remove grease and smoke particles
Part 1 of this manual addresses the Electrostatic Precipitator
Specification – Combined Electrostatic with UV-C
The combined electrostatic precipitator with UV-C light technology is designed for the effective treatment of grease, smoke, and gaseous odor. The combined unit has three stages of filtration:
- Mesh prefilters
- Combined ionizer and ESP collector cell to remove grease and smoke particles
- UV-C filtration to remove residual grease particles and gaseous odor control through a process of photolysis and ozonolysis.
Part 1 of this manual addresses the ESP stage
Part 2 of this manual addresses the UV-C stage
Technical Specification Electrostatic Unit Only
| Specification | T2002 | T3003 |
| Volume flow rate (95% efficiency) | 4,420m3/hr | 6,630m3/hr |
| Power | 100W | 150W |
| Dimensions | 533H x 1086W x 635L mm | 533H x 1574W x 635L mm |
| Weight | 80 kg | 120 kg |
| Power supply | 230Vac/1 phase/50Hz | |
| Installation | Free Standing, Wall, or Frame Mounted | |
| Airflow* (must be specified at the ordering stage) | Horizontal, Right to Left or Left to Right | |
| Ionizer/Collector Output Voltage | 12 kV/6 kV | |
| Number of cells | 2 | 3 |
| Collector Cell Weight | 15 kg | |
| Controls | On/Off Switch with Indicator | |
| Pre-filter | Expanded Aluminum (460mm x 460mm x 22mm) | |
| Primary Filter | Electronic Ioniser/Collector Cell | |
| Power Supply | PWM Power Supply | |
| Efficiency | To 95% Based on D.O.P. Test Method to 99.75% for Double Pass (Calculated) | |
| General | Multiple Units Can Be Joined Together for Increased Volume or Efficiency | |
| Optional extras. (must be specified at the ordering stage) | Suspension eyebolts – 4 Oil Drain – 1 | |
Technical Specification Electrostatic Unit with UV-C
| Specification | T2002 UV-C | T3003 UV-C |
| Power | 622W | 846W |
| Power Supply | 230Vac/1 phase/50Hz/3A Class D circuit breaker required | 230Vac/1 phase/50Hz/3A Class D circuit breaker required |
| Dimensions | 533H x 1086W x 855L mm | 533H x 1574W x 855L mm |
| Weight | 105 kg | 150 kg |
| Installation | Free Standing, Wall, or Frame Mounted | |
| Airflow* (must be specified at the ordering stage) | Horizontal, Right to Left or Left to Right | |
| Ionizer/Collector Output Voltage | 12 kV/6 kV | |
| Number of ESP cells | 2 | 3 |
| Collector Cell Weight | 15 kg | |
| No UV-C tubes | 6 | 8 |
| Lamp rack weight | 10 kg | 12 kg |
| Controls | On/Off Switch with Indicator | |
| Pre-filter | Expanded Aluminum (460mm x 460mm x 22mm) | |
| Primary Filter | Electronic Ioniser/Collector Cell | |
| Secondary, Filter | UV-C lamp frame containing 6 or 8 lamps | |
| Pressure Drop | 140 Pa (dirty filters) | |
| Efficiency | To 95% Based on D.O.P. Test Method to 99% for Double Pass (Calculated) | |
| General | Multiple Units Can Be Joined Together for Increased Volume or Efficiency | |
| Optional extras* (must be specified at the ordering stage) | Suspension eyebolts – 4 Oil Drain – 1 | |
Part 1 – Electrostatic Precipitator
i. Preparation for Installation
This manual should be carefully read before starting the preparation and installation of the air cleaner. The installation should conform to all local ordinances associated with building codes and electrical codes required for the unit. Authorities having jurisdiction should be consulted before installation is made. If there are no local codes, the installation should conform to the National Electrical Code.
Factory-designed access to all electrically charged high voltage components contains electrical interlocks for the safety of operating personnel. Any additional access that may be provided in the system, where there is access to high voltage, must be equipped with such interlocks. Interlocks are readily available from the factory. For maximum air cleaning efficiency, your air cleaner should be located as specified by your Trion representative. The unit can be either wall-mounted or chain-hung.
New Unit Inspection
Immediately, upon receiving the unit, carefully examine the package for damage during transit. If the unit is damaged, contact the last carrier for claim filing and contact your Trion representative immediately. While unpacking the unit, look for concealed shipping damage. If there is damage, it should be reported to the last carrier for claim filing.
Operation
What is an Electronic Air Cleaner? An electronic air cleaner is a high-efficiency contaminant collector designed to remove up to 95% of the dust, smoke, liquid aerosol, and other pollutants from the air passing through it.
How It Operates
The T2002 and T3003 units require a fan to move the air. After passing through a prefilter, the particles in the air are given an electrical charge supplied by the power supply. As the particles enter the collector cells, these charged particles are attracted to and collected on grounded collecting plates.
Typical Electronic Cell Operation
Unit Operation
Control Switch (A)–The control switch is located on the cell access door. It controls the operation of the power pack. The control switch should be in the “OFF” position when the cell access door is open for maintenance of the unit.
Indicating Light (B)–The light located adjacent to the control switch is an indicator of the performance of your electronic air cleaner. When the control switch is “ON” the indicator light should glow. If the light does not glow or if it continually flickers and is accompanied by a continual snapping or arcing noise, the air cleaner requires attention and may need to be cleaned.
Cell Access Latches (C)–The cell access latches are located on the door near the intake end of the unit. To open the cell access door, lift and turn the latches counterclockwise.
Arcing (snapping or cracking noise)–An occasional arcing noise may be emitted from the air cleaner. This is a normal occurrence caused by exceptionally large pieces of dirt etc entering the collecting elements. In addition, an arcing noise accompanied by a flickering carrier of the indicating light may be noticed after washing the cells. Should this occur, allow more drying time. Also, see “Troubleshooting Chart” for additional causes of arcing. The louvers on the grill are adjustable so the direction of airflow can be controlled as desired.
NOTE: The unit is equipped with an interlock switch for your safety. The unit will not operate if the cell access door is not closed securely.
Ducting Application
To maintain the selected cleaning efficiency, it is important to ensure that the total air volume (capacity in CFM or m³/hr) is uniformly distributed across the entire face area of the unit. The metal mesh filters, perforated plate, or mist suppressors provide some resistance to affect even air distribution. However, since most air ducts are designed to handle air velocities greater than the rated velocity of the air cleaner, it is necessary to properly transition any attached ducting. If possible, a contraction ratio of 1 in 3 approximately 20°) should be maintained. If space prohibits turning vanes, air baffles or other means may be utilized. Ducting–were attached to the cabinet collars–should be gas keyed, caulked, or otherwise made watertight.
ii. Installation – Read Thoroughly
- Carefully unpack unit from shipping crate or carton and examine for damage in shipment.
- Remove ionizer/collector cell(s), prefilters, and after filters.
- In the event of hanging a ducted system including a filter, it is your responsibility to measure the unit and carefully choose and devise duct rods and chains to support the weight of the unit.

Liquid Aerosol Application Installations
The unit is equipped with a sump, and drain hole sized to accept a ½” NPT fitting.
For the collection of liquid contaminants:
- Install drain fitting to allow for the attachment of a liquid collection cup/drain hose. A drain fitting is available from your representative. An “S” trap is required in the drain hose to ensure proper drainage of the collected liquid.
- Raise the front corner of the unit, opposite the drain corner, ½” (13 mm) to enable the collected liquid to flow to the drain sump.
Contaminants to be collected, such as oils in a vaporous state must be condensed into the particulate form prior to entering the ionizing collecting cells in order to maintain the anticipated efficiency. Gases, vapors, or any nonparticulate cannot be precipitated and will therefore pass through the air cleaner. Any condensing that takes place downstream from the air cleaner defeats the purpose. Similarly, heavy concentrations of water vapor, or other matter that becomes highly conductive when condensed, must be prevented from entering and/or condensing in the collecting elements to prevent electrical arc over and short.
Electrical Installation
All units must be wired directly in the junction box on the access door side of the unit. Use NEC Class I wiring methods. Size branch circuit protection in accordance with the NEC. Refer to the appropriate enclosed wiring diagram in the attached figures.
Exercise all the normal precautions when working with high voltage and comply with NEC and all appropriate local codes.
Check Out for System Start-up
When the installation has been completed, assure that the equipment is ready for start-up by checking the following:
- All construction debris is removed from the ionizing collecting cells, drain connections, and ductwork.
- The drain line from the drain basin is clear and completely connected to its point of termination.
- Supply line power is available and electrical wiring is completed to the junction box.
iii. Maintenance
The following instructions are for use by qualified personnel.
WARNING – RISK OF ELECTRIC SHOCK
These serving instructions are for use by qualified personnel only. To reduce the risk of electric shock, do not perform any servicing other than that contained in the operating instructions unless you are qualified to do so.
Factory-designed access to all electrically charged high voltage components containing electrical interlocks for the safety of operating personnel. Any additional access that may be provided in the system, where there is access to high voltage, must be equipped with such interlocks. Interlocks are readily available from the factory.
Cleaning
To maintain optimum collection efficiency, the prefilters, and ionizer/collector cells should be removed periodically and soaked in a solution of hot water and Trion Tridex detergent for 2 to 4 hours, rinsed thoroughly, and then air dried completely before reinstalling in the unit. The frequency of cleaning is dependent on the type of contaminant being collected. Liquid aerosol requires less cleaning while welding smoke may require more frequent cleaning.
Trion Tridex Detergent is specially formulated for use with Trion electronic air cleaners. The use of other cleaners and detergents, not specifically approved by Trion, can cause possible failures in the unit and will void any and all warranties on our equipment.
Wash Ionising/Collecting Cells
Do not use high-pressure steam cleaning equipment to clean cells. The excessive heat and pressure will cause the plates to warp and in turn possibly cause excessive arcing.
- Turn the control switch “OFF” and disconnect the power to the unit.
- Open the cell access door.
- Remove ionizer/collector cells and wash in hot water with detergent. If the collected contaminant is of an extremely dry nature, it can be blown off the cells with a pressure hose or by gently tapping the end plate of the cell.
- Remove the mechanical prefilter. Remove collected dust or lint by vacuuming or brushing. Wash with warm, soapy water.
- Rinse all components thoroughly in warm, clear water and allow to drip dry completely.
- Replace prefilters and ionizer/collector cells. Ensure the airflow arrows point in the direction of airflow (towards the blower).
- Close the access door, and reconnect power to the unit.
- Turn the control switch to “ON”. If arcing occurs or the indicating light flickers, the components may still be damp. Turn the unit OFF and allow the cells to dry completely.
iv. Replacement Parts Ordering
Information
The following pages contain exploded views and bills of material for the Trion Electrostatic Air Cleaners. Use these pages to determine the part numbers of the items needed. To order parts contact your local Trion representative and provide the following information:
- Unit Model number – located on the data label near the junction box.
- Part Number and description – from exploded views.
v. Warranty
All Trion Electronic Air Cleaners are warranted for 2 Year Limited Warranty on units and 1 Year Limited Warranty on replacement parts. Labor is NOT included. Do not return defective parts without permission from the factory and receive a material return acceptance number.
vi. Troubleshooting Guide
T2002/T3003
Problems and Possible Causes
- Indicating Light Out
- Unit not plugged in
- Control switch “Off”
- Cell access panel not fully closed
- Broken cell insulator
- Extremely dirty cells
- Service panel not secured in place
Excessive arcing noise after washing
- Collector elements still wet – Allow more drying time
- See “Continuous arcing noise” below
Continuous arcing noise and flickering indicate light
- Extremely dirty collector plates
- Bent collector plates
- A large piece of material lodged between cell plates
Contaminant Bypass
- The velocity of airflow is too high through the unit
- Collector plates not grounded
- Collector cell not making a solid connection to access door and high voltage contact.
If the problem cannot be determined or corrected contact your local Trion representative or call Trion customer service at +44 (0)1227 276100 for assistance.
Factory-designed access to all electrically charged high voltage components contains electrical interlocks for the safety of operating personnel. Always unplug the unit while performing service within the cabinet.
Troubleshooting Guide Cont.
| Problem | Possible Cause | Correction |
| On/Off switch not illuminated | a)Check the power supply to the unit b)Control switch off c)Door not fully closed d)Fuse is blown/cut-out operated | a)Connect the power b)Switch on c)Close the door d)Change fuse/reset |
| Amber L.E.D out | a)Check off switch light is on b)Broken cell insulator c)Extremely dirty cells d)Power pack malfunction | a) Check on/off switch not illuminated b) Replace c) Wash cells d) Replace |
| Electrostatics not working | a)Excessive dirt b)Object between plates c)Damaged (bent) plate d)Damaged (bent) ionizer e)Broken insulator | a)Wash cells b)Remove c)Straighten or replace c)Straighten or replace e) Replace |
| The power pack not working | a)No power supply b)Defective power pack | a)Check input to pack b)Replace |
| The unit will not work | a)No power at service .nnection b)A.ess panel, not closed c)Bad (open) safety switch d)Bad (open) control switch e)Transformer (open) wiring | a)Rectify b)Close c)Replace d)Replace e)Replace |
| Heavy arcing after washing | a) Collector elements still wet | a) Allow more drying time |
| Continuous arcing and flickering indicate light | a)Dirty cell b)Drag. (bent) plates c)Damaged (bent) ionizer d)Large particles between plates e)Bad contact to cell/ionizer | a)Wash b)Straighten or replace c)Straighten or replace d)Remove e)Check |
| Loud hissing noise | a)Dirty cell b)Loo. high-voltage connection | a)Wash b)Rectify |
| Radio and/or TV interference | a)Improper earth connection b) Lose high-voltage connection c)Faulty suppression choke | a)Rectify b)Rectify c)Replace |
| Air not being cleaned | a)Cells not working b)Insufficient units c)Badly situated d)Pre-filter blocked e)Cell too dirty f)Inlet air too hot g)Air flow is too great h)Inlet plenum too short i)Fault on electrostatic. j)Excessive fume | a)Check as above b)Increase units c)Relocate d)Clean or replace e)Wash f)Pre-cool 9)Slow air speed h)Modify i)Rectify (see above) j)Fit double pass unit |
vii. Diagrams/Exploded View Figures
Fig 1. T2002 Module Assembly
| ITEM | TRION PART NO. | DESCRIPTION | QTY. |
| 1 | 247962-002 | Cap Plug | 2 |
| 2 | 224451-006 | Aluminum Mesh Prefilter | 2 |
| 3 | 450568-001 (ENGLISH) 4505680-001 (METRIC) | Ionizer Collector Cell | 2 |
| 4 | 224779-028 | Gasket, Adhesive Back (3/4″ x 11/16″) | 19″ |
| 5 | 224779-015 | Gasket, Adhesive Back (1″ x 1/4″) | 86″ |
| 6 | 334562-005 | Draw Latch | 2 |
| 7 | 348667-001 | Control Enclosure Assembly | 1 |
| 8 | 252029-001 | Label | 1 |
| 9 | 149882-001 | Outlet Box Cover | 1 |
| 10 | 249884-001 (ENGLISH) 249884G-001 (METRIC) | Outlet Box | 1 |
| 11 | 146442-001 (ENGLISH) 145442G-001 (METRIC) | Hinge | 2 |
Fig 2. T2002 Enclosure Assembly
| ITEM | TRION PART NO. | DESCRIPTION | QTY. | ITEM | TRION PART NO. | DESCRIPTION | QTY. |
| 1 | 457056-001 (ENGLISH) 457056G-001 (METRIC) | Cell Door Assembly Cell Door Assembly | 1 1 | 7 | 249005-001 | Contactor, 2 Pole (Single Phase Units Only) | 1 |
| 8 | 247292-001 | Contactor, (3 Phase Units Only) | 1 | ||||
| 2 | 119036 (ENGLISH) 119036G (METRIC) | Spacer, Hex Spacer, Hex | 3 3 | 9 | 348605-001 | Light Switch Bracket | 1 |
| 10 | 241101-009 | Indicator Light | 1 | ||||
| 3 | 347891-013 | High-Frequency Power Supply (T1300 & 1001) | 1 | 11 | 138586-001 | Switch — Off/On | 1 |
| 347891-026 | High-Frequency Power Supply (12600 & 2002) | 1 | 12 | 224779-012 | Gasket, Adhesive Back (1/4″ x 1/8″) | 75″ | |
| 4 | 251257-001 | Wiring Label 5756/60HZ/3 PH (11300 & T2600) | 1 | 13 | 224779-014 | Gasket, Adhesive Back (1/2″ x 3/16″) | 12″ |
| 249043-001 | Wiring Label 2406/50-60HZ/1 PH (T1300 & 12600) | 15 | 248655-005 | Transformer (120/208/240V-24) | 1 | ||
| 249044-001 | Wiring Label 1206/60HZ/1 PH (1001 & 2002) | 248655-004 | Transformer (4806-24) | ||||
| 249045-001 | Wiring Label 208,230,4606/60HZ/3 PH (1001 & 2002) | 248655-007 | Transformer (575V-24) | ||||
| 249046-001 | Wiring Label 2406/50HZ/1 PH (1001 & 2002) | 16 | 121390-001 | Warning Label, High Voltage | 1 | ||
| 248751-001 | Wiring Label 208,230,460V/60HZ/3 PH (T1300 & T2600) | 17 | 143817-001 | Strain Relief Bushing | 2 | ||
| 248752-001 | Wiring Label 1206/60HZ/1 PH (T1300 & 12600) | 18 | 353228-002 | Standoff Insulator, Ceramic | 2 | ||
| 5 | 248604-001 | Interlock Switch Bracket | 1 | 19 | 222781-033 | Spacer | 2 |
| 6 | 244833-001 | Interlock Switch | 1 | 20 | 250418-007 | Overload Relay (5756 units only) | 1 |
Fig 3. Ionizer/Collector Cell
| ITEM | TRION PART NO. | DESCRIPTION |
| 1 | 450551-001 | End Plate (LH.) |
| 2 | 450551-002 | End Plate (R.H.) |
| 3 | 226555-001 | High Voltage & Ground Plate |
| 4 | 220107-070 | Spacer |
| 5 | 247924-002 | Cell Brace |
| 6 | 352212-002 | Insulator |
| 7 | 124537-001 | Handle |
| 8 | 220976-044 | Rivet |
| 9 | 147704-002 (ENGLISH) 147704G-002 (METRIC) | Contact Contact |
| 10 | 220107-111 | Spacer |
| 11 | 220107-112 | Spacer, Spike To Insulator |
| ITEM | TRION PART NO. | DESCRIPTION |
| 12 | 247782-001 | Ionizer Ground Plate |
| 13 | 347892-001 | Spiked Ionizer Blade |
| 14 | 250567-001 | Brace |
| 15 | 233137-031 (ENGLISH) 2331370-031 (METRIC) | Tie Rod Tie Rod |
| 16 | 233137-030 (ENGLISH) 2331370-030 (METRIC) | Tie Rod Tie Rod |
| 17 | 233137-015 (ENGLISH) 2331370-015 (METRIC) | Tie Rod Tie Rod |
| 18 | 220107-109 | Spacer, Ionizer Ground |
| 19 | 220107-110 | Spacer, Spike |
| 20 | 121993-006 | Fiber Washer |
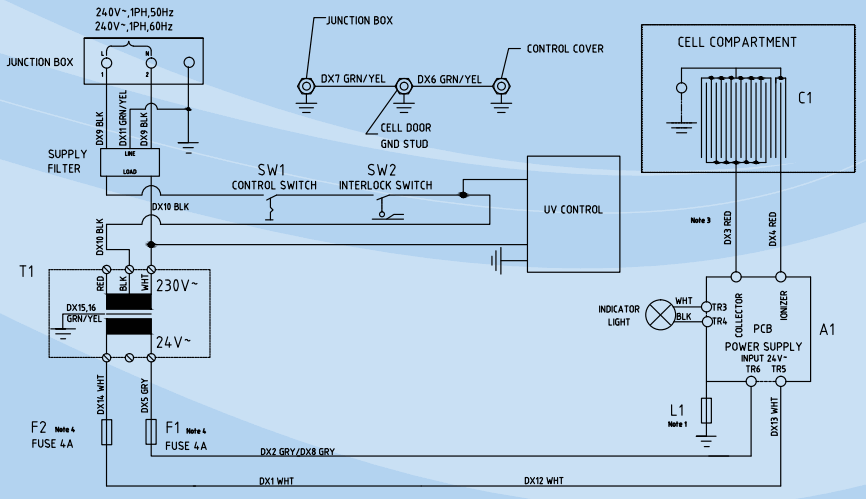
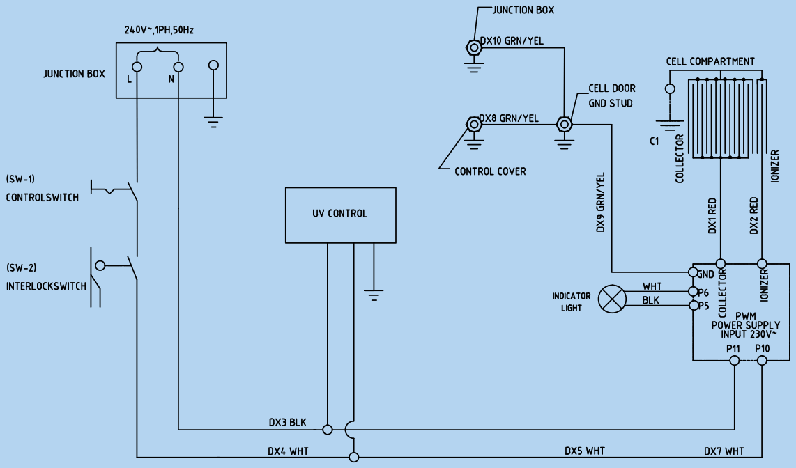
Fig 4. Wiring Diagrams – ESP Only
Note 1: Connect L1 between solder side of PCB & cabinet earth
Note 2: Chassis of transformer must be connected to cabinet Earth
Note 3: Cell voltages must be valued at +/- 500v when connected to the cells
Note 4: All fuses should be time delay / anti-surge type
T2002-ESP Only

T3003 – ESP Only
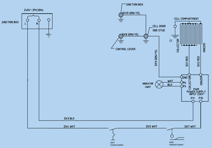
Fig 5. Wiring Diagrams – Combined ESP with UV-C
Note 1: Connect L1 between solder side of PCB & cabinet earth
Note 2: Chassis of transformer must be connected to cabinet Earth
Note 3: Cell voltages must be valued at +/- 500v when connected to the cells
Note 4: All fuses should be time delay / anti-surge type
T2002 – Combined ESP with UV-C
![]()
03 – Combined ESP with UV-C
T2002 & T3003 Module/T2002 & T3003 UV-C Module
Electrostatic Precipitator & Electrostatic
Precipitator with UV-C
Fig 6. Mains connection to ESP and combined ESP UV-C

Part 2 – UV-C
i. Introduction and Purpose
The UV-C system has been specifically rated to suit the design airflows for the ventilation supplied. If it is necessary to change the ventilation system for any reason then Trion should be consulted on the continued use of the UV-C system.
This manual provides information on the safe operation and maintenance of the Trion UV-C and Ozone system.
A pre-commissioning checklist is shown in Appendix A. This UV-C component is designed for the removal of odor and grease from commercial and industrial air extraction systems and should always be used in combination with suitable prefiltration depending on the grease and smoke content of the treated air.
ii. Operation
The UV-C system must not be operated without the extract ventilation fan running. The UV-C lamps generate small amounts of ozone, which is heavier than air and an irritant.
To prevent the back-flow of ozone into the kitchen it is recommended to allow the fan to run on for up to 10 minutes after the Techniclean UV-C unit is switched off.
The UV-C system should be set up to run automatically whenever the extract ventilation fan is running. The system should be interlocked with the main fan control, for example via an AC-3 rated pressure differential switch. To reduce the impact of condensation it is recommended that the fan is left running for 30 minutes after cooking operations have finished. A class D MCB must be used for surge protection purposes.
Repeated rapid switching on and off of electronic ballasts can lead to premature failure. Switching the UV-C lamps on and off reduces their useful operating life and each “on-off” cycle can reduce the life by one hour. Unnecessary switching should therefore be avoided.
After ignition UV-C lamps require a start-up period (typically 20 minutes) to reach full output. It is essential that any replacement lamps that are installed have the same UV-C and ozone performance characteristics as the originals if the design performance of the equipment originally supplied is to be maintained. See section V for ordering spares.
In order for the UV-C system to operate as designed it is important that the UV-C lamps are kept clean and free from grease contamination. Maintenance of this unit is to be carried out only by Trion-approved contractors. Always disconnect power to the equipment, and unplug it before performing any maintenance operations
iii. Maintenance
Trion or other experienced contractors approved by Trion should only carry out these maintenance activities. Monthly, bi-monthly, or as experience suggests, carry out the following routine maintenance:
- Switch off and isolate the main ventilation fan.
- Switch off the UV-C lamps at the control panel and isolate and lock off the power supply.
- Check the condition of the UV-C lamps by removing the insert unit(s).
- Clean the lamps as set out below.
- Re-install the insert units replace the front cover and switch on the ventilation and UV-C systems.
Annual Maintenance
The UV-C system should be cleaned and checked annually as part of a planned maintenance program. Trion or other approved contractors should carry out annual maintenance under a planned preventative maintenance agreement. UV-C lamps have an operating life of 10,000hrs after which they should be replaced.
Lamp Cleaning
Check that the end caps supplying power to the lamps are positively in place. During the UV-C lamp cleaning process, it is possible for the tubes to move and for the end caps to become disconnected.
The quartz glass used for the UV-C lamps is brittle and may break if knocked with sharp tools or rings etc.
During the normal operation of the UV-C lamps, a white powder will accumulate on the surface of the tubes. This white powder is inert ash and is a product of the cold combustion process.
Any surface contamination will reduce the output of the lamps and limit their performance. It is essential that the UV-C lamps and all polished surfaces of the insert unit frames are clean.
The lamps can be cleaned with a damp cloth using warm water and detergent. The lamps should then be wiped down with fresh clean water and dried using a lint-free cloth. The lamps should then be wiped down with a clean rag dipped in 100% isopropyl alcohol. This liquid solvent can be purchased from a chemist or an industrial chemical cleaning supplier.
If the deposit on the tube proves to be difficult to remove or has been contaminated with grease a commercial heavy-duty detergent should be sprayed onto the lamp and left to soak for 10 minutes and then rinsed off. Follow this with the normal cleaning operation as described above.
iv. Handling and Disposal of UV-C Lamps
The lamps are made from quartz and should be handled as glass. The lamps contain traces of mercury. Any droplets of mercury and broken lamps should be disposed of safely in accordance with HSE regulations.
Wear protective gloves when handling failed, broken, or damaged UV-C lamps.
Remove the connection end cap or caps from the UV-C lamp. Carefully remove the UV-C lamp by withdrawing it through the end box or housing. The lamps can become stuck to their grommets and care should be taken to ensure that the UV-C lamps do not break when handling.
Ensure that failed lamps and any broken lamps are disposed of safely using facilities normally provided for fluorescent lamps.
v. Ordering Spare Parts
When ordering spare parts from Trion please state:
- Product names, supply voltage, and serial number (see the identification plate on the equipment)
- Part number
- Description
- Quantity
vi. Specification
UV-C 6 lamp short frame filtration system
| Specification | UV-C6 |
| Volume flow rate | Normal odor/after ESP: up to 1.4m³/s Heavy odor: up to 1.1m³/s |
| Power | 522W |
| Power supply | 1ph/230V/50Hz/2.27A Class D circuit breaker required |
| Dimensions | 525H x 1051W x 220D mm |
| Weight | 25kg |
| Pressure Drop | 50 Pa (no light guard) |
| Construction | Powder-coated mild steel |
| Optional extras | Flow proving switch Hours run meter (to monitor lamp life) Sequential lamp frame start-up (for multi-frame systems) |
UV-C 8 lamp short frame filtration system
| Specification | UV-C8 |
| Volume flow rate | Normal odor/after ESP: up to 2.1m³/s Heavy odor: up to 1.5m³/s |
| Power | 696W |
| Power supply | 1ph/230V/60 Hz/3.2A Class D circuit breaker required |
| Dimensions | 533H x 1574W x 220L mm |
| Weight | 30kg |
| Pressure Drop | 50 Pa (no light guard) |
| Construction | Powder-coated mild steel |
| Optional extras | Flow proving switch Hours run meter (to monitor lamp life) Sequential lamp frame start-up (for multi-frame systems) |
Appendix A. Pre-Commissioning Checklist
The following items should be checked following the mechanical installation of the kitchen canopy, ductwork, and fans. Ideally, there will be commissioning certificates available.
Installation
The unit is designed to be installed in the extraction ducting of a commercial kitchen canopy, located downstream of the canopy and upstream of the fan, in accordance with the Installation, Operating, and Maintenance Manual.
Electrical Supply
The unit must be interlocked with airflow and protected with a Class D MCB (by others). The power supply is to be located within 1m of the unit (by others).
Checklist for ductwork and fans:
- Check ductwork has been blown clean.
- Open inspection doors and check for construction debris.
- Check ductwork run from canopy to vent is complete, supported, and inspection doors closed.
- Check fans run in the correct direction and without excessive vibration.
- Check any fan interlock requirements.
- Review air flow balancing results to check correct flows to each canopy/duct run.
- Check gas supply to appliances turn off when extract fan turned off.
- Check correct make-up airflows to each area of the kitchen.
- Check power supply available to UV control panel.
- Check protection on the client’s power supply is Class D MCB
Checklist for canopy installation:
- Check grease filters are correctly installed
- Check ballast boxes/plates are accessible and correctly positioned
- Check plastic pipes to air pressure switches are correctly connected
- Check safety strap on insert units attached
On some sites, there may be additional activities by other trades after the canopies have been installed and checked. A final check is then required to see below:
Final Check List
- Check fire suppression pipework, and telephone cables BMS cables do not interfere with access to lamp frames, air supply plenum, or ballast boxes.
- Check appropriate access panels or ceiling tiles are available allowing access to ballast boxes in the ceiling void.
When the above checks are complete the UV system is ready for commissioning.
See Appendix B for a maintenance checklist.
Appendix B. Maintenance Checklist
| Item | Details | Completed |
| A | UV-C Control Panel | |
| Check the control panel for alarms (if applicable) | ||
| Record operating hours | ||
| Switch off the UV-C lamps and isolate | ||
| Switch off the kitchen ventilation fan and isolate | ||
| Check and clean control cubicle air filter(s) (if applicable) | ||
| Check and replace any failed indication lamp bulbs (if applicable) | ||
| Check and clean/replace UV-C control panel filters (if applicable) | ||
| B | Cleaning UV-C Lamp Insert Units | |
| Switch off the UV-C lamps and isolate | ||
| Switch off the ventilation fan and isolate | ||
| Remove and check each UV-C lamp insert unit | ||
| Replace damaged/failed UV-C lamps | ||
| Replace lamps over 8000 hours of use | ||
| Clean the UV-C lamps | ||
| Clean UV-C lamp frames | ||
| Check for loose UV-C lamp connections | ||
| Clean internal canopy reflecting surfaces | ||
| Re-install the insert units and connect plugs | ||
| C | Re-Commissioning | |
| 1 | Switch on the ventilation and UV-C systems | |
| 2 | Check that all UV-C lamps are operating | |
| 3 | Check operation of any door or access panel interlocks | |
| 4 | Check operation of any air pressure switches | |
| 5 | Adjust pressure switch settings | |
| 6 | Record pressure switch settings | |
| 7 | Check operation ventilation fan is operating | |
| 8 | Complete the maintenance report and return to the office |
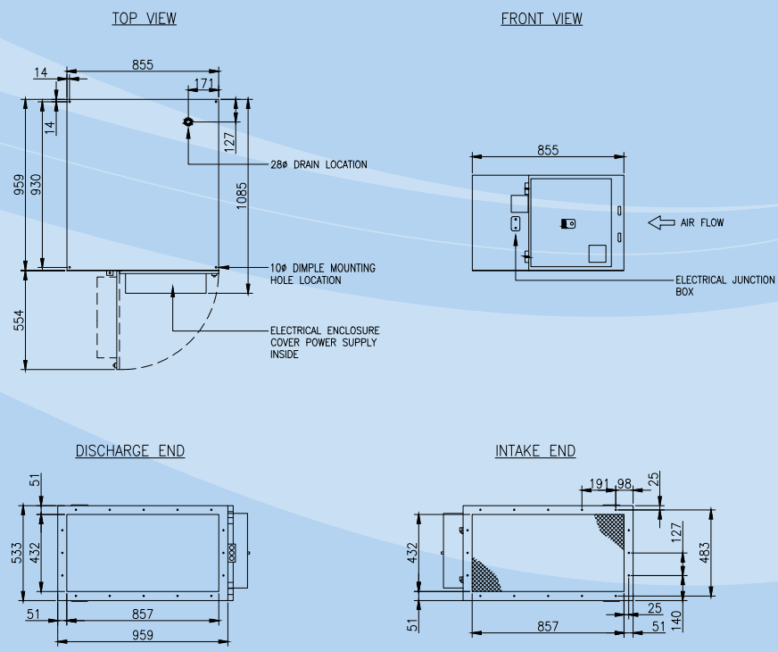
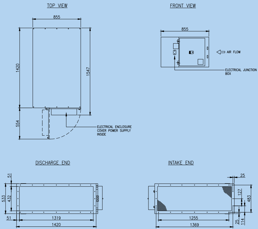
Appendix C. Technical Drawings Combined ESP with UV-C

T2002 – ESP with UV-C

T3003 – ESP with UV-C
www.trionuk.co.uk
Get In Touch
Call: 0845 6880112
Email: [email protected]
Our Address
Paravent, Adremit Limited, Unit 5a, Commercial Yard,
Settle, North Yorkshire, BD24 9RH
T-UV-C – V3


















