CAFE C2Y486P2TS1 48 Inch Dual-Fuel Commercial-Style Range with 6 Burners and Griddle

FEATURES & BENEFITS
Versatile Cooktop – The versatile cooktop on this commercial-style range features an entire arsenal of burners that give you the right amount of heat and control to perfectly cook anything from delicate sauces to expertly seared meats. Caterer Oven – A large capacity oven fits a full-size catering pan and has three racks, large 8-pass bake and broil elements for even heat coverage, and Precision Oven modes to help guarantee results for meals of any size.
Second oven for everyday use – A second everyday oven gives you the space and features you need for family meals, including enough room for two 9″ x 13″ casserole dishes, two self-clean racks, no-preheat air fry, convection cooking, a precision temperature probe and more. Color-Matched Manifold with LCD Control – Get a coordinated look with a manifold that matches the range’s finish and an LCD control panel that provides information like oven and probe temperatures and cooking time for perfect cooking results.
Superior Heat Distribution – The industry-exclusive Inspiral burner swirls the cooktop flame under cookware to more evenly spread heat from the center to the edges.
Multi-Ring Burner – A versatile burner offers different-sized flame rings on a single burner element, so it’s like having multiple burners in one. Built-in Griddle with Thermostat – An 18,000-BTU, Stainless Steel and Aluminum clad griddle feature an integrated thermostat, which automatically adjusts heat to hold your set temperature. Two Griddle Burners – Cook more at once with two 12,000-BTU powerful burners that can be used together or separately with an optional griddle grill accessory. Two High-Heat Burners – Boil water quickly with two 18,000-BTU Power Boil burners that give you more cooking power.
WIFI-ENABLED FEATURES
Built-in WiFi – This smart oven features a WiFi connection so you can control oven functions with the SmartHQ app on your smart device. No-Preheat Air Fry – Cook healthier, crispier versions of your favorite foods in less time, thanks to an air fryer right in your oven that doesn’t require preheating, a basket, or a special tray. Enhanced Shabbos Mode – The Shabbos Keeper connects to your range to automatically enable Shabbos-compatible modes each week and before every holiday (Shabbos Keeper is sold separately, visit www.zmantechnologies.com for details). WiFi connection via the SmartHQ app is required for initial setup.
Specifications
| FEATURES | |
| Configuration | Double Oven Range |
| Cooking Technology | Convection |
| Oven Cleaning Type | Self-Clean with Steam Clean Option (Both Ovens) |
| Burner – Left Front | 21,000 BTU |
| Burner – Left Rear | 18,000 BTU |
| Burner – Right Front | 10,000 BTU |
| Burner – Right Rear | 18,000 BTU |
| Burner – Center | 12,000 BTU Front / 12,000 BTU Rear |
| Griddle | 18,000-BTU (NG) and 16,000-BTU (LP) |
| Cooktop Burner Type | Sealed |
| Cooktop Surface | Porcelain-Enamel Gray |
| Dishwasher Safe Knobs | Yes |
| Control Location | Front controls |
| Control Type | Digital Temperature Display with Timer Display Knob (Both Ovens) |
| Valves (Degree of Turn) | 270 |
| WiFi-Enabled Features | Remote Oven Control Remote Notifications Scan-to-Cook Voice Control Precision Cooking Modes No Preheat Air Fry Meat Probe (App-Based func) |
| Connected Integrations | Amazon Alexa DiGiorno Drop IFTTT Innit Sonos The Google Assistant |
| Range Control Features | Audible Preheat Signal Auto Oven Shut-Off Auto Self Clean Electronic Timer Front Controls In-Oven Broiling Self-Clean Cool Down Time Display Temperature Probe Sabbath Mode |
| Oven Cooking Modes | Convection Bake Multi/Single Rack (Both Ovens) Convection Broil Hi/Lo (Both Ovens) Convection Roast (Both Ovens) Proof (Both Ovens) Warming (Both Ovens) |
| Oven Features | 8-Pass Broil Element Hidden bake |
| Cooktop Burner Grate Features | Continuous Grates Heavy-Cast Edge-to-Edge Grates |
| Cooktop Burner Grate Material | Heavy Cast |
| Cleaning Time | Variable with Delay Clean Option |
| Self-Clean Oven Door Lock | Automatic |
| Oven Rack Features | 1 Self-Clean Extension Rack (Caterer Oven) 1 Self-Clean Extension Rack (Everyday Oven) 1 Self-Clean Flat Rack (Everyday Oven) 2 Self-Clean Flat Oven Racks (Caterer Oven) 4 Rack Positions (Everyday Oven) 5 Rack Positions (Caterer Oven) |
| Fuel Type | 240V Electric and Natural Gas |
| Ignition System | Electronic w/Auto Reignition |
| Leveling System | 4 Leveling Legs |
| Style | Commercial |
| Cooking System | True Convection with Reverse Air |
| CAPACITY | |
| Total Capacity (cubic feet) | 8.25 cu ft |
| Capacity (Cu. Ft.) | 5.75 Caterer Oven / 2.5 Everyday Oven |
ACCESSORIES
| Conversion Kits | LP kit included WB28X39728: High Altitude Natural Gas WB28X39729: High Altitude LP |
| Griddle | UXPRRGG: Reversible grill/griddle Stainless Steel and Aluminum Clad Included |
| Backsplash | UXADJB48PSS: 30″-36″ adjustable-height backsplash with warming shelf UX12BS48PSS: 48″ Professional 12″ Backsplash |
| Griddle Cover | WB34X39889 |
| Toe Kick | CXPR8TKPMSS: 48″ Stainless Steel Toe Kick |
WEIGHTS & DIMENSIONS
| Cabinet Opening | 30 in |
| Depth with Door Open | 43 7/8 in |
| Approximate Shipping Weight | 672 lb |
| Net Weight | 576 lb |
| Overall Height | 35 1/4 in |
| Height to Cooking Surface (in.) | 35 1/4 to 36 3/4 |
| Overall Width | 47 7/8 in |
| Cabinet Width | 48 in |
| Overall Depth | 28-1/4 |
| Interior Dimensions – Companion Oven (WxHxD) (in.) | 12-1/4 x 16-3/8 x 21-3/8 |
| Interior Dimensions – Main Oven (WxHxD) (in.) | 24 x 14 x 20-3/8 |
| APPEARANCE | |
| Color Appearance | Matte White |
| Cooktop Burner Grate Color | Matte Black |
| Oven Door Features | Big Clear View Oven Window |
| Handle Color | Brushed Bronze |
| Handle Design | Café Consumer Removable |
| Control Knobs | Consumer Removable Dishwasher Safe Commercial-Style Stainless Steel |
POWER/RATINGS
| Bake/Broil Wattage – Main Oven | 2700/4000W |
| Top Burner BTU Rating – LP (000’s BTU’s) | (1) 18.0; (2) 15.0; (2) 12.0; (1) 9.1 |
| Top Burner BTU Rating – Nat. Gas (000’s BTU’s) | (1) 21.0; (2) 18.0; (2) 12.0; (1) 10.0 |
| Volts/Hertz/Amps | 240V; 50A |
| Power Connection | Power Cord – Included |
| Main Convection Wattage | 2500W |
| Companion Convection Wattage | 1500W |
WARRANTY
| Parts warranty | Limited 1-year entire appliance |
| Labor warranty | Limited 1-year entire appliance |
| Warranty notes | See written warranty for full details |
DIMENSIONS AND INSTALLATION
Electrical Requirements:
Ranges must be hooked up to a 208/240V, 60Hz properly grounded dedicated circuit protected by a 50-amp circuit breaker or time-delay fuse.
Gas Pressure Regulator:
You must use the gas pressure regulator supplied with this range. For proper operations the inlet pressure to the regulator should be as follows:
Natural Gas:
- Minimum pressure: 6” of Water Column
- Maximum pressure: 13” of Water Column
Propane (LP) Gas:
- Minimum pressure: 11” of Water Column
- Maximum pressure: 13” of Water Column
See installation instructions for more details
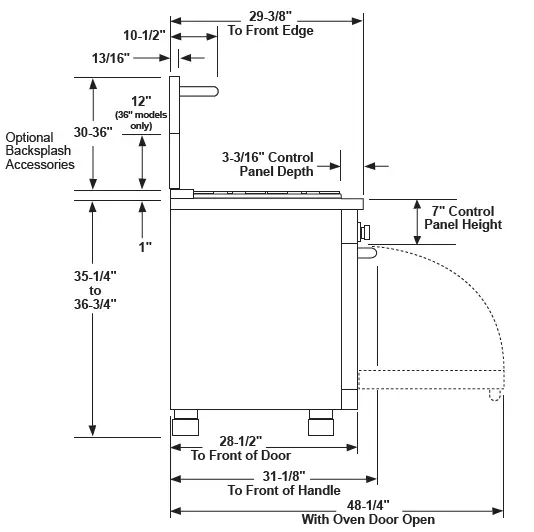
Optional Backsplash Accessories:
The range requires a 12″ minimum clearance to a vertical combustible surface at the rear. A backsplash is required for installations with less than 12″ clearance. The following backsplash accessories are available, or a custom, the non-combustible backsplash can be used.
Order one with a 48″-wide range backsplash:
- UXADJB48PSS – 30″-36″ adjustable-height backsplash with warming shelf
- UX12BS48PSS – 48″ Professional 12″ Backsplash
NOTE:
Commercial-style ranges offer a number of choices in size and cooktop configurations. All commercial-style ranges are factory set for natural gas. Conversion kits are included with the range. High Altitude Kit, High Altitude
Natural Gas:
WB28X39728; High Altitude LP: WB28X39729 are also available. The kits must be installed by a qualified service technician at an additional cost.
Installation Information:
Before installing, consult installation instructions packed with the product or online at geappliances.com for current dimensional data. A suitable 48″ or wider vent hood is required for installation over ranges with a grill and is recommended for all other ranges.
For answers to your Café™ product questions, visit our website at cafeappliances.com.
Advance Planning:
Refer to dimensional drawings for appropriate placement and necessary clearances when planning the installation.
- Working areas adjacent to the range should have an 18″ minimum clearance between the countertop and cabinet bottom.
- Clearance between the range and side wall or combustible material must be at least 12″ on each side.
- Installation must conform with local codes. In the absence of local codes, the range must comply with the National Fuel Gas Code, ANSI Z223.1-1990.
WARNING:
Installations without a hood require a 48″ minimum to combustibles. A custom hood installation with exposed horizontal combustible surfaces must have an Auto-On feature. Refer to hood installation instructions for specific hood clearances. The surface of the entire back wall above the range and below the hood must be covered with a non-combustible material such as metal, ceramic tile, brick, marble or other stone.
DIMENSIONS AND INSTALLATION
UTILITY LOCATIONS

SIDE VIEW WITH BACKSPLASH


As defined in the National Fuel Gas Code (ANSI Z223.1/CSA B149.1, Current Edition). Clearances from non-combustible materials are not part of the ANSI Z21.1/CSA 11 scope and are not certified by CSA. Clearances less than 12″ must be approved by local codes and/or the authority having jurisdiction.
ADDITIONAL CLEARANCES
Allow 12″ minimum clearance to an adjacent wall on each side. Working areas adjacent to the rangetop should have 18″ minimum clearance between the countertop and the bottom of the wall cabinet.
ADDITIONAL ACCESSORIES

For answers to your Café™ product questions, visit our website at cafeappliances.com.



















