VGB0001S Memphis Pro Built-In ITC 3 Grill

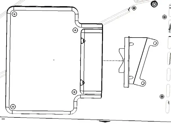
Clearance to Combustible Materials
WARNING: The structure and surrounding objects MUST maintain the specified minimum clearance to combustible materials.
Combustible Material is wood, dry wall, siding or any other material that has to ability to catch fire.
Built-in structures constructed of wood or other combustible materials may require the use of the OPTIONAL Built-In Heat Shield Kit to maintain the required clearance to combustible materials. The grill may be supported by either the three support brackets, or the four leveling feet. Please note that there must be at least 3/8″ (1.0 cm) clearance between the bottom of the grill and the structures. 
NOTE: Clearance dimension E may only be used when the optional heat shield kit (VGBHSK) has been installed. This distance is from the outside of the installed heat shield kit.
| DIMENSIONS | |
| A | 18″ (45.8 cm] |
| B | 3/8″ [1.0 cm] |
| C | 2″ [5.1 cm] |
| D | 3 1/2″ [8.9 cm] |
| E* | 1/8″ [0.5 cm] |
| F | 30″ [76.2 cm] |
Amajor cause of fires is failure to maintain required clearances (air spaces) to combustible materials. It is of the utmost importance that this product be installed only in accordance with these instructions.
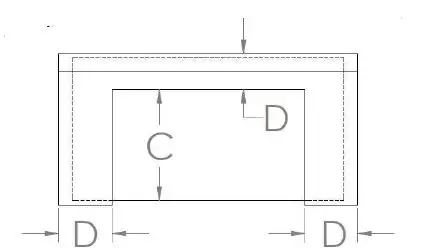
Built-In Cutout Dimensions
WARNING: See clearance to combustible materials when designing and constructing a built-in island. Built-In islands must be built to the cutout dimension specifications below.
The owner and/or builder are responsible for consulting local, county, and state building codes for securing any necessary building permits before construction.
NOTE: Construction codes vary from locality to locality.
NOTE: Dimensions are to the finished surfaces. Grill cavity surfaces are to be plumb and level to ensure a proper fit.
Top View
Front view
| CUTOUT DIMENSIONS | TOLERANCE | |
| A | 30 1/4″ [76.9 cm] | +/- 1/8″ [0.30 cm] |
| B | 16 3/4″ [42.6 cm] | +/- 1/8″ [0.30 cm] |
| C | 24 1/2″ [62.9] | +/- 1/8″ [0.30 cm] |
| D | 3 1/2″ MIN [8.9 cm] | |
| E | Standard Cabinet Height | |
Hardware Components

Grill Installation and Operation
Installation Requirement
A dedicated GFCI protected electrical circuit is required for all Memphis Wood Fire Grills and controller systems. This circuit should be installed by a Certified Electrician. Although the Memphis Grill only uses about 2 amps of current during startup, any other equipment (refrigerator, pool pump, fountains, ect.) that have high current draw, consistently or intermittently, from the same electrical circuit can cause potential issues and/ or interruptions with the performance of the grill. We recommend an on/off switch to be installed in this circuit so that the grill can be easily disconnected from power when not in operation. This will prevent the buildup of interference that could affect the controller’s operation.
Hopper Lid Orientation
For easier pellet refill, the hopper lid can be oriented to open toward the front of the grill instead of the rear when access to the back of the grill is difficult or unavailable. To switch the orientation to be opened from the front, the shoulder bolts holding the hopper lid must be removed. Rotate the lid so the mounting holes are towards the back of the grill. Re-insert shoulder bolts into the rivnuts towards the back of the grill.
*Note: The fill shield must be flipped up to cover the smoke vent in this orientation. This is used to block pellets from falling into the grill via the smoke vent.
| Other Grill Information | |||
| Main Grate Area- 24.8 in X 17.4 in. | [63 cm X 44 cm] | 432 in. sq. | [2,772 cm sq.] |
| Top Grate Area- 24.8 in. X 5.5 in | [63 cm X 14 cm] | 136 in. sq. | [882 cm sq.] |
| Optional Middle Grate Kit Area- 24.8 in. X 11 in Grill Height with Hood Open- 47.1 in. [120 cm] | [63 cm X 28 cm] | 272 in. sq. | [1,764 cm sq.] |

Installation
Step 1: Unpacking
Grill requires (2) two people for safe assembly
Please note that during shipping some movement may have taken place, so a complete visual inspection is required. Be sure to inspect entire grill after removing the protective shipping carton. Report any damage to your local dealer immediately. Shipping damage is not covered under warranty. Some surfaces may be sharp so wear gloves when assembling.
Do not plug in the grill until it’s fully assembled, the plastic protective film is removed from all stainless steel surfaces, and you’re ready to cook. See: “Startup Procedure” in the General Owners Guide for more details.
- Remove the Savorizer (item 2) and included grates (item 1) from inside the grill hood. To remove the Savorizer, cut the 4 zip ties holding it in place. Set aside grates and Savorizer until needed.
- Peel all plastic protective film from the grill. Be diligent about inspection as the protective film will be hard to remove once the grill is installed and first burned.

Installation
Step 2: Wiring
Follow the assembly steps listed below, prior to installation of the unit. - Remove two 5mm socket head screws from Display Housing shipping bracket using the 5mm allen wrench.

- Snip the zip tie that secures the Display Housing to the shipping bracket and dispose. This bracket is no longer needed.

- Mount the Display Housing perpendicular to the side panel over the Display Insert bracket using the two 5mm x 50mm socket head screws in the hardware kit. The original 5mm screws can be disposed of.

- Install Wifi Antenna (item 6) to bulkhead connector located on the right panel of the grill behind the Display Housing.
Installation
Step 3: Brackets
Follow the assembly steps listed below, prior to installation of the unit. The Unit can be supported by either the support brackets (items 13, 14, and 15) or by the four leveling feet (item 10). Refer to page 4 for item part numbers, descriptions, and quantities.
Note that the support brackets must be installed for either support method. - Remove the ash/grease drawers from the unit.
- Fasten the left and right support brackets (items 13 and 14) to the unit using the ten 1/4″-20 stainless steel hex bolts (item 5).
- Fasten the rear support bracket (item 15) to the left and right support brackets (items 13 and 14) with two #10-24 x 1/2″ long stainless steel screws (item 7).
- This step is only to be done if the grill is going to be supported by the four leveling feet (item 10) and not the support brackets. Thread the four leveling feet (item 10) into the bottom of the unit.
Optional: - To reduce the clearance to combustible materials, the optional heat shield kit should be used. Refer to page two to determine if the heat shield kit is required for your installation. Follow the assembly instructions provided with the heat shield kit to properly fasten the kit to the unit.
installation
Step 4: Grill Mounting - Place the unit into the island and position it to the desired depth. Ensure that the vent holes in the support brackets are unobstructed for properly air circulation.
- Locate the two mounting holes found in the back of the left and right support brackets (Items 13 and 14 ), and mark the hole locations onto the island’s countertop.

- Carefully slide the unit out of the island, exposing the marked holes on the countertop.
- Drill two 5/16″ holes into the countertop using a drill bit appropriate for the material of the countertop.
- Insert two concrete anchors (item 11 ), into the two 5/16″ holes.

- Slide the unit back into position, lining up the mounting holes in the left and right support brackets with the concrete anchors.
- Fasten the unit into place using the two 1 3/4″ long stainless steel screws (item 12). Do not over-tighten.
installation
Step 5: Final Assembly
Refer to page 4 for item part numbers, descriptions, and quantities. - Inset the three ash/grease drawers back into the unit.
- Place Savorizer (item 2) onto the left and right lower brackets found inside the unit.
- Place the main cook grates (item 1) onto the front and rear supports. Place the upper cook grate (item 1) onto the left and right upper brackets found inside the unit.
Vent holes on the mounting brackets must remain unobstructed for proper air circulation. Grill must be accessible (able to slide out) for any future repair or maintenance.
Refer to the Owners Guide for first time use instructions.
ON YOUR MEMPHIS GRILL:
- Register your account in the Memphis 3 app before proceeding.
- Navigate to the Settings Screen (far right icon) on the Memphis Grill.
- Press “WiFi” to navigate to the Connection Screen.
- Press “Connect WiFi” to start WiFi setup. The screen will display “Visible on Bluetooth” to show it has started.
ON YOUR PHONE OR TABLET: (In Memphis 3 App) - Log into Memphis 3 App using your account email and password.
- If this is your first time setting up a grill on the app, a window will pop up asking to “Provision Grill” or “Add Existing”. Press “Provision Grill”.
- If this isn’t the first grill being added to your account, select the settings gear in the top right corner and press “Add Grill” to get the popup.

- If this isn’t the first grill being added to your account, select the settings gear in the top right corner and press “Add Grill” to get the popup.
- Select your home WiFi network from the scan list shown, enter the WiFi password, and press “Provision”.
- The WiFi network must be a 2.4 GHz network to appear on the list
- Enter the Bluetooth Pin to complete provisioning.
- Once the connection is complete the Memphis Grill will display “Connection Successful” and update in WiFi screen information. The WiFi connection bars will also be displayed in the top right corner.
- After the WiFi is connected, a popup window will appear in the Memphis 3 app asking for the MAC address and Grill Name. This information can be found on the WiFi screen of the Memphis Grill. Press Settings Menu (Bottom right icon)-> WiFi-> WiFi screen.
Contact Memphis Technical Support if unable to connect.\
Memphis Controller Diagram 
| Part# | Name | Description |
| VG1966 | Auger Wiring Harness | 5 pin connector from auger motor to the logic board |
| VG1967 | Blower Wiring Harness | 4 pin connector from blower to the logic board |
| VG1968 | Display Wiring Harness | 9 pin connector from the LCD display to the logic board |
| VG1969(E) | US Power Cable (Euro) | Power cable that plugs into 120VAC (US) or 240VAC (EU) wall outlet |
| VG1970 | 10 Wiring Harness | 8 pin connector from 10 board to the logic board |
| VG1971 | Probe Jack Wiring Harness | 2 pin connector from meat probe jack to the 10 board |
| VG1972 | Push Button Wiring Harness | 4 pin connector from push button in the Display Housing to the 10 board |
| VG1973 | 5V Wiring Harness | 4 pin connector from power supply board to the logic board |
| VG1975 | Igniter Wiring Harness | 2 pin connector from igniter to the logic board |
| VG1976 | Auxiliary Fan Wiring Harness | 2 pin connector from Aux fan to logic board |
| VG1977 | RTD Wiring Harness | 2 Pin connector from RTD to the logic board. Connection to board is non-polarized |
| VG1978 | 24V Wiring Harness | 2 pin connector from power supply to logic board. Provides power to blower, aux fan, auger motor, cook lights and LCD |
| VG1979 | Cook Light Wiring Harness | 2 pin connector from cook lights to logic board |
| VG9026 | Wifi Jack | Single conductor jack installed in right panel connected to the logic board |
| VG0326 | Logic Board | Controls components related to smoking and cooking |
| VG0327 | 10 Board | Controls push button and meat probe jacks |
| VG0328 | Power Supply Board | Provides 24V DC and 5V DC power |
Memphis Component Diagram 
| Part# | Name | Description |
| VG9501 | Auger Motor | This component rotates the auger to supply fuel into the burn pot |
| VG1967 | Blower | This component pulls air from the lower cabinet and into the firebox for combustion |
| VG1968 | LCD | Used to display Grill information and change grill settings |
| VG1969(E) | US Power Cable (Euro) | Power cable that plugs into 120VAC (US) or 240VAC (EU) wall outlet |
| VG1971 | Probe Jack | This component is used to plug probes for monitoring meat temperature |
| VG1972 | Push Button | This component is used to set the grill to cooldown, reset the controller, or put the display to sleep |
| VG1975 | Igniter | This component provide the initial heat during startup |
| VG1976 | Auxiliary Fan | This component supplies cooling for the power supply and logic boards |
| VG1977 | RTD | This component is used by the controller to determine the cook chamber temperature |
| VG1980 | Cook Lights | These components are mounted inside the cook chamber to provide light to the cook area |
| VG9026 | WiFi Jack | Single conductor jack install in right panel connected to the logic board |
| VG9023 | WiFi Antenna | 2.4GHz WiFi antenna |
Memphis Fuse Diagram
Power Cable (VG1969) Fuse
- VG9021- Fuse Glass 250VAC SA 5 x 20 mm






Installation
Optional:
installation

installation
ON YOUR PHONE OR TABLET: (In Memphis 3 App)
Contact Memphis Technical Support if unable to connect.\



















