
DHW tanks


WARNING:
These installation instructions may only be used by trained fitters and service technicians. Read all instructions before installing. Perform steps exactly in the order given. Failure to follow these instructions can result in severe injury, death, or property damage.
Installation and Maintenance Instructions
Logalux
LT160/1
LT200/1
LT300/1
Read carefully before installation and servicing.
Safety Considerations and Symbol Descriptions
1.1 Key to symbols
WARNING Warnings in this document are indicated by a warning triangle printed against a gray background. Keywords at the start of a warning indicate the type and the seriousness of the ensuing risk if measures to prevent the risk is not taken.
The following keywords are defined and can be used in this document:
- NOTICE is used to address practices not related to personal injury.
- CAUTION indicates a hazardous situation that, if not avoided, could result in minor to moderate injury.
- WARNING indicates a hazardous situation that, if not avoided, could result in death or serious injury.
- DANGER indicates a hazardous situation that, if not avoided, could result in death or serious injury.
Important Information
This symbol indicates important information where there is no risk to people or property.
Additional symbols
| Symbol | Function |
| ▶ | Sequence of steps |
| → | Cross-reference to another part of the document |
| • | Listing/list entry |
| – | Listing/list entry (2nd level) |
Table 1
1.2 Safety instructions
Read all instructions before installing. Perform the steps in the indicated sequence. Has the DHW tank been inspected by a trained service technician at least once every year? Failure to comply with these instructions can result in severe, possibly fatal, personal injury as well as damage to property and equipment.
Installation and servicing
▶ Risk of fire from soldering and brazing!
Take appropriate safety measures when soldering and brazing as the thermal insulation are flammable.
▶ Ensure that only a licensed contractor installs or services the DHW tank.
▶ Use installation material with adequate temperature stability.
Forbidden:
Connection of the potentiostat for an impressed current anode to the magnesium anode installed in a storage tank is absolutely forbidden!
This would destroy the tank! The warranty would be voided.
Installation and commissioning
▶ Have an electrician connect the electrical system. The wiring diagram must be followed.
▶ Do not install this device in rooms with a high moisture level (e.g. bathrooms, saunas).
Function
▶ To ensure that the tank functions properly, heed these installation and maintenance instructions.
▶ Never close the blow-off line of the T&P safety valve.
For safety reasons, water may escape during heating.
Danger from electric shock
▶ Only electricians may work on the electrical system.
▶ Before performing electrical work, disconnect the power cable and secure the unit against unintentional reconnection.
▶ Ensure the system has been disconnected from the power supply.
Risk of scalding at the hot water draw-off point
▶ When the DHW tank is in operation, temperatures in excess of 122 °F (50 °C) can occur. To limit the temperature at the tap, install a thermostatic DHW mixing valve.
▶ Water heated for washing the laundry, dishes, and for other cleaning purposes can cause scalding and permanent injuries.
▶ Children, elderly, and mentally impaired persons are more likely to be permanently injured by hot water. Never leave such individuals in the tub or shower unattended under any circumstances. Children must not be allowed to operate hot water faucets themselves or to fill a bathtub.
▶ If the building has occupants in the above groups who operate hot water faucets, or state laws / local ordinances stipulate specific water temperatures, take the following precautions:
– Use the lowest possible temperature setting.
– To prevent scalding, install a tempering device, such as an automatic mixing valve, at a hot water tap or water heater. Select and install the automatic mixing valve in accordance with the valve manufacturer’s recommendations and instructions.
▶ Water exiting from drain valves can be extremely hot. To avoid injuries:
– Check that all connections are tight.
– Direct exiting water away from people.
▶ Measures must be taken to protect against excessive temperature and pressure! Installation of a T&P safety valve is required.
The chart below shows the relationship between water temperature and time until there is a risk of scalding. It can be used as the basis for determining the safest water temperature for your application.
| Temperature | Time to severe scalding |
| 120 °F (48 °C) | > 5 min |
| 125 °F (51 °C) | 1.5…2 min |
| 130 °F (54 °C) | ~ 30 s |
| 135 °F (57 °C) | ~10s |
| 140 °F (60 °C) | < 5 s |
| 145 °F (62 °C) | <3s |
| 150 °F (65 °C) | ~ 1.5 s |
| 155 °F (68 °C) | ~1s |
Table 2 Time-temperature relationship until there is a risk of scalding (approximate values)1)
1) Source: Moritz, A.R. and Henriques, F.C., Jr. (1947). Studies of thermal injury.
II. The relative importance of time and surface temperature in the causation of cutaneous burns, Am J of Pathol, 23, 695-720.
To protect against corrosion and ensure compliance with the rules for electrical safety, observe the following points:
▶ Use metal fittings for drinking water heating systems with plastic piping.
▶ Use only original accessories from the manufacturer.
▶ When the installation of the tank is complete, inspect the ground conductor (including metal fittings).
Maintenance
Customers are advised to:
▶ Sign a maintenance and inspection contract with an authorized contractor. Inspect and maintain the DHW tank as necessary on a yearly basis. Service as needed.
▶ Use only original spare parts.
Flooding
▶ After a flood, do not use the appliance if any part has been submerged. Damage to appliances that have been submerged can be quite severe and pose numerous safety risks.
▶ An appliance that was subject to flooding must be replaced.
1.3Instructions for the owner and operator
| WARNING: Risk of scalding at the taps! There is a risk of scalding at the taps if the tank temperature is set above 122 °F (50 °C) and during thermal disinfection. ▶ Advise users that they should draw off only mixed water. Otherwise, install a thermostatic DHW mixing valve. | |
| NOTICE: Risk of tank damage from excessively high pressure. ▶ Never plug the blow-off line of the T&P safety valve. |
▶ Explain the operation and handling of the heating system and DHW tank, making a particular point of safety-relevant features.
▶ Explain the function and how to check the T&P safety valve.
▶ Hand all enclosed documents over to the owner/operator.
▶ Recommendation for the user: Sign a maintenance and inspection contract with a licensed contractor.
▶ Highlight the following for the user:
– Water may be discharged from the T&P safety valve during heat up.
– The blow-off line on the T&P safety valve must always be kept open.
– Check that the T&P safety valve operates properly at least once yearly.
– The tank must be inspected annually and maintained as required.
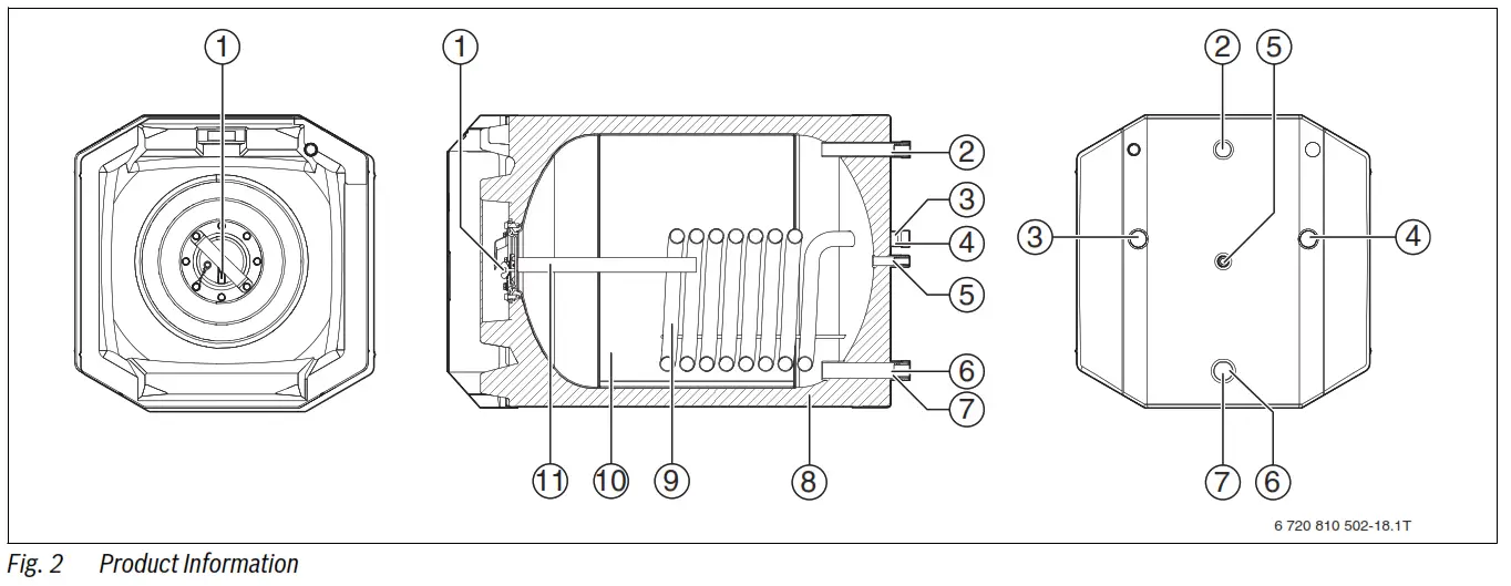
Product Information
2.1 Scope of delivery
•DHW tanks
• Installation and Maintenance Instructions
•B-KIT
[1] Tee 1″ x 1″ x ¾ ”
[2] Temperature and pressure relief valve
[3] Cap ¾ ”
[4] Drain valve
[5] Tee 1¼ ” x 1″ x ¾ ”
[6] Sensor Well
[7] Coupling ¾ ”
2.2 Designated use
The tank is designed for heating and storing drinking water. Please observe national, regional, and local codes, regulations, guidelines, and standards for drinking water.
Install this tank only in sealed unvented hydronic heating systems.
Any other purpose is considered improper use. Any resulting damage is excluded from the manufacturer’s warranty.
| Requirements for potable water | Unit | |
| Water hardness | ppm grain/US gallon °dH | ≥ 36 ≥ 2.1 ≥2 |
| pH value | ≥6.5…≤ 9.5 | |
| Conductivity | μS/cm | ≥130…≤ 1500 |
Table 3 Requirements for potable water

Item | Description |
| 1 | Inspection port for service and cleaning |
| 2 | DHW outlet |
| 3 | DHW tank return |
| 4 | DHW tank supply |
| 5 | Recirculation connection (or aquastat installation) |
| 6 | Tank drain |
| 7 | Coldwater inlet |
| 8 | Casing, painted sheet metal with rigid polyurethane foam insulation |
| 9 | Heat exchanger for heating by the boiler, smooth enameled tubing |
| 10 | Tank, enameled steel |
| 11 | Electrically insulated magnesium anode installed in inspection port |
Table 4 Product Information
2.4 Data plate
The data plate is located at the top rear of the DHW tank.
2.5 Pressure drop curve of the heating coil

[1] LT300/1
[2] LT200/1
[3] LT160/1
2.6 Technical Data
| Unit 1.LT160/1 LT200/1 | LT300/1 | |||
| Tank capacity | ||||
| Tank capacity (total) | gal (I) | 42.6 (160) | 52.5 (200) | 76 (300) |
| Maximum flow rate | GPM (I/min) | 4.3 (16) | 5.3 (20) | 7.6 (30) |
| Maximum hot temperature (on the domestic hot water side) | °F ( °C) | 203 (95) | 203 (95) | 203 (95) |
| Maximum operating pressure DHW | psi (bar) | 150 (10.3) | 150 (10.3) | 150 (10.3) |
| Stand-by heat loss (at 149 °F (65°C) hot water temperature and 68°F (20 °C) room temperature) | `F/h (0) | 0.6 (0.33) | 0.6 (0.33) | 0.5 (0.28) |
| DHW bilk performance ab | ||||
| Domestic cold water inlet temperature | F (t) | 50 (10) | 50 (10) | 50 (10) |
| Domestic hot water outlet temperature | °F ( °C) | 140 (60) | 140 (60) | 140 (60) |
| DHW temperature rise | °F ( °C) | 90 (50) | 90 (50) | 90 (50) |
| Heat exchanger supply temperature (heating water) | °F ( °C) | 176 (80) | 176 (801 | 176 (80) |
| Flow rate (heating water) | GPM (I/h) | 14 (3180) | 14 (3180) | 14 (3180) |
| Pressure drop (heating water) | for (mbar) | 2.4 (71) | 2.8 (84) | 3.2 (98) |
| Continuous rating | GPS (I/h) GPM (I/min) | 122 (461) 2.03 (7.7) | 128 (486) 2.13 (8.1) | 208 (787) 3.50 (13.1) |
| The amount that can be drawn off in the first hour | GPS (I/h) | 163 (614) | 176 (667) | 276 (1046) |
| Maximum heat input | BTU/hr (kW) | 76.086 (22.3) | 82.985 (24.3) | 126.323 (37.0) |
| Heat exchanger | ||||
| Content | gal (I) | 1.7 (6.4) | 1.9 (7.2) | 3.2 (12.1) |
| Surface area | ft` (m2) | 8.72 (0.81) | 10.01 (0.93) | 16.15 (1.50) |
| Maximum heating water temperature | °F ( °C) | 230 (110) | 230 (110) | 230 (110) |
| Max. operating pressure. heat exchanger | psi (bar) | 232 (16) | 232 (16) | 232 (16) |
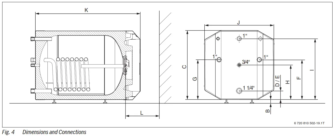
2.7 Physical and connection dimensions

| Item | Description | Unit | LT160/1 | LT200/1 | LT300/1 |
| A | Minimum floor weight carrying capacity | lb (kg) | 551 1/7 (250) | 690 (313) | 976 2/3 (443) |
| B | Clearance off floor | inch (mm) | 1/2 (12.5) | 1/2 (12.5) | 1/2 (12.5) |
| C | Height. storage tank without feet | inch (mm) | 253/4 (656) | 253/4 (656) | 253/4 (656) |
| D | Height. cold water inlet | inch (mm) | 31/4 (83) | 31/4 (83) | 31/4 (83) |
| E | Height. drain connection | inch (mm) | 3 1/4 (83) | 3 1/4 (83) | 31/4 (83) |
| f | Height, storage tank return connection | inch (mm) | 15 (378) | 15 (378) | 15 (378) |
| G | Height. storage tank supply connection | inch (mm) | 15 (378) | 15 (378) | 15 (378) |
| H | Height. recirculation connection | inch (mm) | 13 (328) | 13 (328) | 13 (328) |
| Height. hot water outlet | inch (mm) | 223/4 (578) | 223/4 (578) | 223/4 (578) | |
| J | width | inch (mm) | 26 (659) | 26 (659) | 26 (659) |
| K | Depth | inch (mm) | 39 (992) | 45 1/7 (1147) | 60 1/2 (1537) |
| L | Space required in front of storage tank for anode replacement | inch (mm) | 40 (1016) | 40 (1016) | 40 (1016) |
| V | Weight, empty | lb (kg) | 185 (84) | 233 1/2 (106) | 291 (132) |
| M | Weight. full (including heating coil contents) | lb (kg) | 551 1/7 (250) | 690 (313) | 976 2/3 (443) |
Table 6 Physical and connection dimensions
Standards, regulations, and directives
Observe all national, state, and local codes, regulations, and standards applicable to the installation and operation of the tank!
All electrical components must be approved for the USA and Canada.
Moving the tank
WARNING: Risk of injury from carrying heavy loads and inadequately securing loads for transport!
▶ Use suitable means of transportation, e. g. a dolly with strap.
▶ Secure the load against falling.
To protect the storage tank during transport:
▶ Move the DHW tank to its installation location while completely packed.
▶ Position the dolly at the back of the DHW tank.
▶ Secure the DHW tank to the means of transportation with a strap.
▶ Transport the DHW tank to the installation location.
▶ Remove the DHW tank from the packaging only at the installation location.

Installation
The tank is delivered fully assembled.
▶ Check that the tank is complete and undamaged.
5.1 Tank installation
5.1.1 Requirements for installation location
The material for positioning and fastening the floor standing boiler to the DHW tank is included in the scope of delivery of the boiler-storage tank connecting line.
NOTICE: Risk of damage from the inadequate load-bearing capacity of the supporting substructure or unsuitable floor surface!
▶ Ensure that the installation area is level and offers sufficient load-bearing capacity.
NOTICE: Risk of damage from stress cracking and corrosion!
▶ Position the DHW tank in a dry room free from the risk of freezing.
▶ Install the tank only in closed-loop, unvented hydronic heating systems.
▶ Never use open, vented expansion vessels for this DHW tank.
NOTICE: If leaks can result in property damage or a drain pan is required by law:
▶ Install an adequate drain pan.
▶ Follow the installation instructions of the drain pan manufacturer.
▶ Place the DHW tank on a plinth if there is a risk that water may collect at the installation site.
▶ The installation site must be a dry and frost-free room.
▶ Observe minimum wall clearances at installation location (→Fig. 6).
▶ Maintain a clearance of 2″ (51 mm) from heated pipes and combustible surfaces.
5.1.2 Wall clearances

5.1.3 Positioning the tank
▶ Cut the packaging film on the side opposite the “Tank top” sticker ( →Fig. 7).
▶ Remove only the film you have cut out.
▶ Thread the 4 adjustable feet supplied [1] ~ 0.6…1 inch into the threaded bushings provided for this purpose.
▶ Remove the wooden corner strips [3] from the tank underside.

[1] Adjustable feet
[2] Rear-end of the tank
[3] Wooden corner strips
[4] The front end of the tank
▶ Tip the DHW tank over on the edge of the pallet and set it on its feet ( →Fig. 8).
▶ Remove the remaining film, bottom, and top of the packaging and wooden pallet. Raise the front and rear of the DHW tank slightly if necessary to do this.

▶ Position the DHW tank on a level floor with adequate load-bearing capacity.
▶ By turning the adjustable feet, incline the tank slightly toward the back (→ Fig. 9).

▶ Maintain minimum wall clearances.
▶ Remove the caps from the connections.
▶ Use Teflon tape or Teflon cord to seal the connections. Do not use hemp to seal the connections.
5.2 Water connections
DANGER: Risk of injury from contaminated water!
Work carried out without due care for cleanliness contaminates the drinking water.
▶ Install in accordance with national standards and guidelines.
WARNING: Risk of fire from soldering and welding!
▶ Take appropriate protective measures when soldering and welding as the thermal insulation is combustible (for example, cover the thermal insulation).
▶ Check tank jacket for damage after completing work.
NOTICE: Water damage!
▶ Connect the drain to the bottom tank connection prior to filling the tank.
▶ Seal off all unused tank connections.
NOTICE: Risk of corrosion from damage to the enamel coating!
▶ Attach connections to the DHW tank only “hand tight”.
5.2.1 Connecting the tank on the waterside
System example with all recommended valves and shut-offs (→ Fig. 10).
▶ When sizing the heating system expansion vessel, take the volume of the heating coil in the tank into consideration.
▶ Install piping runs so that natural circulation is prevented. If necessary, install check valves.
▶ Install all pipes free of stress.
▶ Attach piping to the tank connections on-site.
▶ Check all connections for leaks.

AW DHW outlet
EK Coldwater inlet
EL Tank drain
EZ Recirculation inlet or aquastat installation
RS DHW tank return
VS DHW tank supply
[1] Storage tank
[2] Shutoff valve
[3] Safety valve
[4] Check valve
[5] Tank primary pump
[6] Recirculation pump (optional)
[7] Air eliminator (in main supply)
[8] Drain valve
[9] Backflow preventer
[10] Expansion vessel
5.2.2 Installing B-kit components

[1] Tee 1″ x 1″ x ¾ ” (2x) with P&T safety valve
[2] Aquastat (accessory)
[3] Tee with fill and drain valve
5.2.3 Installing a T&P safety valve (provided by the customer)
▶ Install a listed T&P safety valve that is approved for drinking water (≥ ¾ “)in the DHW outlet.
▶ The DHW tank must be installed with a new T&P safety valve.
▶ Ensure that the T&P valve is sized no smaller than the rated tank capacity.
▶ Observe the safety valve installation instructions.
▶ Observe the following when installing the blow-off line for the T&P valve:
– The blow-off line must be at least equal to the outlet cross-section of the safety valve.
– Route the blow-off line from the T&P valve directly to an adequate drain (maximum length 6 ft (2 m) with no more than two 90°elbows).
–The blow-off line must terminate at an adequate drain in order to prevent property damage from spillage.
– Check that the T&P safety valve operates properly at least once annually.
▶ Never plug the blow-off line. During heating, water may be discharged for operational reasons at any time.
5.3 Install a tank water temperature sensor (accessory) or aquastat (accessory)
The DHW tank temperature sensor or aquastat is used to measure and monitor the hot water temperature of the DHW tank.
DANGER: Risk of fatal injury from electric shock.
▶ Disconnect electrical power completely from the heating system and lock the disconnect switch to prevent accidental reconnection.
5.3.1 Logamatic controller
If a Logamatic controller is used:
▶ Install a DHW tank temperature sensor or an aquastat on the DHW tank to measure and monitor the hot water temperature.
5.3.2 Installing the DHW tank temperature sensor
Electrical installation and the temperature setting for the DHW tank temperature sensor or aquastat are described in the respective instructions included with the controller and/or boiler.
▶ Take the tank temperature sensor from the scope of delivery of the control panel (accessories).
▶ Remove the front cover of the tank ( Fig. 12 [1]).
▶ To do so, loosen the 4 screws [3] on the sides of the front cover.
▶ Remove the front cover of the tank [1] and the thermal insulation element [2].

[1] Front cover of the tank
[2] Thermal insulation element
[3] Attachment screws
A conduit is encapsulated in the tank’s foam thermal insulation; the DHW tank temperature sensor can be inserted here.
▶ Insert the DHW tank temperature sensor (→ Fig. 13 [1]) into the conduit [2] at the rear of the tank.
▶ For a type LT300/1: Extend sensor lead with an extension cable (not included in the scope of delivery) and push toward the front.
▶ Fit the temperature sensor to the sensor clamp as required by its shape.

[1] Temperature sensor
[2] Conduits
To ensure reliable temperature transmission:
▶ Ensure good contact with the sensor surfaces in the sensor clamp.
Electrical installation of the temperature sensor is described in the documents supplied with the controller and the boiler.
5.3.3 Installing the aquastat
▶ Install the brass sleeve NPT 3/4″ and sensor (→ Fig. 14 [1]) that come with the delivery onto the EZ connection.
▶ Insert the capillary sensor [3] of the aquastat [2] together with the
compensating spring [4] into the sensor well.
▶ Secure the aquastat in the sensor well.

[1] Sensor Well
[2] Aquastat
[3] Capillary sensor
[4] Compensating spring
[5] Attachment screws
5.3.4 Fitting the thermal insulation and front panel
▶ Place the thermal insulation element (→ Fig. 15 [2]) in front of the handhole cover.
▶ Replace the front cover of the tank [1] and fasten it with 4 screws [3].

[1] Front cover of the tank
[2] Thermal insulation element
[3] Attachment screws
Start-up procedure
NOTICE: Risk of equipment damage from excess pressure!
Excessive pressure can result in stress cracks in the enamel coating.
▶ Never plug the blow-off line of the T&P safety valve.
6.1 Commissioning the DHW tank
Have the installer of the heating system or a qualified contractor commission the equipment.
▶ Commission the boiler and additional accessories in accordance with the manufacturer’s instructions or the appropriate installation and operating instructions.
Use only drinking water to check the DHW tank for leaks.
The test pressure on the DHW side must not exceed 150 psi (10.3 bar).
To bleed the DHW tank:
▶ Open the highest faucet.
▶ Open the cold water inlet shut-off valve.
Before commissioning:
▶ Flush the DHW tank and piping thoroughly.
▶ Verify that the boiler, DHW tank, and piping are filled with water.
Open the air bleeder valve for this purpose.
▶ Check all connections, piping, and the inspection port for leaks.
Shutdown
NOTICE: Risk of tank damage from residual moisture!
To prevent corrosion from residual moisture:
▶ Dry the interior thoroughly (e. g. with hot air).
▶ Leave the handhole cover open.
7.1 Shutting down the tank
▶ Switch off the temperature controller at the control unit.
▶ Switch off the heating system emergency shutoff switch, or disengage the heating system circuit breaker.
WARNING: Risk of scalding from hot water!
▶ Let the tank cool down sufficiently.
▶ Close the cold water inlet shutoff valve.
▶ Drain the DHW tank by means of the drain valve. To do so, open the highest faucet.
▶ Close the shut-off valves to and from the boiler.
▶ Depressurize the heat exchanger.
▶ Drain and blow out the heat exchanger.
▶ Dry the interior thoroughly (e. g. with hot air).
▶ Leave the handhole cover open.
7.2 Shutting down the heating system when there is a risk of frost
▶ Shut down the heating system and the DHW tank as shown in
Chapter 7.1.
Fully drain the tank – even the lowest section of the tank and the heating coil.
Environmental Protection / Disposal
Environmental protection is one of the fundamental company policies of the Bosch Group.
Quality of products, efficiency, and environmental protection are equally important objectives for us. Environmental protection laws and regulations are strictly observed.
To protect the environment, we use the best possible technology and materials, taking into account economic points of view.
Packaging
For the packaging, we participate in the country-specific recycling systems, which guarantee optimal recycling. All packaging materials used are environmentally-friendly and recyclable.
Old electrical and electronic appliances
Electrical or electronic devices that are no longer serviceable must be collected separately and sent for environmentally compatible recycling (in accordance with the European Waste Electrical and Electronic
Equipment Directive).
To dispose of old electrical or electronic devices, you should use the return and collection systems put in place in the country concerned.
Maintenance
▶ Allow the DHW tank to cool down sufficiently before performing any maintenance.
▶ Remedy all faults immediately.
▶ Use original spare parts only!
▶ The tank must be inspected annually and maintained as required.
▶ Check the T&P safety valve annually.
9.1 Preparing the DHW tank for cleaning
WARNING: Risk of scalding from hot water!
Hot water can cause scalding.
▶ Prior to cleaning, allow the DHW tank to cool down sufficiently.
▶ Disconnect electrical power from the heating system.
▶ Remove the front cover of the tank (→ Fig. 12 [1], page 12).
▶ To do so, loosen the 4 screws [3] on the sides of the front cover.
▶ Remove the front cover of the tank [1] and the thermal insulation element [2].
▶ Drain the DHW tank.
▶ To do so, close the shut-off valve for the cold water inlet and the open drain valve.
▶ To vent the system, open the air vent valve or the highest faucet.

[1] Hex bolts
[2] Handhole cover
[3] Handhole cover gasket
[4] Magnesium anode
▶ Unscrew the hex bolts (→Fig. 16 [1]) from the handhole cover [2].
▶ Remove the handhole cover together with the handhole cover gasket [3] and the magnesium anode [4] from the DHW tank.
9.2 Descaling/cleaning the tank
▶ Check the DHW tank interior for scale deposits (calcium).
NOTICE: Risk of tank damage due to damaged enamel.
▶ Never use hard objects or tools with sharp edges to clean the interior of the tank
If scale deposits have formed in the DHW tank:
▶ Hose down the interior of the tank with a “high-pressure” (~ 58…72.5 psi (~ 4…5 bar)) a jet of cold water (→ Fig. 17).
You can increase the cleaning effect by heating up the heat exchanger in the drained tank before spraying it out.
The thermal shock effect releases scale deposits more easily from the coil-type heat exchanger.
▶ Use a wet/dry vacuum with a plastic suction pipe to remove any residues.
If extremely encrusted scale deposits have formed in the DHW tank:
▶ Hire someone to perform the chemical cleaning.
WARNING: Danger from improper use of the cleanser.
▶ Have a qualified contractor carry out the chemical cleaning operation.
NOTICE: The enamel layer may be damaged if the acid is too strong.
▶ Have a qualified contractor carry out the chemical cleaning operation.

9.3 Checking the magnesium anode
The magnesium anode is a sacrificial anode that is consumed during the operation of the DHW tank.
If the magnesium anode is not serviced properly, the warranty is void.
Annual service records must be kept in a safe location and submitted together with the original purchase receipt in the event of a warranty claim.
To determine whether the magnesium anode must be replaced:
▶ Check the magnesium anode annually.
The surface of the magnesium anode must be free of deposits. The magnesium anode must be replaced when:
- Deposits have formed
- The surface area has increased as the result of deposits
- Diameter is reduced to < 5/8″ (15 mm)
Certain installations may require more frequent replacement of the magnesium anode rod: - Recirculation connection
- Poor water quality
- Galvanic/electrolytic corrosion
- High flow rate
In the event of poor water quality, it is recommended that a water treatment professional be consulted for water treatment options.
Never bring the magnesium anode surface in contact with oil or grease.
▶ Keep everything clean.
9.3.1 Testing with the anode tester
We recommend that the protection current be measured annually with the aid of an anode tester. The anode tester is available as an accessory.
Follow the operating instructions for the anode tester.
Insulated installation of the magnesium anode is a prerequisite for use of an anode tester to measure the protection current (→Fig. 18).
The protection current can be measured only with a water-filled storage tank.
▶ Ensure proper contact of the connecting terminals.
▶ Connect terminals to shiny metal surfaces only.
▶ Loosen the ground wire [6] (contact cable between the sacrificial anode and storage tank) at one of the two connection points.
▶ Attach red cable [1] to the sacrificial anode.
▶ Attach black cable [7] to the storage tank.
▶ If the ground wire has a plug: Attach red cable [1] to the threads of the magnesium anode [5]. Remove the ground wire [6] for the measurement.
▶ Replace magnesium anode if the anode current is < 0.3 mA.
▶ After every test, it is essential that the ground wire [6] always be reattached properly.

[1] Red cable
[2] Screw for the ground wire
[3] Handhole cover
[4] Magnesium anode
[5] Thread
[6] Ground wire
[7] Black cable
9.3.2 Visual check
Never bring the magnesium anode surface into contact with oil or grease.
▶ Keep everything clean.
▶ Prepare the DHW tank for removal of the handhole cover (→ Chapter 9.1, page 15).
▶ Remove the handhole cover (→Fig. 16, page 15).
▶ Check the magnesium anode.
If the diameter is reduced to < 5/8″ (15 mm):
▶ Replace the magnesium anode.
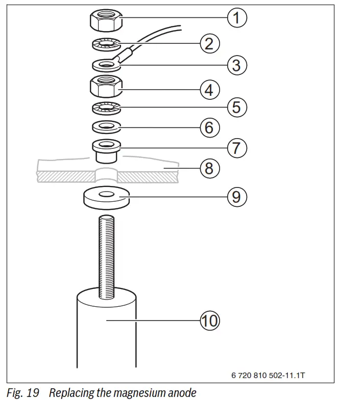
9.3.3 Replacing the magnesium anode
▶ Unscrew the M8 nut (→Fig. 19 [1]) to release the eyelet of the ground wire [3].
▶ Unscrew the M8 nut [4].
▶ Remove the magnesium anode [10] from the handhole cover [8].
▶ Replace the magnesium anode.
▶ Fit the new magnesium anode together with all small parts supplied with it as shown in Fig. 19.

[1] M8 Nut
[2] Serrated washer
[3] Eyelet on the ground wire
[4] M8 Nut
[5] Serrated washer
[6] Dished washer
[7] Insulating sleeve
[8] Handhole cover
[9] Gasket
[10] Magnesium anode
9.4 Startup after maintenance
NOTICE: Risk of system damage from faulty gasket!
To prevent leaks on the DHW tank:
▶ Use a new handhole cover gasket [4] after every maintenance.
▶ Refit handhole cover (→Fig. 20 [3]) with a new handhole cover gasket [4].
▶ Attach the eyelet of the ground wire [2] with a hex bolt [1] and a serrated washer.
NOTICE: Risk of system damage from corrosion.
To ensure that the magnesium anode functions properly:
▶ Fasten the eyelet of the ground wire to the handhole cover with a hex bolt to ensure good electrical conductivity.
▶ Thread hex bolts [1] into handhole cover [3] “hand-tight”.
▶ Then use a torque wrench to tighten the hex bolts [1] to 18-22 ft-lbs/25-30 Nm.
▶ Fill the DHW tank and restart the heating system.
▶ Check all connections and the handhole cover for leaks.

[1] Hex bolts
[2] Eyelet on the ground wire
[3] Handhole cover
[4] Handhole cover gasket
▶ Reinstall the thermal insulation element and front cover of the tank (→Chapter 5.3.4, page 13).
Spare Parts

| Item | Designation | Order no. | Comments |
| 1 | Front LT160 – LT300 | 5 236 320 | No longer available |
| 1 | Front LT160/1 – LT300/1 | 63 029 650 | |
| 3 | Sheet metal screw St 4.2×13 (10x) | 7 747 027 696 | |
| 5 | Blanking plate 28x61x6 | 3 869 300 | |
| 6 | Thermometer 30…80 degrees C | 5 236 200 | |
| 7 | Angle bracket G115/3105 | 8 718 570 813 0 | |
| 8 | Washer DIN125 10.5×2 (10x) | 8 718 571 270 0 | |
| 9 | Screw 1SO4017 M10x30 A3K (10x) | 7 747 022 050 | |
| 10 | Hexagon screw ISO4014 M10x55 8.8 A3K | 5 090 100 | |
| 11 | Threaded stud IS07434 M10x30 14H A3K | 5 584 628 | |
| 12 | Device feet M10x51 mm (Set of 4 pcs.) | 5 236 440 | |
| 13 | Thermal insulation D260 inspection port | 8 718 572 451 0 | |
| 14 | Angle profile rails G215/LT160 | 5 261 230 | Only for: LT160/1 NPT, LT160/1 NPT V1 |
| 14 | Angle profile rails G215/LT200 | 5 261 232 | Only for: LT200/1 NPT, LT200/1 NPT V1 |
| 14 | Angle profile rails G215/LT300 | 5 261 234 | Only for: LT300/1 NPT, LT300/1 NPT V1 |
| 15 | Sleeve R3/4×35 | 63 017 919 | |
| 15 | Sleeve R1x35 | 63 017 920 | |
| 15 | Sleeve R1 1/4×35 | 63 017 921 |
Table 7 Spare parts for DHW tank Logalux LT160/1 – LT300/1 “US”

| Item | Designation | Order no. | Comments |
| 2 | Front LT160/1 – LT300/1 | 63 029 650 | |
| 3 | Sheet metal screw St 4.2x 13 (10x) | 7 747 027 696 | |
| 5 | Blanking plate 28x61x6 | 3 869 300 | |
| 6 | Thermometer 30…80 degrees C | 5 236 200 | |
| 7 | Angle bracket G115/5105 | 8 718 570 813 0 | |
| 8 | Washer DIN125 10.5×2 (10x) | 8 718 571 270 0 | |
| 9 | Screw 1504017 M10x30 A3K (10x) | 7 747 022 050 | |
| 10 | Hexagon screw ISO4014 M 10×55 8.8 A3K | 5 090 100 | |
| 12 | Device feet M10x51 mm (Set of 4 pc.) | 5 236 440 | |
| 13 | Thermal insulation D260 inspection port | 8 718 572 451 0 | |
| 14 | Angle profile rails G215/LT160 | 5 261 230 | Only for: LT160/1 NPTV2 |
| 14 | Angle profile rails G215/LT200 | 5 261 232 | Only for: LT200/1NPT V2 |
| 14 | Angle profile rails G215/LT300 | 5 261 234 | Only for: LT300/1 NPTV2 |
| 15 | Sleeve R3/4×35 | 63 017 919 | |
| 15 | Sleeve R1x35 | 63 017 920 | |
| 15 | Sleeve R1 1/4×35 | 63 017 921 |
Table 8 Spare parts for DHW tank Logalux LT160/1 – LT300/1 “US”

| Item | Designation | Order no. | Comments |
| 1 | Sacrificial anode D33x400 mm | 8 718 571 568 0 | Only for: LT160/1 NPT, LT160/1 NPT V1, LT160/1 NPT V2 |
| 1 | Sacrificial anode D33x500 mm | 8 718 571 569 0 | Only for: LT200/1 NPT, LT200/1 NPT V1, LT200/1 NPT V2 |
| 1 | Sacrificial anode D33x700 mm | 8 718 571 570 0 | Only for: LT300/1 NPT, LT300/1 NPT V1, LT300/1 NPT V2 |
| 2 | Mounting kit, magn. anodes insulated 10 pc. | 5 264 278 | |
| 3 | Thread-forming screws M10x25 set (8x) | 7 747 005 744 | |
| 4 | Ground wire insulated for sacrificial anode | 63 037 168 | |
| 5 | Manhole cover D210 mm and stud bolt | 63 014 370 | Only for: LT160/1 NPT, LT160/1 NPT V1(<06/2007) LT200/1 NPT, LT200/1 NPT V1(<06/2007) |
| 5 | Manhole cover DN120 LT/L | 7 747 004 730 | Only for: LT160/1 NPT V2 (>07/2007) |
| 6 | Sealing ring 120x152x10 mm | 63 043 454 | Only for: LT160/1 NPT, LT160/1 NPT V1(<06/2007) LT200/1 NPT, LT200/1 NPT V1(<06/2007) |
| 6 | 0-ring 120.02×6.99-N | 8 718 572 538 0 | Only for: LT160/1 NPT V2 (>07/2007) |
| 11 | Support contact sensor | 63 038 417 | |
| 13 | Sensor extension cable kit for LT300 | 5 118 760 | Only for: LT300/1 NPT, LT300/1 NPT V1, LT300/1 NPT V2 |
Table 9 Spare parts for DHW tank Logalux LT160/1- LT300/1 “US”

The United States and Canada
Bosch Thermotechnology Corp.
50 Wentworth Avenue
Londonderry, NH 03053
Tel. 603-552-1100
Fax 603-965-7581
www.buderus.us
U.S.A.
Products manufactured by
Bosch Thermotechnik GmbH
Sophienstrasse 30-32
D-35576 Wetzlar
www.bosch-thermotechnology.com
Bosch Thermotechnology Corp. reserves the right to make changes without notice due to continuing engineering and technological advances.



















