
MXZ-2C20NAHZ3 Split-Type Air-Conditioner
Instruction Manual
Split-type Air-Conditioner
MXZ-2C2ONAHZ3
MXZ-3C24NAHZ3
MXZ-3C3ONAHZ3
MXZ-5C42NA3
MXZ-2C20NAHZ3 Split-Type Air-Conditioner
Installation Manual
For INSTALLER
- This manual only describes the installation of outdoor unit. When installing the indoor unit, refer to the installation manual of indoor unit. Any structural alterations necessary for installation must comply with local building code requirements.
Required Tools for Installation
| Phillips screwdriver | 5132 in. (4 mm) hexagonal |
| Level | wrench |
| Scale | Flare tool for R410A |
| Utility knife or scissors | Gauge manifold for R410A |
| Torque wrench | Vacuum pump for R410A |
| Wrench (or spanner) | Charge hose for R410A Pipe cutter with reamer |
BEFORE INSTALLATION
1-1. THE FOLLOWING SHOULD ALWAYS BE OBSERVED FOR SAFETY
- Be sure to read “THE FOLLOWING SHOULD ALWAYS BE OBSERVED FOR SAFETY” before installing the air conditioner.
- Be sure to observe the warnings and cautions specified here as they include important items related to safety.
- After reading this manual, be sure to keep it together with the OPERATING INSTRUCTIONS for future reference.
WARNING (Could lead to death or serious injury, etc.)
- Do not install the unit by yourself (user). Incomplete installation could cause fire or electric shock, injury due to the unit falling, or leakage of water. Consult the dealer from whom you purchased the unit or a qualified installer.
- Follow the instructions detailed in the installation manual. Incomplete installation could cause fire or electric shock, injury due to the unit falling, or leakage of water.
- When installing the unit, use appropriate protective equipment and tools for safety. Failure to do so could cause injury.
- Install the unit securely in a place that can bear the weight of the unit. If the installation location cannot bear the weight of the unit, the unit could fall causing injury.
- Perform electrical work according to the installation manual and be sure to use an exclusive circuit. Do not connect other electrical appliances to the circuit. If the capacity of the power circuit is insufficient or there is incomplete electrical work, it could result in a fire or an electric shock.
- Ground the unit correctly. Do not connect the ground wire to a gas pipe, water pipe, lightning rod or telephone ground. Defective grounding could cause electric shock.
- Do not damage the wires. Damaged wires could cause fire.
- Be sure to shut off the main power when setting up the indoor P.C. board or wiring. Failure to do so could cause electric shock.
- Use the specified wires to securely connect the indoor and outdoor units. Attach the wires firmly to avoid applying stress to the terminal block. Improper connection could cause fire.
- Do not install the unit in a place where flammable gas may leak. If gas leaks and accumulates around the unit, it could cause an explosion.
- Do not use intermediate connection of the power cord or the extension cord. Do not connect many devices to one AC outlet. It could cause a fire or an electric shock.
- Use the parts provided or specified parts for the installation work. The use of defective parts could cause an injury or leakage of water due to a fire, an electric shock, the unit falling, etc.
- When plugging the power supply plug into the outlet, make sure that there is no dust, blockage, or loose parts both in the outlet and on the plug. Verify that the power supply plug is completely in the outlet. If there is dust, blockage, or loose parts on the power supply plug or the outlet, it could cause electric shock or fire. If loose parts are found on the power supply plug, replace it.
- Securely attach the electrical cover to the indoor unit and the service panel to the outdoor unit. If the electrical cover of the indoor unit and/or the service panel of the outdoor unit are not attached securely, dust, water, etc. could collect in the unit and could cause a fire or an electric shock.
- When installing, relocating, or servicing the unit, make sure that no substance other than the specified refrigerant (R410A) enters the refrigerant circuit. Any presence of foreign substance such as air can cause abnormal pressure rise and may result in explosion or injury. The use of any refrigerant other than that specified for the system will cause mechanical failure, system malfunction, or unit breakdown. In the worst case, this could lead to a serious impediment to securing product safety.
- Do not discharge the refrigerant into the atmosphere. Check that the refrigerant gas does not leak after installation has been completed. If refrigerant leaks during installation, ventilate the room. If refrigerant comes in contact with a fire, harmful gas could be generated. If refrigerant gas leaks indoors, and comes into contact with the flame of a fan heater, space heater, stove, etc., harmful gases will be generated.
- Use appropriate tools and piping materials for installation. The pressure of R410A is 1.6 times higher than R22. Not using the appropriate tools and materials, or improper installation could cause the pipes to burst causing an injury.
- When pumping down the refrigerant, stop the compressor before disconnecting the refrigerant pipes. If the refrigerant pipes are disconnected while the compressor is running and the stop valve is open, air could be drawn in and the pressure in the refrigeration cycle could become abnormally high, causing the pipes to burst.
- When installing the unit, securely connect the refrigerant pipes before starting the compressor. If the compressor is started before the refrigerant pipes are connected and the stop valve is open, air could be drawn in and the pressure in the refrigeration cycle could become abnormally high, causing the pipes to burst.
- Fasten a flare nut with a torque wrench as specified in this manual. If fastened too tight, a flare nut could break and cause refrigerant leakage.
- Install the unit according to national wiring regulations.
- Be sure to install a Ground Fault Interrupt (GFI) circuit breaker. Failure to install a Ground Fault Interrupt (GFI) circuit breaker may result in electric shock or fire.
- When opening or closing the valve below freeing temperatures, refrigerant may spurt out from the gap between the valve stem and the valve body, resulting in injuries.
CAUTION (Could lead to serious injury w hen operated incorrectly.)
- Perform the drainage/piping work securely according to the installation manual. If there is defect in the drainage/piping work, water could drip from the unit, and damage household items.
- Do not touch the air inlet or the aluminum fins of the outdoor unit. This could cause injury.
- Do not install the outdoor unit where small animals may live. If small animals enter the unit and damage its electrical parts, it could cause a malfunction, smoke emission, or fire. Keep the area around the unit clean.
1-2. SPECIFICATIONS
| Model | Power supply | Pipe length and height difference *1, *2, *3, *4, *5, *6, *8, *9 | ||||
| Rated Voltage | Frequency | Max. pipe length per indoor unit / for multi-system | Max. height difference | Max. no. of bends per indoor unit / for multi system | Refrigerant adjustment A *7 | |
| MXZ-2C20NAHZ3 | 208 / 230 V | 60 Hz | 82 ft. (25 m) / 164 ft. (50 m) | 49 ft. (15 m) | 25 / 50 | 1.08 oz. each 5 ft. (20 g/m) |
| MXZ-3C24NAHZ3 MXZ-3C30NAHZ3 | 82 ft. (25 m) / 230 ft. (70 m) | 25 / 70 | ||||
| MXZ-5C42NA3 | 82 ft. (25 m) / 262 ft. (80 m) | 25 / 80 | ||||
*1 Never use pipes with thickness less than specified. The pressure resistance ill be insufficient.
*2 Use a copper pipe or a copper-alloy seamless pipe.
*3 Be careful not to crush or bend the pipe during pipe bending.
*4 Refrigerant pipe bending radius must be 4 in. (100 mm) or more.
*5 Insulation material : Heat resisting foam plastic 0.045 specific gravity
*6 Be sure to use the insulation of specified thickness. Excessive thickness may cause incorrect installation of the indoor unit and insufficient thickness may cause dew droppage.
*7 If pipe length exceeds 98 ft. (30 m), additional refrigerant (R410A) charge is required. (No additional charge is required for pipe length less than 98 ft. (30 m).)
Additional refrigerant (ft.) ![]()
Additional refrigerant (m) = A × (pipe length (m) – 30)
*8 The piping specification table does not provide a minimum line set length.
However, indoor units itch connected piping length less than 10 ft. (3m) could produce intermittent noise during normal system operation in very quiet environments. Please be aw are of this important information hen installing and locating the indoor unit within the conditioned space.
*9 hen connecting to PAA-A18 units, be sure to provide the total piping length of 33 ft (10 m) or more and change the gas pipe diameter to ø5/8 inch (15.88 mm).
1-3. SELECTING OPTIONAL DIFFERENT-DIAMETER JOINTS
If the diameter of connection pipe does not match the port size of outdoor unit, use optional different-diameter joints according to the following table.
| Port size of outdoor unit | Optional different-diameter joints (port size of outdoor unit → diameter of connection pipe) | |||
| MXZ-2C | MXZ-3C | MXZ-5C | Liquid / Gas | 1/4 (6.35) → 3/8 (9.52) : PAC-493PI 3/8 (9.52) → 1/2 (12.7) : MAC-A454JP-E 3/8 (9.52) → 5/8 (15.88) : PAC-SG76RJ-E 1/2 (12.7) → 3/8 (9.52) : MAC-A455JP-E 1/2 (12.7) → 5/8 (15.88) : MAC-A456JP-E Refer to the installation manual of indoor unit for the diameter of connection pipe of indoor unit. |
| – | A UNIT | A UNIT | 1/4 (6.35) / 1/2 (12.7) | |
| A, B UNIT | B – C UNIT | B – E UNIT | 1/4 (6.35) / 3/8 (9.52) | |
1-4. SELECTING THE INSTALLATION LOCATION
- Where it is not exposed to strong wind. If the outdoor unit is exposed to a and during defrosting, the defrosting time will be longer.
- here airflow is good and dustless.
- here rain or direct sunshine can be avoided as much as possible.
- Where neighbours are not annoyed by operation sound or hot (or cool) air.
- here rigid all or support is available to prevent the increase of operation sound or vibration.
- Where there is no risk of combustible gas leakage.
- When installing the unit, be sure to secure the unit legs.
- Where it is at least 10 ft. (3 m) aw ay from the antenna of TV set or radio. Operation of the air conditioner may interfere with radio or TV reception in areas here reception is ea. An amplifier may be required for the affected device.
- Install the unit horizontally.
- Please install it in an area not affected by snow fall or blowing snow . In areas itch heavy son, please install a canopy, a pedestal and/or some baffle boards.
Note:
It is advisable to mane a piping loop near outdoor unit so as to reduce vibration transmitted from there.
Note:
When operating the air conditioner in low outside temperature, be sure to follow the instructions described below .
- Never install the outdoor unit in a place here its air inlet/outlet side may be exposed directly to wind.
- To prevent exposure to wind, install the outdoor unstitch its air inlet side facing the w all.
- To prevent exposure to wind, it is recommended to install a baffle board on the air outlet side of the outdoor unit. Avoid the following places for installation here air conditioner trouble is liable to occur.
- Where flammable gas could lea.
- Where there is much machine oil.
- Salty places such as the seaside.
- Where sulfide gas is generated such as hot spring, sage, aster alter.
- Where there is high-frequency or w ireless equipment.
- Where there is emission of high levels of VOCs, including phthalate compounds, formaldehyde, etc., which may cause chemical cracking.
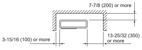
FREE SPACE REQUIRED AROUND OUTDOOR UNIT
- Obstacles above
When there is no obstacle in front and on the sides of the unit, it is allowed to install the unit where an obstacle is above the unit only if the space shown in the figure is provided.
- Front (blowing) side open
As long as space indicated in the figure is provided, it is allowed to install the unit where obstacles are behind and on the sides of the unit. (No obstacle above the unit)
- Obstacles in front (blowing) only
When there is an obstacle in front of the unit as shown in the figure, open space above, behind, and on the sides of the unit is required.
- Obstacles in front and behind
The unit can be used by attaching an optional outdoor blowing guide (PAC-SH96SG-E) (but both sides and top are open).
- Obstacles in front, behind and on side(s)
• When installing the unit in an area that is enclosed with walls such as a verandah, be sure to have enough space as shown below. In this case, the air conditioning capacity and power consumption might deteriorate.
• When installing two or more units, do not install the units in front or behind each other.
- Service space
Provide space for service and maintenance as shown in the figure.
1-5. INSTALLATION DIAGRAM


PARTS TO BE PROVIDED AT YOUR SITE
| (A) | Power supply cord* | 1 |
| (B) | Indoor/outdoor unit connecting wire | 1 |
| (C) | Extension pipe | 1 |
| (D) | Wall hole cover | 1 |
| (E) | Piping tape | 1 |
| (F) | Extension drain hose (or soft PVC hose, 19/32 in. (15 mm) inner diameter or hard PVC pipe VP16) | 1 |
| (G) | Refrigeration oil | Little amount |
| (H) | Putty | 1 |
| (I) | Pipe fixing band | 2 to 7 |
| (J) | Fixing screw for (I) | 2 to 7 |
| (K) | Wall hole sleeve | 1 |
* Note:
Place indoor/outdoor unit connecting wire (B) and power supply cord (A) at least 3 ft. (1 m) away from the TV antenna wire.
The –41y” for (B) to (K) in the above table is quantity to be used per indoor unit.
Units should be installed by licensed contractor according to local code requirements.
OUTDOOR UNIT INSTALLATION
2-1. INSTALLING THE UNIT
- Be sure to fix the unit’s legs with bolts when installing it.
- Be sure to install the unit firmly to ensure that it does not fall by an earthquake or a gust.
- Refer to the figure in the right for concrete foundation.
- In case of MXZ-2C2ONAHZ3, MXZ-3C24/30NAHZ3, do not use the drain socket and the drain caps.
- In case of MXZ-5C42NA3, do not use the drain socket and the drain caps in the cold region. Drain may freeze and it makes the fan stop.

2-2. CONNECTING WIRES FOR OUTDOOR UNIT
- Be sure to use special circuits for room air conditioner.
- Wiring work should be based on applicable technical standards.
- Wiring connections should be made following the diagram.
- Screws should be tightened so they won’t loosen.
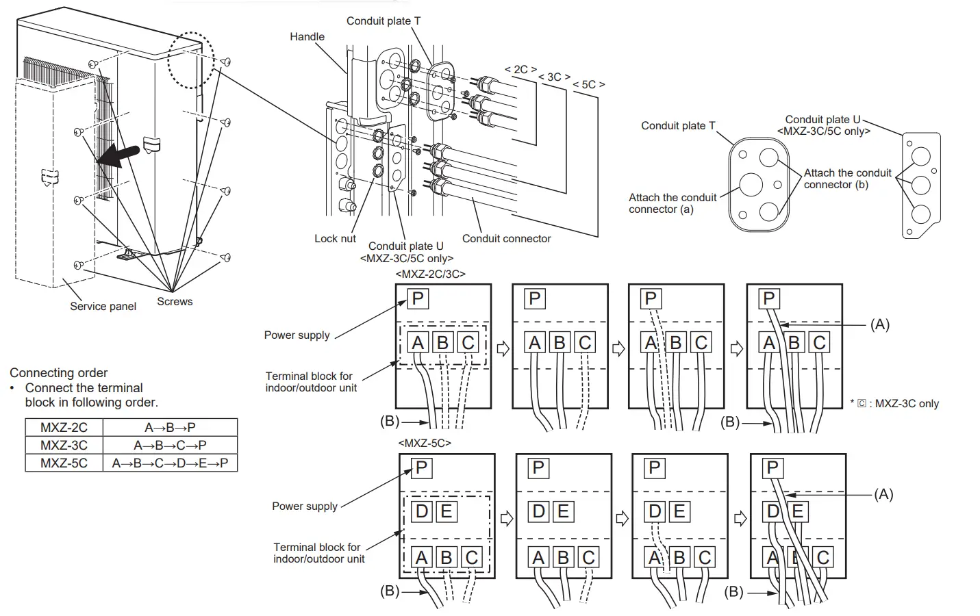
- Remove the service panel.
- Remove the conduit plate.
- Attach the conduit connector to conduit plate with lock nut then secure it to the unit with screws. Be sure to attach the conduit connectors in the correct locations according to their sizes.
- Connect ground wires to the TB bed.
- Loosen terminal screw, and connect indoor/outdoor unit connecting wire (B) from the indoor unit correctly on the terminal block. Be careful not to make miswiring. Fix the wire to the terminal block securely so that no part of its core is appeared, and no external force is conveyed to the connecting section of the terminal block.
- Firmly tighten the terminal screws to prevent them from loosening. After tightening, pull the wires lightly to confirm that they do not move.
- Perform 5) and 6) for each indoor unit.
- Connect power supply cord (A).
- Close the service panel securely. Make sure that 3-2. PIPE CONNEC-TION is completed.
| ELECTRICAL SPECIFICATIONS | |||||
| OUTDOOR UNIT | MXZ-2C20NAHZ3 | MXZ-3C24NAHZ3 | MXZ-3C30NAHZ3 | MXZ-5C42NA3 | |
| Power supply (V, PHASE, Hz) | 208/230, 1, 60 | ||||
| Max. Fuse size (time delay) (A) | 40 | ||||
| Min. Circuit Ampacity (A) | 28.9 | 29.9 | 29.9 | 31.9 | |
| Fan motor (F.L.A) | 1.90 | ||||
| Com- pressor | (R.L.A) | 20 | |||
| (L.R.A) | 28.8 | ||||
| Control voltage | Indoor unit-Remote controller : (Wireless) Indoor unit-Outdoor unit : DC 12-24 V | ||||
| Conduit connector | Trade size of conduit | |
| (a) | Power supply | 3/4 in. |
| (b) | Indoor/outdoor | 1/2 in. |
Note:
- Removing the handle increases the effectiveness of the wiring operation.
- Be sure to reinstall the handle.

Remark:
* A disconnect switch should be required. Check the local code.
** Use a ring tongue terminal in order to connect a ground w ire to terminal.
- Connect wires to the matching numbers of terminals.
- Be sure to attach each screw to its correspondent terminal when securing the cord and/or the wire to the terminal block.
CONNECTING WIRES AND CONNECTING GROUND WIRE
- Use solid conductor Min. AWG14 or stranded conductor Min. AWG14.
- Use double insulated copper wire with 600 V insulation.
- Use copper conductors only.
- Follow local electrical code.
POWER SUPPLY CABLE
Use solid or stranded conductor Min. AWG8. Use copper conductors only.
- Follow local electrical code. GROUND WIRE
- Use solid or stranded conductor Min. AWG8.
- Use copper conductors only. * Follow local electrical code.
WARNING: - Use the indoor/outdoor unit connecting wire that meets the Standards to connect the indoor and outdoor units and fix the wire to the terminal block securely so that no external force is conveyed to the connecting section of the terminal block. An incomplete connection or fixing of the wire could result in a fire.
For future servicing, give extra length to the connecting wires.
- Turn on the main power when the ambient temperature is -4°F (-20°C) or higher.
- Under conditions of -4°F (-20°C), it needs at least 4hr stand by before the units operate in order to warm the electrical parts.
FLARING WORK AND PIPE CONNECTION
3-1. FLARING WORK
- Cut the copper pipe correctly with pipe cutter. (Fig. 1, 2)
- Completely remove all burrs from the cut cross section of pipe. (Fig. 3)
• Aim the copper pipe downward while removing burrs to prevent burrs from dropping in the pipe. - Remove flare nuts attached to indoor and outdoor units, then put them on pipe having completed burr removal. (Not possible to put them on after flaring work.)
- Flaring work (Fig. 4, 5). Firmly hold copper pipe in the dimension shown in the table. Select A inch (mm) from the table according to the tool selected.
- Check
• Compare the flared work with Fig. 6.
• If flare is noted to be defective. cut off the flared section and do flaring work again.


3-2. PIPE CONNECTION
• The connected pipe size differs depending the models and the capacities of indoor units.
| Indoor unit capacity | 06 ~ 09 | 12 | 15 ~ 18 | 24 | |
| Indoor unit: M series | Liquid pipe size | ø6.35 | ø6.35 | ø6.35 | ø9.52 *1 |
| Gas pipe size | ø9.52 | ø9.52 | ø12.7 | ø15.88 | |
| Indoor unit: S series | Liquid pipe size | ø6.35 | ø6.35 | ø6.35 | ø9.52 |
| Gas pipe size | ø9.52 | ø9.52 | ø12.7 | ø15.88 | |
| Indoor unit: P series *2 | Liquid pipe size | ø6.35 | ø6.35 | ø6.35 | ø9.52 |
| Gas pipe size | ø9.52 | ø12.7 | ø12.7 *3 | ø15.88 | |
*1 When the diameter of connection pipe does not match the port size of the indoor unit, use an optional different-diameter joint.
*2 Refer to the installation manual of P series for details of MVZ-A and SVZ-KP.
*3 To connect the PAA-A18 unit, change the gas pipe diameter to 05/8 inch (15.88 mm).
• Use tightening torque table above as a guideline for indoor unit side union joint section, and tighten using two wrenches. Excessive tightening damages the flare section.
1) Apply a thin coat of refrigeration oil (G) to the flared ends of the pipes and the pipe connections of the outdoor unit. Do not apply refrigeration oil on screw threads. Excessive tightening torque will result in damage on the screw.
2) For connection, first align the center, then tighten the first 3 to 4 turns of flare nut by hand.
3) Tighten the flare nut with a torque wrench as specified in the table.
• Over-tightening may cause damage to the flare nut, resulting in refrigerant leakage.
• Be sure to wrap insulation around the piping. Direct contact with the bare piping may result in burns or frostbite.
3-3. INSULATION AND TAPING
- Cover piping joints with pipe cover.
- For outdoor unit side, surely insulate every piping including valves.
- Using piping tape (E), apply taping starting from the entry of outdoor unit.
• Stop the end of piping tape (E) with tape (with adhesive agent attached).
• When piping have to be arranged through above ceiling, closet or where the temperature and humidity are high, wind additional commercially sold insulation to prevent condensation.
WARNING
When installing the unit, securely connect the refrigerant pipes before starting the compressor.
CAUTION
When there are the ports which are not used, make sure their nuts are tightened securely.
PURGING PROCEDURES, LEAK TEST, AND TEST RUN
4-1. PURGING PROCEDURES AND LEAK TEST
- Remove service port cap of stop valve on the side of the outdoor unit gas pipe. (The stop valves are fully closed and covered in caps in their initial state.)
- Connect gauge manifold valve and vacuum pump to service port of stop valve on the side of the outdoor unit gas pipe.
- Run the vacuum pump. (Vacuolize for more than 15 minutes.)
- Check the vacuum with gauge manifold valve, then close gauge manifold valve, and stop the vacuum pump.
- Leave as it is for one or two minutes. Make sure the pointer of gauge manifold valve remains in the same position. Confirm that pressure gauge shows -14.7 psi [Gauge] (-0.101 MP).
- Remove gauge manifold valve quickly from service port of stop valve.
- After refrigerant pipes are connected and evacuated, fully open the valve stem of all stop valves on both sides of gas pipe and liquid pipe by the hexagonal wrench.
If the valve stem hits the stopper, do not tum it any further. Operating without fully opening lowers the performance and this causes trouble. - Refer to 1-2., and charge the prescribed amount of refrigerant if needed. Be sure to charge slowly with liquid refrigerant. Otherwise, composition of the refrigerant in the system may be changed and affect performance of the air conditioner.
- Tighten cap of service port to obtain the initial status.
- Leak test

WARNING
When opening or closing the valve below freezing temperatures, refrigerant may spurt out from the gap between the valve stem and the valve body, resulting in injuries.
4-2. GAS CHARGE
Perform gas charge to unit.
- Connect gas cylinder to the service port of stop valve.
- Perform air purge of the pipe (or hose) coming from refrigerant gas cylinder.
- Replenish specified amount of the refrigerant, while operating the air conditioner for cooling.
Note: In case of adding refrigerant, comply with the quantity specified for the refrigerating cycle.
CAUTION: When charging the refrigerant system with additional refrigerant, be sure to use liquid refrigerant. Adding gas refrigerant may change the composition of the refrigerant in the system and affect normal operation of the air conditioner. Also, charge the liquid refrigerant slowly, otherwise the compressor will be locked. To maintain the high pressure of the gas cylinder, warm the gas cylinder with warm water (under 104°F (40°C)) during cold season. But never use naked fire or steam. 
4-3. TEST RUN
Be sure to also check the following. The outdoor unit is not faulty. When the outdoor unit fails, LED outdoor unit control panel blinks. Both the gas and liquid stop valves are completely open.
- Test runs of the indoor units should be performed individually. See the installation manual coming with the indoor unit, and make sure all the units operate properly.
- If the test run with all the units is performed at once, possible erroneous connections of the refrigerant pipes and the indoor/outdoor unit connecting wires cannot be detected. Thus, be sure to perform the test run one by one.

About the restart protective mechanism
Once the compressor stops, the restart preventive device operates so the compressor will not operate for 3 minutes to protect the air conditioner.
Wiring/piping correction function
This unit has a wiring/piping correction function which corrects wiring and piping combination. When there is possibility of incorrect wiring and piping combination, and confirming the combination is difficult, use this function to detect and correct the combination by following the procedures below.
Make sure that the following is done.
- Power is supplied to the unit.
- Stop valves are open.
Note: During detection, the operation of the indoor unit is controlled by the outdoor unit. During detection, the indoor unit automatically stops operation. This is not a mal-function.
Procedure
Press the piping/wiring correction switch (SW871) 1 minute or more after turning on the power supply.
- Correction completes in 10 to 20 minutes. When the correction is completed, its result is shown by LED indication. Details are described in the following table.
- To cancel this function during its operation, press the piping/wiring correction switch (SW871) again.
- When the correction completed without error, do not press the piping/wiring correction switch (SW871) again.
LED indication during detection:
| LED1 (Red) | LED2 (Yellow) | LED3 (Green) |
| Lit | Lit | Once |
When the result is “Not completed”, press the piping/wiring correction switch (SW871) again to cancel this function. Then, confirm the wiring and piping combination in a conventional manner by operating the indoor units one by one.
- The operation is done while the power is supplied. Make sure not to contact parts other than the stich, including the P.C. board. This may cause electric shoo burn by hot parts and live parts around the stich. Contacting the live parts may cause P.C. board damage.
- To prevent electronic control P.C. board damage, mane sure to perform static elimination before operating this function.
- This function does not operate w hen the outside temperature is 32°F (0°C) or below .
Result of piping/wiring correction function
| LED1 (Red) | LED2 (Yellow) | LED3 (Green) | Result |
| Lit | Not lit | Lit | Completed (Problem corrected or normal) |
| Once | Once | Once | Not completed (Detection failed) |
| Other indications | Refer to “SAFETY PRE- CAUTIONS WHEN LED BLINKS” located behind the service panel. | ||
4-4. EXPLANATION TO THE USER
- Using the OPERATING INSTRUCTIONS, explain to the user how to use the air conditioner (how to use the remote controller, how to remove the air filters, how to remove or put the remote controller in the remote controller holder, how to clean, precautions for operation, etc.).
- Recommend the user to read the OPERATING INSTRUCTIONS carefully.
PUMPING DOWN
When relocating or disposing of the air conditioner, pump down the system following the procedure below so that no refrigerant is released into the atmosphere.
- Turn off the breaker.
- Connect the gauge manifold valve to the service port of the stop valve on the gas pipe side of the outdoor unit.
- Fully close the stop valve on the liquid pipe side of the outdoor unit.
- Turn on the breaker.
- Start the emergency COOL operation on all the indoor units.
- When the pressure gauge shows 0.1 to 0 psi [Gauge] (0.05 to 0 MP), fully close the stop valve on the gas pipe side of the outdoor unit and stop the operation. (Refer to the indoor unit installation manual about the method for stopping the operation.) * If too much refrigerant has been added to the air conditioner system, the pressure may not drop to 0.1 to 0 psi [Gauge] (0.05 to 0 MP), or the protection function may operate due to the pressure increase in the high-pressure refrigerant circuit. If this occurs, use a refrigerant collecting device to collect all of the refrigerant in the system, and then recharge the system with the correct amount of refrigerant after the indoor and outdoor units have been relocated.
- Turn off the breaker. Remove the pressure gauge and the refrigerant piping.
WARNING
When the refrigeration circuit has a leak, do not execute pump down with the compressor. When pumping down the refrigerant, stop the compressor before disconnecting the refrigerant pipes. The compressor may burst if air etc. get into it.
MITSUBISHI ELECTRIC CORPORATION
HEAD OFFICE: TOKYO BUILDING, 2-7-3, MARUNOUCHI,
CHIYODA-KU, TOKYO 100-8310, JAPAN
VG79N001 H01























