SIEMENS ZS-30 Intrinsically Safe Module

Operation
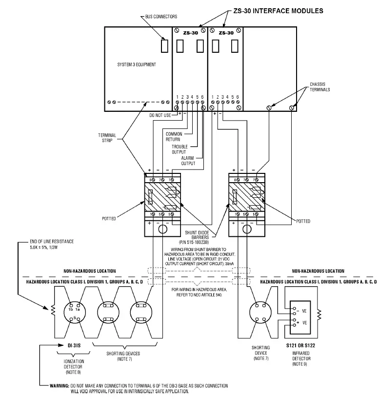
The SIEMENS System 3 Intrinsically Safe Zone Model ZS-30, consisting of a Zone Module and a Diode Shunt Barier, is designed for use in System 3 low voltage control panels. With detection devices located in hazardous areas identified as Class I, II, and ll, Division 1, Groups A, B, C, D, E, F, and G, the intrinsi- cally safe characteristic is achieved by using a diode shunt barrier (P/N 515-180238) with the ZS-30. The Diode Shunt Barrier, though physically a separate unit of ZS-30, must always be used to achieve an intrinsi- cally safe zone. The Diode Shunt Barrier limts the energy to the detector circuit. The following equipment is covered by this instruction sheet
| Item Name and Model Number | Description |
| NON-HAZARDOUS LOCATION EQUIPMENT | |
| Model ZS-30 Model 515-180238 | Zone module (P/N 515-022079) Diode shunt safety barrier (P/N 515-180238) |
| HAZARDOUS LOCATION EQUIPMENT | |
| Detector D1-31S Detector S121 Detector S122 Base DB-3 Cable 465-514391 |
For use with D1-31S Limited-energy shielded cable (Optional) |
Check that each device to be located in the intrinsically safe area has an FM intrinsically safe label. In addition, direct shorting manual stations and/or thermal detectors (devices not containing any energy storing, or voltage producing, components) may be connected in the detector loop without jeopardizing the intrinsically safe characteristics of the system.
NEC Hazardous Location Classification
Class 1: Class I locations are those in which flammable gases or vapors are (or may be) present in the air in quantities sufficient to produce explosive or ignitable mixtures.
Class 2: Class II locations are those that are hazardous because of the presence of combustible dust.
Class 3: Class l locations are those that are hazardous because of the presence of easily ignitable fibers or flyings, but in which such fibers or flyings are not likely to be in suspension in the air in quantities sufficient to produce ignitable mixtures.
Division 1: A Division 1 location is a location (a) in which hazardous concentrations of flammable gases or vapors exist continuously, intermittently, or periodically under normal operating conditions; or (b) hazardous concentrations of such gases or vapors may exist frequently because of repair or maintenance operations or because of leakage; or (c) breakdown or faulty operation of equipment or processes that might release hazardous concentrations of flammable gases or vapors occur and might also cause simultaneous failure of electric equipment.
Group A: Group A atmospheres contain acetylene.
Group B: Group B atmospheres contain such chemicals as butadiene, hydrogen ethylene oxide (or gases or vapors of equivalent hazard to
hydrogen, such as manufactured gas), or propylene oxide.
Group C: Group C atmospheres contain such chemicals as acetaldehyde, cyclopropane, diethyl ether, ethylene, isoprene, or unsymmetrical dimethyl hydrazine (UDMH).
Group D: Group D atmospheres contain such chemicals as acetone, acrylonitrile, alcohols, ammonia, benzine, benzol, butane, ethylene dichlo- ride, gasoline, hexane, lacquer solvent vapors, naphtha, natural gas, propane, propylene, styrene, vinyl acetate, vinyl chloride, or xylenes.
Group E: Atmospheres containing combustible metal dusts regardless of resistivity, or other combustible dusts of similarly hazardous characteristics having resistivity of less than 105 ohm/centimeter.
Group F: Atmospheres containing carbon black, charcoal, coal, or coke dusts which have more than 8 percent total.
Group G: Atmospheres containing combustible dusts having resistivity of 105 ohm/centimeter or greater.
Description
The heat and smoke actuated detectors are located in a hazardous location. A Class B two wire detector circuit extends back to the non-hazardous location where connections are made to terminals 5 (output ground) and 1 (output) of the Diode Shunt Barrier located in the system control panel cabinet (or ina separate enclosure). Under normal operating conditions voltage and current in the hazardous locations are at levels known to be safe for intrinsically safe electrical equipment operating in Group A atmo- spheres. However, should any combination of two independent faults occur (plus field wiring failures) within the system, the barrier will prevent the appear- ance of excessive voltage and currents in the hazard- ous location. The ZS-30 module is part of a low voltage control panel and is connected to the barrier and detector circuit. The module is mounted on a System 3 panel along with the control unit. The intrinsically safe module is interconnected to System 3 modules bus wire cable and draws its power from the System 3 power supply through the control unit. The module provides regulated voltage to the detectorsin the hazardous locations through the Diode Shunt Barrier. It also detects and generates trouble and alarm conditions. Alarm and trouble conditions are indicated by red and yellow LEDs on the panel on the intrinsically safe zone, and corresponding high-going electronic signals are passed to the control unit. The detector circuit consists of up to ten DI-3IS ionization- type smoke detectors or up to five S121 or S122 flamne detectors, in addition to any number of mechanical (non-energy storing) shorting devices. The detector circuit is terminated by a 5.6K ohm end of line resistor.
Installation
Refer to Figures 1-3 below when installing the ZS-30. The Diode Barrier may be located in the main control panel or in a separate enclosure, but, in either case care must be exercised in installation.
System 3 chassis ground must be removed
Each duplicate (redundant) grounding conductor should be connected to the grounding connections on the barrier device and run directly to the ground electrode not via other paths leading to that electrode. Each ground wire must be 14 or 18 AWG wire and should not exceed an impedance of 1 ohm. All ground wires should be connected separately to the same ground location. Wiring connected to the barrier output

(terminals 1 and 5) must be grouped with intrinsically safe circuits and must not run in conduits and wire ways containing non-intrinsically safe circuits. Wiring from the control unit enclosure or separate diode barrier enclosure to the intrinsically safe zone must be rigid conduit, and the conduit should be sealed off from the hazardous area at the barrier wall by using standard EY conduit seals to isolate the hazardous atmosphere from the control equipment. Chico X fiber and Chico A sealing compound must be used to make the seal. Wiring in the hazardous area may be either limited energy shielded cable (Siemens Building Technologies, Inc. P/N 465-514391) or any type of general purpose wire. The diode barrier may be located either in the control unit enclosure or in its own enclosure. Proper assembly and conduit are essential; follow Figure 1. Non-energy storing devices such as a manual station may be connected in the detector loop without jeopardizing the intrinsically safe characteristics of the system. Such devices must be connected in parallel with the barrier output, must not contain any energy storing component(s), and must be operationally approved by Factory Mutual for the intended purpose. Maximum detector loop resistance must not exceed 50 ohms, exclusive of the 5.6K ohm end of line resistor. The maximum inductance and capacitance for cables or wires connected to the barrier output should not exceed the following values for each group.
| Maximum Inductance in mH | Maximum Capacitance Excluding Detector Capacitance in µF | |
| Group A | 20 | .1 |
| Group B | 20 | .1 |
| Group C,E,F | 80 | .3 |
| Group D,G | 150 | .8 |


NOTES
- TROUBLE AND ALARM OUTPUT OPEN CIRCUIT VOLTAGE 22 VDC SHORT CIRCUIT CURRENT 30 mA
- WHEN ZS-30 IS USED, SYSTEM CHASSIS GROUND CONNECTION MUST BE REMOVED AND TERMINALS 5 AND 7 OF DIODE SHUNT BARRIER MUST BE INDEPENDENTLY CONNECTED TO CHASSIS GROUND.
- MAXIMUM LOOP RESISTANCE MUST NOT EXCEED 50 OHMS.
- A MAXIMUM OF TEN DI-3IS IONIZATION DETECTORS OR UP TO FIVE S121 OR S122 FLAME DETECTORS CAN BE USED IN ADDITION TO MECHANICAL (NON-ENERGY STORING) SHORTING DEVICES.
- MAXIMUM SAFE SYSTEM VOLTAGE IS 250 VAC.
- REFER TO TEXT FOR LIMITATIONS AND DEFINITION OF THE HAZARDOUS AREA.
- ONLY MECHANICAL (NON-ENERGY STORING) SHORTING DEVICES SUCH AS THE MS-51 MANUAL STATION MAY BE USED.
- WARNING: DO NOT MAKE ANY CONNECTION TO TERMINAL 6 OF THE DI-31S BA SU NNECTION WOULD VOID USE IN AN INTRINSICALLY SAFE APPLICATION.
- IN ADDITION, S121 AND S122 ARE ALSO APPROVED FOR USE IN CLASS II AND CLASS lII, GROUPS E, F, AND G.
Figure 3
Wiring Diagram
ZS-30 Intrinsically Safe Zone



















