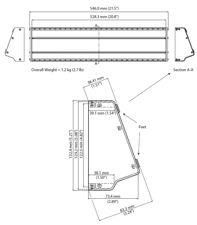
behringer EURORACK 104 Compact and Sturdy 104 HP Eurorack Skiff Case

Overview
This compact 104 HP Eurorack skiff case is ideal for synthesizers and other 3U format equipment.
We hope that it gives you many years of enjoyment.
Please visit our website musictribe.com for details of the warranty.

Dimensions





















