cata IBG Series Induction Hob
Installation
IBG 6304 BK, IBG 6303 BK, IBG 3102 BK


Dimensions


THIS APPLIANCE IS CONCEIVED FOR DOMESTIC USE ONLY. THE MANUFACTURER SHALL NOT IN ANY WAY BE HELD RESPONSIBLE FOR
WHATEVER INJURIES OR DAMAGES ARE CAUSED BY INCORRECT INSTALLATION OR BY UNSUITABLE, WRONG OR ABSURD USE.
The manufacturer declares that this product meets all the essential requirements for low voltage electrical material set out in European directive 2014/35/EU and for electromagnetic compatibility as required by European directive 2014/30/EU.
PRECAUTIONS
- When the hob is in use keep all magnetizable objects away (credit cards, floppy disks, calculators and so on).
- Do not use any alluminium foil or place any foodstuffs wrapped in alluminium foil directly on the hob – do not place any metal objects such as knives, forks, spoons and lids on the hob surface as they will heat up.
- When cooking in a non-stick pan without seasoning, do not exceed 1-2 minutes’ pre-heating time.
- When cooking food that may easily stick, start at a low power output level and then slowly increase while regularly stirring.
- After cooking is finished, switch off using the control provided (turn down to “0”), and do not rely on the pan sensor.
- If the surface of the hob is damaged, immediately disconnect the appliance from the mains to prevent the possibility of electric shock.
- Never use a steam cleaner to clean the hob.
- The appliance and accessible parts may be hot during operation.
- Take care to avoid touching the heating elements.
- Children less than 8 years of age should be kept at a safe distance unless continuously supervised.
- This appliance may be used by children aged 8 or over and by persons with reduced physical, sensory or mental capabilities or lack of experience and knowledge, if they are supervised and have received suitable instructions on safe use of the appliance and understand the dangers involved. Children must not play with the appliance. User maintenance and cleaning should not be carried out by children except under constant supervision.
- Cooking with grease or oil may be dangerous and cause a fire if left unattended. NEVER try to extinguish a fire with water. Rather, disconnect the appliance and then cover the flames with a cover or sheet, for example.
- The cooking process has to be supervised. A short term cooking process has to be supervised continuously.
- Unattended cooking on a hob with fat or oil can be dangerous and may result in a fire.
- Fire hazard: do not store elements on cooking surfaces.
- Only counter top protectors designed for use with the cooking appliance and listed in the manufacturer’s instructions should be used as suitable protection for the counter top incorporated in the appliance. Use of unsuitable protectors may cause accidents.
- WARNING: Accessible parts will become hot when in use. To avoid burns and scalds children should be kept away.
- Insert in the fixed wiring a mean for disconnection from the supply mains having a contact separation in all poles that provide full disconnection under overvoltage category III conditions, in accordance with the wiring rules. The plug or omnipolar switch must be easily reached on the installed equipment.
- This appliance is not intended to be used via an external timer or a remote control system. The manufacturers decline any responsibility in the event of non-compliance with what is described above and the accident prevention norms not being respected and followed.
- To avoid all risk, if the power cable becomes damaged, it must only be replaced by the manufacturer, by an authorised service centre, or by a qualified electrician.
OPERATING PRINCIPLE
It exploits the electromagnetic properties of most cooking vessels. The coil (inductor) which produces the electromagnetic field is operated and controlled by the electronic circuit. The heat is transmitted to food by the cooking vessel itself. The cooking process takes place as described below.
- loss of heat is minimum (high efficiency)
- the system stops automatically when the vessel is removed or even just lifted from the hob
- the electronic circuit guarantees maximum flexibility and fine adjustments.

- Vessel
- Induced current
- Magnetic field
- Inductor
- Electronic circuit
- Power supply
User’s Instructions (Fig. 2)
- ON/OFF
- Minus –
- Plus +
- Cooking zone
- Key lock
- Timer
- Booster
- Pause
Installation
All operations relative to installation (electric connection) should be carried out by skilled personnel in conformity with the rules in force. As for the specific instructions see part pertaining to installer.
Switching the Touch Control ON/OFF
After mains voltage is applied the control initializes for approx. 1 second before it is ready for operation.
After a reset all displays and LEDs glow for approx. 1 second. When this time is over all displays and LEDs extinguish and the control is in the stand-by mode.
Press the ON/OFF (1) button to switch the touch control on.
The cooking zone displays show a static “-“.
If a cooking zone is in the “hot“ status, the display shows a “H“ alternately instead of “-“.
After switching-ON the electronic control remains activated for 60 seconds. If no cooking zone or timer selection follows within this period of time, the electronic control automatically switches back into the stand-by-mode. The control can only be switched-ON if it identifies the ON/OFF key alone being operated. Should it recognize key activation other than that, the control remains in the standby-mode.
If the child safety feature is active when switching on, the LED display upper timer show “Lo“, (LOCKED). When the Touch Control is ON it can be switched- OFF at any time by operating the ON/OFF key. This is also valid if the control has been locked (activated child safety feature).
The ON/OFF key has always priority in the switch-OFF function.
Automatic switch-OFF
When the control is ON it automatically switches-OFF after 60 seconds if no cooking zone or select key has been operated within this period of time.
Switching a cooking zone ON and OFF
First place the pan in the chosen cooking zone. 
If the touch control is switched on, the cooking zone can be selected by pressing the button (4) of the corresponding zone.
The LED display of the zone selected changes from “-” to “5”. if the cooking zone is “hot”, “H” will be alternately displayed.
Press the PLUS (3) or MINUS (2) button to select a setting and the zone will begin to heat up.
Once the cooking zone has been selected, the setting can be selected. The setting begins at level 5, change the setting by pressing the PLUS (3) or MINUS (2) to the level you want to use.. When setting “0” or “9” is reached, there will be no further setting changed. The setting can only be changed by pressing the MINUS (2) or PLUS (3) button again.
Switching a cooking zone off
Select the zone to be switched off using the corresponding button (4). The LED display of the zone selected will flash, while the remaining displays still show “-”. Press the PLUS (3) and MINUS (2) buttons at the same time and the setting level of the zone is changed to 0. Alternatively, the MINUS button (2) can be used to reduce the setting level to 0. If a cooking zone is “hot”, “H” ” will be alternately displayed.
Switching-OFF all cooking zones
Immediate switching-OFF of all cooking zones can be achieved anytime by means of the ON/OFF key. In the standby-mode an “H“ appears on all cooking zones which are “hot“. All other cooking zone displays are not illuminated.
Wattage settings
The output of the cooking zones can be set in 9 steps which are indicat-ed by the figures “1“ thru “9“ by means of LED displays. In the cooking zone located on the front left, when selecting the power level 9 and after 30 minutes operating, the power will decrease slightly for safety reasons. In case more power is required, select the boost level (“P”)
Boost function
After selection of a respective cooking zone, the boost function can be activated by selecting button (7). By means of this function certain cooking zones are enabled to receive power over the nominal (the number of boostable cooking zone depends on the power available on a partial modules which is to be less than total hob power ). If the desired cooking zone has the capacity to activate the booster, the display shows a “P“ symbol. The boosting time is limited to 5 min to protect cooking utensils. After the booster is switched off automatically, the cooking zone continues operation on power level “9”. The booster can be reactivated after some minutes.
In case that the pan is removed from the cooking zone during boosting, the boosting function remains active and boosting time continues.
The power management is based on on the principle that the last entry is requested by the induction as top priority. That means that previous actions and settings also made for the other cooking zones are reversed automatically, if necessary.
- If induction identifies the necessity of reducing power at a cooking zone, the selected cooking stage flashes on that cooking zone providing a correction period of 3 sec before the power is reduced automatically to a minimum cooking stage.
- If the setting is adjusted within the correction period, the power management checks the settings again. Should a new setting lead to further power reduction, the correction period starts again.
- If no automatic correction needs being made to the cooking zone setting, the flashing stops immediately and the original value remains as a steady display indication. Should the situation change again on the power reduced cooking zone, no automatic power increase is effected.
Residual heat indicator
It is meant to indicate to the user that the glass ceramic has a dangerous touch temperature in the circumference of a cooking zone. The tempera-ture will be determined following a mathematical model and the remain-ing residual heat will be indicated by means of “H” on the corresponding zone display.
Heating-up and cooling down will be calculated dependent on:
- the selected setting (“0“ to “9“)
- the ON/OFF time.
After switching-OFF the cooking zone the respective display shows “H” until the assigned cooking zone temperature is mathematically in a uncritical level. (≤ 60°C).
Automatic power OFF function (operating time limitation)
Dependent on the selected setting, every cooking zone will be switched-OFF after a defined maximum operation time if no operation of the assigned cooking zone follows within this time period. Every change of the cooking zone condition (by means of the PLUS-, MINUS- key) puts back the maximum operation time of this cooking zone to the initial value of the operating time limitation.
Key lock (child safety feature)
Child safety feature:
- Key lock:
After switching-ON the control the child safety feature can be activated. Press button (5) the key lock function will be activated. There will be an “Lo” above timer key (6), meaning LOCKED (child safety feature against unintended switching-ON). The electronic control remains in a locked condition until it gets unlocked, even if the control has been switched OFF and ON in the meantime. Also, a reset of the control (after a voltage drop) does not cancel the key lock. - Cancelling the key lock:
To unlock and operate the control it is required to Press and hold the button (8) for 3 seconds, the key lock function will be cancelled. “Lo“ (LOCKED) in the display extinguishes. Audible signal (buzzer) While the control is in operation the following activities will be signaled by means of a buzzer:
normal key activation with a short sound signal.
Timer function (optional)
The timer function is realized in two versions:
- Stand-alone timer 1..99 min: sound signal when the time is over (= minute minder). This function is only available when the cooktop is not in operation, i.e. when there is no cooking.
- Cooking zone timer 1..99 min: sound signal when the time is over, four cooking zones can be programmed independently.
Timer as minute minder (stand-alone):
- If the control is ON and no cooking zone selected, the standalone- timer can be used by pressing button (6).
- Adjustment range (0-99min), it can be set in 1-minute steps with MINUS (2) and PLUS (3). Press button (6) to set minutes, after that press button (6) again to set dozens of minutes.
- Adjustment can be made by tip-operation (with sound signal) After the timer is set the time runs down according to the adjustment. When the time is over there is a sound signal and the timer display blinks.
The sound signal will be stopped
- automatically after 10 sounds Then the blinking of the timer display stops and the display extinguishes.
Switching-OFF/changing the timer
- The timer can be changed or switched-off anytime by simultaneously operating MINUS (2) and PLUS (3) keys. (with sound signal). The timer will be switched off by counting down to “0” with the minus-key.
For 5 seconds the timer display remains at “0“ before it will be switched-off.
Timer programming on cooking zones
When the control is switched ON, an independent timer can be pro-grammed for every cooking zone.
- To use the cut off timer, make sure the control is ON, selecting the cooking zone (4) and the zone LED display blinks, pressing button
(6) and timer display shows “10”. - Adjustment range (0-99min), it can be set in 1-minute steps with MINUS (2) and PLUS (3). after setting minutes, press button (6) again to set dozens of minutes. Then wait for 5 seconds the timer on independent zone is activated.
- During timer programming, a red dot next to pilot light of the selected cooking zone flashes to indicate the zone is under timer status.
- When the timer has run down, there is a sound signal and the timer display shows “–“ statically.. The programmed cooking zone will be cut off and “H“ will be displayed if the cooking zone which is hot, otherwise a stroke will show in the cooking zone display.
- The sound signal and the blinking of the timer LED will be stopped automatically after 10 sounds and the timer display extinguishes.
- The basic behaviour follows the description of the “minute minder” (stand-alone-timer).
Pause function (optional)
- Pause function is to stop all heating but still keep all the setting you set, in case your have any interruption when cooking. You can revert all setting back easily with this function.
- To use Pause function
- Touch the button (8), all the hearting zones stop working, All the zone indicators show“||”.
- Cancel Pause function
- Touching the button (8) again, all the heating zones will revert to its original setting.
- NOTE: The function is available when one or multi heating zones are working.
- NOTE: If you don`t cancel the stop Pause mode within 30 minutes, the induction hob will automatically switch off.
Cooking vessels
(Fig. 3)
- a magnet-attracting vessel may be a suitable vessel for induction cook-ing
- prefer vessels which are especially declared to be suitable for induc-tion cooking
- flat and thick bottomed vessels
- a vessel with the same diameter as zones ensures the maximum exploitation of power
- a smaller vessel reduces power exploitation, but does not cause any energy loss. We would anyhow not recommend the use of vessels with diameters smaller than 12 cm.
- stainless-steel vessels with multi-layer or ferritic stainless-steel bottoms when specifically suited for induction cooking
- cast-iron preferably enamel-bottomed vessels to avoid scratching the pyroceram surface
- we do not recommend the use of any glass, ceramic, earthenware alluminium, copper or non-magnetic (austenitic) stainless steel vessels.
Maintenance
(Fig. 4)
By means of a scraper immediately remove any aluminum foil bits, food spills, grease splashes, sugar marks and other high sugar content food from the surface in order to avoid damaging the hob. Subsequently clean the surface with some towel and appropriate product, rinse with water and dry by means of a clean cloth. Under no circum-stance should sponges or abrasive cloths be used; also avoid using aggressive chemical detergents such as oven sprays and spot removers.
Installer’s Instructions
Installation
These Instructions are for the qualified technician, as a guide to installa-tion, adjustment and maintenance, according to the laws and standards in force. These operations must always be carried out when the appliance has been disconnected from the electric system.
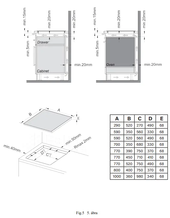
Positioning (Fig. 5)
The fixture is especially designed for fitting into a work-top as shown in the corresponding figure.
Place the supplied sealing agent along the hob perimeter.
Do not install the hob over an oven; in case you do, make sure of the following:
- the oven is equipped with an appropriate cooling system
- there is no warm-air leakage from the oven towards the hob -suitable air-inlets are provided as shown in the figure. Electrical connection (Fig. 6)
Prior to carrying out the electrical connection, please ensure that:
- the plant characteristics are such as to follow what is indicated on the matrix plate placed at the bottom of the working area;
- that the plant is fitted with an efficient earth connection, following the standards and law provisions in force.
The earth connection is compulsory in terms of the law. Should there be no cable and/or plug on the equipment, use suitable absorption material for the working temperature as well, as indicated on the matrix plate. Under no circumstance must the cable reach a tempera-ture above 50°C of the ambient temperature.
CATA ELECTRODOMÉSTICOS, S.L.
Oficinas: c/ Anabel Segura, 11, Edif. A, 3a pl. 28108. Alcobendas. Madrid. España
T . +34 938 594 100 – Fax +34 938 594 101
www.cnagroup.es
[email protected]
Atención al Cliente: 902 410 450 / +34 938 521 818 – [email protected]
SAT Central Portugal: +351 214 349 771 – [email protected]



















