PROFESSIONAL GRILLS
MAKE THE MOST OF YOUR
LYNX LCS30 Built-In Cocktail Station
Installation Guide
LCS30 COCKTAIL STATION CARE & USE/INSTALLATION
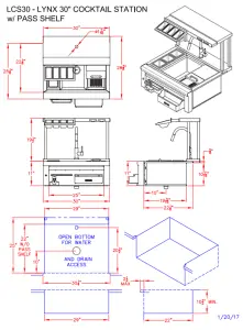
EXTERIOR DIMENSIONS
INSTALLER: Read these instructions carefully before starting installation. Please leave these instructions with the homeowner.
HOMEOWNER: Please retain these instructions for future use
| Cutout Dimensions | Exterior Dimensions | |||||
| Cut-out Dimension Specifications | Width A | Height B | Depth C Width D | Depth E | Depth F | |
| LCS30 | 29 | 101/2 | 2231 | 257, | 221/8 | |
Countertop notch detail: a 1/2” width is required with a depth equal to the countertop overhang.

INSTALLATION PREPARATION
The Lynx sinks are designed for outdoor use. It is recommended that the sink be installed by a qualified technician in accordance with all local plumbing and building codes.
Prepare the countertop by cutting the appropriate cutout dimensions from the table above. There must be a minimum of a 1/2” overlap on the sides and rear of the sink on the countertop to support the sink. Adequate clearances below the sink must be maintained for maintenance, water, and drain lines.
INSTALLING THE DRAIN ASSEMBLY
For ease of installation, we recommend that the drain assembly be installed before installing the sink into the countertop.
- Remove the drain assembly from the box and identify the following parts:

- Remove the drain plug strainer basket (a) and separate the upper drain fitting (b) from the remainder of the drain assembly.
- Place a bead of Plumbers Putty* around the underside lip of the upper drain fitting. Drop the upper drain fitting (b) into the sink bottom opening and press it firmly into place. From the bottom of the sink position the rubber gasket (c) and then the paper gasket (d) on the upper drain fitting (b). The paper gasket (d) is used to prevent kinking of the rubber gasket (c) while tightening the locknut (e).
- Align the drain assembly so that it sits centered in the sink drain cut-out. Screw the locknut (e) onto the upper drain fitting (b) threaded connection until it is hand tight. Now use a tool to tighten the locknut (e) another quarter turn.
- Remove any excess Plumber Putty with a damp cloth.
*Plumbers Putty is available at most home improvement centers. Plumbers putty is an easy-to-mold setting compound for use with stainless steel sealing applications. Do Not Omit This Step.
INSTALLING THE SINK
- Install the faucet or the stainless steel plug (included) into the top faucet opening.
- Carefully lower the sink into the cut-out on the counter top. Push the sink back until there are no gaps in the back and the bullnose contacts the front face of the cabinet. The sink will be supported by its weight on the side and back.
- If desired a small bead of silicone sealant could be put around the edges of the sink to prevent water seepage into the spaces below the sink.

INSTALLING THE DRAIN PIPING (NOT SUPPLIED)
Assemble all drain pipe connections to the tailpiece and on through a pipe trap and proper drainage. The drain must be installed in accordance with all local codes. In the absence of local codes, the requirements of the Uniform Plumbing Code should be followed.
INSTALLING THE TRANSFORMER
The power supply transformer should be installed below the sink within the cabinet enclosure. Select a location where the transformer is protected against water, heat and physical damage. It is recommended that fasteners be used in at least two of the four mounting holes for secure attachment.
The power supply transformer must be plugged into a properly grounded GFI-equipped outlet, installed by a qualified technician. The outlet of the transformer is plugged into the white Molex connector at the rear of the sink. Please see the electrical diagram provided in this manual.
INSTALLING THE LCS30 FRONT COMPONENTS
- Located the supplied hardware bag with 3 stainless shoulder screws and 2 stainless Phillips head screws.
- Install the two stainless steel shoulder screws into the right-hand side inserts of the front panel.
- Carefully lower the bottle holder on the newly attached shoulder screws.
- When installing the bottle opener you will need to Install the third shoulder screw directly below the far left insert. Attach the top of the bottle holder when you install the towel bar, as they share the screw.
- Continue to install the towel bar using the second stainless steel Phillips head screw provided.

INSTALLING THE LCS30 COMPONENTS
- Set the bottle cup holder into the sink opening. The sink has a recessed opening in which the support rests.
- Lower the bottle wells into each opening of the good support.
- Insert the ice sink into the sink opening, resting on the recessed opening.
- .In this order, drop in the slide support, the strainer basket, and the slide cover into the sink opening. You will need to hook the back fold of the slide cover onto the flared back end of the slide support.

ASSEMBLING THE LCS30 PASS SHELF (OPTIONAL)
- Attach the support legs to the pass shelf top with the four shorter provided stainless steel screws.
- Feed the light harness through the far left rear opening.
- Carefully match up all four support legs with their corresponding openings in the pass shelf base.
- Using the four longer provided stainless steel screws, secure the base to the pass shelf support legs. There are metal inserts with threaded openings within the support legs to affix the screw to.
- Hook the condiment tray onto the top left rail of the pass shelf top.

FREESTANDING ASSEMBLY
- Remove the rear panel of the cart, and the two brackets (shown in detail F) holding in the rear filler plate.
- With the panel removed, pull off the stainless steel rear filler.
- Unscrew the large nut holding the faucet in place, and remove the faucet.
- Set the pass shelf on top of the sink, carefully matching the opening of the sink with the opening of the pass shelf base.
- Once all hoses have been fed through the holes assemble the faucet per the original instructions (included).
- Connect the Molex connector from the light harness to the wiring harness from the sink.
- Re-attach the rear panel.

BUILT-IN ASSEMBLY
- Access the faucet underneath the sink, and unscrew the large nut holding the faucet in place, and remove the faucet.
- You will need to drill a 1” round hole in the back left corner to accommodate for the wiring harness to drop down to attach to the wiring harness of the sink
- Set the pass shelf on top of the sink, carefully matching the opening of the sink with the opening of the pass shelf base.
- Once all hoses have been fed through the holes assemble the faucet per the original instructions.
- Connect the Molex connector from the light harness to the wiring harness from the sink.

CONTACTING LYNX CUSTOMER CARE
Before calling Lynx Customer Care, please make sure you
have the following information:
- Model number
- Date of purchase
- Proof of purchase by the original owner
- Serial number
The serial number can be located on the rating plate which is located on the interior of the front panel.

For warranty service, contact the Lynx Customer Care Department for an authorized service agent near you at:
Your satisfaction is of the utmost importance to us. If a problem cannot be resolved to your satisfaction, please write, fax, or email us:
Lynx Professional Grills
62201 Hwy 82 West
Greenwood, MS 38930
Service: (888) 289-5969
www.lynxgrills.com
Contact Lynx for replacement parts.
THE LYNX STORY
Lynx began with a vision.
A small group of manufacturing engineers with over a century of collective experience had a dream. They dared to take their extensive commercial manufacturing know-how to create a line of outdoor cooking products that offer commercial elegance and performance to the consumer market.

Lynx has taken the quality, workmanship, service, and innovation of the commercial market and incorporated it into the Lynx Professional Grills line of consumer and
commercial products. The combination of creative design, superior materials, and exceptional craftsmanship elevates Lynx products to a class of their own.
Lynx original commercial products are used every day in restaurants, hotels, and theme parks across the USA:
LYNX SATISFIED CUSTOMERS
| • TGI Fridays • Applebee’s • Houston’s • Red Lobster • Hard Rock Café • Wolfgang Puck’s • Cheesecake Factory • Red Robin • Planet Hollywood • Hilton • Hyatt • Four Seasons Marriott Le Meridian • Sheraton | • Conrad International • Bellagio • New York New York • MGM Grand • Treasure Island • Mirage • Paris • Venetian • Excalibur • Mandalay Bay • Riviera • Desert Inn • Hard Rock Hotel • Disney World |
LCS30 CARE
STAINLESS STEEL
Lynx products are known for their attractive appearance. We achieve this by selecting only the finest grades of stainless steel and applying exacting workmanship. In order to maintain this attractive appearance over the life of the grill it is important to take the following steps:
- Use a commercially available Stainless Steel cleaner* to clean and polish the exterior surfaces. Doing these things on a regular basis minimizes the amount of effort required.
Part of the appeal of your Lynx Accessory is the fine-grain finish. When removing stubborn stains: - Do not use metallic abrasives and always rub in the direction of the grain.
- Some household cleaning products are not suitable for stainless steel; be sure to read the label before using it on your Lynx Accessory.
- Always use the mildest cleaning solution first, scrubbing

in the direction of the grain. Specks of grease may gather in the grain of the stainless steel and bake onto the surface, giving the appearance of rust.
To remove these baked-on foods use a fine to medium grit non-metallic abrasive pad (Scotch Brite is good) in conjunction with a stainless steel cleaner.
- Solutions used for cleaning concrete and masonry can be very corrosive and will ‘attack’ stainless steel. Ensure your Lynx products are well protected before you allow the use of such chemicals.
SPECIAL NOTE FOR LOCATIONS NEAR POOLS AND COASTAL AREAS:
The 304 stainless steel material used in the construction of a Lynx Grill is highly rust-resistant, however, chlorine in the air from swimming pools or the salt from sea air may cause surface rust to appear and even create some pitting if left on the product.
Here are a few tips to avoid this: - Regularly wipe down the exterior surfaces with a damp cloth. (Microfiber cloths such as E-cloth perform very well).
- Allow the surfaces to dry before installing the cover. Do not cover a damp sink.
- In extreme environments apply a rust inhibitor which leaves a microscopic protective layer on the stainless. Products that provide a layer of vapor corrosion inhibitors
(VpCI™) protect the surface very well. - For seasonal storage use the product referred to above, ensure the sink is dry, and then cover and secure the cover to minimize the amount of damp air getting to the
surfaces.
THE LYNX LIMITED LIFE TIME WARRANTY PROVIDES PROTECTION AGAINST RUST-THROUGH OF PARTS THAT RENDER THE PRODUCT INOPERATIVE. IT DOES NOT COVER OCCASIONAL SURFACE RUST OR STAINING DUE TO ENVIRONMENTAL CONDITIONS.
For light and heavy food stains, there are many different stainless steel cleaners available.
*For optional pass shelf*
Replacement bulbs are halogen, 12 volts, 10W max, T3 type with a G4 bi-pin, and are readily available at most stores. The glass cover is held in place by two spring tension tabs.
The bulbs are easily removable without the use of tools. Simply grasp the glass lens at the outer corners, near the front tension clips, and push the lens back. Then, swing the lens down and pull it loose. You may have to loosen the screw to remove the lens.
Avoid touching the glass of a new bulb. Halogen bulbs are very sensitive to the oils found in human skin. Touching the bulbs may shorten their life.
Pull the bulb straight out from the socket without twisting.

Hold the bulb using a paper towel or other cloth and gently press it straight into the socket. The glass cover should be gently snapped back into place.
EXPLODED VIEW/PARTS

| ITEM | PART NO. | DESCRIPTION | Defa ult/0 TY. |
| 1 | 81103 | SINK ASSEMBLY. 30 | 1 |
| 2 | 36090 | CUPHOLDER | 1 |
| 3 | 11004 | BOTTLE WELL | 3 |
| 4 | 36081 | CE SINK | 1 |
| 5 | 35754 | BOTTLE AND SPICE. LARGE | 1 |
| 6 | 35751 | TOWEL BAR. SHORT | 1 |
| 7 | LTC= | BOTTLE OPENER | 1 |
| 83 | 2222 | SCREW. SHLDR. #10-32 X 1/4. SLID. SS. 1/4 DA X 1/8 | 3 |
| 9 | 70547 | CAP CUP | 1 |
| 10 | LPFK | FAUCET. GOOSENECK PULL-DOWN | 1 |
| 11 | 32767 | SCREW. #10-32 X 3/8. THE. SS | 2 |
| 12 | 36094 | SLIDE FRAME | 1 |
| 13 | 36062 | BASKET. STRAINER | 1 |
| 14 | 36065 | SLIDE BACK | 1 |
| 15 | 36066 | SLIDE FRONT | 1 |
| 16 | 31379 | HANDLE. 4″ STAINLESS | 1 |
| 17 | 36101 | DART. NYLON | 3 |
| 18 | 36072 | SCREW. #10-24 X 1/2. THE. SS | 2 |
Optional Pass Shelf

| ITEM | PART NO. | DESCRIPTION | QTY. |
| 1 | 70552 | PASS SHELF BASE | 1 |
| 2 | 70553 | PASS SHELF TOP WELDMENT | 1 |
| 3 | 70550 | SUPPORT LEG P. SHELF WELDMENT | 2 |
| 4 | 36094 | TRAY, CONDIMENT | 1 |
| 5 | 11114 | TRAY, CONDIMENT CS30 | 4 |
| 6 | 35139 | RETAINER, 1/4-20 THREADED | 3 |
| 7 | 14043 | SCREW, 1/4-20 X 1, FHP, SS | 3 |
| 8 | 80353 | LIGHT ASSY CSPS 2008 | 1 |
| 9 | 14014 | SCREW, #8-32 X 3/8, THP, SS | 4 |
SCHEMATICS

Light Switch
PRODUCT DIMENSIONS/CUT OUT DIMENSIONS (IN BLUE)

LYNX LIMITED WARRANTY
I. Limited Lifetime Warranty
The stainless steel housing is warranted to be free from defects in material and workmanship when subjected to normal domestic use and service for the lifetime of the original purchaser. This warranty excludes surface corrosion, scratches, and discoloration which may occur during regular use. This warranty is limited to the replacement of the defective parts, with the owner paying all other costs including labor.
II. Limited ONE-Year Warranty
All other components are warranted to be free from defects in material and workmanship for a period of one year from the original date of purchase. Lynx will replace or repair parts found to be defective at no cost to the original purchaser.
III. Limitations & Exclusions
- This Warranty shall apply to products purchased and located in the United States and Canada. Products must be purchased in the country where service is requested.
- Warranty applies only to the original purchaser and may not be transferred.
- Warranty is in lieu of all other warranties expressed or implied and all other obligations or liabilities related to the sale or use of its products.
- Warranty shall not apply and Lynx is not responsible for damage resulting from misuse, abuse, alteration of or tampering with the appliance, accident, hostile environment, improper installation, or installation not in accordance with the instructions contained in this manual, or the local codes.
- Lynx shall not be liable for incidental, consequential, special, or contingent damages resulting from its breach of this written warranty or any implied warranty.
- Some states do not allow limitations on how long an implied warranty lasts or the exclusions of or limitations on consequential damages. This warranty gives you specific legal rights and you may have other rights which vary from state to state.
- No one has the authority to add to or vary Lynx’s warranty, or to create for Lynx any other obligation or liability in connection with the sale or use of its products.
- Limited to the replacement of defective parts with the owner paying all other costs including labor.
IV. What is not covered: Lynx shall not be responsible for and shall not pay for the following
- Damages or problems caused by improper installation or use;
- Service by an unauthorized service provider;
- Damage or repair due to service by an unauthorized service provider or use of unauthorized parts;
- Warranty does not apply to products installed in any commercial or non-residential application. Examples of excluded applications include, but are not limited to daycare centers, schools, bed and breakfast centers, churches, private clubs, fire stations, clubhouses, common areas in multi-family dwellings, restaurants, hotels, nursing homes, food service locations, and institutional foodservice locations.
- To correct normal adjustments or settings, due to improper installation, commissioning, or local supply properties;
- Shipping and handling costs, export duties, installation, removal, or re-installation cost.
- Display models are generally sold “as is.” If you have purchased a display model, please be advised that it is sold “as is” and that it is subject to the following warranty exclusions: any exterior or cosmetic damage is non warrantable; any missing components will be replaced at consumers expense; major handling damage will be serviced at consumer’s expense; all other warranty’s (standard warranty) will remain in effect.
- The cost of a service call to diagnose the trouble.

The best outdoor kitchen products come from Lynx Grills, Inc. 62201 Hwy 82 West Greenwood, MS 38930 Service: (888)-289-5969 www.lynxgrills.com
P/N 36110 Rev.A 2/2017





















