LYNX LN24BFR-1 24 Inch Professional Outdoor Beverage Dispenser

Contents Important Safety Instructions
Warnings and safety instructions appearing in this guide are not meant to cover all possible conditions and situations that may occur. Common sense, caution, and care must be exercised when installing, maintaining, or operating this appliance.
Recognize Safety Symbols, Words, and Labels. Recognize Safety Symbols, Words, and Labels.
WARNING
WARNING – You can be killed or seriously injured if you do not follow these instructions.
CAUTION
CAUTION- Hazards or unsafe practices which could result in personal injury or property / product damage.
NOTE
NOTE- Important information to help assure a problem free installation and operation.
WARNING
WARNING - This unit contains R600a (Isobutane) which is a flammable hydrocarbon. It is safe for regular use. Do not use sharp objects to expedite defrosting. Do not damage refrigerant circuit.
UNPACKING YOUR APPLIANCE
WARNING
EXCESSIVE WEIGHT HAZARD
Use two or more people to move product. Failure to do so can result in personal injury
Remove Interior Packaging
Your appliance has been packed for shipment with all parts that could be damaged by movement securely fastened.
Remove internal packing materials and any tape holding internal components in place. The owners manual is shipped inside the product in a plastic bag along with the warranty registration card, and other accessory items.
Important
Keep your carton and packaging until your appliance has been thoroughly inspected and found to be in good condition. If there is damage, the packaging will be needed as proof of damage in transit. Afterwards please dispose of all items responsibly.
WARNING
WARNING – Dispose of the plastic bags which can be a suffocation hazard.
Note to Customer
This merchandise was carefully packed and thoroughly inspected before leaving our plant. Responsibility for its safe delivery was assumed by the retailer upon acceptance of the shipment. Claims for loss or damage sustained in transit must be made to the retailer.
NOTE
DO NOT RETURN DAMAGED MERCHANDISE TO THE MANUFACTURER – FILE THE CLAIM WITH THE RETAILER.
CAUTION
If the appliance was shipped, handled, or stored in other than an upright position for any period of time, allow the appliance to sit upright for a period of at least 24 hours before plugging in. This will assure oil returns to the compressor. Plugging the appliance in immediately may cause damage to internal parts.
Warranty Registration
It is important you send in your warranty registration card immediately after taking delivery of your appliance or you can register online at www.lynxgrills.com/support/registration
The following information will be required when registering your appliance.
Service/Model Number
Serial Number
Date of Purchase
Dealer’s name and address
The service/model number and serial number can be found on the serial plate which is located inside the cabinet on the left side near the top. (Figure 1).
WARNING
WARNING – Help Prevent Tragedies
Child entrapment and suffocation are not problems of the past. Junked or abandoned refrigerators are still dangerous – even if they sit out for “just a few hours”.
If you are getting rid of your old refrigerator, please follow the instructions below to help prevent accidents.
Before you throw away your old refrigerator or freezer:
- Take off the doors or remove the drawers.
- Leave the shelves in place so children may not easily climb inside.
INSTALLING YOUR APPLIANCE
Select Location
The proper location will ensure peak performance of your appliance. We recommend a location where the unit will be out of direct sunlight and away from heat sources. To ensure your product performs to specifications, the recommended installation location temperature range is from 55 to 100°F (13 to 38°C).
Cabinet Clearance
Ventilation is required from the bottom front of the appliance. Keep this area open and clear of any obstructions. Adjacent cabinets and counter top can be installed around the appliance as long as the front grille remains unobstructed.
CAUTION
Front Grille
Do not obstruct the front grille. The openings within the front grille allow air to flow through the condenser heat exchanger. Restrictions to this air flow will result in increased energy usage and loss of cooling capacity. For this reason it is important this area not be obstructed and the grille openings kept clean. Lynx Grills does not recommend the use of a custom made grille as air flow may be restricted. (See Figure 2).
Leveling Legs
Adjustable legs at the front and rear corners of the appliance should be set so the unit is firmly positioned on the floor and level from side to side and front to back. The overall height of your appliance may be adjusted between the minimum, 333 ⁄4″ (85.7 cm), by turning the leveling leg in (CW ↷) and the maximum, 343 ⁄4″ (88.3 cm) by turning the leveling leg out (CCW ↶).
To adjust the leveling legs, place the appliance on a solid surface and protect the floor beneath the legs to avoid scratching the floor. With the assistance of another person, lean the appliance back to access the front leveling legs.
Raise or lower the legs to the required dimension by turning the legs. Repeat this process for the rear by tilting the appliance forward using caution. On a level surface check the appliance for levelness and adjust accordingly.
The front grille screws may be loosened and the grille adjusted to the desired height. When adjustment is complete tighten the two front grille screws. (See Figure 5).
WARNING
Electrical Shock Hazard
- Do not use an extension cord with this appliance. They can be hazardous and can degrade product performance.
- This appliance should not, under any circumstances, be installed to an un-grounded electrical supply.
- Do not remove the grounding prong from the power cord. (See Figure 3).

- Do not use an adapter. (See Figure 4).

- Do not splash or spray water from a hose on the appliance. Doing so may cause an electrical shock, which may result in severe injury or death.
Electrical Connection
A grounded 115 volt, 15 amp dedicated circuit is required.
This product is factory equipped with a power supply cord that has a three-pronged, grounded plug. It must be plugged into a mating grounding type receptacle in accordance with the National Electrical Code and applicable local codes and ordinances (see Figure 6).
If the circuit does not have a grounding type receptacle, it is the responsibility and obligation of the customer to provide the proper power supply. The third ground prong should not, under any circumstances, be cut or removed.
NOTE
Ground Fault Circuit Interrupters (GFCI) are prone to nuisance tripping which will cause the appliance to shut down. GFCI’s are generally not used on circuits with power equipment that must run unattended for long periods of time, unless required to meet local building codes and ordinances.
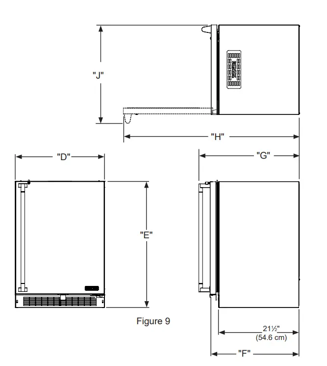
PRODUCT DIMENSIONS
| MODEL | ROUGH-IN OPENING DIMENSIONS | CABINET DIMENSIONS | |||||||
| “A” | “B” | “C” | “D” | “E” | “F” | “G” | “H” | “J” | |
| LN24BF | 24″ (61 cm) | **34″ to 35″ (86.4 to 88.9 cm) | * | 237⁄8″ (60.7 cm) | 333⁄4″ to 343⁄4″ (85.7 to 88.3 cm) | 2323⁄32″ (60.2 cm) | 263⁄4″ (67.9 cm) | 4613⁄32″ (117.9 cm) | 263⁄4″ (67.9 cm) |

If necessary to gain clearance inside the rough-in opening a hole can be cut through the adjacent cabinet and the power cord routed through this hole to a power outlet. Another way to increase the available opening depth is to recess the power outlet into the rear wall to gain the thickness of the power cord plug.
Not all recessed outlet boxes will work for this application as they are too narrow, but a recessed outlet box equivalent to Arlington #DVFR1W is recommended for this application, (see Figure 8)
| MODEL | PRODUCT DATA | |
| ELECTRICAL REQUIREMENTS# | PRODUCT WEIGHT | |
| LN24BF | 115V/60Hz/15A | 140 lbs (63.6 kg) |

* Depth dimension of rough-in opening may vary depending on each individual installation. To recess entire door “F” dimension plus 1″ (2.5 cm) for thickness of power cord plug is required.
** Minimum rough-in opening required is to be larger than the adjusted height of the cabinet.
# A grounded 15 amp dedicated circuit is required. Follow all local building codes when installing electrical and appliance.
USING YOUR ELECTRONIC CONTROL

Control Function Guide
| Function | Command | Notes |
| ON/OFF | Press | Unit will immediately turn ON or OFF. |
| Leave Interior Light On | Press | After 12 hours, factory default is restored; light will turn on when door is open. |
| Adjust Temperature | Press | When the display is flashing, press |
| Toggle Between oF / oC | Hold | The display will change units. |
| Enable Sabbath Mode | Press | The oF / oC symbol will flash briefly after 5 seconds. Interior light and display will go dark and remain so until user resets mode – unit continues to operate. |
| Disable Sabbath Mode | Press | Display and interior light return to normal operation. |
| Showroom Mode | Hold | Display will show for 2 seconds. Interior light and display will function normally, but the compressor and fans will not be energized. Repeat command to return to normal operation. Display will show for 2 seconds. |
NOTE
Temperature displayed reflects actual temperature inside unit. If the temperature displayed is different than selected, the unit is progressing towards the selected temperature. Time to reach set point varies based upon ambient temperature, temperature of product loaded, door openings, etc. Lynx recommends allowing the unit to reach set points before loading.
USING YOUR BEVERAGE DISPENSER
Shelving
The unit is shipped with the (2) shelves taped in place in the upper and the lower shelf positions. Remove them from the refrigerator and arrange them as follows when setting up your unit.

If you are not serving beer or wine on tap, your keg dispenser can be used as a refrigerator by placing both shelves on the mounting brackets as shown in Figure 13.
The shelves are marked upper and lower, The upper shelf should be placed in the top shelf position and the shelf marked lower should be placed in the bottom shelf position.
CAUTION
If you are using the appliance as a refrigerator for perishable foods, the set-point temperature should be set between 34°F and 42° F (1.2° C and 5.7° C).
If you are using a quarter barrel of beer or wine, you can add shelf space for keeping your mugs chilled. The quarter barrel must set on the floor, it cannot fit on the shelf, see Figure 14. Be sure the white floor plate is in the bottom of the interior compartment before positioning the barrel.
If you are using a half barrel (keg) or (2) 1/6 barrels, place the two shelves on the right side of the keg dispenser on the two mounting hooks for storage. (See Figure 15). Be sure the white floor plate is in the bottom of the interior compartment before positioning the barrel(s).
This beverage dispensing unit will support one half (1 ⁄2) barrel or one quarter (1 ⁄4) barrel. The double draft tower units can support two sixth (1 ⁄6) barrels of beverage. See chart below for quantity of beverage in each barrel size.
| Barrel Sizes | |||
| 1/6 barrel | 1/4 Barrel | 1/2 Barrel | |
| Height | 235⁄16″ (59.2 cm) | 1413⁄16″ (37.6 cm) | 235⁄16″ (59.2 cm) |
| Diameter | 91⁄4″ (23.5 cm) | 17″ (43.2 cm) | 17″ to 171⁄4″ (43.2 to 43 cm) |
| Gallons | 5.16 | 7.75 | 15.5 |
| #12 ounce Glasses | 60 | 82 | 163 |
Table A
| Keg Size | #of kegs per 5 pound Gas Tank |
| 5 gallon Corny | 15 to 22 |
| 1/6 barrel | 14 to 21 |
| 1/4 Barrel | 10 to 14 |
| 1/2 Barrel | 5 to 7 |
Table B
Tap Equipment and Assembly
Your dispensing kit includes the following parts:
Polished stainless steel tower with clear beverage line (single or double dispense)
Tower Gasket
Phillips oval head screws
Knob for Tower (Faucet Handle)
Keg coupler(s)
Gas regulator with red gas line(s) attached
Empty 5 pound gas tank
Plastic clamp(s) large and small
Faucet wrenc
Tools required for installation:
Flat bladed screwdriver
Phillips screwdriver
Pliers
Adjustable wrench or a 11 ⁄8″ open end wrench 1 ⁄2″ open end wrench
WARNING
CO2 and N2 can be dangerous. If it becomes difficult to breathe and/or your head starts to ache, a high concentration of carbon dioxide may be present. Leave the area immediately.
- The gas tank must always be connected to the regulator. Never connect the tank to the keg.
- The gas tank must be securely mounted in the upright position. Secure it with the chain provided.
- Never drop or throw the gas tank.
- Keep the gas tank away from heat.
- Ventilate the area after a gas leak.
- Remove shelving and packaged components from the interior of the refrigerator before beginning the assembly process.
- Take your empty 5 pound gas tank to your local gas supply dealer to be filled. You can usually find them in your “yellow pages” under “Welding Supply” or “Fire Protection”. One 5 pound tank can process many kegs (see Table B).
- Tower mounting (if you are installing the unit under a counter skip to step 4). If you are mounting the tower directly to the top of the refrigerator, first remove the four screws from the top of the refrigerator. Remove the foam plug from the large hole in the top of the refrigerator. Feed the clear beverage line through the tower gasket and the large hole in the refrigerator top. Align the 4 holes in the tower with the 4 holes in the refrigerator top and secure the tower with the 4 screws removed previously. Skip to step 5.
Single Dispense Tower Kit




CAUTION
The cutout dimensions shown in Figure 27 are based on a 255 ⁄16″ (64.3 cm) deep counter top. Your counter top may be different than this and require other front to back dimensioning. Refer to the product dimensions on pages 6 and 7 when determining the required dimensions.
NOTE
Your tower kit may or may not come with a “sit on top” sump option. To use it please follow the instructions in the tower kit.
- If you are installing your keg refrigerator under a counter you will need to drill 5 holes in the counter top to mount the tower. The first hole is a 11 ⁄2″ diameter hole located at the center of the tower for the beverage line, locate approximately 131 ⁄2″ (34.3 cm) from the front edge of the counter top (based on a counter top depth of 255 ⁄16″). Next drill the 4 tower mounting holes per the dimensions in Figure 27. The hole diameter is dependent on the counter top material and if screw anchors are required. The screws supplied are in the literature pack and are a #10 x 1″ type AB stainless steel screw. Mark and cut the rectangular cutout for the drain sump. After the holes are drilled and the keg refrigerator is in place under the counter top feed the beverage linethrough the tower gasket, the 11 ⁄2″ hole in the counter top and the hole in the top of the keg refrigerator. Mount the tower to the counter top with the 4 screws provided. Place the counter top drain sump, from the literature pack, in the rectangular hole with the radius cutout to the rear around the tower and place the grate in the sump
- Mount the regulator to the gas tank (connection ). Note that the regulator has left hand threads and has to be turned counterclockwise to tighten. Tighten with the adjustable wrench or the 11 ⁄8″ open end wrench.
- onnect the red air line(s) from the regulator to the large air line fitting on the keg coupler with a large hose clamp (connection ).
- Connect the clear beverage line from the tower to the small air line fitting on the keg coupler with a small hose clamp (connection ).
- Locate the gas tank in the corner of the refrigerator as shown in Figure 30 and secure with the chain. Close the faucet handle on the tower.


- Hooking up the keg coupler to the keg: Verify the coupler is in the “OFF” position (see Figure 31a).Align the lugs on the keg with the corresponding openings on the keg coupler and turn clockwise until the coupler stops (about 90°). Push down and twist the top of the coupler clockwise to allow gas to enter the keg.



Gas Regulator (Single Dispense Tower)
Your beverage dispenser comes equipped with a 5 pound gas tank and a single gauge regulator. The gauge reads the pressure being supplied to the beverage keg. Follow the procedure below to adjust the pressure:
12-14 psi for lager beer
9-12 psi for ale’s
3-8 psi for still wines
20-40 psi for sparkling wines
To adjust the pressure (Single Gauge)
- Close the shutoff valve at the bottom of the regulator.
- Be sure the faucet handle is closed on the tower (see Figure 30).
- Loosen the lock nut by turning ↶ counterclockwise using the 1 ⁄2″ open end wrench until loose, this will allow adjustment of the pressure adjustment screw.
- With the flat bladed screwdriver turn the adjustment screw ↷ clockwise to increase the pressure or ↶ counterclockwise to decrease the pressure.
- Open the shutoff valve on the bottom of the regulator. The gauge reading may drop but will return very quickly.
- Pull the ring on the keg coupler to allow the gas to flow momentarily.
- Make any fine adjustments if necessary with the adjustment screw.
- Tighten the locknut with the 1 ⁄2″ open end wrench by turning clockwise ↷.


Gas Regulator (Double Dispense Tower)
Your beverage dispenser comes equipped with a 5 pound gas tank and a dual gauge regulator. The lower gauge should be reading approximately 750 psi (52 bar) when the tank is properly filled and the tank is not in the refrigerator (at room temperature). The tank will read less when chilled. Use this lower gauge as an indicator of how much gas you have left in the tank.
The upper gauge reads the pressure being supplied to the beverage keg. Follow the procedure below to adjust the pressure :
12-14 psi for lager beer
9-12 psi for ale’s
3-8 psi for still wines
20-40 psi for sparkling wines
To adjust the pressure (Upper Gauge)
- Close the shutoff valves at the bottom of the regulator.
- Be sure the faucet handle is closed on the tower (see Figure 30).
- Loosen the lock nut by turning counterclockwise using the 1 ⁄2″ open end wrench until loose, this will allow adjustment of the pressure adjustment screw.
- With the flat bladed screwdriver turn the adjustment screw clockwise to increase the pressure or counterclockwise to decrease the pressure.
- Open the shutoff valve on the bottom of the regulator. The gauge reading may drop but will return very quickly.
- Pull the ring on the keg coupler to allow the gas to flow momentarily.
- Make any fine adjustments if necessary with the adjustment screw.
- Tighten the locknut with the 1 ⁄2″ open end wrench by turning clockwise.

USING YOUR BEVERAGE DISPENSER AND CARE AND CLEANING
Drain kit (All Models)
The drain kit is shipped in place and ready to use. To empty: Pull drain hose out of bottle cap, remove bottle from unit, unscrew cap and discard waste and rinse bottle. Reinstall bottle in unit.
Cleaning the drain sump
On a free standing beverage dispenser remove the grate from in front of the tower, clean with soap and water and dry before reinstalling. Clean the sump area with soapy water and dry. (See Figure 35).
On a built in beverage dispenser remove the grate and counter top sump, clean with soap and water and dry before reinstalling. Clean the sump area with soapy water and dry. (See Figure 36).
CARE AND CLEANING
Cleaning and Maintaining Dispensing System
The dispensing system needs to be cleaned between usage to prevent spoilage and/or foul taste in your beer or wine.
Keg Coupler Cleaning
Remove the keg coupler from the keg if necessary. Close the gas valve(s) below the regulator, remove both the gas line(s) and clear beverage line(s) from the keg coupler(s) by removing the plastic hose clamps (See Figure 37). Soak and brush the keg coupler in hot water or a sanitizing solution. Rinse thoroughly with clean water. Dry all parts and reassemble.

Faucet Cleaning
Turn off the gas supply with the shutoff valve(s) under the regulator (see Figure 33 or Figure 34) and open the faucet to relieve the pressure. To remove the faucet from the tower use the spanner wrench provided. Place the pin on the wrench into the hole on the faucet collar and turn clockwise ↷ to remove the faucet. (See Figure 39).
Remove the knurled cap from the faucet body just below the handle and pull the handle assembly from the faucet. This will allow the shaft to be removed from the back of the faucet, see Figure 40.
Soak all faucet parts in hot clear water or a solution of hot water and a sanitizing solution. Do not use soap. Rinse thoroughly with clean water.
Reassemble faucet, assemble faucet to tower (be sure faucet is in off position), and turn on gas valve.
Front Grille
Be sure that nothing obstructs the required air flow openings in front of the cabinet. At least once or twice a year, brush or vacuum lint and dirt from the front grille area (see page 4).
SHOCK HAZARD: Disconnect electrical power from the appliance before cleaning with soap and water.
Cabinet
The stainless steel cabinet can be washed with either a mild soap and water and thoroughly rinsed with clear water. NEVER use abrasive scouring cleaners. Dry thoroughly with a terry towel.
Interior
Wash interior compartment with mild soap and water. Do NOT use an abrasive cleaner, solvent, polish cleaner or undiluted detergent.
Care of Appliance
Avoid leaning on the door, you may bend the door hinges or tip the appliance.
- Exercise caution when sweeping, vacuuming or mopping near the front of the appliance. Damage to the grille can occur.
- Periodically clean the interior of the appliance as needed.
In the Event of a Power Failure
If a power failure occurs, try to correct it as soon as possible. Minimize the number of door openings while the power is off so as not to adversely affect the appliance’s temperature.
Long Term Storage/Winterization
Time to Winterize, when the daily low ambient temperature is at or below 38° F.
Operating of the unit at ambient temperatures below the recommended Winterization temperature will void your warranty.

- Turn unit off, (see page 8).
- Remove all contents.
- If necessary, move the unit so you can gain access to the rear of the product.
- Unplug the unit from the power outlet.
- It is also recommended that the power to the outlet be turned-off if the circuit is not required for other items during the Winter season.
- Shut-off gas tank valve.
- Drain beverage line(s)

a. Remove Sankey tap (keg coupler), (see page 17).
b. Remove faucet on tower, (see page 17).
c. Beverage lines will gravity drain.
d. Clean beverage line tubing, (see page 18). - Disassemble faucet and clean, (see page 17).
- Soak and clean Sankey Low-Boy tap, (see page 17).
- When cleaning unit pay particular attention to any cracks and crevices that may have accumulated dirt and debris.
- Remove the front toe-grille, (see Figure 42 and Figure 43), and use a brush and vacuum to clean dirt and debris from beneath the unit.
- Thoroughly clean the toe-grille and re-install on the unit.
- Remove the rear access cover, (see Figure 44), and use a brush and vacuum to clean dirt and debris from the machine compartment.
• If the plastic defrost drain pan located under the compressor contains water, use a sponge to remove as much water as possible - Thoroughly clean the rear access cover and re-install on the unit.

- Wipe down all interior surfaces with anti-bacterial cleaner to be followed with clean rinse water to remove any residual chemicals which could cause staining. Do not use any abrasive cleaners or scouring pads.
- Leave door open and allow to completely dry out before closing door.
• Remove plastic floor protector and stainless steel lower edge guard to clean underneath. - Thoroughly clean the door gasket with anti-bacterial cleaner to be followed with clean rinse water to remove any residual chemicals.
- Thoroughly clean the exterior with a cleaner approved for stainless steel . Do not use any abrasive cleaners or scouring pads.
- Any mounting hardware / fasteners that are showing signs of corrosion should be replaced.
- Once the exterior has been thoroughly cleaned, you may want to apply a coating of car wax to help protect against spotting from moisture, dirt, and debris that may accumulate on the surfaces during the Winterization period.
- Do not place a cover on the unit, as this can trap condensation.
After completion of the above, you may choose to store the unit indoors, although this is not required.

Start-Up After Long-Term Storage:
- Connect the unit to electrical power.
- If stored outside, it is recommended that the unit again be thoroughly inspected per the storage instructions above to address any dirt or debris from the weather and/or animals/insects.
- Turn unit on and confirm your desired control settings.
- Allow 24-hrs for the unit to stabilize before loading contents.
STAINLESS STEEL MAINTENANCE AND ENERGY SAVING TIPS
Background
Stainless steel does not stain, corrode, or rust as easily as ordinary steel, but it is not stain or corrosion proof. Stainless steels can discolor or corrode if not maintained properly.
Stainless steels differ from ordinary carbon steels by the amount of chromium present. It is this chromium that provides an invisible protective film on the surface called chrome-oxide. This protective chrome-oxide film on the surface can be damaged or contaminated, which may result in discoloration, staining, or corrosion of the base metal.
Care and Cleaning
Routine cleaning of the stainless steel surfaces will serve to greatly extend the life of your product by removing contaminants. This is especially important in coastal areas which can expose the stainless to severe contaminants such as halide salts, (sodium chloride).
It is strongly recommended to periodically inspect and thoroughly clean crevices, weld points, under gaskets, rivets, bolt heads, and any locations where small amounts of liquid could collect, become stagnant, and concentrate contaminates. Additionally, any mounting hardware that is showing signs of corrosion should be replaced.
Frequency of cleaning will depend upon the installation location, environmental, and usage conditions.
Choosing a Cleaning Product
The choice of a proper cleaning product is ultimately that of the consumer, and there are many products from which to choose. Depending upon the type of cleaning and the degree of contamination, some products are better than others.
Typically the most effective and efficient means for routine cleaning of most stainless steel products is to give the surfaces a brisk rubbing with a soft cloth soaked in warm water and a gentle detergent, or mild mixture of ammonia. Rubbing should, to the extent possible, follow the polish lines of the steel, and always insure thorough rinsing after cleaning.
Although some products are called “stainless steel cleaners,” some may contain abrasives which could scratch the surface, (compromising the protective chrome-oxide film), and some many contain chlorine bleach which will dull, tarnish or discolor the surface if not completely removed.
After the stainless surfaces have been thoroughly cleaned, a good quality car wax may be applied to help maintain the finish.
NOTE
Stainless steel products should never be installed, or stored in close proximity to chlorine chemicals.
Whichever cleaning product you chose, it should be used in strict accordance with the instructions of the cleaner manufacturer.
Energy Saving Tips
The following suggestions will minimize the cost of operating your refrigeration appliance.
- Do not install your appliance next to a hot appliance (cooker, dishwasher, etc.), heating air duct, or o the rheat sources.
- Install product out of direct sunlight.
- Ensure the front grille vents at front of appliance beneath door are not obstructed and kept clean to allow ventilation for the refrigeration system to expel heat.
- Plug your appliance into a dedicated power circuit. (Not shared with other appliances).
- When initially loading your new product, or whenever large quantities of warm contents are placed within refrigerated storage compartment, minimize door openings for the next 12 hours to allow contents to pull down to compartment set temperature.
- Maintaining a relatively full storage compartment will require less appliance run time than an empty compartment.
- Ensure door closing is not obstructed by contents stored in your appliance.
- Allow hot items to reach room temperature before placing in product.
- Minimize door openings and duration of door openings.
- Use the warmest temperature control set temperature that meets your personal preference and provides the proper storage for your stored contents.
- When on vacation or away from home for extended pe- riods, set the appliance to warmest acceptable tem- perature for the stored contents.
- Set the control to the “off” position if cleaning the appliance requires the door to be open for an extended period of time.
OBTAINING SERVICE
If Service is Required:
- If the product is within the first year warranty period please contact your dealer or call Lynx Grills Customer Service at 888-289-5969 for directions on how to obtain warranty coverage in your area.
- In all correspondence regarding service, be sure to give the service/model number, serial number, and proof of purchase.
- If the product is outside the first year warranty period, Lynx Grills Customer Service can provide recommendations of service centers in your area.
- Try to have information or description of nature of the problem, how long the appliance has been running, the room temperature, and any additional information that may be helpful in quickly solving the problem.
- Table C is provided for recording pertinent information regarding your product for future reference.
| For Your Records | |
| Date of Purchase | |
| Dealer’s name | |
| Dealer’s Address | |
| Dealer’s City | |
| Dealer’s State | |
| Dealer’s Zip Code | |
| Appliance Serial Number | |
| Appliance Service/Model Number | |
| Date Warranty Card Sent (Must be within 10 days of purchase). | |
Table C
TROUBLESHOOTING
Before You Call for Service
If the appliance appears to be malfunctioning, read through this manual first. If the problem persists, check the troubleshooting guide below. Locate the problem in the guide and refer to the cause and its remedy before calling for service. The problem may be something very simple that can be solved without a service call. However, it may be required to contact your dealer or a qualified service technician.
WARNING
Electrocution Hazard
- Never attempt to repair or perform maintenance on the appliance until the main electrical power has been disconnected. Turning the appliance control “OFF” does not remove electrical power from the unit’s wiring.
- Replace all parts and panels before operating.
CAUTION
In the unlikely event you lose cooling in your unit, do not unplug the product from the electric supply, but do call a qualified service technician immediately. It is possible that the loss of cooling capacity is a result of excessive frost build-up on the evaporator cooling coil. In this case, removing power to the unit will result in the melting of this excessive quantity of ice, which could generate melt water that exceeds the capacity of the defrost drain system and could result in water damage to your home. The end-user will be ultimately responsible for any water damage caused by prematurely turning the unit off without appropriately managing the excess water run-off.
| Problem | Possible Cause | Remedy |
| Appliance not cold enough (See “Adjusting the temperature” on page 8) |
|
|
|
at least 24 hours. | |
|
| |
|
| |
| Appliance too cold (See “Adjusting the Temperature” on page 8) |
|
|
|
| |
| Noise or Vibration |
|
|
|
| |
| Appliance will not run. |
|
|
|
| |
|
|
HOUSEHOLD PRODUCT WARRANTY
REFRIGERATOR/BEVERAGE DISPENSER
TWO YEAR FULL WARRANTY
Refrigerators / beverage dispensers and all of their component parts, except as detailed below*†, are warranted to be free from defective materials or workmanship in normal residential use for a period of two (2) years from the date of original retail purchase. Lynx, warrantor, agrees to repair or replace, at its option, any part which fails or is found to be defective during the warranty period.
*FULL NINETY (90) DAY COSMETIC WARRANTY: Product is warranted to be free from cosmetic defects in materials or workmanship (such as scratches on stainless steel, paint/porcelain blemishes, etc.) for a period of ninety (90) days from the date of original retail purchase or closing date for new construction, whichever period is longer. Any defects must be reported to the selling dealer within ninety (90) days from date of original retail purchase. Lynx uses high quality processes and materials available to produce all color finishes. However, slight color variation may be noticed because of the inherent differences in painted parts and porcelain parts as well as differences in kitchen lighting, product locations, and other factors. Therefore, this warranty does not apply to color variation attributable to such factors.
FULL NINETY (90) DAY WARRANTY IN “RESIDENTIAL PLUS” APPLICATIONS: Lynx products are designed and certified for residential use only. They are not intended for use in commercial applications. Lynx products should only be used in accordance to national and local codes. Lynx is not responsible for property damage or injury resulting from use in a commercial application. To support the manufacturing quality of its appliance’s Lynx will provide a full 90 day warranty for products used in “Residential Plus “applications. This “Residential Plus” warranty applies to applications where use of the product extends beyond residential use but is in compliance with national and local code. In some jurisdictions these applications are zoned as residential.
Examples of, but not limited to, such applications covered by this warranty are bed and breakfasts, fire stations, private clubs, churches, condominium/ apartment common areas etc. Under this “Residential Plus” warranty, the product, its components and accessories are warranted to be free from defective material or workmanship for a period of ninety (90) days from the date of original retail purchase. Lynx warrantor, agrees to repair or replace, at its option, any part which fails or is found to be defective during the warranty period. This warranty covers parts and labor. This warranty excludes use of the product in all commercial locations such as restaurants, food service locations and institutional food service locations.
SIX YEAR FULL WARRANTY ON SEALED REFRIGERATION PARTS AS LISTED
Any sealed refrigeration system component, as listed below, is warranted to be free from defective materials or workmanship in normal household use during the third through the sixth year from the date of original retail purchase. Lynx, warrantor, agrees to repair or replace, at its option, any part which fails or is found to be defective during the warranty period.
Sealed Refrigeration System Components: Compressor, Evaporator, Condenser, Connecting Tubing, Dryer/Strainer
TWELVE YEAR LIMITED WARRANTY ON SEALED REFRIGERATION PARTS AS LISTED
Any sealed refrigeration system component, as listed above, which fails due to defective materials or workmanship in normal household use during the seventh through the twelfth year from the date of original retail purchase will be repaired or replaced, free of charge for the part itself, with the owner paying all other costs, including labor.
WARRANTY TERMS
This warranty extends to the original retail purchaser of the product warranted hereunder and to each transferee owner of the product during the term of the original purchaser’s warranty. the warranty is transferable by the original retail purchaser via home sale only. If a transferee owner is unable to provide proof of purchase from the original purchaser and the product has not been previously registered, the production date of the product, located in the serial number of the product, will serve as the effective warranty start date.
The activation date of the warranty begins from the date of original retail purchase. In the case of new product purchase via building development sales, activation begins from the earlier date of either certificate of occupancy or 24 months from date of manufacture. Note date of manufacture is identified by serial tag on product.
This warranty does not cover units purchased as b-stock, liquidation, salvage, seconds, refurbished, as-is, used products.
This warranty shall apply to products purchased in the United States and Canada. Products must be purchased in the country where service is requested. Warranty service must be performed by a Lynx authorized service agency or representative. Warranty shall not apply to damage resulting from abuse, accident, natural disaster, loss of electrical power to the product for any reason, alteration, improper installation, improper operation, or repair service of the product by anyone other than a Lynx authorized service agency or representative. This warranty does not apply to commercial usage. Warrantor is not responsible for consequential or incidental damage whether arising out of breach of warranty, breach of contract or otherwise. Some jurisdictions do not allow the exclusion or limitation of incidental or consequential damages, so the above limitations do not apply to you.
Owner shall be responsible for proper installation, providing normal care and maintenance, providing proof of purchase upon request, and making the product reasonably accessible for service. If the product or one of its component parts contains a defect or malfunction during the warranty period, after a reasonable number of attempts by the warrantor to remedy the defects or malfunctions, the owner is entitled to either a refund or replacement, at the warrantor’s discretion of the product or its component part or parts. Warrantor’s liability on any claim of any kind, with respect to the goods or services covered hereunder, shall in no case exceed the price of the goods or service or part thereof which gives rise to the claim.
Lynx authorized service agent or representative. Service will be provided during normal business hours Labor performed at overtime or premium rates shall not be covered by the warranty. To obtain warranty service contact Lynx Customer Care at
1-888-289-5969. Please have model number, serial number, and date of original purchase available when calling. IMPORTANT: Retain proof of original purchase to establish warranty period. The return of the owner registration card is not a condition of warranty coverage. You should, however, return the owner registration card so Lynx can contact you should any question of safety arise which could affect you. Any implied warranties of merchantability and fitness applicable to the above described burner assemblies, infrared rotisserie burners, grill grates, and stainless steel parts are limited in duration to the period of coverage of the applicable express written limited warranties set forth above. Some jurisdictions do not allow limitations on how long an implied warranty lasts, so the above limitations may not apply to you. This warranty gives you specific legal rights, and you may also have other rights which may vary from jurisdiction to jurisdiction.
CUSTOMER SUPPORT
All specifications and product designs subject to change without notice. Such revisions do not entitle the buyer to corresponding changes, improvements, additions, replacements or compensation for previously purchased products.
Specifications subject to change without notice.
The best outdoor kitchen products come from: Lynx Grills
62201 Highway 82 West Greenwood, MS 38930
Service: (888)-289-5969




































