SIEMENS 5128, 5129 Silent Knight
Fire Safety
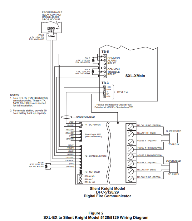
Silent Knight Model 5128/5129 Digital Fire Communicator Connected to the SXL-EX Control Panel Appendix for the SXL-EX Manual
OPERATION
The SXL-EX Control Panel reports system conditions to a Central Station using the Silent Knight Model 5128/5129, a four channel digital communicator that reports alarm, trouble, supervisory, and miscellaneous status. When used with the SXL-EX, the Silent Knight Model 5128/5129 uses the alarm, trouble, and supervisory channels. The miscellaneous status channel may be used to annunciate conditions other than fire at the Central Station.
ELECTRICAL CHARACTERISTICS
Supervisory: 84mA, 18-40 VDC
Alarm: 154mA, 18-40 VDC
INSTALLATION Mounting
Silent Knight Model 5128 Mount the Silent Knight Model 5128 within the SXL-EX enclosure as shown in Figure 1.
Silent Knight Model 5129 The Silent Knight Model 5129 must be mounted outside of the SXL-EX enclosure and within 20 feet of it. All electrical wiring must be in metal conduit.
Electrical
Remove all system power before installation, first battery and then AC.
(To power up, connect the AC first and then the battery.)
The SXL-EX Control Panel connects to the Silent Knight Model 5128/5129 Digital Fire Communicator using the Alarm and Trouble dry contacts on the SXL-EX Main Board (See Figure 2). The Supervisory dry contact is made by using either the SZE-4X or the SRC-8 dry contact relay to follow any SXL-EX supervisory event. (Refer to the SXL-EX Operation, Installation, and Maintenance Manual, P/N 315-095997, for programming instructions. Also refer to the Silent Knight 5128/5129 Fire Slave Communicator Installation Manual, August, 1994, P/N 150805, provided with the Silent Knight Model 5128/5129 for dialer instructions.)
The Silent Knight Model 5128 monitors all System troubles through the SXL-EX trouble relay. The SXL-EX delays the AC Fail trouble signal in accordance with NFPA and UL requirements.
In NFPA 72 remote station connections, provide 60 hour backup battery capacity.
NOTE: The SXL-EX Control Unit delays the AC Fail trouble transmitted by the Silent Knight Model 5128/5129 dialer for 6 hours.
Siemens Building Technologies, Inc. 8 Fernwood Road Florham Park, New Jersey 07932
Siemens Building Technologies, Ltd. 2 Kenview Boulevard Brampton, Ontario L6T 5E4 Canada
PROGRAMMING
The Silent Knight Model 5230 LCD Keypad Programmer can be connected temporarily to Pin P4 on the Silent Knight 5128 Main Board (See Figure 1) for on-site programming or troubleshooting of the communicator. English language messages assist in entering data, changing the 24-hour test time, and describing conditions currently in effect.
Table 1 lists the recommended program for the Silent Knight 5128/5129 Digital Fire Communicator. Before you begin programming, read the Step Programming Form in the Silent Knight Model 5128/5129 Fire Slave Communicator Installation Manual, August, 1994, P/N 150805, provided with the Silent Knight 5128/5129.
Table 1 Silent Knight Model 5128/5129 Programming Table
| Step No. | Option Name | Select |
| 1 | ZONE ACTIVE | 0 |
| 2 | ZONE SUPERVISED | yes |
| 3 | ALARM CHANNED INPUT | 0 |
| 4 | TROUBLE CHANNEL INPUT | 0 |
| 5 | SUPERVISORY CHANNEL | 0 |
| 6 | ZONE RESPONSE 1 | 0 |
| 7 | ZONE RESPONSE 2 | SKIP See Note 2 |
| 8 | ZONE RESPONSE3 | 0 |
| 9 | ZONE RESPONSE 4 | 0 |
| 10 | RELAY 1 | 1 |
| 11 | INSTALLERS CODE | 0 |
| 12 | OPERATORS CODE | yes |
| 13 | DIALER TYPE | yes |
| 14 | COMPUTER ENABLE | Yes |
| 15 | TOUCHTONE LINE 1 | Yes |
| 16 | TOUCHTONE LINE 2 | Yes |
| 17 | MUST REPORT 1 | Yes |
| 18 | MUST REPORT 2 | Yes |
| 19 | AC MONITORING | 2 |
| 20 | AC LOSS HOURS | See Note 4 |
| 21 | RINGS | SKIP See Note 2 |
| 22 | 3/1 ALARM CODE | |
| 23 | 3/1 TROUBLE CODE | |
| 24 | 3/1 RESTORE CODE | |
| 25 | 3/1 TEST CODE | |
| 26 | ALARM 1 FIRST | Yes |
| 27 | TROUBLE 1 FIRST | yes |
| 28 | TEST 1 FIRST | yes |
| 29 | ACCOUNT 1 | |
| 30 | ATTEMPTS 1 | 3 |
| 31 | FORMAT 1 | |
| 32 | PHONE 1 | |
| 33 | ACCOUNT 2 | 3 |
| 34 | ATTEMPTS 2 | |
| 35 | FORMAT2 | |
| 36 | PHONE 2 | |
| 37 | COMPUTER ACCOUNT | SKIP See Note 2 |
| 38 | COMPUTER PHONE | SKIP See Note 2 |
| 39 | TEST TIME | |
| 40 | CURRENT TIME |
NOTES:
- If the selection is left blank, the user must fill in the proper information.
- Skip = No selection is required.
- After each selection is made, press the ENTER key to proceed to the next step.
- a. If the Silent Knight Model 5129 Digital Fire Communicator is used, enter a number from 0 to 15 hours.
b. If the Silent Knight Model 5128 Digital Fire Communicator is used, enter 0 hours.

NOTE:
- Remove hex nuts from the 4 studs on the back of the SXL-EX door.
- Place the 5128 over the studs as shown in the diagram.
- Attach each of the 4 hex nuts to each of the studs as shown.


















