BEST Full Mortise Butt Hinge Drilling

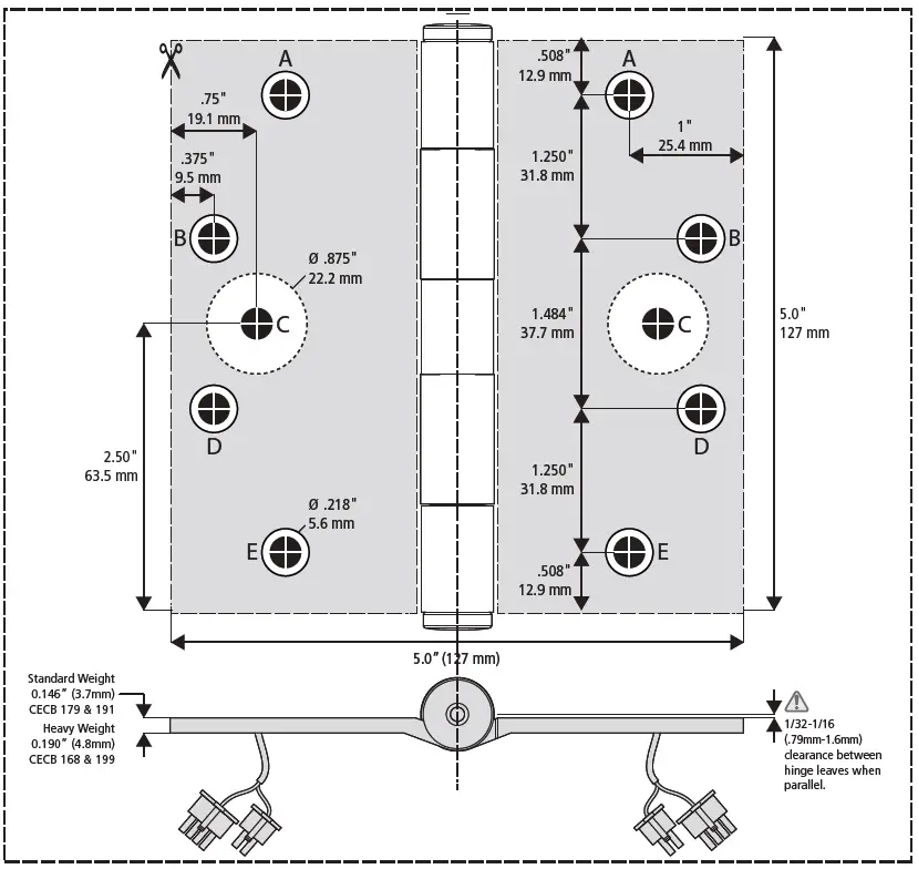
Full Mortise Butt Hinge (Size 5 x 5”) Drilling Instructions/Template
- Standard Weight – CECB 179-12C & 191-12C
- Heavy Weight – CECB 168-12C & 199-12C
TOOLS
- Tools Needed


Full Mortise Butt Hinge (Size 5 x 5”) Drilling Instructions/Template




Download manual
Here you can download full pdf version of manual, it may contain additional safety instructions, warranty information, FCC rules, etc.