FINLUX FX 2160 X Built In Extractor

Dear Customer,
We are sure that you will be satisfied with purchasing this product. Please read these instructions thoroughly in order to get the best performance from the product you have purchased.
IMPORTANT NOTES:
- You have to keep the invoice/purchase voucher together with your warranty and attach it to the warranty certificate in order to have a valid warranty.
- In order to avoid risks, have all the preparation related to the installation of the product done by an authorized electrician, and in order use the product correctly and avoid accidents safety instruction should be read thoroughly.
- Keep the operation manual in an easily accessible place.
SAFETY INSTRUCTIONS
- Kitchen cooker hoods are designed for home type use in cooking food. There is risk of disorder if they are used for any purpose and in such a case shall be out of warranty coverage.
- All the electrical installations should be made by a qualified electrician. The installation by unauthorized person might result with low performance operation or harm the product.
- Cooker Hood output can not be connected to the outputs where the smoke from other devices is given.
- When it is cooperated with the other devices using any form of energy other than electricity, it might damage the operation of these devices (since it consumes the air in the place).
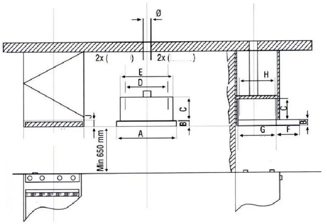
SEE FIGURE A: - At the installation cooker hood should be at least 65 cm above the gas consuming ovens and at least 75 cm above the mixed fuel consuming ovens.
- During installation, the electricity power cable should be avoided from crushing or being pinched in.
- The inflammable food should not be cooked under the product.
- Instead of the filter, filtering materials which are not resistant to the fire should not be used.
- Not leave hot oil on any containers on the oven. Hot oil saucepan might cause self blaze up
- Have the filters washed on time and in case of active carbon filters replace them on time. The filters not changed on time shall have a risk of fire due to the oil accumulated on them.
- If the power cable is damages, it should be replaced by the authorized service personnel or any other qualified expert in order to avoid any risky situations.
NOTE: If fire starts, turn the Cooker Hood and cooking device off. Cover the fire. Never use water.
| PRESENTATION OF COOKER HOOD WITH DOUBLE FILTERS: FX2160X/FX2160BK/FX2160W/FX2060V BK |

COOKER HOOD WITH DOUBLE FILTERS
| – Chimney exit adaptor | – Chimney exit adaptor |
Optional accessories
– Active carbon filter
In the places where there is no chimney, Active carbon filters should be used in order to release the air into the ambiance after filtration. Active carbon filter should be obtained from the authorized dealer or the authorized service. In order to mount the active carbon filter, the cassette filter is removed first and the active carbon filter is installed in the same manner instead of it.
DEVICE FUNCTIONS
The cooker hood can be used in the kitchens with/without chimney.
For use with chimney The chimney exit is realized by connecting a 100 mm flexible, bendable pipe between the product and the chimney outlet.
Warning!
Cooker Hood exit should not be connected to the air ducts that contain the smoke from other devices.
For use without chimney (recirculation mode) The air is filtered by a cartage carbon filter and given into the ambiant again via a pipe with a diameter of 100 mm pipe or chimney from or over the cupboard. This method is employed in the kitchens without any chimneys or the places with chimney but the not suitable for installation.
INSTALLATION UNPACKING THE DEVICE:
Check that there is no deformation on you device. Any damage caused by/during transportation should be immediately notified to the transportation responsible. The defects seen should also be notified to the seller. Do not let the children play with the packaging materials.
TECHNICAL SPECIFICATIONS of COOKER HOOD
| (double motor) | (double motor with Spot Lamp ) | (Turbo Motor) | |
| Voltage: | 220-240 V/50 Hz | 220-240 V/50 Hz | 220-240 V/50 Hz |
| Motor Power: | 2x 95 W | 2x 95 W | 1x 190 W |
| Illumination: | 1 x 15 W | 2 x 25 W | 2 x 25 W |
| Total Power: | 205 W | 240 W | 240 W |
| Current: | 1,5 A | 1,5 A | 1,5 A |
| Air Outlet: | 120 MM | 120 MM | 120 MM |
| Thermal Protection | 120 ºC | 120 ºC | 120 ºC |
| Air flow rate: | 260 m3/h | 460 m3/h | 650 m3/h |

FIGURE D: ELECTRIC WIRING DIAGRAM
DEVICE LOCATION
When the installation is completed, there shall be a distance of minimum 65 cm between the product and the electrical ovens and minimum 75 cm between the product and the ovens operating with other fuel. (Figure 3)
ELECTRICAL CONNECTIONS OF THE DEVICE
There is an earthed plugged power cable in your device. This cable must be connected to an earthed socket.
Length of plugged cable: 1,25 meters
The electrical wiring diagram for your Cooker Hood is given in Figure D.
The electrical connections of the devices should be made by a qualified electrician.
DEVICE INSTALLATION
II-COOKER HOODS
Your device is installed in the cupboard as seen in Figure E and F.
– 4 holes are drilled on the wooden plate under the cupboard using the mounting template.
– The product is fixed on the cupboard using 4×50 screws given together with the product.
– When the slide set is moved, the front panel should not touch to the cupboard cover.
– Using this wooden plate mounting template, a chimney exit hole bigger than 115 mm is opened.

FIGURE E & F
USING THE PRODUCT
Speed Selection
Your device contains a three speed motor and a three speed switch to control this. For the best performance we recommend you to use high speed in the heavy smoke and smell ambiant. The motor starts when the switch is turned on and stops when it is turned off.
The product should be started a couple of minutes before cooking and keep on operation as long as the smoke and the smell in the ambiant is removed.
Illumination
The product has 2x25W bulbs and a lamp switch to command the illumination. In order to have the illumination operated, the lamp switch should be on.
Efficient Ventilation
In order to have correct ventilation the inner side of the pipe used for chimney should be smooth (like PVC pipes) and the windows opening out should be closed. The doors and windows to the other rooms might be open.
Use of Switch
: On and off button of lamp
2 : Powering the second level
3 : Powering the third level
IMPORTANT NOTE:
Be careful when the device is operated together with the devices using the air in the ambiant as a fuel at the same time (e.g. heaters operating with gas, diesel fuels, coal or wood, water heater and etc.). Since the Cooker Hood throws the ambient air out, it might have a negative effect on combustion.
Act in compliance with the rules and regulations related to the evacuation of exit air published by the authorized bodies. This warning is not applied for the use without chimney
MAINTENANCE
Turn the device off before starting any maintenance work. (plug off the power supply cable).
Aluminum Cassette Filter
Aluminum Cassette Filter takes the dust and oil in the air. Metal filter should be washed with hot soapy water every month or if it is possible in the dishwasher (60 C).
– Removing the Aluminum Cassette Filter
– Remove the Aluminum Cased Filter by pressing on the spring latches at the edge.
– Do not install it before drying (Figure 7)
Carbon Filter
– Carbon filter removes the smell in the air.
– In normal use it has to be replaced with the new one every three months.
– Never wash the carbon filter. In order to remove the carbon filter from its place turn it counter-clockwise.
Warning
If you do not act in compliance with the cleaning and replacement rules related to the filters, it might result with fire. Therefore we recommend you strictly obey the following instructions.
Cleaning:
The outer surfaces of your Cooker Hood should be wiped with a cloth rinsed in liquid detergent or alcohol.
Never use corrosive products.
Inox Cleaner
This is a special protecting Inox product which cleans the fingerprints and spots on the products and avoiding the rusting and other negative ambiance effects for a long time.
Disposal method:
Inox cleaner is dropped on a dry cloth and than Inox is wiped on the surface and the whole surface is wiped with this liquid. After waiting a couple of minutes the cleaning and maintenance work are completed by rubbing the surface with the same cloth. In this way a protective film layer is formed on the surface. This application should be made periodically without waiting for any spotting.
Warnings:
It might cause allergy on skin. Avoid from contact with skin and eyes. In case of contact with eyes, wash with plenty of water and apply to your doctor. In case of contact with skin, wash with soap and plenty of water.
Do not use to clean the aquariums since it might harm the aquarium creatures
Keep away from children.
Keep in room temperature
Replacement of the illumination elements
– Turn the electrical connection of the Cooker Hood off.
– Remove the aluminum cassette filter.
– Remove the defect bulb and replace it with an identical one.
Problems and Troubleshooting Proposals
If your device does not operate:
Before calling the service:
Please be sure that the device is plugged on and the fuse of the electrical installation is OK. Do not attempt any operation that might harm the product. Before calling the service, check your device according to Table 1 above. If the problem goes on, contact with your dealer or authorized service.
Service and spare parts:
You can have the spare parts of your product from your dealer or the authorized service. The package contains the list of the authorized services together with the product. When you are in contact with your dealer or the authorized service, please give them the product number and the model name seen on the product label in order to demand for spare parts. You can see the product label when you remove the aluminum cassette filter.
| Check the electrical connection (Refer to Safety Instruction Article 2) (Network Voltage should be 220 V and earthed plug should be used for the Cooker Hood) | Check the motor switch (motor switch should be on position) | Check the lamp switch lamp switch should be on position) | heck the aluminum filter (aluminum cassette filter should be washed once a month under normal conditions | conditions Check the bulbs (bulbs should be sound) | Check the air outlet chimney (air outlet should be open) | Check the carbon filter (for those working with carbon filter) (Carbon filter should be replaced every three months under normal operating conditions) | |
| Cooker Hood does not work | ✕ | ✕ | |||||
| Illumination lamp does not light | ✕ | ✕ | ✕ | ||||
| Air vacuum of the Cooker Hood is weak | ✕ | ✕ | ✕ | ||||
| No air is given out (in the places without a chimney) | ✕ | ✕ |


















