GREENHECK CFSD 1 Hour Corridor Ceiling Fire Smoke Dampers

Installation Instructions
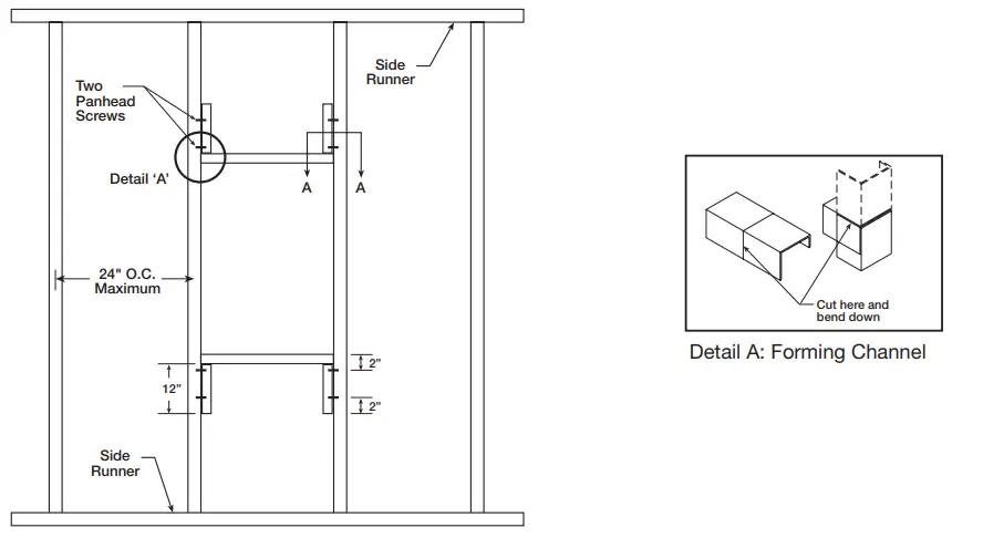
- Gypsum panels must be screwed 12 in. (305 mm) on center maximum to all stud and runner flanges surrounding the opening with 15/8 in. (41 mm) drywall screws or fasteners designated by the appropriate corridor ceiling design (See Figure 1).

- Retaining angles must be attached to the sleeve (not the partition), See Figures 2 & 3.

- Retaining angles must be a minimum of 20 ga. (1 mm) steel and have a minimum of 11/2 in. x 11/4 in. (38 mm x 32 mm) legs.
- Retaining angles must be attached to the sleeve using one of the methods shown below.
- tack or spot welds
- #10 sheet metal screws
- 1/4 in. x 20 bolts and nuts
- /3 16 in. (4.7 mm) steel rivets
- Quick-lock joints
- A minimum of two connections per side, top, and bottom (12 in. [305 mm] on center maximum).
- Retaining angles must overlap the partition a minimum of 1 in. (25 mm)
- A minimum 3/4 x 20 ga. (19 mm x 1 mm) flange termination may be used in lieu of retaining angles on the corridor side of the damper sleeve.
Our Commitment
As a result of our commitment to continuous improvement, Greenheck reserves the right to change specifications without notice. Product warranties can be found online at Greenheck.com, either on the specific product page or in the literature section of the website at Greenheck.com/Resources/Library/Literature.
- Phone: 715.359.6171
- Fax: 715.355.2399
- Parts: 800.355.5354
- E-mail: [email protected]
- Website: www.greenheck.com 463832
- Tunnel Corridor Supplement, Rev. 8, January 2022





















