JENNAIR W11101480B 24-Inch Microwave Drawer

INSTALLATION REQUIREMENTS
These installation instructions cover different models. The appearance of your particular model may differ slightly from the illustrations in these Installation Instructions.
Tools and Parts
Gather the required tools and parts before starting installation. Read and follow the instructions provided with any tools listed here.
Tools Needed
- Tape measure
- #2 Phillips screwdriver
- Drill
- 1/8″ (3.17 mm) drill bit
- Marker or pencil
Parts Supplied
The Microwave Drawer is preassembled.
- 1″ (2.5 cm) mounting screws (4)
- 1″ (2.5 cm) deflector screws (2)
- Flush mount deflector (1)
Verification Needed
- Installer must confirm presence of anti tip block. Refer to the anti-tip block section in the manual.
- Check local codes. Check existing electrical supply. See “Electrical Requirements”.
- It is required that all electrical connections be made by a licensed, qualified electrical installer.
Location Requirements
This product is suitable for use below electric or gas built-in ovens. This product is not suitable for use below cooktops.
The Microwave Drawer may be located in a cabinet or below the counter, and/or below a built-in oven. Check the opening where the Microwave Drawer will be installed. The location must provide:
IMPORTANT: Observe all governing codes and ordinances.
- Wood cabinetry.
- Cutout opening that is plumb and square. See “Minimum Cutout Dimensions” in the “Minimum Dimensions” section.
- Cutout floor that is solid, level, and flush with bottom of cabinet cutout.
- Support for weight of at least 100 lbs (45.4 kg), which includes Microwave Drawer and items placed inside.
- Grounded electrical outlet. See the “Electrical Requirements” section.
- Minimum installation clearances for installation location. See the “Minimum Dimensions” section.
- Complete enclosure around the recessed portion of the Microwave Drawer.
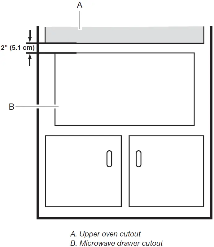
Minimum Dimensions
Minimum Wall Oven Combination Installation Clearances
For proper installation, the following minimum clearances must exist above and below the cutout opening.
NOTE: Upper oven must have heat deflector kit installed to direct exhaust away from microwave console (Refer to Wall Oven Manual for Deflector Kit Installation)

Electrical Requirements
IMPORTANT: Observe all governing codes and ordinances.
Required:
- A 120-volt, 60 Hz, AC-only, 15- or 20-amp electrical supply with a fuse or circuit breaker.
Recommended:
- A time-delay fuse or time-delay circuit breaker
- A separate circuit serving only this Microwave Drawer
GROUNDING INSTRUCTIONS
- For all cord connected appliances:
The microwave oven must be grounded. In the event of an electrical short circuit, grounding reduces the risk of electric shock by providing an escape wire for the electric current. The microwave oven is equipped with a cord having a grounding wire with a grounding plug. The plug must be plugged into an outlet that is properly installed and grounded.
WARNING: Improper use of the grounding plug can result in a risk of electric shock. Consult a qualified electrician or serviceman if the grounding instructions are not completely understood, or if doubt exists as to whether the microwave oven is properly grounded.
Do not use an extension cord. If the power supply cord is too short, have a qualified electrician or serviceman install an outlet near the microwave oven. A short power supply cord is provided to reduce the risks resulting from becoming entangled in or tripping over a longer cord.
Product Dimensions

The drawer opens 15 1/4″ (38.7 cm).

Cabinet Preparation
Cabinet Dimensions

- A. 6″ (152.40 mm) minimum
16″ (406.40 mm) maximum - B. Suggested electrical recepticle location
- C. Anti-Tip block
- D. 3″ (76.20 mm)
- E. 31/2″ (88.90 mm)
- F. 4.5″ (114.30 mm)
- G. 221/8″ (614.35 mm) opening
- H. 1413/16″ (376.24 mm) to bottom of Anti-Tip block
- I. Allow 7/8″ (22.23 mm) overlap
- J. 24″ (609.60 mm) minimum depth
- K. Allow 9/16″ (5.62 mm)
- L. Platform must support 100 lb (45.4 kg)
- M. 159/16″ (395.27 mm) opening
- N. Allow 3/4″ (19.05 mm) overlap
- O. 117/32″ (39 mm)


- A. 6″ (152.40 mm) minimum
16″ (406.40 mm) maximum - B. Suggested electrical recepticle location
- C. Anti-Tip block
- D. 3″ (76.20 mm)
- E. 31/2″ (88.90 mm)
- F. 4.5″ (114.30 mm)
- G. 243/16″ (614.35 mm) minimum
- H. 1413/16″ (376.24 mm) to bottom of Anti-Tip block
- I. 1″ (25.40 mm) minimum
- J. 24″ (609.60 mm) minimum depth
- K. 221/8″ (561.97 mm) “mounting cleat to mounting clear”
- L. 17/8″ (47.62 mm)
- M. 167/8″ (428.62 mm) opening
- N. Platform must support 100 lb (45.4 kg)
- O. 161/8″ (409.56 mm)
- P. 0″ (0 mm) = flush
- Q. 117/32″ (39 mm)
- R. 159/16″ (395.3 mm)

INSTALLATION INSTRUCTIONS
Install the Anti-Tip Block
To reduce the risk of tipping of the drawer, the Anti-Tip block must be properly installed located 14 13/16” (37.6 cm) above the floor on which the Microwave Drawer will sit. If the Microwave Drawer is ever moved to a different location, the Anti-Tip block must also be moved and installed.
- Measure 14 13/16” from the cutout floor where the Microwave Drawer will sit and mark a line on the wall.
- Position the bottom of the anti-tip block on the line marked on the wall and attach the anti-tip block to the wall with screws. Make sure the screws are secured to wood or metal studs.
NOTES:
- The anti-tip block is required before installing the Microwave Oven Drawer.
- The anti-tip block is to be provided by the installer.
- When fastening, be sure that the screws do not penetrate electrical wiring or plumbing.
Anti-Tip Block Dimensions

Using sturdy wood screws (installer to provide), securely install the anti-tip block in the upper-right corner of the cutout, making sure the block is completely stable. The bottom of the block must be 1413/16” (37.6 cm) from the cutout floor.
Install the Microwave Drawer
- Empty Microwave Drawer of any loose contents.
- Using two or more people, slide Microwave Drawer all the way into the opening, and center the Microwave Drawer.
- Open the Microwave Drawer, and mark the four holes in the mounting flange.
NOTE: The screw holes in the mounting flange of both sides must be fully over the wood of the wall or cabinet. - Remove Microwave Drawer.
- Using 1/8″ (3.17 mm) drill, drill four pilot holes into the cabinet through the marks made in Step 3.
- repare the holes by installing a 1″ (2.5 cm) screw in and out of each pilot hole.
- With the Microwave Drawer near the opening, plug the Microwave Drawer into the grounded 3 prong outlet.
- Reinsert Microwave Drawer into the opening, open the drawer, and align holes in mounting flange with pilot holes in the cabinet.

- A. 1″ (2.5 cm) mounting screws (4)
- B. Mounting flange screw holes
- C. Mounting flange
- Install four 1″ (2.5 cm) screws to secure the Microwave Drawer in place, then close the drawer.
Install the Deflector Vent For Flush Installation
- Position deflector vent and mark holes.
- Pre-drill using a 1/8″ (3.17 mm) bit before mounting. Refer to illustrations below for vent positioning.
Shelf detail showing the deflector vent during installation.
Shelf detail showing the deflector vent installed. - Place the drawer adjacent to the wall or cabinet opening. Plug the power supply cord into the grounded 3 prong outlet.
- Guide the drawer into the prepared opening. Avoid contact with the sides of the cutout opening and also pinching the cord between the oven and the wall.
- Slide the drawer all the way back until the mounting flanges touch the cleats mounted in the cabinet opening.
- Open the drawer. Using the 4 holes on the drawer as a template, pre drill the cabinet using a 1/8″ (3.17 mm) bit. See illustration below.

- Secure the drawer with the 4 screws supplied.
Complete Installation
- Check the operation of Microwave Drawer by placing 1 cup (250 mL) of water in the Microwave Drawer and programming cook time of 1 minute at 100% power.
- If the Microwave Drawer does not operate:
- Check that a household fuse has blown, or a circuit breaker tripped. Replace the fuse or reset the circuit breaker. If the problem continues, call an electrician.
- Check that the power supply cord is plugged into a grounded 3 prong outlet.
- See the Use and Care Guide for troubleshooting information.
Installation is now complete.
Save these Installation Instructions for future use.
ASSISTANCE
Call your authorized dealer or service center. When you call, you will need the microwave drawer model number and serial number, both of which can be found on the model and serial number plate.
If you need additional assistance, call us at our toll-free number or visit our website listed in the Use and Care Guide.
To access the model and serial number plate, fully open the microwave drawer. The plate is located on a flat surface just beyond the back wall of the drawer.
®/™ ©2017 Jenn-Air. Used under license in Canada. All rights reserved.

Shelf detail showing the deflector vent during installation.
Shelf detail showing the deflector vent installed.

















