
REPLACEMENT PARTS MANUAL
11EER Q-TECT™ Series
General Notes
- Revised and/or additional pages may be issued from time to time.
- A complete and current manual consists of pages shown in the following contents section.
Important
- Contact the installing and/or local Bard distributor for all parts requirements. Make sure to have the complete model and serial number available from
the unit rating plates.
Models:
| Q24H4-A Q24H4-B Q24H4-C Q30H4-A Q30H4-B Q30H4-C Q24H4DA Q24H4DB Q24H4DC Q30H4DA Q30H4DB Q30H4DC Q36A4DA Q36A4DB Q36A4DC Q36H4-A | Q36H4-B Q36H4-C Q36H4DA Q36H4DB Q36H4DC Q42A4DA Q42A4DB Q42A4DC Q43H4-A Q43H4-B Q43H4-C Q43H4DA | Q43H4DB Q43H4DC Q48A4DA Q48A4DB Q48A4DC Q48H4-A Q48H4-B Q48H4-C Q48H4DA Q48H4DB Q48H4DC |
Bard Manufacturing Company, Inc.
Bryan, Ohio 43506
www.bardhvac.com
Manual: 2110-1568G
Supersedes: 2110-1568F
Date: 8-13-21
EXTERNAL COMPONENTS – STANDARD & DEHUMIDIFICATION


X – Standard Component
O – Optional Component
* Exterior cabinet parts are manufactured with various paint color options.
To ensure the proper paint color is received, include the complete model and a serial number of the unit for which cabinet parts are being ordered.


X – Standard Component
O – Optional Component
* Unit may have an alternative vent installed. Please see the vent manual for part information.

FUNCTIONAL COMPONENTS – QA DEHUMIDIFICATION

X – Standard Component
O – Optional Component
NS – Not Shown
1 – Optional on these models
FUNCTIONAL COMPONENTS – QH STANDARD & DEHUMIDIFICATION

X – Standard Component
O – Optional Component
NS – Not Shown
1 – Optional on these models
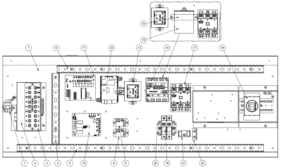
CONTROL PANEL COMPONENTS – QA DEHUMIDIFICATION


X – Standard Component
O – Optional Component
NS = Not Shown
- Only used for three-phase units; single-phase models use capacitors.
- Circuit breakers listed are for units without electric heat, “0Z” models.
See heater replacement parts manual for units with electric heat. - Q**A4DC models will have two (2) of the same fuse installed; the part number is determined by the vent package installed.
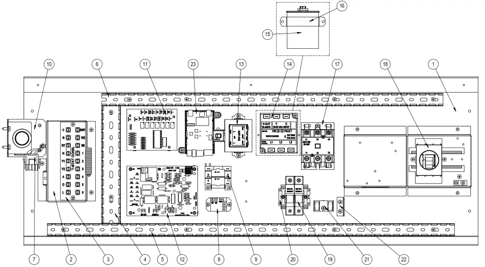
CONTROL PANEL COMPONENTS – QH STANDARD & DEHUMIDIFICATION

X – Standard Component
O – Optional Component
NS = Not Shown
- Only used for three-phase units; single-phase models use capacitors.
- Circuit breakers listed are for units without electric heat, “0Z” models.
See heater replacement parts manual for units with electric heat.
























