Garden house Maltas 2 209 x 213 cm natural
31212 31211

Das komplette Farbangebot finden Sie auf: www.KARIBU-FARBENSHOP.de
Building Instructions
![]() | ![]() |
First compare the list of materials with your package contents! Please understand that complaints can be processed in the non-built status only!


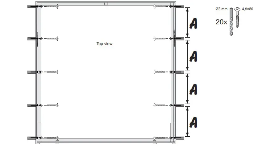
Overview


Not included
- Length must be determined and sawn


- Not needed
- with accessories!
- Fixed temporarily
- Inventory of accessories
Werkzeuge / Tools*
![]() | ![]() |



Glue! Look for the same height







Dear customer, pay attention to the correct design variant!













Roofing felt installation
Note! This description is only an example!
The number of bitumen strips to be used depends on your actual house size. When joining rolls of roofing felt end to end, the overlap must be approximately 10cm. The roof is not safe to walk on. The roof is designed for a total load (snow, wind) and not for a point load. We recommend you to always support the roof from below during installation. The sealing of the roof surfaces to adjacent components with bitumen sealant has to be effected by the customer! If it is a saddle-roofed house, do not use roofing tiles for roofing. In this case, a 20 cm wide strip of bitumen with overhang should be installed on both sides of the eaves. For houses with a tonne roof, please install a bitumen roofing under the shingles. In the case of a flat roof the laying of roof shingles is not possible!









floor




Installation door














Handling • Maintenance • Care of the door
The guarantee is conditional on proper upkeep!
For lasting protection of the value and suitability for use, professional care and maintenance is also recommended during the warranty period; this is not included in the warranty obligations. Defects must be repaired immediately upon detection.
Wood protection treatment of the door
All parts of the door must receive wood protection treatment. Those sections of the wood, which will not be accessible after installation, should receive complete treatment before installation.
Treat the product with a blue stain-blocking coat; afterward apply a double protective coating of an open-pored wood-protection glaze. Application of a protective coating should be repeated at least every two years. Please beware that the inserted plates of other material may come to differ in colour to the doors if you use unsuitable coating material. With coloured and boiler pressure-impregnated houses, only the exposed natural wood (saw cuts) and parts should need extra treatment.
You can obtain an even colour covering in inside areas with one coat of paint. For that, you should use an open-pored, acrylic-based water-dispersed lacquer. In order to guarantee a long service life of your product you should repair damaged areas immediately. Do this by whetting the damaged area and apply a new coat of paint. Enquire about suitable glazes at your local paint retailer. Furthermore, you can seal the joining of the wood-window pane with a suitable sealant to guarantee a long service life of the door and prevent leakage from heavy rain. If these precautions of care are not properly carried out, it can result in deformation, blue stain, fungus infestation in the doors and frames and loss of warranty.
Cleaning
Regular cleaning and care is a prerequisite for preserving the service life and functionality of high-value products. Cleaning is to take place outside, inside and also in the rabbet-area. The cleaning agent used must be suitable for the relevant material; please do a test before you start cleaning.
Deformation of the door
Wood reacts to environmental infl uences. Weather exposure will lead to swelling and contraction of the wood. This causes variances of dimensions and slight deformation. Dependant on the weather exposure, the door may need realignment by turning the hinges in- or outwards. Some door warpage is acceptable as long as the door can be made to function through the alignment options specifi ed here. The warranty does not cover damage caused by use of excessive force.
Adjustment of the door
The door must be accurately adjusted to ensure trouble-free operation. The door frames must be installed right-angled and perpendicular. Furthermore, they must be installed so the width of the frame is the same at the top and bottom. If the door doesn’t close or if one panel is askew, this can be rectifi ed by limited in- or outward turning of the hinges. You can turn the hinges outwards up to 5 rotations. If you have a double door, the door to be secured must always be correctly aligned at the top and bottom with the appropriate hinges.

Karibu Holztechnik GmbH ● Eduard-Suling-Str. 17 ● 28217 Bremen
[email protected]
























